Projecten
Producten
Bedrijven
Vacatures
Agenda
Awards
Podcasts
more_horiz
Videos
Magazine
Thema's
Favorieten
Profiel
Uitloggen
Copyright: A2 Studio
Maquette: Luuk Stoltenborg
Maquette: Luuk Stoltenborg
Maquette: Luuk Stoltenborg
Maquette: Luuk Stoltenborg
Maquette: Luuk Stoltenborg
Copyright: Bestaande situatie. EVA
Copyright: Bestaande situatie. EVA
Copyright: EVA
Copyright: EVA
EVA verbouwt drukkerij tot multifunctioneel pand
10 juni 2015, 14:51
Het jonge architectenbureau
EVA
transformeert een oude drukkerij in Nijmegen tot onderkomen voor een restaurant, archief en kantoor. In die functie wordt het een ondersteunend pand voor een naastgelegen woon-zorggebouw van
Diederendirrix
.
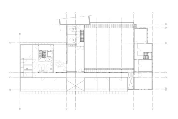
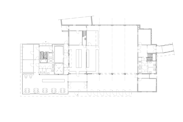
In opdracht van de Nederlandse Provincie der Paters Jezuïeten wordt in het park Brakkenstein in Nijmegen een nieuw woon-zorggebouw gerealiseerd. In de nabijheid staat een voormalige drukkerij, die door de opdrachtgever is aangekocht voor het onderbrengen van ondersteunende functies.
De opdrachtgever wil in de drukkerij een refter, kantoren, een archief en een bibliotheek onderbrengen. Verder wordt er een openbaar toegankelijk restaurant gerealiseerd. Architectenbureau EVA heeft het plan gepresenteerd voor renovatie van het oorspronkelijke gebouw en uitbreiding met nieuwbouw.
Waarde
Het gebouw, dat stamt uit de jaren dertig van de vorige eeuw, heeft zijn industriële uitstraling behouden. De drukkerij werd op haar historische waarde geschat; daarbij bleek dat de latere uitbreidingen weinig tot geen toegevoegde architectonische, ruimtelijke of functionele waarde hadden.
Deze worden dan ook 'afgepeld' tot de eerste bouwfase en één latere uitbreiding overblijven. Rond deze kern wordt vervolgens nieuwbouw gerealiseerd, waarbij duidelijk zal zijn af te lezen wat oud en nieuw is, aldus EVA. De opgave betreft een totaal oppervlak van circa 1.500 vierkante meter.
De begane grond krijgt een zo transparant mogelijk karakter om het zicht op het omliggende park te maximaliseren. De verdieping heeft lamellen van geanodiseerd aluminium, waarin ook de kozijnen van het woongebouw worden gerealiseerd. De dichte geveldelen krijgen de uitstraling van een drukplaat, wat op subtiele manier refereert aan het verleden van het gebouw.
Afstemming
Het nieuwe woon-zorggebouw, waarvan de bouw al in november 2014 is gestart, is ontworpen door Diederendirrix. Kees Tolk ontwerpt het landschap rond de gebouwen. De drie betrokken architectenbureaus stemmen hun afzonderlijke opdrachten af in een gezamenlijk ontwerpteam. Zo wordt ook een toekomstige gang die gebouwen en tuin verbindt in samenspraak ontworpen.
Trefwoorden
kees tolk ontwerp
industrieel
brakkenstein
eva
drukkerij
transformatie
restaurant
renovatie
diederendirrix
kantoor
Best gelezen
1
Amsterdam schrijft internationale architectenprijsvraag uit voor Nationaal Slavernijmuseum
donderdag, 12 februari
2
Singelbloktoren Amsterdam-Noord biedt ook bewoners tussenwoningen overhoeks zicht
maandag, 16 februari
3
Bouwstart voor zestig seniorenwoningen in groen landschap Hoorn
vrijdag, 13 februari
4
Meerdaags evenement over bouwen met aarde aangekondigd
donderdag, 12 februari
5
Leren van Santos
dinsdag, 17 februari
Gerelateerde nieuwsberichten
Een refter in een voormalige drukkerij
31 augustus 2017
Transparant kantoor met zachte hoeken
9 augustus 2016
INK Hotel in Amsterdam geopend
5 juni 2015
Kloosterkerk van diederendirrix ingewijd
7 oktober 2011
Bas van Tol ontwerpt interieur Volkshotel
17 juni 2014
Getransformeerde Stadsdrukkerij geopend
2 september 2014
Een refter in een voormalige drukkerij
31 augustus 2017
Transparant kantoor met zachte hoeken
9 augustus 2016
INK Hotel in Amsterdam geopend
5 juni 2015
Kloosterkerk van diederendirrix ingewijd
7 oktober 2011
Bas van Tol ontwerpt interieur Volkshotel
17 juni 2014
Getransformeerde Stadsdrukkerij geopend
2 september 2014
Toon alles
Andere nieuwsberichten
AG NOVA ontwerpt woon-zorggebouw voor kwetsbare ouderen op Centrumeiland
Gisteren, 15:15
Het pand is bestemd voor bewoners die complexe zorg nodig hebben en met ondersteuning in de stad kunnen blijven wonen.
Team van Nederlandse en Oekraïense architecten ontwikkelt open-source bouwsysteem voor publieke voorzieningen in Oekraïne
Gisteren, 13:57
Een team van Orange Architects, NOVA en ReThink heeft samen met een verschillende vastgoed en productontwikkelaars op het gebied van modulair bouwen een schaalbaar, open-source bouwsysteem voor publieke voorzieningen in Oekraïne ontwikkeld.
Expositie toont mogelijkheden voor nieuwe woonruimte in bestaande Rotterdamse wijken
Gisteren, 11:05
Hoe kun je in Rotterdam honderdduizend nieuwe woningen realiseren zonder nieuwe wijken te hoeven aanleggen? In een tentoonstelling bij OMI laten Platform Woonopgave en Recht op de Stad zien op welke manieren dat kan.
Vincent Bijlo en Berlage Saxophone Quartet brengen iconisch ontwerp van Berlage tot leven
17 februari, 3:50
In de nieuwe voorstelling ‘Het Visioen van Berlage’ van cabaretier en schrijver Vincent Bijlo en het Berlage Saxophone Quartet speelt het iconische ontwerp Pantheon der Menschheid (1915) van architect Berlage een centrale rol.
Ridderkerk hoeft voorlopig niet samen te werken bij verdeling huurwoningen
Gisteren, 16:29
De provincie Zuid-Holland mag Ridderkerk voorlopig niet dringen om hierbij samen te werken met elf andere gemeenten.
Zichtbaar verduurzaamde huizen leveren meer op bij verkoop
Gisteren, 11:59
Cijfers wijzen uit dat in het derde kwartaal van vorig jaar bijna 4700 euro per vierkante meter werd betaald voor woningen met een energielabel A of beter.
Noord-Brabant verdeelt vijftig miljoen euro over regio-Moerdijk
Gisteren, 09:09
Het geld dient om de leefbaarheid op peil te houden in het gebied waar de komende jaren diverse energieprojecten worden uitgevoerd.
Nederland en Vlaanderen maken afspraken over stikstofuitstoot
17 februari, 2:51
Overheden in de grensregio moeten als ze een vergunning geven voor zaken als woningbouw ook kijken naar de mogelijke gevolgen die de uitstoot heeft voor beschermde natuurgebieden aan de andere kant van de grens.
Blaricum lost Laren af als gemeente met duurste woningen
17 februari, 10:39
Het verschil tussen de duurste en goedkoopste koophuizen is in 2025 groter geworden.
Noord-Hollands dorp Opmeer wil eerste mini-kernreactor huisvesten
16 februari, 1:34
Opmeer heeft in het Nederlandse bedrijf Allseas een mogelijke bouwer van een Small Modular Reactor gevonden.
Ga naar het nieuws-archief
0
0
0
0
Voor een optimale gebruikservaring plaatst Architectenweb functionele cookies. Wat de verschillende cookies precies doen leggen we uit in een
overzicht
. Cookies van social media kun je optioneel
aanzetten
.
Akkoord
Instellingen
Annuleren
OK
Sluiten
Doorgaan
Inloggen
Maak een gratis persoonlijk account aan
Feedback
Feedback
Wij horen graag jouw feedback. Laat je reactie achter en eventueel jouw e-mail adres.
Reactie
Verstuur