Projecten
Producten
Bedrijven
Vacatures
Agenda
Awards
Podcasts
more_horiz
Videos
Magazine
Thema's
Favorieten
Profiel
Uitloggen
Copyright: Bas Gijselhart
Copyright: Bas Gijselhart
Copyright: Bas Gijselhart
Copyright: Bas Gijselhart
Copyright: Bas Gijselhart
Copyright: Bas Gijselhart
Copyright: Bas Gijselhart
Copyright: Bas Gijselhart
Copyright: Bas Gijselhart
Copyright: Freekje Groenemans
Copyright: Freekje Groenemans
Situatie
Copyright: Buro Lubbers
Aanzicht vanaf de Kanaalstraat
Copyright: diederendirrix architecten
Aanzicht vanaf de Tramstraat
Copyright: diederendirrix architecten
Aanzicht vanaf de Augustijnendreef
Copyright: diederendirrix architecten
Aanzicht vanaf de binnenplaats
Copyright: diederendirrix architecten
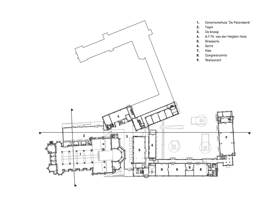
Begane grond
Copyright: diederendirrix architecten
Eerste verdieping
Copyright: diederendirrix architecten
DomusDela in voormalig klooster Mariënhage geopend
25 november 2019, 14:56
In het voormalige kloostercomplex Mariënhage in Eindhoven is deze maand DomusDela geopend. In het getransformeerde gebouwenensemble in het centrum van de Lichtstad zijn onder meer ceremoniehuizen voor uitvaartorganisatie Dela, een hotel en een brasserie ondergebracht. Een grotendeels glazen nieuwbouw fungeert als verbindende schakel in het geheel.
Klooster Mariënhage wordt wel als het oudste stukje Eindhoven beschouwd. In de elfde eeuw werd op dezelfde plek kasteel Ter Hage gebouwd. In 1419 schonk Jan van Schoonvorst, heer van Eindhoven, het kasteel aan enkele vrome burgers, die er een klooster stichtten. Het klooster kende een roerige geschiedenis; het werd verwoest, brandde af, werd weer opgebouwd en vervulde diverse functies.
Eind 2017 nam uitvaartorganisatie Dela het complex over van de Orde van de Augustijnen, die naar een andere plek was verhuisd. De Paterskerk, het Augustijns Instituut, het gymnasium en de kapel Augustinianum kwamen in handen van Dela en werden naar ontwerp van
diederendirrix architecten
en
architecten|en|en
getransformeerd.
Buro Lubbers
verzorgde het landschapsontwerp.
Ook het eigenlijke klooster Mariënhage is nu van Dela, maar de transformatie van dit gebouw staat voor een later moment gepland.
Bij de restauratie van de Paterskerk (architect Jos Hegener, 1898), Gymnasium Augustinianum (wederom Hegener, 1913 & 1918), de uitbreiding van het gymnasium (Paul Bellot, 1924) en de kapel Augustinianum (opnieuw Bellot, 1925) is behoud en de versterking van de bestaande kwaliteiten een belangrijk focus geweest, melden de betrokken bureaus.
De kerk en de kapel zijn ontdaan van zoveel mogelijk religieuze duiding en nu geschikt voor veel meer soorten bijeenkomsten, voorstellingen en feesten. De leslokalen en overige ruimtes van het voormalige gymnasium zijn getransformeerd tot hotelkamers en brasserie.
Het nieuwe bouwvolume is gerealiseerd tussen de kerk, het Augustijns Instituut en het gymnasium. De nieuwbouw verbindt de historische delen met elkaar, organiseert de interne routing en voorziet het DomusDela-complex van drie entrees.
Het witkleurige volume van glas en aluminium contrasteert nadrukkelijk met het baksteen van de bestaande gebouwen en is aldus afleesbaar als een hedendaagse toevoeging. Het zicht vanuit het nieuwe gebouw wordt telkens ingekaderd door vensters, waardoor een enscenering van de oude door het nieuwe ontstaat.
In DomusDela vinden rouw- en trouwplechtigheden plaats, maar ook concerten, congressen, lezingen, culturele activiteiten en feesten.
Trefwoorden
architecten | en | en
diederendirrix
eindhoven
dela
uitvaartcentrum
buro lubbers
hotel
klooster
transformatie
Locatie
Best gelezen
1
Strijp-S krijgt woonbuurtje met karakteristieken voormalig Philips-terrein
maandag, 2 maart
2
Melkmeisje staat model voor woontoren De Catharina in Zaandam
vrijdag, 27 februari
3
Plaggenhut dient als voorbeeld voor volledig houten kantoor met gevel van populierenbast
woensdag, 25 februari
4
Nieuwe Hittekaart Woningmarkt 2026 van BPD toont aanhoudende woningdruk
dinsdag, 3 maart
5
Finalisten presenteren ontwerp voor Shift Landmark in Rotterdam
woensdag, 4 maart
Gerelateerde nieuwsberichten
Voormalig onderzoeksgebouw TU/e-campus open gemaakt voor Fontys-opleidingen
25 november 2019
Architecten|en|en realiseert schoolgebouw als driedelig maatpak
16 december 2020
Buro Lubbers breidt directie uit
23 mei 2024
Architect Arie van Rangelrooij overleden
28 april 2023
Historisch klooster in binnenstad Brugge wordt wooncomplex
20 juni 2023
Auditorium als centrale ontmoetingsplek op de ASML-campus
24 november 2022
Bloemendaal aan Zee krijgt nieuw hotel aan de duinen
3 januari 2022
Diederendirrix wint architectenselectie nieuwbouw poppodium Baroeg
20 juni 2023
Architectenbureau verbouwt cinema tot eigen kantoor
9 april 2020
Groep eigenaren diederendirrix en BureauEAU uitgebreid
12 september 2024
Being Development mag VDMA-terrein Eindhoven ontwikkelen
22 november 2019
Lichtfestival GLOW presenteert projecten uit eigen labs
30 oktober 2019
Gebouw Atlas winnaar Dirk Roosenburgprijs 2019
28 oktober 2019
AM ontwikkelt nieuw kantoorpand naast Station Eindhoven
15 oktober 2019
Twee plannen Bosrijk Eindhoven integreren woningen in landschap
24 september 2019
Team PosadMaxwan maakt ontwikkelplan centrum Eindhoven
3 september 2019
Nieuw plan voor The Dutch Mountains in Eindhoven
5 juni 2019
Strijp-S Eindhoven wint NEPROM-prijs
17 mei 2019
Gevarieerde woningbouw van KAW voor Tivoli Eindhoven
20 mei 2019
Overeenkomst voor herontwikkeling Eindhovense Bunker getekend
10 april 2019
Realisatie gebouwenensemble van JSA op Strijp-S nabij
19 maart 2019
Ontwikkeling VDMA-terrein Eindhoven: de runner-up
27 november 2019
UNStudio voorziet C&A-pand Eindhoven van opvallende glazen erkers
3 april 2020
Genomineerden BNA Beste Gebouw van het Jaar 2020 bekend
4 september 2020
Forum Groningen verkozen tot BNA Beste Gebouw van het Jaar
22 oktober 2020
Woongebouw met getrapte gevel van diederendirrix in spoorzone Strijp S klaar
11 november 2020
Woningbouw op oud industrieterrein Eindhoven klaar
13 november 2020
Kantoor voor handelsonderneming op prominente plek in Arnhem
10 februari 2021
Nominaties Dirk Roosenburgprijs 2021 bekend
20 mei 2021
Dirk Roosenburgprijs 2021 voor multifunctioneel centrum 't Karregat
15 oktober 2021
Uitbreiding geeft poppodium Nieuwe Nor prominentere uitstraling
20 juni 2022
Diederendirrix ontwerpt nieuw Archeologisch Depot in Nijmegen
27 maart 2023
Voormalig onderzoeksgebouw TU/e-campus open gemaakt voor Fontys-opleidingen
25 november 2019
Architecten|en|en realiseert schoolgebouw als driedelig maatpak
16 december 2020
Buro Lubbers breidt directie uit
23 mei 2024
Architect Arie van Rangelrooij overleden
28 april 2023
Historisch klooster in binnenstad Brugge wordt wooncomplex
20 juni 2023
Auditorium als centrale ontmoetingsplek op de ASML-campus
24 november 2022
Bloemendaal aan Zee krijgt nieuw hotel aan de duinen
3 januari 2022
Diederendirrix wint architectenselectie nieuwbouw poppodium Baroeg
20 juni 2023
Architectenbureau verbouwt cinema tot eigen kantoor
9 april 2020
Groep eigenaren diederendirrix en BureauEAU uitgebreid
12 september 2024
Being Development mag VDMA-terrein Eindhoven ontwikkelen
22 november 2019
Lichtfestival GLOW presenteert projecten uit eigen labs
30 oktober 2019
Gebouw Atlas winnaar Dirk Roosenburgprijs 2019
28 oktober 2019
AM ontwikkelt nieuw kantoorpand naast Station Eindhoven
15 oktober 2019
Twee plannen Bosrijk Eindhoven integreren woningen in landschap
24 september 2019
Team PosadMaxwan maakt ontwikkelplan centrum Eindhoven
3 september 2019
Nieuw plan voor The Dutch Mountains in Eindhoven
5 juni 2019
Strijp-S Eindhoven wint NEPROM-prijs
17 mei 2019
Gevarieerde woningbouw van KAW voor Tivoli Eindhoven
20 mei 2019
Overeenkomst voor herontwikkeling Eindhovense Bunker getekend
10 april 2019
Realisatie gebouwenensemble van JSA op Strijp-S nabij
19 maart 2019
Ontwikkeling VDMA-terrein Eindhoven: de runner-up
27 november 2019
UNStudio voorziet C&A-pand Eindhoven van opvallende glazen erkers
3 april 2020
Genomineerden BNA Beste Gebouw van het Jaar 2020 bekend
4 september 2020
Forum Groningen verkozen tot BNA Beste Gebouw van het Jaar
22 oktober 2020
Woongebouw met getrapte gevel van diederendirrix in spoorzone Strijp S klaar
11 november 2020
Woningbouw op oud industrieterrein Eindhoven klaar
13 november 2020
Kantoor voor handelsonderneming op prominente plek in Arnhem
10 februari 2021
Nominaties Dirk Roosenburgprijs 2021 bekend
20 mei 2021
Dirk Roosenburgprijs 2021 voor multifunctioneel centrum 't Karregat
15 oktober 2021
Uitbreiding geeft poppodium Nieuwe Nor prominentere uitstraling
20 juni 2022
Diederendirrix ontwerpt nieuw Archeologisch Depot in Nijmegen
27 maart 2023
Toon alles
Gerelateerde bedrijven
BURO LUBBERS Landschapsarchitectuur & Stedenbouw
Andere nieuwsberichten
Kanshebbers voor tiende editie Architectuurprijs Nijmegen bekend
1 uur geleden
De nominaties voor de Architectuurprijs Nijmegen 2026 zijn bekend. Voor de tiende editie van de Nijmeegse architectuurprijs komen evenzoveel projecten in aanmerking.
Finalisten presenteren ontwerp voor Shift Landmark in Rotterdam
4 uur geleden
Het gebouw in de toekomstige wijk Waterkant in Zuid moet mensen, bedrijven en andere organisaties inspireren tot een duurzame manier van leven en werken. De geraamde investering in het gebouw bedraagt 240 miljoen euro.
Nieuwe Hittekaart Woningmarkt 2026 van BPD toont aanhoudende woningdruk
Gisteren, 14:42
De nieuwe Hittekaart Woningmarkt 2026 die gebiedsontwikkelaar BPD maakte laat zien dat de druk op de woningmarkt met bijbehorende recordprijzen aanhoudt. De druk bleef ook in 2025 het grootst in de Randstad, gevolgd door de Bandstad daaromheen.
Bouw mobiliteitshub op voormalig Akzo-terrein Arnhem gaat van start
Gisteren, 13:59
Het bouwwerk naar ontwerp van opZoom architecten biedt plek aan 441 parkeerplaatsen, een commerciële ruimte en een energievoorziening. Het gebouw krijgt een gevel van houten lamellen en wordt aan alle zijden ingekleed met gevelbeplanting.
Amsterdam bouwde opnieuw minder woningen dan de bedoeling is
15 minuten geleden
Wethouder Steven van Weyenberg spreekt van een ‘sprong in de aantallen’, omdat er in 2025 beduidend meer huizen bijkwamen dan de jaren daarvoor.
Rijksvastgoedbedrijf zet eerste deelgebied nieuwe wijk Valkenhorst in Katwijk te koop
Gisteren, 15:26
Op deze locatie mogen de eerste 450 van de in totaal 5.600 woningen worden gebouwd.
Verkoopgolf van woningen door investeerders zet door
2 maart, 2:57
Investeerders hebben in het vierde kwartaal van vorig jaar de meeste woningen verkocht sinds 2021, meldt het Kadaster.
Nieuwe windmolens komen in Europa vooral op land
2 maart, 10:36
De uitbreiding van windenergie op zee blijft ver achter bij die op land in Europa, blijkt uit cijfers van brancheorganisatie WindEurope.
Onderzoek: kinderen spelen vaker buiten, groot verschil per plaats
27 februari, 5:04
Meer dan de helft van de kinderen geeft aan vaker buiten te willen spelen dan ze nu doen.
'Gemeenten gaan weer voor grondbezit'
27 februari, 1:45
Gemeenten zijn weer veel actiever bezig met het kopen van grond, zo blijkt uit onderzoek van BNR, met behulp van data-analyses van vastgoedadviseur Savills.
Ga naar het nieuws-archief
Ronnie Weessies
Redacteur
0
0
0
0
Voor een optimale gebruikservaring plaatst Architectenweb functionele cookies. Wat de verschillende cookies precies doen leggen we uit in een
overzicht
. Cookies van social media kun je optioneel
aanzetten
.
Akkoord
Instellingen
Annuleren
OK
Sluiten
Doorgaan
Inloggen
Maak een gratis persoonlijk account aan
Feedback
Feedback
Wij horen graag jouw feedback. Laat je reactie achter en eventueel jouw e-mail adres.
Reactie
Verstuur