Projecten
Producten
Bedrijven
Vacatures
Agenda
Awards
Podcasts
more_horiz
Videos
Magazine
Thema's
Favorieten
Profiel
Uitloggen
Copyright: BASE Photography
Copyright: BASE Photography
Copyright: BASE Photography
Copyright: BASE Photography
Copyright: BASE Photography
Copyright: BASE Photography
Copyright: BASE Photography
Copyright: BASE Photography
Copyright: BASE Photography
Copyright: BASE Photography
Copyright: BASE Photography
Copyright: BASE Photography
Copyright: BASE Photography
Copyright: BASE Photography
Copyright: BASE Photography
Copyright: BASE Photography
Copyright: BASE Photography
Copyright: BASE Photography
Copyright: BASE Photography
Copyright: BASE Photography
Copyright: BASE Photography
Copyright: BASE Photography
Copyright: BASE Photography
Fontys Nexus duurzame layout
Copyright: architecten|en|en, EGM architecten en Studio Groen+Schild
Fontys Nexus souterrain als verbindingsplek
Copyright: architecten|en|en, EGM architecten en Studio Groen+Schild
Fontys Nexus trappenstelsel
Copyright: architecten|en|en, EGM architecten en Studio Groen+Schild
Fontys Nexus verbinding met de andere gebouwen
Copyright: architecten|en|en, EGM architecten en Studio Groen+Schild
Fontys Nexus zicht op Brainport
Copyright: architecten|en|en, EGM architecten en Studio Groen+Schild
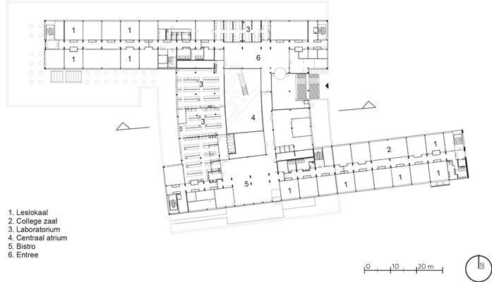
Fontys Nexus eerste verdieping
Copyright: architecten|en|en, EGM architecten en Studio Groen+Schild
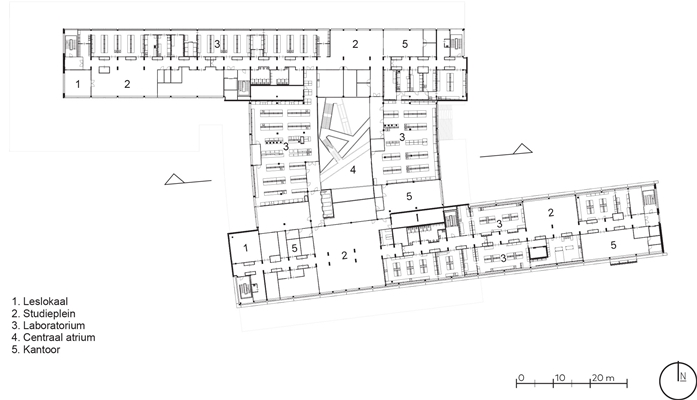
Fontys Nexus tweede verdieping
Copyright: architecten|en|en, EGM architecten en Studio Groen+Schild
Fontys Nexus situatie
Copyright: architecten|en|en, EGM architecten en Studio Groen+Schild
Voormalig onderzoeksgebouw TU/e-campus open gemaakt voor Fontys-opleidingen
25 november 2019, 16:44
Het voormalige TNO-onderzoeksgebouw op de campus van de Technische Universiteit Eindhoven (TU/e) is getransformeerd tot een open en inspirerend onderwijsgebouw voor drie instituten van Fontys. Daartoe hebben
architecten|en|en
,
EGM architecten
en
Studio Groen+Schild
een aantal stevige ingrepen gedaan.
Het onderzoekgebouw oogde als een gesloten wereld, waarin 500 medewerkers hun plek hadden in de labs en kantoren, gelegen aan lange gangen. De opgave voor de drie architectenbureaus bestond erin het pand om te vormen tot een inspirerende, uitnodigende en toekomstbestendige leeromgeving voor 2.500 studenten.
Verblijfskwaliteit
Drie instituten moesten hun plek krijgen in het getransformeerde gebouw; Engineering, Toegepaste Natuurwetenschappen en Bedrijfsmanagement, Educatie en Techniek moesten alle hun plek krijgen in het gebouw, dat ook meteen een nieuwe naam kreeg: Fontys Nexus. Voor drie instituten leek het gebouw van 30.000 m
2
aanvankelijk te klein.
Architecten|en|en, EGM en Studio Groen+Schild hebben een oplossing gevonden in het geven van verblijfskwaliteit aan het donkere souterrain. Door het aanbrengen van grote gaten in de begane grondvloer en het dak, valt het daglicht nu rijkelijk binnen.
In het souterrain is het automotive-onderwijs, onderdeel van Engineering, ondergebracht. Engineering heeft verder een plek gekregen op de begane grond. De laboratoria voor Toegepaste Natuurwetenschappen zijn op de tweede verdieping en de richting Bedrijfsmanagement is op de bovenverdieping gesitueerd.
Gemeenschappelijke laag
Met de verdeling van de opleidingen over de verdiepingen hebben de architecten de grote diversiteit aan onderwijsvormen kunnen faciliteren. De eerste verdieping fungeert daarbij als een gemeenschappelijke laag, die bovendien toekomstige wijzigingen in bijvoorbeeld de onderlinge verhoudingen tussen de instituten kan opvangen.
Door de bestaande lange gangen op strategische plekken open te breken hebben de architecten de opzet van de verschillende verdiepingen gestructureerd en ruimte gecreëerd voor leerpleinen. Deze ruimten zijn met elkaar verbonden door een ‘lint’ in de vorm van een zwart stalen frame.
Dit frame duikt in het hele gebouw op en neemt steeds andere vormen aan; op die manier biedt het uiteenlopende ontmoetings- en (samen)werkplekken.
Visitekaartje
De hoofdentree hebben de architecten verplaatst van de begane grond naar de eerste verdieping. Daardoor kom je binnen op de gemeenschappelijk laag en letterlijk tussen de verschillende opleidingen. Op stedenbouwkundig niveau koppelen de architecten hiermee bovendien Fontys Nexus aan de groene loper en de andere onderwijsgebouwen van de TU/e.
Het atrium vormt het hart van het onderwijsgebouw. In deze voorheen lege ruimte hebben de drie architectenbureaus een stelsel van trappen en loopbruggen geïntroduceerd, wat het atrium tot een dynamische ontmoetingsplek maakt. Langs deze route etaleren de opleidingen zich, waardoor het atrium ook een visitekaartje van Fontys Nexus is.
Als sluitstuk van de transformatie, zo leggen de architecten uit, is de installatieverdieping ingezet als bijzondere onderwijsomgeving. De onderwijsruimten, waaronder een collegezaal, geven ook uitzicht op Brainport; het geeft de studenten als het ware een blik op hun mogelijk toekomst.
Trefwoorden
architecten|en|en
brainport eindhoven
fontys hogescholen
onderwijs
campus
transformatie
onderwijsgebouw
studio groen+schild
technische universiteit eindhoven
eindhoven
fontys nexus
egm architecten
Locatie
Best gelezen
1
Plan voor nieuwe buurt op plek hoofdkantoor ABN AMRO op de Zuidas
vrijdag, 10 oktober
2
Flat Amsterdam-Noord 'aangekopt' met 53 seniorenwoningen
donderdag, 9 oktober
3
‘Alexander Straub zet grote groep vakgenoten weg als niet-relevant’
vrijdag, 10 oktober
4
bureau SLA ontdekt, transformeert en gebruikt rijksmonumentale werkplaats
donderdag, 9 oktober
5
Vier genomineerden voor de Abe Bonnema Architectuurprijs 2025
woensdag, 8 oktober
Gerelateerde nieuwsberichten
DomusDela in voormalig klooster Mariënhage geopend
25 november 2019
Voormalige productiehal biedt onderdak aan Turmac Cultuurfabriek
3 november 2020
Architecten|en|en realiseert schoolgebouw als driedelig maatpak
16 december 2020
Civic, VDNDP & Groen+Schild winnen selectie universiteitsgebouw ITC
29 oktober 2019
Brabants initiatief wil innovatief vervoersysteem tussen Brainportcampussen
11 november 2020
Kliniek als villa in het bos door EGM
11 november 2019
Compact en robuust kantoor voor Scheepswerf Slob
16 november 2018
Getransformeerde campus Fontys Hogescholen Eindhoven officieel geopend
7 maart 2024
Nieuw Erasmus MC officieel geopend
11 september 2018
Architecten|en|en benoemt nieuwe associate partner
29 september 2021
Groen+Schild vernieuwt huis voor de amateurkunst in Eindhoven
21 maart 2018
Duurzame en aangename thuisbasis voor Rotterdam Business School
15 februari 2024
Toekomstbestendig schoolgebouw met opvallende facetten
21 maart 2018
Realisatie nieuw faculteitsgebouw van Universiteit Twente gestart
7 juni 2021
Herbestemming oude klooster Mariënhage Eindhoven van start
22 februari 2018
Twee rijksmonumentale pakhuizen met zorg verbouwd en verduurzaamd door Studio Groen+Schild
8 april
Auditorium als centrale ontmoetingsplek op de ASML-campus
24 november 2022
Studenten- en starterscomplex Hamsterhof streeft naar gemeenschapsgevoel
20 augustus 2024
Architect Arie van Rangelrooij overleden
28 april 2023
Architecten|en|en voorziet praktijkgerichte school van sheddaken
8 november 2023
Nieuw algemeen ziekenhuis Curaçao in gebruik genomen
12 december 2019
EGM architecten ontwerpt politiedistrictskantoor in Middelburg
8 mei 2020
Vernieuwd stadhuis en stadskantoor Hengelo in gebruik genomen
5 juni 2020
Overzichtelijk en vriendelijk Oogcentrum door EGM architecten
29 juni 2020
Orthopedisch Centrum naar ontwerp van EGM geopend
6 juli 2020
EGM architecten presenteert opgeleverd Rosa Spier Huis
28 augustus 2020
Omvangrijke renovatie Ledeganck-complex van Universiteit Gent afgerond
9 november 2020
Transformatie Fontys-campus Eindhoven gaat van start
1 december 2020
Robuuste uitbreiding van schoolcomplex door architecten|en|en
1 februari 2021
Vernieuwing Koning Willem II College in Tilburg naar ontwerp architecten|en|en
15 februari 2021
Architecten|en|en ontwerpt kantoor Cure Afvalbeheer met hergebruik
23 maart 2021
Nieuw OK-complex bovenop parkeergarage Reinier de Graaf Gasthuis
7 april 2021
Studio Groen+Schild transformeert een reinwaterkelder tot woning
24 juni 2021
EGM brengt Ronald McDonald Huiskamer onder in zwevende 'kiezelstenen'
26 november 2021
Natuurhuis van architecten|en|en heeft prefab muren met stro
23 mei 2022
Architecten|en|en ontwerpt nieuwbouw voor breed onderwijsaanbod
20 juni 2022
Ensemble van ontvangstpaviljoens voor Brabantse natuurbegraafplaats
24 juni 2022
Beschut gelegen woningbouwproject in hartje Eindhoven
13 maart 2023
Opvallende stadswoningen toegevoegd aan een gevarieerde straat
26 april 2023
DomusDela in voormalig klooster Mariënhage geopend
25 november 2019
Voormalige productiehal biedt onderdak aan Turmac Cultuurfabriek
3 november 2020
Architecten|en|en realiseert schoolgebouw als driedelig maatpak
16 december 2020
Civic, VDNDP & Groen+Schild winnen selectie universiteitsgebouw ITC
29 oktober 2019
Brabants initiatief wil innovatief vervoersysteem tussen Brainportcampussen
11 november 2020
Kliniek als villa in het bos door EGM
11 november 2019
Compact en robuust kantoor voor Scheepswerf Slob
16 november 2018
Getransformeerde campus Fontys Hogescholen Eindhoven officieel geopend
7 maart 2024
Nieuw Erasmus MC officieel geopend
11 september 2018
Architecten|en|en benoemt nieuwe associate partner
29 september 2021
Groen+Schild vernieuwt huis voor de amateurkunst in Eindhoven
21 maart 2018
Duurzame en aangename thuisbasis voor Rotterdam Business School
15 februari 2024
Toekomstbestendig schoolgebouw met opvallende facetten
21 maart 2018
Realisatie nieuw faculteitsgebouw van Universiteit Twente gestart
7 juni 2021
Herbestemming oude klooster Mariënhage Eindhoven van start
22 februari 2018
Twee rijksmonumentale pakhuizen met zorg verbouwd en verduurzaamd door Studio Groen+Schild
8 april
Auditorium als centrale ontmoetingsplek op de ASML-campus
24 november 2022
Studenten- en starterscomplex Hamsterhof streeft naar gemeenschapsgevoel
20 augustus 2024
Architect Arie van Rangelrooij overleden
28 april 2023
Architecten|en|en voorziet praktijkgerichte school van sheddaken
8 november 2023
Nieuw algemeen ziekenhuis Curaçao in gebruik genomen
12 december 2019
EGM architecten ontwerpt politiedistrictskantoor in Middelburg
8 mei 2020
Vernieuwd stadhuis en stadskantoor Hengelo in gebruik genomen
5 juni 2020
Overzichtelijk en vriendelijk Oogcentrum door EGM architecten
29 juni 2020
Orthopedisch Centrum naar ontwerp van EGM geopend
6 juli 2020
EGM architecten presenteert opgeleverd Rosa Spier Huis
28 augustus 2020
Omvangrijke renovatie Ledeganck-complex van Universiteit Gent afgerond
9 november 2020
Transformatie Fontys-campus Eindhoven gaat van start
1 december 2020
Robuuste uitbreiding van schoolcomplex door architecten|en|en
1 februari 2021
Vernieuwing Koning Willem II College in Tilburg naar ontwerp architecten|en|en
15 februari 2021
Architecten|en|en ontwerpt kantoor Cure Afvalbeheer met hergebruik
23 maart 2021
Nieuw OK-complex bovenop parkeergarage Reinier de Graaf Gasthuis
7 april 2021
Studio Groen+Schild transformeert een reinwaterkelder tot woning
24 juni 2021
EGM brengt Ronald McDonald Huiskamer onder in zwevende 'kiezelstenen'
26 november 2021
Natuurhuis van architecten|en|en heeft prefab muren met stro
23 mei 2022
Architecten|en|en ontwerpt nieuwbouw voor breed onderwijsaanbod
20 juni 2022
Ensemble van ontvangstpaviljoens voor Brabantse natuurbegraafplaats
24 juni 2022
Beschut gelegen woningbouwproject in hartje Eindhoven
13 maart 2023
Opvallende stadswoningen toegevoegd aan een gevarieerde straat
26 april 2023
Toon alles
Gerelateerde bedrijven
Studio Groen+Schild
Architectuur en interieurarchitectuur
Andere nieuwsberichten
Architect@Work strijkt 30 en 31 oktober neer in De Kromhouthal in Amsterdam
1 uur geleden
Op donderdag 30 en vrijdag 31 oktober 2025 vindt Architect@Work plaats in De Kromhouthal in Amsterdam-Noord. Het wordt de tweede editie van het event in de metropoolregio Amsterdam en Architectenweb organiseert er weer een sprekersprogramma.
Bureau POLO geselecteerd als architect voor nieuw dienstencentrum in Beerse
Gisteren, 13:56
Het bureau POLO heeft een voorontwerp voor een nieuw gemeentelijk dienstencentrum van de gemeente Beerse gemaakt. Het project kwam, in opdracht van de gemeente, tot stand in samenwerking met ontwikkelaar en bouwer Groep Van Roey.
PosadMaxwan en Civic Architects maken plan voor herontwikkeling KMS-terrein Hengelo
Gisteren, 12:16
De gemeente heeft de grond deze zomer aangekocht en gaat in samenwerking met ontwikkelaar Trebbe het historische industriegebied herontwikkelen.
Nieuw shortstayhotel door Houben / Van Mierlo in stationsgebied Den Bosch
13 oktober, 1:47
Het shortstayhotel met 34 studio’s is gebouwd op de plek van het gesloopte Hotel Terminus. De voorgevel is ontworpen op basis van een analyse van de voorgevel van het oude hotel.
Pararius: huurmarkt zit op slot, huren stijgen verder
32 minuten geleden
De vrije sector huurmarkt zit nog altijd ‘compleet op slot’, meldt woningplatform Pararius op basis van cijfers over het derde kwartaal.
PBL: Ook nieuw plan voor circulaire economie is niet genoeg
Gisteren, 14:42
In de nieuwe versie van het zogeheten Nationaal Programma Circulaire Economie staan ‘vooral veel intenties en plannen’, schrijft het planbureau.
Bossen en bodems in zwaar weer, klimaatraad maakt zich zorgen
Gisteren, 10:24
De klimaatverandering versnelt en de biodiversiteit gaat hard achteruit, terwijl er volgens de WKR steeds meer van de bossen en bodems wordt gevraagd.
'Helft investeerders spendeert opbrengsten verkochte huurhuizen in buitenland'
13 oktober, 2:41
Bijna de helft van de vastgoedinvesteerders die in Nederland huurwoningen van de hand doen, investeert de opbrengsten liever in het buitenland.
Duitsland slokt Nederlandse bouwkracht op
13 oktober, 11:16
De Duitse plannen voor honderden miljarden aan bouwinvesteringen zetten Nederland klem, waarschuwt ABN AMRO.
Renovatie en vernieuwing Fierenshoven beloond met Vlaamse opdrachtgeversprijs
10 oktober, 3:27
Het project naar ontwerp van Happel Cornelisse Verhoeven in samenwerking met Molenaar & Co architecten ontving de Prijs Wivina Demeester 2025.
Ga naar het nieuws-archief
Robert Muis
Redacteur
0
0
0
0
Voor een optimale gebruikservaring plaatst Architectenweb functionele cookies. Wat de verschillende cookies precies doen leggen we uit in een
overzicht
. Cookies van social media kun je optioneel
aanzetten
.
Akkoord
Instellingen
Annuleren
OK
Sluiten
Doorgaan
Inloggen
Maak een gratis persoonlijk account aan
Feedback
Feedback
Wij horen graag jouw feedback. Laat je reactie achter en eventueel jouw e-mail adres.
Reactie
Verstuur