Projecten
Producten
Bedrijven
Vacatures
Agenda
Awards
Podcasts
more_horiz
Videos
Magazine
Thema's
Favorieten
Profiel
Uitloggen
Abonneer je nu op onze nieuwsbrieven!
Abonneren
Nee, bedankt
Ja, denk met me mee rond de
materialisering van mijn project
Copyright: Civic Architects, Artefactory
Copyright: Civic Architects, Artefactory
Copyright: Civic Architects, Artefactory
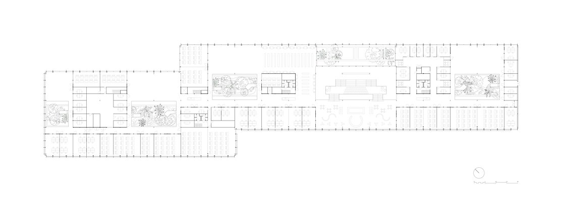
Begane grond
Copyright: Civic Architects
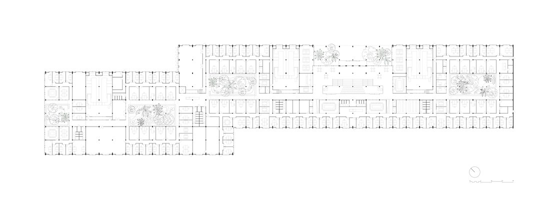
Eerste verdieping
Copyright: Civic Architects
Doorsnede
Copyright: Civic Architects
Realisatie nieuw faculteitsgebouw van Universiteit Twente gestart
7 juni 2021, 13:00
Op de campus van de Universiteit Twente in Enschede is de bouw gestart van het nieuwe faculteitsgebouw voor ITC. Het bestaande casco van een voormalig laboratoriumgebouw biedt de basis voor het ontwerp van
Civic Architects
,
VDNDP
en
Studio Groen+Schild
.
De faculteit ITC, voor geo-informatiewetenschappen en aardobservatie, wil van haar huidige locatie nabij de binnenstad verhuizen naar de UT-campus Drienerlo. De faculteit gaat daar haar intrek nemen in bestaande gebouw; voor de benodigde transformatie werd een competitie uitgeschreven die in oktober 2019 is gewonnen door Civic Architects, VDNDP en Studio Groen+Schild.
De faculteit krijgt haar onderkomen in het casco van Langezijds, een voormalig laboratoriumgebouw van 220 meter lang en 38 meter diep. Het gebouw, rond 1970 gerealiseerd naar ontwerp van S.J. van Embden en J.L. Choisy, bestaat uit een lage betonnen begane grond en een hoge stalen verdieping. Beneden huisvestte het gebouw de kantoren, op de verdieping de laboratoria.
Met bestaande constructie
Dit pand gaat plaats bieden aan onderwijsruimten, laboratoria, een groot studiecentrum, kantoren en een restaurant. Het ontwerpteam behoudt daarbij de oorspronkelijke constructie van Langezijds, zij het dat de architecten een cruciale ingreep doen. Middels grote sneden creëren ze vier atria van 12 bij 24 meter.
De atria brengen daglicht en verse lucht in het gebouw, bieden plek bieden voor groen en dragen bij aan een heldere oriëntatie in het pand. Door een van de atria aan de gevel te leggen krijgt het ITC een eigen adres, precies op de plek waar twee belangrijke assen op de campus elkaar treffen. Hier plooit als het ware het groene landschap naar binnen.
Robuust
Bij de transformatie wil het ontwerpteam de ruwe beton- en staalconstructie in het zicht laten. “Die heeft een karakter dat met nieuwbouw nooit te evenaren is”, aldus het ontwerpteam. Zaagsneden zijn straks in het voltooide gebouw te zien, blaken steken door naar buiten en kolommen staan als van een ruïne in de atria, leggen de architecten uit.
De beplanting groeit over de constructie heen en nieuwe trappen hangen eraan vast, legt het team verder uit. De nieuwe elementen voegen zich naar de oorspronkelijke architectonische logica van ‘sticks & beams’. De architecten kiezen in het interieur voor robuuste materialen – die niet worden geverfd – en streven tegelijkertijd naar verfijnde details.
De gevel varieert op de oorspronkelijke structuur van de betonnen onderbouw en de glazen verdieping, met een subtiele ritmiek van uitstekende gevelstijlen met verdiepte neggen voor de te openen delen. De atria verlichten het gebouw van binnen naar buiten, aldus de architecten.
Indeling
De wetenschappelijke departementen liggen rondom de groene atria. Onderwijsruimten, kantoren, laboratoria en studieplekken zijn gemengd. Tussen de atria en de gevel zijn open studielandschappen gesitueerd. Rond de entree liggen de meer publieke functies: een trap annex presentatieruimte, het restaurant en de bibliotheek.
De begane grond biedt gebruikers ruimten voor concentratie. Op de verdieping liggende grotere vertrekken en is er ruimte voor ontmoeting. Een brede binnestraat verbindt hier alle ontmoetingsplekken.
Beleefbaar duurzaam
“Het slim omgaan met bestaande eigenschappen legt de basis voor een beleefbaar duurzaam gebouw”, stellen de architecten. De vier atria vormen kleine ecosystemen voor flora en fauna. “De planten staan er in de volle grond, regenwater loopt van de glazen daken zo de vijvers in.”
De zuidgevel wordt voorzien van horizontale zonwering om opwarming van het interieur in de zomer en beeldschermreflectie in de winter te voorkomen. Om het binnenklimaat te regelen kunnen gebruikers de ramen openen.
Het nieuwe ontwerp bundelt de installaties voor beide verdiepingen in een ‘plenum’ boven op de verdiepingsvloer. Hierdoor heeft de begane grond geen luchtkanalen en kunnen de architecten het karakteristieke bimsplafond op de verdieping in het zicht houden.
Team
Civic treedt op als projectarchitect, Studio Groen+Schild is de interieurarchitect en VDNDP is de ontwerpmanager en verantwoordelijke voor het technisch ontwerp. DS Landschapsarchitecten ontwerpen de binnentuinen. Verdere betrokken partijen zijn Arup (bouwfysica), Valstar Simonis (installaties), Schreuders bouwadvies (constructie), Joost de Beij (lichtadvies) en Buro Loo (adviseur duurzaamheid UT).
Bouwcombinatie Dura Vermeer Bouw Hengelo/Trebbe en Croonwolter&dros zijn verantwoordelijk voor de realisatie. In totaal beslaat het project 13.783 m
2
BVO.
Trefwoorden
faculteitsgebouw
transformatie
universiteit twente
vdndp
langezijds
civic architects
constructie
studio groen+schild
enschede
Locatie
Best gelezen
1
André Kempe: ‘Het ging Oliver Thill om het geven van betekenis’
vrijdag, 6 maart
2
Kantoorcomplex door Goof Spruit bij station Utrecht krijgt tweede leven als De Nieuwe Tuin
woensdag, 11 maart
3
Woongebouw door van Bergen Kolpa vormt nieuwe markering langs bocht Rotte
dinsdag, 10 maart
4
Werkstatt gaat verder zonder medeoprichter Niels Groeneveld
vrijdag, 6 maart
5
Gerenoveerd Valkhof Museum heropent deuren op 6 juni
dinsdag, 10 maart
Gerelateerde nieuwsberichten
Civic, VDNDP & Groen+Schild winnen selectie universiteitsgebouw ITC
29 oktober 2019
Een hergebruikt en duurzaam thuis voor geowetenschappers
27 september 2023
Bouw CUBE op campus Universiteit Twente gestart
2 oktober 2023
Civic Architects maakt ontwerp voor herbestemming Centrale Markthal Amsterdam
2 februari 2021
Onderzoeksvoorstel BURA en Civic wint Highrise Innovation Award
26 januari 2021
Voormalige productiehal biedt onderdak aan Turmac Cultuurfabriek
3 november 2020
Civic maakt geslaagde verbinding van historie met heden in Schoenenkwartier
12 juli 2022
Ingetogen woning als rustpunt aan de bosrand
29 november 2022
Civic Architects: ‘Publieke plekken zijn belangrijker dan ooit’
10 september 2020
LocHal onderscheiden met Europa Nostra Award
8 mei 2020
Voormalig onderzoeksgebouw TU/e-campus open gemaakt voor Fontys-opleidingen
25 november 2019
Civic wint selectie museum Waalwijk
19 februari 2019
Nautisch baken voor Buiksloterham
26 juni 2023
Civic Architects vormt oud abattoir in Luxemburg om tot cultuurhal
19 september 2023
Civic Architects
1 september 2024
Vernieuwing collegezalengebouw 'De Schotel' naar ontwerp van Civic Architects afgerond
9 september 2025
Groen+Schild vernieuwt huis voor de amateurkunst in Eindhoven
21 maart 2018
Studio Groen+Schild gevestigd in Grijze Silo
11 juli 2017
Studio Groen+Schild transformeert een reinwaterkelder tot woning
24 juni 2021
Winnend plan van Civic Architects, BC architects en AWB voor cultuurcentrum Brussel
14 september 2021
Woonbuurt in 'Italiaanse' sfeer voor Enschedese wijk
4 oktober 2021
FC Twente wil trainingscomplex op plek oude stadion
22 september 2022
Collegezalengebouw Gorlaeus-laboratoria Leiden ondergaat vernieuwing
2 januari 2023
WaterLab Universiteit Twente ontworpen als 'vitrine' voor onderzoekers
14 april 2023
Civic, VDNDP & Groen+Schild winnen selectie universiteitsgebouw ITC
29 oktober 2019
Een hergebruikt en duurzaam thuis voor geowetenschappers
27 september 2023
Bouw CUBE op campus Universiteit Twente gestart
2 oktober 2023
Civic Architects maakt ontwerp voor herbestemming Centrale Markthal Amsterdam
2 februari 2021
Onderzoeksvoorstel BURA en Civic wint Highrise Innovation Award
26 januari 2021
Voormalige productiehal biedt onderdak aan Turmac Cultuurfabriek
3 november 2020
Civic maakt geslaagde verbinding van historie met heden in Schoenenkwartier
12 juli 2022
Ingetogen woning als rustpunt aan de bosrand
29 november 2022
Civic Architects: ‘Publieke plekken zijn belangrijker dan ooit’
10 september 2020
LocHal onderscheiden met Europa Nostra Award
8 mei 2020
Voormalig onderzoeksgebouw TU/e-campus open gemaakt voor Fontys-opleidingen
25 november 2019
Civic wint selectie museum Waalwijk
19 februari 2019
Nautisch baken voor Buiksloterham
26 juni 2023
Civic Architects vormt oud abattoir in Luxemburg om tot cultuurhal
19 september 2023
Civic Architects
1 september 2024
Vernieuwing collegezalengebouw 'De Schotel' naar ontwerp van Civic Architects afgerond
9 september 2025
Groen+Schild vernieuwt huis voor de amateurkunst in Eindhoven
21 maart 2018
Studio Groen+Schild gevestigd in Grijze Silo
11 juli 2017
Studio Groen+Schild transformeert een reinwaterkelder tot woning
24 juni 2021
Winnend plan van Civic Architects, BC architects en AWB voor cultuurcentrum Brussel
14 september 2021
Woonbuurt in 'Italiaanse' sfeer voor Enschedese wijk
4 oktober 2021
FC Twente wil trainingscomplex op plek oude stadion
22 september 2022
Collegezalengebouw Gorlaeus-laboratoria Leiden ondergaat vernieuwing
2 januari 2023
WaterLab Universiteit Twente ontworpen als 'vitrine' voor onderzoekers
14 april 2023
Toon alles
Andere nieuwsberichten
Nieuwe woonwijk bij Istanbul omvat bijdragen van BIG, MVRDV en Snøhetta
Gisteren, 16:20
De Turkse ontwikkelaar Ion heeft de bouw van een nieuwe, 84 hectare grote, woonwijk nabij Istanbul aangekondigd. Het plan zet in op een duurzame en mensgerichte ontwikkeling en rekent zich rijk met ontwerpbijdragen van BIG, MVRDV en Snøhetta.
Architectenweb symposium: ontwerpen van autovrije buurten
Gisteren, 11:30
Welke ruimtelijke en sociale kansen ontstaan er wanneer we buurten ontwerpen met honderden tot duizenden woningen waar in de openbare ruimte geen auto te zien is? En hoe overwin je de uitdagingen die daarbij komen kijken?
Cepezed ontwerpt houten rijkskantoor aan Juliana van Stolberglaan in Den Haag
Gisteren, 10:23
De negentien verdiepingen tellende toren, ontworpen door cepezed en cepezedinterieur, is bedoeld voor het ministerie van OCW en uitvoeringsorganisatie DUO.
Groningen stelt gebiedsvisie voor wijk De Nieuwe Held vast
11 maart, 3:45
In vijftien jaar tijd wil de gemeente 1.850 woningen bouwen in de nieuwe wijk aan de westkant van de stad. De verwachting is dat de bouw eind 2027, begin 2028 kan starten.
Experts: versnel energietransitie en hou Gronings gas als airbag
Gisteren, 13:58
Dat is nodig om minder afhankelijk te worden van andere landen, stellen 22 experts die gespecialiseerd zijn in veiligheid en energie.
Wet die leegstandheffing mogelijk maakt volgende week van kracht
Gisteren, 11:35
Gemeenten mogen zelf bepalen of ze de belasting invoeren en hoe hoog die dan wordt.
Raad van State blokkeert plan voor verbouwing ring Utrecht
11 maart, 4:31
Vorig jaar kreeg het kabinet de opdracht om de stikstofuitstoot van het project beter uit te leggen, maar dat is niet gelukt.
Provincie akkoord met natuurherstel voor nieuwe ASML-campus
11 maart, 12:30
De provincie Noord-Brabant stemt in met het plan waarmee chipmachinefabrikant ASML natuur wil compenseren bij de realisatie van de nieuwe campus.
CBS: uitstoot gestegen in 2025, klimaatdoelen verder uit zicht
11 maart, 9:20
Vorig jaar werd er 0,8 procent meer broeikasgassen uitgestoten dan in 2024.
Renovatie Belgisch Justitiepaleis loopt op tot zeshonderd miljoen euro
10 maart, 2:33
Het Justitiepaleis in Brussel is ruim 140 jaar oud en staat al meer dan veertig jaar in de steigers.
Ga naar het nieuws-archief
Robert Muis
Redacteur
1
0
0
0
Voor een optimale gebruikservaring plaatst Architectenweb functionele cookies. Wat de verschillende cookies precies doen leggen we uit in een
overzicht
. Cookies van social media kun je optioneel
aanzetten
.
Akkoord
Instellingen
Annuleren
OK
Sluiten
Doorgaan
Inloggen
Maak een gratis persoonlijk account aan
Feedback
Feedback
Wij horen graag jouw feedback. Laat je reactie achter en eventueel jouw e-mail adres.
Reactie
Verstuur