Abonneer je nu op onze nieuwsbrieven!
Abonneren
Nee, bedankt
Ja, denk met me mee rond de
materialisering van mijn project
Copyright: Stijn Bollaert
Copyright: Stijn Bollaert
Copyright: Stijn Bollaert
Copyright: Stijn Bollaert
Copyright: Stijn Bollaert
Copyright: Stijn Bollaert
Copyright: Stijn Bollaert
Copyright: Stijn Bollaert
Copyright: Stijn Bollaert
Copyright: Stijn Bollaert
Copyright: Stijn Bollaert
Copyright: Stijn Bollaert
Copyright: Stijn Bollaert
Het Langezijds-gebouw tijdens de de transformatie
Copyright: Civic Architects
Het Langezijds-gebouw tijdens de de transformatie
Copyright: Jeroen Verplanke
Het Langezijds-gebouw tijdens de de transformatie
Copyright: Jeroen Verplanke
Situatie
Copyright: Civic Architects
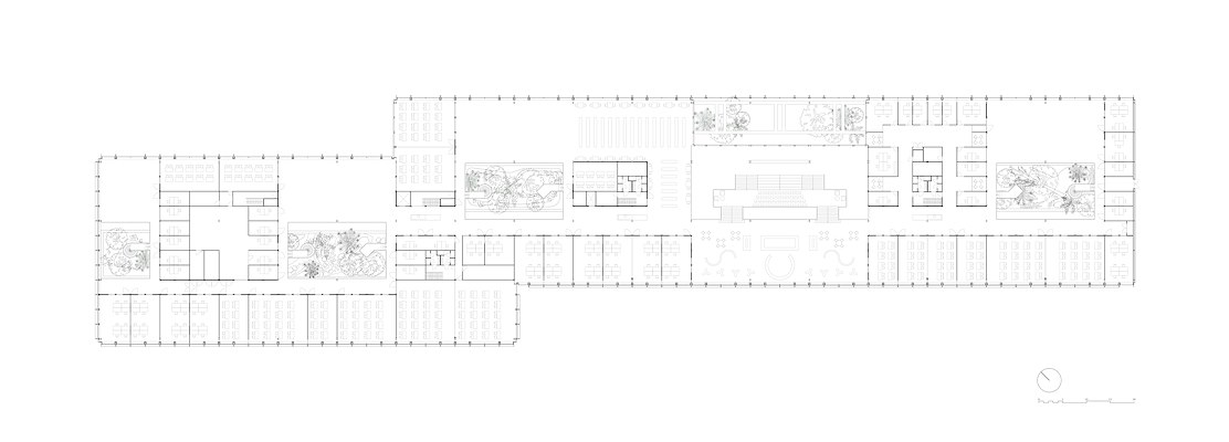
Begane grond
Copyright: Civic Architects
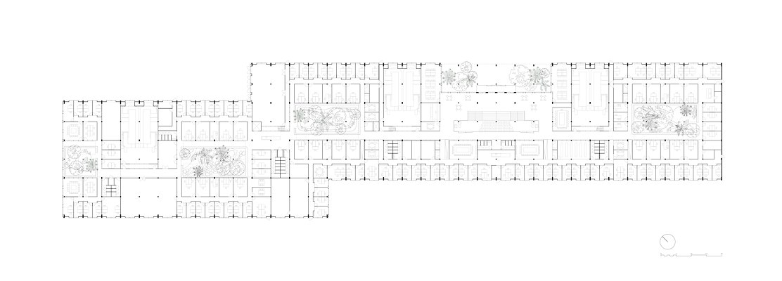
Verdieping
Copyright: Civic Architects
Doorsnede
Copyright: Civic Architects
Copyright: Civic Architects
Een hergebruikt en duurzaam thuis voor geowetenschappers
De Faculty of Geo-Information Science and Earth Observation, kortweg aangeduid als ITC, is onlangs verhuisd vanuit het centrum van de stad naar de campus van de Universiteit Twente in Enschede. Het voormalige laboratoriumgebouw Langezijds moest daartoe eerst geschikt worden voor onderwijs. De competitie die voor de herbestemming werd uitgeschreven, is in september 2019 gewonnen door het team van Civic Architects, Studio Groen+Schild, VDNDP en DS Landschapsarchitecten. Het gebouw van ruim 13.600 m2 biedt plaats aan onderwijsruimten, labs, kantoren, een studiecentrum, een restaurant en drie royale patiotuinen. De bestaande constructie vormde de ruggengraat van het herontwerp naar een duurzaam symbool.
ITC is een bijzondere faculteit, zegt Ellen Schild, directeur-architect bij Studio Groen+Schild. Het is een faculteit met voornamelijk masterstudenten en een sterk internationale populatie, zo merkte het ontwerpteam toen ze in het oude onderkomen van de faculteit, in het centrum van Enschede, ging kijken. “Die studenten zijn een groot deel van de dag op de faculteit aan het werken of leren en velen verblijven in Enschede in het ITC-hotel. Nog veel meer dan andere faculteiten is ITC een echte gemeenschap.”

Rick ten Doeschate, mede-oprichter-architect van Civic Architects: “We hadden meteen het idee dat we daarom ook een plek moesten maken die anders is dan andere faculteitsgebouwen. Vanaf dat moment hebben we het complete ontwerp opgebouwd rond vier thema’s, die verbonden zijn met het ITC en waaraan we ook het hele ontwerptraject hebben vastgehouden.” De vier thema’s waren: het betreft de transformatie van een bestaande gebouw, het wordt een herkenbaar adres voor de faculteit op de campus, het wordt een duurzaam, gezond en groen gebouw en de architectuur geeft daar uitdrukking aan, en tot slot: maak voor deze gemeenschap van internationale studenten, onderzoekers en docenten een ontmoetingsplek en een thuisadres.
Transformatie
Dat de faculteit koos voor een transformatie van een bestaand gebouw in plaats van nieuwbouw sluit aan bij haar vele onderzoeken naar verduurzaming. Beoogde nieuwe huisvesting was het gebouw Langezijds op campus Drienerlo. Langezijds is een voormalig laboratoriumgebouw, opgeleverd in 1972 naar ontwerp van de architecten Choisy en Van Embden. Het gebouw is extreem lang (220 meter) en diep (38,5 meter), met een lage begane grond waar voornamelijk opslag- en installatieruimtes waren ondergebracht en een hoge verdieping, met de labs “onder een licht dak dat er makkelijk afgeblazen kon worden”, vertelt Ten Doeschate. Dat maakte het casco karakteristiek, maar ook ongeschikt voor modern onderwijs.

“Toch wilden we dat bijzondere karakter omarmen”, zegt Ten Doeschate, “We hebben ingezet op het behoud van de basisconstructie en de eigenschappen daarvan, en met één sleutelingreep het casco geschikt gemaakt voor het nieuwe gebruik.” Die ingreep is het creëren van vier atria, uitgezaagd uit de constructie, die zorgen voor daglicht, frisse lucht en groen.
Adres op de campus
De ingreep waarbij in het 220 meter lange gebouw als het ware vier atria zijn geponst, heeft het ontwerpteam ook gebruikt om het vernieuwde gebouw te verbinden met zijn omgeving. De campus is aangelegd volgens een stedenbouwkundig plan van Van Embden en Van Tijen uit de jaren 1960, dat een orthogonaal grid met strikt gescheiden functies over het oude landgoed Drienerlo legde. De samenhang in het plan was in de loop der decennia wat verwaterd en er waren twee centra ontstaan. De universiteit wilde die centra met elkaar verbinden en het ontwerpteam heeft middels het ITC-gebouw daaraan een bijdrage willen leveren.

Het idee van de universiteit was om de entree te situeren aan een van de uiteinden waar het ITC zou grenzen aan een ander gebouwdeel; de architecten besloten de toegang te verplaatsen naar één van de atria, in het midden van de noordelijke langszijde. Daarmee kwam de entree te liggen op een oude as, werd de verbinding tussen het Onderwijs- en Onderzoekcentrum en het Woon- en Leefcentrum hersteld en kreeg de faculteit een prominent adres op de campus.

Bovendien plooit het groene campuslandschap hier als het ware naar binnen, omdat het atrium direct achter de – deels open – gevel ligt. Ook hierdoor heeft het nieuwe ITC-gebouw een veel nadrukkelijker adres gekregen. Tegelijkertijd heeft de verplaatsing de afstanden tussen entree en de verste kantoren verkort.
Duurzaam symbool
De faculteit had de wens dat het nieuwe onderkomen haar wereldwijde duurzame missie zou symboliseren. Een belangrijk startpunt vormt het hergebruik van wat aanwezig is: uiteenlopend van de bestaande constructie tot de zonwerende lamellen aan de zuidgevel. De kantoren – met een redelijk stabiele temperatuur – zijn op de koele begane grond geplaatst en de dynamischer ruimten – zoals de grotere onderwijsruimten, het restaurant en het studiecentrum – op de verdieping. De hergebruikte zonwering aan de zuidgevel voorkomt opwarming in de zomer. Het gebouw is van energielabel G naar A+++ gebracht, heeft een GPR-score van 8+ met een 9,4 voor energie en een MPG van 0,63.

De installaties voor het gehele gebouw zijn gebundeld in een verhoogde vloer op de verdiepingsvloer. Daardoor heeft het ontwerpteam de relatief beperkte hoogte van de begane grond maximaal kunnen benutten én is het karakteristieke Bims-plafond in het zicht gehouden. Verse lucht wordt met lage snelheid vanuit de vloer de ruimten ingebracht en door natuurlijke trek via de atria afgevoerd. “Dit zorgt voor een comfortabel ventilatiesysteem en bespaart bovendien veel energie”, zegt Ten Doeschate. Een deel van het jaar wordt het gebouw op natuurlijke wijze geventileerd. Gebruikers kunnen ramen openen.

Het ‘plenum ‘ in de verhoogde vloer heeft geen luchtkanalen, maar blaast de lucht via vloerroosters direct de ruimte in. Hierdoor is het mogelijk wanden te verplaatsen zonder de installaties te moeten aanpassen of opnieuw in te regelen, legt hij uit.
Tuinen
De atria, alle rijkelijk voorzien van groen, zijn de longen van het gebouw, zorgen voor daglicht en bieden een prachtig uitzicht vanaf de werkplekken. De stabiele temperatuur van de atria maakt ze geschikt voor (sub)tropische beplanting. De V-vormige glazen daken verzamelen het regenwater, dat zichtbaar de tuinen inloopt, waar het in ondergrondse retentiekratten wordt vastgehouden voor bewatering van de planten. De atria, uitgewerkt door DS Landschapsarchitecten, hebben – naast de entreezone – drie thema’s.

Er is een houttuin, een steentuin en een watertuin; ze hebben elk een eigen karakter – en zelfs een bijna onderscheidende geur. “Met een gebouw van deze lengte is het fijn dat de tuinen herkenbare plekken bieden”, zegt Ten Doeschate. De planten en bomen staan er in de volle grond. Het groen contrasteert mooi met de oude kolommen en betonnen vloeren met zaagsnedes. Het ontwerpteam heeft zich in deze oases ook een knipoog veroorloofd. Een stuk verdiepingsvloer steekt als een ‘balkonnetje’ in het atrium; aan de andere kant verbindt een stalen wenteltrap de verdiepingen. “Door het gebouw vanuit de basis zo rationeel op te zetten, konden we ons op een paar plekken iets geks permitteren; als uitzonderingen die de regel bevestigen.”
Materiaaleigen
Het ontwerp zet volledig in op hergebruik van de bestaande constructie, vertellen de architecten. Wanden, trappen, gevels, de dakconstructie van de atria: alle nieuwe elementen staan op of hangen aan de oorspronkelijke constructie en fundering. Dat betekent een veel besparing op materiaal. Voor de nieuwe onderdelen zijn producten en systemen gekozen met het oog op circulariteit. Zo zijn de binnenpuien en de plintgevel van eikenhout, de verhoogde vloer van bamboe en nieuwe stalen constructiedelen thermische verzinkt en demontabel. Als tussenwanden zijn demontabele, stalen systeemwanden gekozen, die bovendien in een materiaaleigen bronzen kleur zijn toegepast.

“Dat was wennen voor de producent, want zonder afwerking heeft het staal geen egale kleur”, vertelt Schild. “Je kunt dat ook als juist een kwaliteit zien. We hebben ervoor gekozen materialen zoveel mogelijk op pure wijze te laten zien: hout is hout, bamboe is bamboe, de vloeren zijn beton. Tot en met het meubilair, waarvan de onderstellen voor een groot deel niet zijn gecoat. Dan zie je de lasrupsen: hartstikke mooi. Door materialen niet te schilderen of te coaten kun je ze in de toekomst beter hergebruiken en dat is duurzaam. Laat het materiaal zien en verouderen zoals het is.”

Deze benadering van materiaalgebruik sluit perfect aan bij het omarmen van het bestaande gebouw. Het cassetteplafond en het beton- en staalcasco zijn zichtbaar, inclusief beschadigingen, gebruikssporen en de recente zaagsnedes. Deze ‘ruwbouw’ verleent het gebouw zijn onderscheidende karakter.
Thuis
Om het interieur daarbij ook het gewenste thuisgevoel voor deze specifieke academische gemeenschap te geven, is een aantal workshops georganiseerd met de gebruikers. Hieruit zijn zowel wensen omtrent de functionaliteit als de ‘look and feel’ gedistilleerd, vertelt Schild. Bij het inpassen van de verschillende gewenste plekken gaf de gebouwconstructie al snel richting aan een logische organisatie. “De rustiger plekken liggen vooral beneden, de dynamische plekken vooral boven. Beneden de kantoren voor geconcentreerd werken, boven de grotere onderwijs- en studieruimten. De entree in het midden van het gebouw vormt het sociale hart, waar de publieke functies direct aan grenzen: een brede, stalen tribunetrap naar de verdieping, het restaurant en het Study and Learning Centre. De ruimten staan in open relatie, zonder elkaar akoestisch in de weg te zitten, zegt Schild.

De verschillende departementen van de faculteit zijn geclusterd rondom de atria. Onderwijs, kantoren, labs en studieplekken wisselen elkaar af. Bewegend door het gebouw ontmoeten docenten, studenten en onderzoekers elkaar bij de binnentuinen, die door een brede binnenstraat met pantry’s onderling zijn verbonden, en in het sociale hart. “Met boven het restaurant en de tribunetrap, waar lezingen en presentaties worden gehouden of mensen elkaar tegenkomen en blijven zitten is hier een sterk thuisgevoel”, zegt Schild.

De faculteit ITC werkt wereldwijd aan projecten op het gebied van voedselveiligheid, de energietransitie, klimaatverandering en aan duurzame stedelijke ontwikkeling. “Het nieuwe gebouw geeft ITC’ers een duurzaam podium om te laten zien wie ze zijn en waar ze voor staan”, aldus het ontwerpteam. “Een gezond, flexibel en toekomstbestendig gebouw.”
Ontwerpteam
Het ontwerpteam bestond naast van Civic Architects, Studio Groen+Schild, VDNDP en DS Landschapsarchitecten uit Schreuders bouwtechniek als constructeur voor perceel 1; perceel 2 en 3 (bouwfysica en installatie-advies) werden gewonnen door respectievelijk Arup en Valstar Simonis.

Gerelateerde nieuwsberichten

Gerelateerde video's

Gerelateerde bedrijven

Andere nieuwsberichten

Architectenweb symposium: samenwerken op kantoor

Gisteren, 18:00

SVP Architectuur en Stedenbouw draagt bij aan toekomstplan voor Staatsliedenkwartier in Zeist

Gisteren, 13:35

Genomineerden BNA Beste Gebouw van het Jaar 2026 bekend

Gisteren, 12:00

MVRDV en Diamond Schmitt ontwerpen tweede gebouw voor universiteit Toronto

Gisteren, 11:16

Hollandse Duinen wordt officieel een nationaal park

Gisteren, 14:33

Dutch Green Building Council breidt bestuur uit met drie leden

Gisteren, 10:47

Euromast blijft langer dicht om renovatie

Gisteren, 09:39

Betonvereniging houdt symposium 'Omdenken' op Pier van Scheveningen

24 april, 4:00

Warmtefonds wil 140 miljoen extra voor behoud gunstige leningen

23 april, 4:23

BINX Smartility gekozen als aannemer voor Centrale Bibliotheek Rotterdam

23 april, 3:32
Robert MuisRedacteur
KUBUS | Specialist in Archicad
SAPA
Reynaers Aluminium Nederland
Jansen
SAB-profiel bv
Aliplast Aluminium Systems
Kingspan Light & Air
ALUCOBOND®
Caparol
Tarkett BV
Kawneer
Grohe Nederland B.V.
Malaysian Timber Council
OCS | Office Cabling Systems
Swisspearl Nederland
Forster Nederland N.V.
VELUX Commercial Benelux B.V.
Sempergreen
Houthandel van Dam
Aluprof Nederland BV
QbiQ Wall Systems
Forbo Flooring
Schüco Nederland
Cedral
Sto Isoned bv
Triflex bv
Gorter Luiken BV
wienerberger
DUCO Ventilation & Sun Control
BEWI IsoBouw
ROCKWOOL B.V.
Mview+
Rockfon (ROCKWOOL B.V.)
Gira Nederland B.V.
Kingspan Geïsoleerde Panelen
GEZE Benelux  B.V.
Renson
Metaglas Groep
ABB | Busch-Jaeger
Jung | Hateha B.V.
Knauf B.V.
Saint-Gobain Glass Benelux
Faay Vianen B.V.
objectflor
Boon Edam Nederland B.V.
Hunter Douglas Architectural
VOLA Nederland BV
Forbo Eurocol Nederland B.V.
EQUITONE gevelpanelen
Holonite B.V.
Kronospan
Tata Steel Colorcoat®
Architectenweb
Over ons
Contact

© 2002 - 2026 Architectenweb BV / Voorwaarden / Privacy / Disclaimer / Sitemap
Annuleren
OK
Sluiten
Doorgaan
Inloggen
Maak een gratis persoonlijk account aan