Projecten
Producten
Bedrijven
Vacatures
Agenda
Awards
Podcasts
more_horiz
Videos
Magazine
Favorieten
Profiel
Uitloggen
Abonneer je nu op onze nieuwsbrieven!
Abonneren
Nee, bedankt
Ja, denk met me mee rond de
materialisering van mijn project
Impressie vernieuwde collegezalengebouw van de Gorlaeus-laboratoria
Copyright: Filippo Bolognese
Collegezalengebouw Gorlaeus-laboratoria, 1969
Copyright: Archief Universiteit Leiden
Collegezalengebouw Gorlaeus-laboratoria, 1968
Copyright: Archief Universiteit Leiden
Collegezalengebouw Gorlaeus-laboratoria, 1969
Copyright: Archief Universiteit Leiden
Collegezalengebouw Gorlaeus-laboratoria, diagram
Copyright: Civic Architects
Collegezalengebouw Gorlaeus-laboratoria, diagram
Copyright: Civic Architects
Situatie
Copyright: Civic Architects
Begane grond
Copyright: Civic Architects
Verdieping
Copyright: Civic Architects
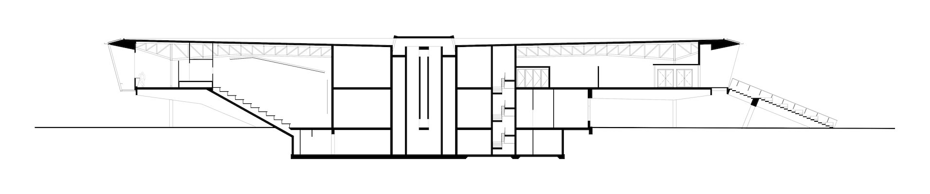
Doorsnede
Copyright: Civic Architects
Fragment wintertuin
Copyright: Civic Architects
Collegezalengebouw Gorlaeus-laboratoria Leiden ondergaat vernieuwing
2 januari 2023, 11:57
Het collegezalengebouw van de Gorlaeus-laboratoria, behorend tot de Universiteit Leiden ondergaat een vernieuwing tot onderwijs- en ontmoetingscentrum met werk- en studieplekken, een restaurant en vier college- en evenementenzalen.
Civic Architects
is verantwoordelijk voor zowel het architectonisch als het interieurontwerp, waarbij het bureau inspiratie vindt in het oorspronkelijke modernistische ontwerp.
De Gorlaeus-laboratoria vormen een complex van de Universiteit Leiden in de wijk Leeuwenhoek, buiten het historische stadscentrum. Het complex is tussen 1963 en 1971 gebouwd naar ontwerp van Drexhage, Sterkenburg, Bodon & Venstra (DSBV) en biedt onderdak aan de Faculteit der Wiskunde en Natuurwetenschappen.
Het complex bestaat uit hoogbouw met laboratoria, laagbouw met de faculteitsbibliotheek en het collegezalengebouw. Dit laatstgenoemde gebouw – vaak als De Schotel aangeduid – herbergt onder meer een van de grootste collegezalen van Nederland met 700 stoelen; het inmiddels verouderde pand wordt vernieuwd en gaat ruimte bieden aan werk- en studieplekken, een restaurant met 400 zitplaatsen en vier college- en evenementenzalen met 250 tot 700 stoelen.
Hyperfunctionalisme
Het Gorlaeus-complex bezit de typerende kenmerken van een modernistisch universiteitsgebouw, zoals het opgetilde hoofdniveau en de glazen gevels, legt Civic uit. Tegelijkertijd ontstijgt het volgens het bureau de gebruikelijk generieke en sobere uitstraling binnen deze stijl “door de specifieke constructieve esthetiek en overdrijvingen in vormgeving en detaillering.”
Dit idee van ‘hyperfunctionalisme’ heeft Civic als uitgangspunt genomen voor de vernieuwing, waarbij het bureau de nadruk verschuift van een autonoom complex naar verbinding: met de omgeving, het klimaat en de gebruikers, aldus Civic. Sleutelingreep is de transformatie van de onderhoudsbalkons tot een ring van wintertuinen.
De kenmerkende afgeschuinde buitenzijde van de schotel keert Civic om, wat de visuele relatie tussen het gebouw en de omgeving versterkt. Voorbijgangers zien niet meer vooral de reflectie van de lucht in het glas, maar juist de weerspiegeling van de campus. Ook kunnen ze door de veranderde hoek van het glas beter naar binnen kijken.
Monumentale trap
Voorts komt er een nieuwe entreetrap die het maaiveld van de campus direct verbindt met het eerste niveau. Van veraf vertoont de trap een vergelijkbaar gevoel voor overdrijving in vormgeving als de bestaande betonconstructie. Van dichtbij geven kleine kiezels en een geraffineerd freespatroon de trap echter tactiliteit en een menselijke schaal.
Het bijgebouw dat de oorspronkelijke entree van het Gorlaeus-complex vormde, wordt gesloopt. Dit versterkt de toegang tot de omringende gebouwen binnen het campusplan, terwijl de nieuwe monumentale trap straks de hoofdentree vormt vanaf de centrale as van het campusplein, duidelijk zichtbaar en benaderbaar voor iedereen. Tegelijkertijd is de trap een verblijfs- en ontmoetingsplek en een tribune voor het campusplein.
De trap leidt naar een panoramarestaurant met werk- en studieplekken op de verdieping, dat ook kan worden gebruikt voor presentaties, congressen en uitreikingen. De trap sluit aan op een rondgang die de collegezalen in twee richtingen toegankelijk maakt en uitzicht biedt op de omgeving. De rondgaande gevel versterkt het iconische karakter van het gebouw.
Wintertuinen
Het gevelontwerp van DSBV lijkt overal gelijk, maar reageert per segment anders op de omgeving en de zon, vertelt Civic. Dat heeft het bureau geïnspireerd bij de energetische verduurzaming van de gevel. Civic vervangt de stalen kozijnen met enkel glas door een ring met serres als buffer. Daarbij is elk segment anders uitgewerkt en beweegt het geheel als het ware mee met het ritme van de dagen en seizoenen.
Aan de zuid- en oostzijde ligt een serie passief verwarmde en actief geventileerde wintertuinen met extra verblijfsruimten: een zitrand met zicht op het campusplein en een reeks banken die zijn verbonden met het restaurant. Aan de noord- en westzijde bevinden zich glazenwasbalkons met beschermende luifels. Waarin ook de nieuwe vluchttrappen zijn opgenomen.
Stapsgewijs
Tijdens de verbouwing blijft De Schotel in gebruik. De fasering voor de sloop en bouw is dan ook gekoppeld aan de collegeplanning; tevens is er voor een specifieke uitvoeringsmethode gekozen. De segmenten van 10 meter breed en 6 meter hoog worden elk ter plaatse geassembleerd en als geheel opgehangen tussen de bestaande radiale vakwerkconstructies.
Door dit van buitenaf te doen, kan het gebouw van binnen blijven functioneren. De installaties worden vervolgens in segmenten uitgevoerd, zodat telkens maar één collegezaal buiten bedrijf hoeft te zijn. De verbouwing is naar verwachting in het tweede deel van 2023 gereed; parallel hieraan werkt Civic het interieurontwerp uit.
Trefwoorden
onderwijsgebouw
collegezalengebouw
leiden
universiteit leiden
gorlaeus-laboratoria
civic architects
universiteitsgebouw
Locatie
Best gelezen
1
Woontoren Front door Monadnock wint tiende Architectuurprijs Nijmegen
donderdag, 9 april
2
Spoorwegverleden inspireert ontwerp woonblok Wisselspoor 10 in Utrecht
woensdag, 8 april
3
Rotterdam mag woningen gaan bouwen aan de Parkhaven
woensdag, 8 april
4
SeARCH en Heutink Groep winnen tender voor woongebouw Sluisbuurt
vrijdag, 10 april
5
KOW wint met Marker Woods tender voor nieuwe wijk Eschmarkerveld
woensdag, 8 april
Gerelateerde nieuwsberichten
Uitbreiding Gorlaeus Gebouw van de Universiteit Leiden opent deuren
30 augustus 2024
Nautisch baken voor Buiksloterham
26 juni 2023
Civic Architects vormt oud abattoir in Luxemburg om tot cultuurhal
19 september 2023
Een hergebruikt en duurzaam thuis voor geowetenschappers
27 september 2023
Bouw CUBE op campus Universiteit Twente gestart
2 oktober 2023
Civic Architects – genomineerd voor prijs Architect van het Jaar 2024
9 september 2024
Rijnlandse Architectuur Prijs voor Meelfabriek en Watertoren Bollenstreek
13 oktober 2023
Negen nominaties voor Rijnlandse Architectuur Prijs 2025
8 september 2025
Civic Architects
1 september 2024
Vernieuwing collegezalengebouw 'De Schotel' naar ontwerp van Civic Architects afgerond
9 september 2025
Hester Bijl wordt rector magnificus TU Delft
18 juli 2025
Braaksma & Roos, Civic Architects en Arup mogen Stadstheater Arnhem vernieuwen
22 december 2022
Schoenenkwartier bekroond als Publiek gebouw van het Jaar 2022
12 oktober 2022
Bouw Tolhuiskade in transformatie Buiksloterham Amsterdam gestart
26 september 2022
Civic maakt geslaagde verbinding van historie met heden in Schoenenkwartier
12 juli 2022
LocHal wint Herengracht Industrie Prijs 2021
3 november 2021
Winnend plan van Civic Architects, BC architects en AWB voor cultuurcentrum Brussel
14 september 2021
Realisatie nieuw faculteitsgebouw van Universiteit Twente gestart
7 juni 2021
Civic Architects maakt ontwerp voor herbestemming Centrale Markthal Amsterdam
2 februari 2021
Onderzoeksvoorstel BURA en Civic wint Highrise Innovation Award
26 januari 2021
Civic Architects: ‘Publieke plekken zijn belangrijker dan ooit’
10 september 2020
Belangrijkste prijs World Architecture Festival voor LocHal
9 december 2019
Civic, VDNDP & Groen+Schild winnen selectie universiteitsgebouw ITC
29 oktober 2019
Uitbreiding Gorlaeus Gebouw van de Universiteit Leiden opent deuren
30 augustus 2024
Nautisch baken voor Buiksloterham
26 juni 2023
Civic Architects vormt oud abattoir in Luxemburg om tot cultuurhal
19 september 2023
Een hergebruikt en duurzaam thuis voor geowetenschappers
27 september 2023
Bouw CUBE op campus Universiteit Twente gestart
2 oktober 2023
Civic Architects – genomineerd voor prijs Architect van het Jaar 2024
9 september 2024
Rijnlandse Architectuur Prijs voor Meelfabriek en Watertoren Bollenstreek
13 oktober 2023
Negen nominaties voor Rijnlandse Architectuur Prijs 2025
8 september 2025
Civic Architects
1 september 2024
Vernieuwing collegezalengebouw 'De Schotel' naar ontwerp van Civic Architects afgerond
9 september 2025
Hester Bijl wordt rector magnificus TU Delft
18 juli 2025
Braaksma & Roos, Civic Architects en Arup mogen Stadstheater Arnhem vernieuwen
22 december 2022
Schoenenkwartier bekroond als Publiek gebouw van het Jaar 2022
12 oktober 2022
Bouw Tolhuiskade in transformatie Buiksloterham Amsterdam gestart
26 september 2022
Civic maakt geslaagde verbinding van historie met heden in Schoenenkwartier
12 juli 2022
LocHal wint Herengracht Industrie Prijs 2021
3 november 2021
Winnend plan van Civic Architects, BC architects en AWB voor cultuurcentrum Brussel
14 september 2021
Realisatie nieuw faculteitsgebouw van Universiteit Twente gestart
7 juni 2021
Civic Architects maakt ontwerp voor herbestemming Centrale Markthal Amsterdam
2 februari 2021
Onderzoeksvoorstel BURA en Civic wint Highrise Innovation Award
26 januari 2021
Civic Architects: ‘Publieke plekken zijn belangrijker dan ooit’
10 september 2020
Belangrijkste prijs World Architecture Festival voor LocHal
9 december 2019
Civic, VDNDP & Groen+Schild winnen selectie universiteitsgebouw ITC
29 oktober 2019
Toon alles
Gerelateerde video's
Civic Architects
Nominatie voor de prijs voor Architect van het Jaar 2024
Andere nieuwsberichten
Architect Cees Dam op 93-jarige leeftijd overleden
Gisteren, 14:35
De oprichter van Dam & Partners architecten ontwierp onder meer de Stopera in Amsterdam (samen met Wilhelm Holzbauer), het stadhuis van Almere en het Huis van de Toekomst in Rosmalen.
Powerhouse Company wint aanbesteding voor verbouwing Vista College Maastricht
Gisteren, 12:16
Het onderkomen van de mbo-school wordt gerenoveerd en uitgebreid met een houten gebouwdeel, dat onder meer de nieuwe hoofdentree en twee atria bevat. Ook moet de nieuwbouw de bestaande gebouwen beter met elkaar verbinden.
Stedelijk Museum organiseert tentoonstelling over ontwerper Kho Liang Ie
Gisteren, 10:52
Met zijn ontwerpen voor meubels en interieurs van de jaren vijftig tot zijn dood halverwege de jaren zeventig nam Kho een centrale positie in binnen de Nederlandse vormgeving. Vermaard is onder meer zijn inrichting van luchthaven Schiphol.
Restauratie Atlasbeeld op dak Koninklijk Paleis Amsterdam afgerond
10 april, 3:38
Het beeld op het fronton van het paleis was in juli van zijn plek gehaald voor een uitgebreide onderhoudsbeurt in Antwerpen.
AFM: funderingsproblemen bij bijna 220.000 woningen
Gisteren, 13:25
De huizen van bijna een half miljoen woningeigenaren hebben een hoog risico op funderingsproblemen of een mogelijke kwetsbare fundering.
Oprichter omgevallen vastgoedconcern Evergrande bekent schuld
Gisteren, 09:17
Evergrande was ooit de grootste projectontwikkelaar van China, maar kwam in de problemen toen het zijn schulden niet kon terugbetalen.
Grote en kleine gemeenten balen van bouwregels Zuid-Holland
10 april, 4:31
Grote en kleine gemeenten in Zuid-Holland hebben hun zorgen geuit over nieuwe regels van de provincie, die volgens hen de woningbouw belemmeren.
Twijfels in Zuid-Holland over halen van doelen landelijk gebied
10 april, 12:18
De meeste partijen in de Zuid-Hollandse politiek hebben twijfels over de plannen die in zestien deelgebieden zijn gemaakt voor de aanpak van het landelijk gebied.
Huurprijzen stijgen harder dan koopwoningprijzen
10 april, 9:31
Volgens Huurwoningen.nl en Pararius moesten nieuwe huurders in het eerste kwartaal gemiddeld 21,12 euro per vierkante meter per maand neerleggen.
ABN AMRO: investeringen defensie vergroten druk op bouwcapaciteit
9 april, 12:29
Kazernes, opslagplaatsen en oefenterreinen dingen om dezelfde aannemers, ingenieurs en installateurs die ook nodig zijn voor bijvoorbeeld woningbouw.
Ga naar het nieuws-archief
Robert Muis
Redacteur
0
0
0
0
Voor een optimale gebruikservaring plaatst Architectenweb functionele cookies. Wat de verschillende cookies precies doen leggen we uit in een
overzicht
. Cookies van social media kun je optioneel
aanzetten
.
Akkoord
Instellingen
Annuleren
OK
Sluiten
Doorgaan
Inloggen
Maak een gratis persoonlijk account aan
Feedback
Feedback
Wij horen graag jouw feedback. Laat je reactie achter en eventueel jouw e-mail adres.
Reactie
Verstuur