Projecten
Producten
Bedrijven
Vacatures
Agenda
Awards
Podcasts
more_horiz
Videos
Magazine
Favorieten
Profiel
Uitloggen
Abonneer je nu op onze nieuwsbrieven!
Abonneren
Nee, bedankt
Ja, denk met me mee rond de
materialisering van mijn project
Copyright: Filippo Bolognese
Copyright: Filippo Bolognese
Copyright: Filippo Bolognese
Vroegere interieur
Copyright: Civic Architects
Luchtfoto oude situatie
Copyright: Civic Architects
Maquette
Copyright: Civic Architects
Carré met satellieten
Copyright: Civic Architects
Situatie
Copyright: Civic Architects
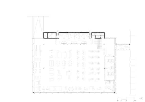
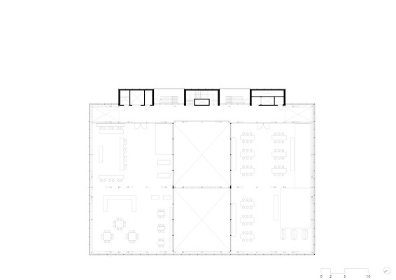
Plattegrond
Copyright: Civic Architects
Plattegrond
Copyright: Civic Architects
Plattegrond
Copyright: Civic Architects
Plattegrond
Copyright: Civic Architects
Doorsnede
Copyright: Civic Architects
Doorsnede
Copyright: Civic Architects
Bouw CUBE op campus Universiteit Twente gestart
2 oktober 2023, 17:07
Op de campus Drienerlo van de Universiteit Twente (UT) in Enschede is de bouw gestart van het project CUBE. Het gebouw is ontworpen door
Civic architects
,
VDNDP
en
Studio Groen+Schild
. Eerder ontwierp dit samenwerkingsverband het gebouw voor de faculteit Geo-Information Science and Earth Observation (
ITC
) op de campus. CUBE wordt gerealiseerd door WAM&VanDuren Bouwgroep en WSi Techniek.
Cube is een nieuw werkplaatsgebouw voor de faculteit Engineering Technology (ET) van de UT in Enschede. Deze nieuwe uitbreiding van het Horst-complex bevat werkplaatsen, kantoren en flexibele practica ruimtes.
Het gebouw meet 4.734m2 BVO en wordt vormgegeven als een nieuwe satelliet van De Horst - het gebouw van de faculteit Engineering Technology (ET). Het door architect Dirk van Mourik in een modernistische stijl vormgegeven gebouw De Horst wordt algemeen als één van de kroonjuwelen van de campus in Enschede beschouwd.
De gebouwplint van CUBE heeft brede vensters die grenzen aan een verzonken (metaal)werkplaats. Toekomstige gebruikers van de werkplaats hebben zo een prachtig zicht op het campuslandschap van landgoed Drienerlo.
Omdat de eisen die de faculteit aan het gebouw stelt per semester kunnen wijzigen is gekozen voor een flexibel ontwerp. De spanten zijn daartoe uitgevoerd in de vorm van bijzondere vakwerken van twee verdiepingen hoog. Zo ontstaat er voldoende vrije ruimte voor aanpassingen in de metaalwerkplaats en alle bovenliggende onderwijsruimtes
.
Expo
De ambitie van de faculteit Engineering Technology (ET) is om studenten, naast denken over de wereld, ook technologie te laten ontwerpen die die kan veranderen. Deze instelling is in het huidige gebouw De Horst volgens de universiteit en de architecten onvoldoende zichtbaar. Met CUBE moet hier verandering in gaan komen.
Bezoekers van het toekomstige CUBE zullen na binnenkomst direct zicht op de 7 meter hoge metaal- en laswerkplaats hebben. Omdat de vloer van deze werkplaatsvloer 1,4 meter verzonken ligt zal hun blik, over de machines heen, als vanzelf naar de grote ruimte gaan. Daar werken studenten en onderzoekers aan machines, volgen ze onderwijs en worden innovaties getest. Een grote piramidevormige vide zorgt voor extra daglicht en vergroot de interactie tussen de verdiepingen. De ruimte zal gaan werken als een ware expo voor de faculteit.
Carré met satellieten
De Horst bestaat uit een laagbouwcarré met een toren en verschillende 'satellieten'. Het gebouw heeft zich in het verleden voortdurend aangepast aan de ontwikkelingen van de faculteit. Door de groei van ET zijn de openheid en de overzichtelijkheid van de Horst echter afgenomen. De nieuwe uitbreiding biedt de kans om de conceptuele kracht van oorspronkelijke architectuur te herstellen.
CUBE is vormgegeven als een nieuwe satelliet. Vanwege een krappe kavel voor de uitbreiding van het beoogde programma is voor een kleiner, lineair volume met een extra verdieping gekozen. Door het volume te verzinken blijft de hoogte van het gebouw beperkt en ontstaat er een relatie met het landschap.
Het Horst-ensemble blijft zo onverminderd leesbaar als een carré met satellieten. Alle ondersteunende functies - installaties, liften, trappen, toiletten en opslagruimte - zijn gebundeld in drie kernen die tegen het gebouw aanstaan. Het zijn architectonische verwijzingen naar de kenmerkende installatiekernen van het Horst-complex. De ingreep maakt het gebouw visueel eveneens smaller.
Meebewegend
Klimatologische omstandigheden zijn een sturend onderdeel van het ontwerp. De koele noordoost- en westgevels richten zich naar de omgeving en zijn transparant. De zuidoost- en westgevels hebben een minder publiek karakter en een meer gesloten karakter om opwarming te voorkomen.
De verzonken werkplaats beperkt ongewenste trillingen en heeft een positieve invloed op het binnenklimaat door de constante temperatuur van de bodem.
Het gebouw bestaat uit twee hoofdbeuken met grote vrije overspanningen. Een beuk van 2 x 14 meter voor de werkplaatsen en een ondersteunde beuk ('de backbone') met verkeersruimtes en installaties ernaast. Door de grote spanten kan het aantal kolommen in de werkplaats worden beperkt. De constructie is de meest rationele oplossing en is tevens een architectonisch gebaar dat aansluit bij de wereld van ingenieurs in opleiding.
Functionele expressie
In lijn met het bestaande Horst-complex wordt soberheid gecombineerd met ontwerpplezier. De constructie, kraanbanen, trappen, liften en werkplaats versterken elk de architectonische expressie van het gebouw.
Het materiaalgebruik past door zijn eenvoud en helderheid bij de Horst. De prominente, stalen spanten zijn brandwerend, blauw gecoat. Deze robuuste basis wordt aangevuld met een lichte, larikshouten gevel, binnen kozijnen en CLT-kernen. Het zichtbaar houden van de installaties is functioneel, borgt een maximale vrije hoogte, maar past ook bij het technische karakter van gebouw en ruimtes. Ook de gevel accentueert de organisatie van het gebouw. De geleding is ontleend aan functies en grid van het gebouw.
Trefwoorden
enschede
civic architects
universiteit twente
Locatie
Best gelezen
1
Woontoren Front door Monadnock wint tiende Architectuurprijs Nijmegen
donderdag, 9 april
2
Spoorwegverleden inspireert ontwerp woonblok Wisselspoor 10 in Utrecht
woensdag, 8 april
3
Rotterdam mag woningen gaan bouwen aan de Parkhaven
woensdag, 8 april
4
RED Company vraagt vergunning aan voor productie- en onderzoeksfaciliteit Lilly
dinsdag, 7 april
5
KOW wint met Marker Woods tender voor nieuwe wijk Eschmarkerveld
woensdag, 8 april
Gerelateerde nieuwsberichten
Realisatie nieuw faculteitsgebouw van Universiteit Twente gestart
7 juni 2021
Keizer Koopmans en Bureau B+B presenteren integrale gebiedsvisie stationskwartier Enschede
8 juli 2024
Civic, VDNDP & Groen+Schild winnen selectie universiteitsgebouw ITC
29 oktober 2019
Een hergebruikt en duurzaam thuis voor geowetenschappers
27 september 2023
Civic Architects vormt oud abattoir in Luxemburg om tot cultuurhal
19 september 2023
Civic Architects – genomineerd voor prijs Architect van het Jaar 2024
9 september 2024
Nominaties Schoolgebouw van het Jaar 2023 bekend
18 september 2023
Enschede als 'vernieuwende stad' centraal tijdens negende Dag van de Stad
20 oktober 2025
Nautisch baken voor Buiksloterham
26 juni 2023
Collegezalengebouw Gorlaeus-laboratoria Leiden ondergaat vernieuwing
2 januari 2023
Civic Architects
1 september 2024
Vernieuwing collegezalengebouw 'De Schotel' naar ontwerp van Civic Architects afgerond
9 september 2025
Werkplaatsgebouw CUBE: nieuwe satelliet aan Horstcomplex Universiteit Twente
19 september 2025
Realisatie nieuw faculteitsgebouw van Universiteit Twente gestart
7 juni 2021
Keizer Koopmans en Bureau B+B presenteren integrale gebiedsvisie stationskwartier Enschede
8 juli 2024
Civic, VDNDP & Groen+Schild winnen selectie universiteitsgebouw ITC
29 oktober 2019
Een hergebruikt en duurzaam thuis voor geowetenschappers
27 september 2023
Civic Architects vormt oud abattoir in Luxemburg om tot cultuurhal
19 september 2023
Civic Architects – genomineerd voor prijs Architect van het Jaar 2024
9 september 2024
Nominaties Schoolgebouw van het Jaar 2023 bekend
18 september 2023
Enschede als 'vernieuwende stad' centraal tijdens negende Dag van de Stad
20 oktober 2025
Nautisch baken voor Buiksloterham
26 juni 2023
Collegezalengebouw Gorlaeus-laboratoria Leiden ondergaat vernieuwing
2 januari 2023
Civic Architects
1 september 2024
Vernieuwing collegezalengebouw 'De Schotel' naar ontwerp van Civic Architects afgerond
9 september 2025
Werkplaatsgebouw CUBE: nieuwe satelliet aan Horstcomplex Universiteit Twente
19 september 2025
Toon alles
Gerelateerde video's
Civic Architects
Nominatie voor de prijs voor Architect van het Jaar 2024
Gerelateerde bedrijven
Studio Groen+Schild
Architectuur en interieurarchitectuur
Andere nieuwsberichten
Restauratie Atlasbeeld op dak Koninklijk Paleis Amsterdam afgerond
Vandaag, 15:38
Het beeld op het fronton van het paleis was in juli van zijn plek gehaald voor een uitgebreide onderhoudsbeurt in Antwerpen.
Nieuw zitgebied Lounge 2 Schiphol geïnspireerd door overgangsfase in oeuvre Mondriaan
Vandaag, 14:16
Op luchthaven Schiphol is de derde en laatste fase van door Beyond Space ontworpen zitgebieden opgeleverd. Net als de eerste twee fases van het project is dit gedeelte geïnspireerd door het werk van Mondriaan, maar dan uit een eerdere periode.
SeARCH en Heutink Groep winnen tender voor woongebouw Sluisbuurt
Vandaag, 11:15
Gebouw Radius biedt plek aan zo’n honderd appartementen, een stadskamer, een binnentuin, daktuinen en andere gemeenschappelijke ruimtes. Het gebouw wordt gerealiseerd van natuurlijke materialen als hout, stampleem en leemsteen.
Woontoren Front door Monadnock wint tiende Architectuurprijs Nijmegen
Gisteren, 22:00
“Front is een optimistisch icoon, gemaakt met lef, dat ambachtelijkheid en vakmanschap uitstraalt”, stelt de jury in zijn rapport.
Grote en kleine gemeenten balen van bouwregels Zuid-Holland
Vandaag, 16:31
Grote en kleine gemeenten in Zuid-Holland hebben hun zorgen geuit over nieuwe regels van de provincie, die volgens hen de woningbouw belemmeren.
Twijfels in Zuid-Holland over halen van doelen landelijk gebied
Vandaag, 12:18
De meeste partijen in de Zuid-Hollandse politiek hebben twijfels over de plannen die in zestien deelgebieden zijn gemaakt voor de aanpak van het landelijk gebied.
Huurprijzen stijgen harder dan koopwoningprijzen
Vandaag, 09:31
Volgens Huurwoningen.nl en Pararius moesten nieuwe huurders in het eerste kwartaal gemiddeld 21,12 euro per vierkante meter per maand neerleggen.
ABN AMRO: investeringen defensie vergroten druk op bouwcapaciteit
Gisteren, 12:29
Kazernes, opslagplaatsen en oefenterreinen dingen om dezelfde aannemers, ingenieurs en installateurs die ook nodig zijn voor bijvoorbeeld woningbouw.
Europa kent 831 miljoen euro subsidie toe aan Utrechtse projecten
Gisteren, 09:27
Het gaat onder meer om projecten tegen oververhitting van gebouwen, slimmer gebruik van energie en het hergebruik van materialen en grondstoffen.
Rotterdam mag woningen gaan bouwen aan de Parkhaven
8 april, 3:38
De Raad van State maakte woensdag bekend dat alle bezwaren tegen het bestemmingsplan zijn verworpen.
Ga naar het nieuws-archief
JaapJan Berg
Redacteur
0
0
0
0
Voor een optimale gebruikservaring plaatst Architectenweb functionele cookies. Wat de verschillende cookies precies doen leggen we uit in een
overzicht
. Cookies van social media kun je optioneel
aanzetten
.
Akkoord
Instellingen
Annuleren
OK
Sluiten
Doorgaan
Inloggen
Maak een gratis persoonlijk account aan
Feedback
Feedback
Wij horen graag jouw feedback. Laat je reactie achter en eventueel jouw e-mail adres.
Reactie
Verstuur