Projecten
Producten
Bedrijven
Vacatures
Agenda
Awards
Podcasts
more_horiz
Videos
Magazine
Thema's
Favorieten
Profiel
Uitloggen
Abonneer je nu op onze nieuwsbrieven!
Abonneren
Nee, bedankt
Ja, denk met me mee rond de
materialisering van mijn project
Copyright: Mike Bink
Copyright: Mike Bink
Copyright: Mike Bink
Copyright: Mike Bink
Copyright: Mike Bink
Copyright: Mike Bink
Copyright: Mike Bink
Copyright: Mike Bink
Copyright: Mike Bink
Copyright: Mike Bink
Copyright: Mike Bink
Copyright: Mike Bink
Copyright: Studio Groen+Schild
Copyright: Studio Groen+Schild
Studio Groen+Schild transformeert een reinwaterkelder tot woning
24 juni 2021, 15:28
Het waterverbruik van particulieren en bedrijven gedurende de dag is niet constant. Om pieken in de vraag – bijvoorbeeld als iedereen zijn ochtendritueel afwikkelt – op te vangen, bufferen waterleveranciers schoon (drink)water in zogenoemde reinwaterkelders. Maar wat moet je als particulier met een in onbruik geraakte reinwaterkelder in je achtertuin?
Studio Groen+Schild
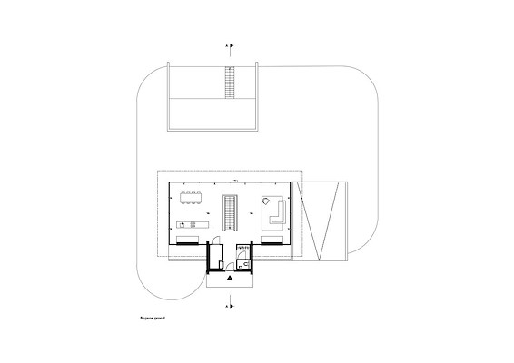
werd benaderd om een ontwerp te maken voor de transformatie van een reinwaterkelder in Colmschate (bij Deventer) tot woning. Het betrof een diep in de grond gelegen betonnen bak van zestien bij zestien meter en een bovengronds gebouwtje van de pompinstallatie. Het ontwerp van architect Ellen Schild overtuigde de gemeente om toestemming te verlenen voor de transformatie.
In de kelderbak zijn de slaapkamers en de badkamer gesitueerd. Aan de achterzijde van de kelder is een patio gerealiseerd, zodat voldoende daglicht in deze vertrekken valt. Op de kelderbak heeft Studio Groen+Schild een transparant paviljoen geplaatst, waarin de woonvertrekken zijn ondergebracht.
Glazen paviljoen
Het glazen paviljoen, voorzien van een sedumdak, gaat op in de omgeving, vertelt het architectenbureau. “Het dak lijkt te zweven en het ritme van de houten balklaag gaat een mooie verbinding aan met de bomen.”
De lichte constructie van het paviljoen contrasteert fraai met het zware beton van de kelderbak. Ze bestaat uit een slanke staalconstructie met een houten balklaag die Studio Groen+Schild in het zicht heeft gehouden. De balklaag loopt van binnen naar buiten door.
De onderdorpel van de puien is opgenomen in de betonnen vloer. Het glas is de enige scheiding tussen de woonkamer en het terras, legt het architectenbureau uit. Als de bewoners in hun woonkamer zitten, zitten ze tegelijkertijd een beetje in het bos.
Trefwoorden
transformatie
reinwaterkelder
colmschate
villa
studio groen+schild
industrieel erfgoed
woningbouw
Locatie
Best gelezen
1
Kantoorcomplex door Goof Spruit bij station Utrecht krijgt tweede leven als De Nieuwe Tuin
woensdag, 11 maart
2
Woongebouw door van Bergen Kolpa vormt nieuwe markering langs bocht Rotte
dinsdag, 10 maart
3
Architectenweb symposium: ontwerpen van autovrije buurten
donderdag, 12 maart
4
Gerenoveerd Valkhof Museum heropent deuren op 6 juni
dinsdag, 10 maart
5
Weg met de auto?
donderdag, 12 maart
Gerelateerde nieuwsberichten
Schoots Architecten geeft stadsvilla herbestemming met houten uitbreiding
24 augustus 2021
Ingetogen woning als rustpunt aan de bosrand
29 november 2022
Duurzame en aangename thuisbasis voor Rotterdam Business School
15 februari 2024
Twee rijksmonumentale pakhuizen met zorg verbouwd en verduurzaamd door Studio Groen+Schild
8 april 2025
Bosvilla met een bijna mathematische opbouw
27 september 2021
Een terughoudende opbouw voor een jaren 60-bungalow
18 september 2023
Een hergebruikt en duurzaam thuis voor geowetenschappers
27 september 2023
Realisatie nieuw faculteitsgebouw van Universiteit Twente gestart
7 juni 2021
Voormalig onderzoeksgebouw TU/e-campus open gemaakt voor Fontys-opleidingen
25 november 2019
Voormalige productiehal biedt onderdak aan Turmac Cultuurfabriek
3 november 2020
Groen+Schild vernieuwt huis voor de amateurkunst in Eindhoven
21 maart 2018
Studio Groen+Schild gevestigd in Grijze Silo
11 juli 2017
Groen+Schild wint prijs met interieur TenneT
17 september 2014
Oudste textielfabriek Tilburg wordt Duveldorp
2 juni 2021
Campina-terrein Eindhoven wordt stadsbuurt met coöperatieve buitenruimte
20 mei 2021
Oude kunstmestloods herbestemd tot Zeeuws Veilinghuis
4 maart 2020
Werkspoorfabriek biedt flexibele ruimte voor maakindustrie
14 januari 2020
Villa van louter onbewerkte materialen in buitengebied Sint-Oedenrode
25 juni 2021
Kleinste kubuswoning op KubusEiland is ontwerp van 8A Architecten
13 september 2021
Villa als modernistische uitbreiding van een historisch pachtershuis
25 november 2021
Vrijstaande woning opent zich naar het glooiende landschap
7 februari 2022
Een villa als een compositie van volumes en openingen
16 mei 2022
Schoots Architecten geeft stadsvilla herbestemming met houten uitbreiding
24 augustus 2021
Ingetogen woning als rustpunt aan de bosrand
29 november 2022
Duurzame en aangename thuisbasis voor Rotterdam Business School
15 februari 2024
Twee rijksmonumentale pakhuizen met zorg verbouwd en verduurzaamd door Studio Groen+Schild
8 april 2025
Bosvilla met een bijna mathematische opbouw
27 september 2021
Een terughoudende opbouw voor een jaren 60-bungalow
18 september 2023
Een hergebruikt en duurzaam thuis voor geowetenschappers
27 september 2023
Realisatie nieuw faculteitsgebouw van Universiteit Twente gestart
7 juni 2021
Voormalig onderzoeksgebouw TU/e-campus open gemaakt voor Fontys-opleidingen
25 november 2019
Voormalige productiehal biedt onderdak aan Turmac Cultuurfabriek
3 november 2020
Groen+Schild vernieuwt huis voor de amateurkunst in Eindhoven
21 maart 2018
Studio Groen+Schild gevestigd in Grijze Silo
11 juli 2017
Groen+Schild wint prijs met interieur TenneT
17 september 2014
Oudste textielfabriek Tilburg wordt Duveldorp
2 juni 2021
Campina-terrein Eindhoven wordt stadsbuurt met coöperatieve buitenruimte
20 mei 2021
Oude kunstmestloods herbestemd tot Zeeuws Veilinghuis
4 maart 2020
Werkspoorfabriek biedt flexibele ruimte voor maakindustrie
14 januari 2020
Villa van louter onbewerkte materialen in buitengebied Sint-Oedenrode
25 juni 2021
Kleinste kubuswoning op KubusEiland is ontwerp van 8A Architecten
13 september 2021
Villa als modernistische uitbreiding van een historisch pachtershuis
25 november 2021
Vrijstaande woning opent zich naar het glooiende landschap
7 februari 2022
Een villa als een compositie van volumes en openingen
16 mei 2022
Toon alles
Gerelateerde bedrijven
Studio Groen+Schild
Architectuur en interieurarchitectuur
Andere nieuwsberichten
Bouw wooncomplexen op vergroend Koningsplein Tilburg van start
38 minuten geleden
In Tilburg is gestart met de bouw van twee wooncomplexen binnen het project Koningswei. Met de nieuwe gebouwen en een groen ingerichte openbare ruimte rondom krijgt het Koningsplein in het centrum van de stad een nieuw uiterlijk.
Broekbakema renoveert en verduurzaamt stadhuis Terneuzen
3 uur geleden
Het bekende brutalistische gebouw, dat is ontworpen door medenaamgever van het bureau Jaap Bakema, wordt opgewaardeerd naar energielabel A en moet toegankelijker worden voor inwoners van de Zeeuwse gemeente.
De Urbanisten schetst perspectief voor vitale en aantrekkelijke Rotterdamse binnenstad
13 maart, 4:41
In opdracht van BIZ RotterdamCentrum maakte De Urbanisten een perspectief voor een vitale en aantrekkelijke binnenstad die samengaat met een meer klimaat- en natuursensitieve inrichting
Studio Vinke en Loos van Vliet ontwerpen blok met woningen in haven Lelystad
13 maart, 3:24
In de haven van Lelystad wordt een blok met 160 woningen naar ontwerp van Studio Vinke in samenwerking met Atelier Loos van Vliet gerealiseerd. Bataviahof wordt het middelste van vijf wooncomplexen, waarvan er inmiddels twee zijn gerealiseerd.
Onderzoek: bedrijventerreinen slecht voorbereid op wateroverlast
2 uur geleden
Volgens een analyse van alle 3713 bedrijventerreinen bevat zeventig procent veel gebouwen die kwetsbaar zijn bij extreme regenbuien.
Eerste waterstoffabriek aangesloten op Nederlands netwerk
Vandaag, 10:08
De waterstoffabriek van Shell op de Rotterdamse Maasvlakte is de eerste met een aansluiting op het waterstofnetwerk.
NVM: verkoopgolf huurwoningen vergroot ongelijkheid starters
13 maart, 4:03
Waar een recordaantal starters hun eerste woning kon kopen, zagen anderen hun kansen juist afnemen, zegt de makelaarsorganisatie.
IT-systeem Omgevingswet schiet na twee jaar nog steeds tekort
13 maart, 1:20
Het IT-systeem dat overheden nodig hebben om de Omgevingswet uit te voeren, voldoet nog steeds niet aan minimale eisen.
Eindhoven bouwt 5400 studentenwoningen
13 maart, 11:04
De woningen moeten het tekort aan studentenhuisvesting helpen oplossen.
Experts: versnel energietransitie en hou Gronings gas als airbag
12 maart, 1:58
Dat is nodig om minder afhankelijk te worden van andere landen, stellen 22 experts die gespecialiseerd zijn in veiligheid en energie.
Ga naar het nieuws-archief
Robert Muis
Redacteur
2
0
0
0
Voor een optimale gebruikservaring plaatst Architectenweb functionele cookies. Wat de verschillende cookies precies doen leggen we uit in een
overzicht
. Cookies van social media kun je optioneel
aanzetten
.
Akkoord
Instellingen
Annuleren
OK
Sluiten
Doorgaan
Inloggen
Maak een gratis persoonlijk account aan
Feedback
Feedback
Wij horen graag jouw feedback. Laat je reactie achter en eventueel jouw e-mail adres.
Reactie
Verstuur