Projecten
Producten
Bedrijven
Vacatures
Agenda
Awards
Podcasts
more_horiz
Videos
Magazine
Favorieten
Profiel
Uitloggen
Abonneer je nu op onze nieuwsbrieven!
Abonneren
Nee, bedankt
Ja, denk met me mee rond de
materialisering van mijn project
Copyright: Jeroen Musch
Copyright: Jeroen Musch
Copyright: Jeroen Musch
Copyright: Jeroen Musch
Copyright: Jeroen Musch
Copyright: Jeroen Musch
Copyright: Jeroen Musch
Copyright: Jeroen Musch
Copyright: Jeroen Musch
Copyright: Jeroen Musch
Copyright: Jeroen Musch
Copyright: Jeroen Musch
Copyright: Jeroen Musch
Copyright: Jeroen Musch
Copyright: Jeroen Musch
Copyright: Jeroen Musch
Copyright: Jeroen Musch
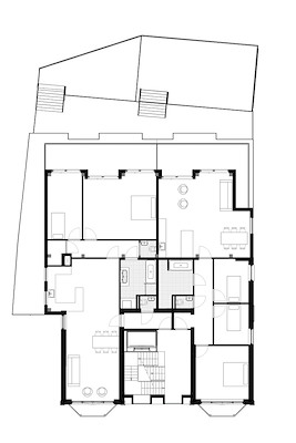
Begane grond
Copyright: Schoots Architecten
Eerste verdieping
Copyright: Schoots Architecten
Tweede verdieping
Copyright: Schoots Architecten
Opbouw
Copyright: Schoots Architecten
Schoots Architecten geeft stadsvilla herbestemming met houten uitbreiding
24 augustus 2021, 10:42
Naar ontwerp van
Schoots Architecten
is een 19e-eeuwse stadsvilla in Amersfoort, gelegen aan een doorgaande weg naar de binnenstad, getransformeerd tot woongebouw met vijf appartementen. Daarbij is aan de achterzijde een compleet houten en demontabele aanbouw toegevoegd.
Het karakteristieke pand was inmiddels in gebruik als kantoorruimte. Voor een particuliere opdrachtgever is de oude stadsvilla verbouwd een aan de achterzijde uitgebreid. Met vijf duurzame en levensloopbestendige stadsappartementen heeft het pand zijn woonfunctie terug gekregen.
Verschillende appartementen
De aanbouw aan de achterzijde draagt bij aan de grote vrijheid voor de nieuwe bewoners om hun huis naar eigen wens in te richten, legt Schoots Architecten uit. Elke woning is uniek in vorm en is ruimtelijk door de hoge plafonds. Door een slimme stapeling van elementen zijn de appartementen voorzien van ruime terrassen.
Aan de voorzijde heeft het bestaande pand weer het karakter van een woonhuis gekregen, leggen de architecten uit. De kantooruitstraling uit de jaren zestig van de vorige eeuw is teruggedraaid door de oude gevelopeningen op een abstracte manier terug te brengen in combinatie met het terugbrengen van de balkons.
Verzachting aan de achterzijde
De voor- en achterzijde van het gebouw bevinden zich als het ware in compleet verschillende werelden, vertellen de architecten. Terwijl de voorzijde nog een villa uit de 19e eeuw aan een formele straat vertegenwoordigt, ligt de andere zijde aan een compleet versteend achterterrein. Vanwege deze tegenstelling is gekozen voor een contrast gecreëerd in vorm, materiaal en kleur.
Om de versteende omgeving te verzachten is aan de achterzijde een houten stapeling van elementen toegevoegd. Deze zijde is minimaal in detaillering en eenduidig gematerialiseerd maar verrast door de afwisseling in de gevel. De houten zijde draagt zo bij aan een levendig binnenterrein en voegt de nodige warmte en kleur toe.
Verder naar achteren ligt de Zonnehof, een park waar het gebouw op uitkijkt. Door de riante terrassen op de houten volumes en de carport maakt het pand een verbinding met de groenere omgeving, legt Schoots Architecten uit.
Duurzaamheid en hout
De opdrachtgever had hoge ambities op het gebied van duurzaamheid. Zo is het gebouw energie-efficiënt door warmtepompen met een WKO in de grond, pv-panelen en een goede isolatie van bestaand en nieuw. In die ambities paste ook het idee om de nieuwbouw te voorzien van demontabele HSB-constructies met gelamineerde spanten, vertellen de architecten.
De spantconstructie is samen met De Groot Vroomshoop in BIM uitgewerkt en geprefabriceerd. Verder is de stadsvilla vooraf gescand in 3D. Door deze voorbereidingen kon de aanbouw binnen een week worden gerealiseerd, ondanks dat hij tegen een bestaand pand moest worden gebouwd.
Door korte lijnen tussen alle partijen en het volledig in BIM uitgewerkte model konden problemen in het voortraject worden voorkomen, stelt Schoots Architecten.
Trefwoorden
uitbreiding
amersfoort
renovatie
appartementengebouw
schoots architecten
hsb
transformatie
houtbouw
stadsvilla
appartementen
Locatie
Best gelezen
1
Anterieure overeenkomst voor bouw woontoren The Four in Eindhoven
donderdag, 16 april
2
Architecten voor restauratie en herbestemming Rivièrahal gekozen
donderdag, 16 april
3
De ondergrondse strijd om een duurzamere stad
donderdag, 16 april
4
Nominaties Rotterdam Architectuurprijs 2026 bekend
maandag, 20 april
5
Jury maakt shortlist Prix de Rome Architectuur 2026 bekend
donderdag, 16 april
Gerelateerde nieuwsberichten
Transformatie historische moestuin voor mens- en natuurvriendelijke invulling
23 september 2021
Studio Groen+Schild transformeert een reinwaterkelder tot woning
24 juni 2021
Zes verschillende woningen in een voormalig schoolgebouw
14 september 2021
Jongenspatronaat Tiel getransformeerd tot woon-zorggebouw
3 juni 2021
Verwoeste jeneverbranderij gerenoveerd en uitbreid tot woongebouw
23 maart 2021
Een Dordtse woning strekt zich door een voormalige zeilmakerij
2 maart 2021
De Unie Architecten ontwerpt woongemeenschap in bloembollenhallen
24 februari 2021
Plannen voor woningen in Thomaskerk van Duintjer
4 februari 2021
Een terughoudende opbouw voor een jaren 60-bungalow
18 september 2023
Een eigentijdse stadswoning in het historisch hart van Amsterdam
30 september 2020
Zoetmulder en Schoots architecten ontwerpen kindcentrum voor Meerstad
14 september 2023
Vervallen jachthaven Broekerwerf transformeert naar kleinschalige woonlocatie
26 november 2020
Zorggebouw in chaletstijl herbestemd tot luxe woningen
25 augustus 2020
Nieuw leven voor oud Tilburgs pakhuis als woongebouw
24 augustus 2020
Verborgen stadsvilla van Atelier van Wengerden
15 oktober 2019
Opvallende stadsvilla’s op een smalle kavel
17 november 2017
Projecten gezocht voor Stadsbouwprijs Amersfoort 2022
11 mei 2022
Moke Architecten presenteert twee torens in Hogekwartier Amersfoort
30 november 2021
Transformatie historische moestuin voor mens- en natuurvriendelijke invulling
23 september 2021
Studio Groen+Schild transformeert een reinwaterkelder tot woning
24 juni 2021
Zes verschillende woningen in een voormalig schoolgebouw
14 september 2021
Jongenspatronaat Tiel getransformeerd tot woon-zorggebouw
3 juni 2021
Verwoeste jeneverbranderij gerenoveerd en uitbreid tot woongebouw
23 maart 2021
Een Dordtse woning strekt zich door een voormalige zeilmakerij
2 maart 2021
De Unie Architecten ontwerpt woongemeenschap in bloembollenhallen
24 februari 2021
Plannen voor woningen in Thomaskerk van Duintjer
4 februari 2021
Een terughoudende opbouw voor een jaren 60-bungalow
18 september 2023
Een eigentijdse stadswoning in het historisch hart van Amsterdam
30 september 2020
Zoetmulder en Schoots architecten ontwerpen kindcentrum voor Meerstad
14 september 2023
Vervallen jachthaven Broekerwerf transformeert naar kleinschalige woonlocatie
26 november 2020
Zorggebouw in chaletstijl herbestemd tot luxe woningen
25 augustus 2020
Nieuw leven voor oud Tilburgs pakhuis als woongebouw
24 augustus 2020
Verborgen stadsvilla van Atelier van Wengerden
15 oktober 2019
Opvallende stadsvilla’s op een smalle kavel
17 november 2017
Projecten gezocht voor Stadsbouwprijs Amersfoort 2022
11 mei 2022
Moke Architecten presenteert twee torens in Hogekwartier Amersfoort
30 november 2021
Toon alles
Andere nieuwsberichten
De Kuil bouwt voort op karakter Afrikaanderwijk en voegt iets nieuws toe
1 uur geleden
In Rotterdam-Zuid is afgelopen jaar woningbouwproject De Kuil opgeleverd. Verdeeld over meerdere gebouwen zijn in totaal 232 woningen in verschillende typologieën gerealiseerd.
Rotterdam zoekt ontwerper voor permanente Luchtsingel
3 uur geleden
Daartoe is de gemeente woensdag een openbare selectie gestart. Door de selectie laagdrempelig te houden, hoopt de gemeente kans te geven aan ontwerptalent.
KAW viert jubileum met investering in concrete projecten
Vandaag, 09:00
Het bureau viert zijn 50-jarig bestaan en viert dat met een investering in nieuwe, betaalbare woningen binnen bestaand vastgoed.
Twaalf lessen rond het ontwerpen van autovrije buurten
Gisteren, 16:30
Half april organiseerde Architectenweb in samenwerking met BURA en MerwedeLab in Pakhuis de Zwijger een drukbezocht symposium rond het ontwerpen van autovrije buurten. Twaalf lessen.
Ontwerpwedstrijd voor nieuwe 'jas' Utrechtse elektriciteitshuisjes
29 minuten geleden
Vanwege de groei van de stad en de daarmee gepaard gaande stijgende energievraag worden in Utrecht de komende vijftien jaar zo’n achthonderd elektriciteitshuisjes geplaatst.
Provincies willen snel crisisaanpak voor overvol stroomnet
3 uur geleden
Het Interprovinciaal Overleg (IPO) roept de regering onder meer op meer geld uit te trekken voor warmtenetten en waterstof om de gevolgen van netcongestie beter op te vangen.
Synchroon en BPD ontwikkelen meer dan vierhonderd woningen in Sloterdijk I
Vandaag, 10:14
Team V architectuur is aangesteld voor het ontwerp, in de uitwerking van de plannen worden waarschijnlijk nog andere architecten bij het project betrokken.
Onvoltooid attractiepark Rotterdam geveild voor 6,5 miljoen euro
Gisteren, 13:54
Ondernemer Hennie van der Most heeft meer dan tien jaar gewerkt aan de bouw van het park aan de Doklaan in Rotterdam.
'Amsterdamse RAI gaat binnen paar weken in de verkoop'
Gisteren, 10:50
De nieuwe aandeelhouder moet de portemonnee trekken voor de bouw van woningen en kantoren op het RAI-terrein, meldt het FD.
Minister wil Lelystad Airport openen in oktober 2027
20 april, 12:24
Het vliegveld heeft nog geen natuurvergunning, maar Vincent Karremans werkt ‘parallel’ aan de andere zaken die nog moeten worden geregeld voordat vakantievluchten vanuit Flevoland kunnen beginnen.
Ga naar het nieuws-archief
Robert Muis
Redacteur
1
0
0
0
Voor een optimale gebruikservaring plaatst Architectenweb functionele cookies. Wat de verschillende cookies precies doen leggen we uit in een
overzicht
. Cookies van social media kun je optioneel
aanzetten
.
Akkoord
Instellingen
Annuleren
OK
Sluiten
Doorgaan
Inloggen
Maak een gratis persoonlijk account aan
Feedback
Feedback
Wij horen graag jouw feedback. Laat je reactie achter en eventueel jouw e-mail adres.
Reactie
Verstuur