Projecten
Producten
Bedrijven
Vacatures
Agenda
Awards
Podcasts
more_horiz
Videos
Magazine
Thema's
Favorieten
Profiel
Uitloggen
Abonneer je nu op onze nieuwsbrieven!
Abonneren
Nee, bedankt
Ja, denk met me mee rond de
materialisering van mijn project
Copyright: Bart van Hoek
Copyright: Bart van Hoek
Copyright: Bart van Hoek
Copyright: Bart van Hoek
Copyright: Bart van Hoek
Copyright: Bart van Hoek
Copyright: Bart van Hoek
Copyright: Bart van Hoek
Copyright: Bart van Hoek
Copyright: Bart van Hoek
Copyright: Bart van Hoek
Copyright: Bart van Hoek
Copyright: Bart van Hoek
Copyright: Bart van Hoek
Copyright: Bart van Hoek
Copyright: Bart van Hoek
Copyright: Bart van Hoek
Copyright: Bart van Hoek
Situatie voor transformatie, entreegevel
Copyright: Villanova architecten
Situatie voor transformatie, tuingevel
Copyright: Villanova architecten
Funderingsherstel
Copyright: Villanova architecten
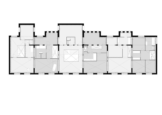
Begane grond
Copyright: Villanova architecten
Eerste verdieping
Copyright: Villanova architecten
Doorsnede
Copyright: Villanova architecten
Gevel entreezijde
Copyright: Villanova architecten
Detail
Copyright: Villanova architecten
Situatie
Copyright: Villanova architecten
Zes verschillende woningen in een voormalig schoolgebouw
14 september 2021, 15:28
In opdracht van zes particulieren heeft
Villanova architecten
het ontwerp gemaakt voor de transformatie van een schoolgebouw in Rotterdam Delfshaven tot evenzoveel woningen. Binnen het door Villanova ontworpen kader hebben alle bewoners een afwijkende woning naar eigen wens gerealiseerd.
De gemeente Rotterdam verkocht in 2016 de Osseweischool aan zes particulieren die het gebouw wilden omvormen tot afzonderlijke woningen. Bij hun opdracht aan Villanova architecten was de belangrijkste wens om individuele keuzevrijheid binnen een collectief gebouw te realiseren, met behoud van het oorspronkelijke karakter.
Lokaalindeling
Het schoolgebouw stamt uit 1902 en ligt met twee andere scholen op het binnenterrein van een gesloten bouwblok. Het pand bestaat uit twaalf klaslokalen op twee verdiepingen van 4,7 meter hoog. Aan de achterzijde lopen de gangen.
Villanova en constructiebureau Baas inventariseerden alle bewonerswensen en vertaalden dit tot een ontwerp met een uniforme uitstraling. De verkaveling is gelijk gehouden aan de oorspronkelijke lokaalindeling, waardoor er nauwelijks sloopwerk was. “Dit was niet alleen kostenbesparend, maar ook gunstig voor de eco-footprint”, stelt het architectenbureau.
Extra verdieping
De bestaande fundering is vervangen door een tafelconstructie op nieuwe palen. Hierdoor kon de vloer van de begane grond worden verlaagd, wat meer ruimte schiep om twee verdiepingen binnen de hoogte van één bestaande verdieping te realiseren.
Elke woning bestaat uit twee boven elkaar gelegen klaslokalen plus de achterliggende gangen. De meeste lokalen hebben een entresol. Extra kamers zijn bovendien gerealiseerd door een tussenverdieping met nieuwe ramen in de voormalige gangen.
Gevelopeningen
Doordat één van de vier oorspronkelijk schoolgebouwen op het binnenterrein is gesloopt, was er ruimte voor privétuinen en een besloten collectieve binnentuin. De woningen hebben openslaande deuren naar de tuinen, waartoe de borstweringen van de ramen op de begane grond zijn weggebroken.
Daarnaast heeft elke woning aan de andere zijde van het blok een eigen voordeur. Het architectenbureau heeft deze voordeuren eenzelfde status willen geven als de dubbele deuren met bovenlicht van de bestaande schoolentree. Daarom zijn de puien ruim 4,5 meter hoog, met ‘bovenlichten’ die daglicht op de eerste verdieping brengen.
De nieuwe ramen en deuren heeft Villanova duidelijk afwijkend van de bestaande gevelopeningen ontworpen. De bestaande kozijnen zijn vernieuwd in hout als draai-kiepraam met historische profilering, voorzien van dubbele kierdichting en HR++ of drievoudig glas.
Bij nieuwe ramen en deuren is gekozen voor antracietkleurige aluminium kozijnen met stalen kaders, die diep in de gevel liggen. Hierdoor zijn de ingrepen in de gevels zichtbaar als een nieuwe laag in de historie van het pand, legt Villanova uit.
Individuele invulling
Het hele gebouw is wat betreft temperatuur en geluid geïsoleerd op nieuwbouwniveau. Binnen het kader dat Villanova architecten en constructiebureau Baas hebben ontworpen, hebben de opdrachtgevers hun woningen naar eigen wens kunnen realiseren, van na-isolatie, energieconcept, trappen, dakterrassen tot en met de afbouw.
Een aantal bewoners heeft de woning als zelfbouwer vanaf casco afgemaakt; anderen namen een aannemer in de arm. Ook de interieurs zijn ontworpen door de bewoners zelf, dan wel door ARA, MoederscheimMoonen Architects, MVRDM of Studio Nauta. Elke woning is anders qua grootte en indeling.
Trefwoorden
rotterdam
villanova architecten
transformatie
schoolgebouw
cpo
herbestemming
woningbouw
collectief particulier opdrachtgeverschap
Locatie
Best gelezen
1
Luxe appartementengebouw naast klooster Etten-Leur door Studio AAAN klaar
donderdag, 19 maart
2
PSV presenteert plannen voor uitbreiding Philips Stadion
vrijdag, 20 maart
3
Houten Stelthuis van Woonpioniers is aardbevings- en klimaatbestendig
woensdag, 18 maart
4
BureauVanEig verbetert uitstraling Haagse rijtjeswoningen bij verduurzaming
dinsdag, 17 maart
5
De nieuwe kleren van de keizer
dinsdag, 17 maart
Gerelateerde nieuwsberichten
Appartementen Huys Afrika opgeleverd
17 maart 2009
Schoots Architecten geeft stadsvilla herbestemming met houten uitbreiding
24 augustus 2021
Jongenspatronaat Tiel getransformeerd tot woon-zorggebouw
3 juni 2021
Mecanoo transformeert Zaans fabriekscomplex tot stedelijke buurt
3 augustus 2021
Oudste textielfabriek Tilburg wordt Duveldorp
2 juni 2021
Herbestemming pand maakt verbinding tussen centrum Rotterdam en Oude Westen
29 april 2021
LMS Vermeersch maakt van herbestemd pakhuis een oriëntatiepunt
25 maart 2021
De Twee Snoeken geeft gelaagdheid aan monumentaal Fratershuis in Oss
23 maart 2021
Verwoeste jeneverbranderij gerenoveerd en uitbreid tot woongebouw
23 maart 2021
Oud kantoor in Capelle aan den IJssel is verbouwd tot tweede Veilige Veste
4 maart 2021
De Unie Architecten ontwerpt woongemeenschap in bloembollenhallen
24 februari 2021
JADE en Fullhouse winnen Schiedamse tender voor transformatie schoolgebouw
11 februari 2021
Gesloten diamantslijperij is herbestemd tot markant woon- en werkgebouw
19 oktober 2021
Villa als modernistische uitbreiding van een historisch pachtershuis
25 november 2021
Tentoonstelling over collectief wonen in Delft
25 mei 2022
Toko Fuze en Steenvlinder realiseren gevarieerd CPO-project De Stampioenen
16 maart 2023
Appartementen Huys Afrika opgeleverd
17 maart 2009
Schoots Architecten geeft stadsvilla herbestemming met houten uitbreiding
24 augustus 2021
Jongenspatronaat Tiel getransformeerd tot woon-zorggebouw
3 juni 2021
Mecanoo transformeert Zaans fabriekscomplex tot stedelijke buurt
3 augustus 2021
Oudste textielfabriek Tilburg wordt Duveldorp
2 juni 2021
Herbestemming pand maakt verbinding tussen centrum Rotterdam en Oude Westen
29 april 2021
LMS Vermeersch maakt van herbestemd pakhuis een oriëntatiepunt
25 maart 2021
De Twee Snoeken geeft gelaagdheid aan monumentaal Fratershuis in Oss
23 maart 2021
Verwoeste jeneverbranderij gerenoveerd en uitbreid tot woongebouw
23 maart 2021
Oud kantoor in Capelle aan den IJssel is verbouwd tot tweede Veilige Veste
4 maart 2021
De Unie Architecten ontwerpt woongemeenschap in bloembollenhallen
24 februari 2021
JADE en Fullhouse winnen Schiedamse tender voor transformatie schoolgebouw
11 februari 2021
Gesloten diamantslijperij is herbestemd tot markant woon- en werkgebouw
19 oktober 2021
Villa als modernistische uitbreiding van een historisch pachtershuis
25 november 2021
Tentoonstelling over collectief wonen in Delft
25 mei 2022
Toko Fuze en Steenvlinder realiseren gevarieerd CPO-project De Stampioenen
16 maart 2023
Toon alles
Andere nieuwsberichten
PSV presenteert plannen voor uitbreiding Philips Stadion
20 maart, 3:37
De Eindhovense club wil de capaciteit van zijn onderkomen opschroeven met maximaal 25.000 bezoekers. Om dit te bewerkstelligen, komt er een nieuwe schil rond het stadion waarin een derde ring is opgenomen.
Rijkswaterstaat staakt renovatie markante houten Krùsrak-brug in Sneek
20 maart, 11:32
Tijdens de renovatie werd duidelijk dat de constructieve veiligheid van de brug niet langer kan worden verzekerd, laat RWS weten. De uit 2008 stammende Krúsrak-brug over de rijksweg 7 is ontworpen door Onix en Archterbosch Architecten.
KAAN Architecten en De Zwarte Hond winnen tender voor Area 19 TU Eindhoven
20 maart, 10:35
De opdracht omvat het ontwerp van een nieuw onderzoeks- en onderwijsgebouw en de stedenbouwkundige ontwikkeling van een nieuw campusgebied.
Projecten gezocht voor vijfde Adriaan Dessingprijs
19 maart, 2:42
De tweejaarlijkse architectuurprijs vestigt de aandacht op bijzondere, gerealiseerde plannen in de Zuid-Hollandse gemeenten Westland en Midden-Delfland. Het kan gaan om nieuwbouw, restauratie of landschappelijke projecten.
Friesland brengt duizenden karakteristieke boerderijen in kaart
20 maart, 2:16
Door alle informatie over de voor het landschap kenmerkende gebouwen op één plek te brengen, moet het makkelijker worden om ze te behouden.
ING: bijna de helft van de huiseigenaren stelt verduurzaming uit
20 maart, 12:18
De meeste mensen vinden dat de overheid te weinig doet om dit te stimuleren.
Rekenkamer kraakt resultaten EU-innovatiefonds voor verduurzaming
20 maart, 9:25
Het Innovatiefonds van de Europese Unie levert veel minder resultaat op dan verwacht op het gebied van verduurzaming en innovatie.
Provincie schrapt beoogde locaties windturbines in Groene Hart
19 maart, 1:35
De provincie had twaalf plekken op het oog, maar dat leidde tot maatschappelijk en politiek verzet.
Staten Utrecht willen netcongestie versneld aanpakken
19 maart, 9:44
De fracties wezen op de noodzaak van het zo snel mogelijk realiseren van een hoogspanningsstation dat essentieel is voor het opsplitsen van het elektriciteitsnetwerk tussen de Flevopolder, Gelderland en Utrecht.
Rotterdam wil woningbouw versnellen met pilot ‘Ontwikkelaar aan Zet’
18 maart, 4:33
De gemeente Rotterdam start een pilot waarbij projectontwikkelaars een grotere rol krijgen bij de voorbereiding van woningbouwprojecten.
Ga naar het nieuws-archief
Robert Muis
Redacteur
0
0
0
0
Voor een optimale gebruikservaring plaatst Architectenweb functionele cookies. Wat de verschillende cookies precies doen leggen we uit in een
overzicht
. Cookies van social media kun je optioneel
aanzetten
.
Akkoord
Instellingen
Annuleren
OK
Sluiten
Doorgaan
Inloggen
Maak een gratis persoonlijk account aan
Feedback
Feedback
Wij horen graag jouw feedback. Laat je reactie achter en eventueel jouw e-mail adres.
Reactie
Verstuur