Projecten
Producten
Bedrijven
Vacatures
Agenda
Awards
Podcasts
more_horiz
Videos
Magazine
Thema's
Favorieten
Profiel
Uitloggen
Copyright: Laurens Kuipers
Copyright: Laurens Kuipers
Copyright: Laurens Kuipers
Copyright: Laurens Kuipers
Copyright: Laurens Kuipers
Copyright: Laurens Kuipers
Copyright: Laurens Kuipers
Copyright: architecten van Mourik
Copyright: architecten van Mourik
WaterLab Universiteit Twente ontworpen als 'vitrine' voor onderzoekers
14 april 2023, 10:47
Op de campus van de Universiteit Twente in Enschede is vorige maand het WaterLab opgeleverd. Behalve dat er onderzoek wordt gedaan willen de gebruikers hun activiteiten tonen aan de buitenwereld. Daarom heeft
architecten van Mourik
het gebouw ontworpen als een vitrine.
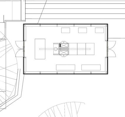
Het WaterLab staat op het door LOLA Landscape Architects heringerichte Hogekampplein en past in de door dit bureau ontworpen gridstructuur van 2x2m. Vanwege de plaatsing langs de belangrijkste zicht- en looplijn van het plein is het laboratorium bovendien optimaal zichtbaar. Het gebouw is zo ingericht dat er verschillende proefopstellingen gemaakt kunnen worden, wat niet alleen handig is voor de onderzoekers, maar ook interessant voor voorbijgangers en andere gebruikers van het plein.
De gevel is een hybride van een houten constructie en aluminium kozijnen. Dit is gebeurd onder het adagium ‘low-tech constructie, high-tech gevel’ en is tevens gedaan om aansluiting te vinden op het landschappelijke programma van het heringerichte plein, meldt architecten van Mourik. Dankzij de grote glasoppervlakken zijn de proefopstellingen en het werk van de onderzoekers geheel zichtbaar voor de buitenwereld.
Het zestig vierkante meter omvattend gebouw is voorzien van een groen dak met plek voor flora en fauna, dat tevens het uitzicht van de gasten van het naastgelegen hotel op het WaterLab veraangenaamt.
Trefwoorden
universiteit twente
architecten van mourik
enschede
laboratorium
water
lola landscape architects
Locatie
Best gelezen
1
Het streven naar nieuw is ouderwets
donderdag, 20 november
2
SAWA officieel geopend door Koningin Máxima
donderdag, 20 november
3
Space&Matter ontwerpt ingetogen houten paviljoen voor BSO in Zeist
vrijdag, 21 november
4
Studioninedots deelt nieuwe beelden van project Spark op Smakkelaarsveld in Utrecht
maandag, 24 november
5
MoederscheimMoonen Architects ontwerpt eigen kantoor in historische vertrekhal Oranjelijn Rotterdam
woensdag, 19 november
Gerelateerde nieuwsberichten
State of Architecture ontwerpt uitbreiding cyclotron-gebouw TU/e
19 april 2023
LOLA geselecteerd voor landschapsontwerp Hartree in Cambridge
18 juli 2023
LOLA en IWA transformeren oude begraafpaats Bilbao naar stadstuin
8 augustus 2023
Keizer Koopmans en Bureau B+B presenteren integrale gebiedsvisie stationskwartier Enschede
8 juli 2024
Enschede als 'vernieuwende stad' centraal tijdens negende Dag van de Stad
20 oktober
Tuin van de Leidse Meelfabriek ontworpen als 'natuurlijk schilderij'
19 juli 2024
Realisatie nieuw faculteitsgebouw van Universiteit Twente gestart
7 juni 2021
LOLA ontwerpt een modulair plein voor Universiteit Twente
12 oktober 2017
Civic, VDNDP & Groen+Schild winnen selectie universiteitsgebouw ITC
29 oktober 2019
Architecten van Mourik presenteert aanpasbare prefab woning
20 oktober 2022
Woonzorgcentrum Westhovenplein wint Berlagevlag 2021
22 september 2021
Ensemble met sociale huisvesting en zorgwoningen voor Moerwijk
7 januari 2021
Waterbouwers werken aan plannen voor zeespiegelstijging na 2100
18 april 2023
State of Architecture ontwerpt uitbreiding cyclotron-gebouw TU/e
19 april 2023
LOLA geselecteerd voor landschapsontwerp Hartree in Cambridge
18 juli 2023
LOLA en IWA transformeren oude begraafpaats Bilbao naar stadstuin
8 augustus 2023
Keizer Koopmans en Bureau B+B presenteren integrale gebiedsvisie stationskwartier Enschede
8 juli 2024
Enschede als 'vernieuwende stad' centraal tijdens negende Dag van de Stad
20 oktober
Tuin van de Leidse Meelfabriek ontworpen als 'natuurlijk schilderij'
19 juli 2024
Realisatie nieuw faculteitsgebouw van Universiteit Twente gestart
7 juni 2021
LOLA ontwerpt een modulair plein voor Universiteit Twente
12 oktober 2017
Civic, VDNDP & Groen+Schild winnen selectie universiteitsgebouw ITC
29 oktober 2019
Architecten van Mourik presenteert aanpasbare prefab woning
20 oktober 2022
Woonzorgcentrum Westhovenplein wint Berlagevlag 2021
22 september 2021
Ensemble met sociale huisvesting en zorgwoningen voor Moerwijk
7 januari 2021
Waterbouwers werken aan plannen voor zeespiegelstijging na 2100
18 april 2023
Toon alles
Andere nieuwsberichten
RxDOMI ontwikkelt modulaire, biobased mantelzorgwoning op basis van WikiHouse-systeem
Gisteren, 16:06
Met 3D-modules van 10 m2 kunnen kleinere en grote woonruimtes gerealiseerd worden. RxDOMI ontwikkelt en bouwt de modulaire mantelzorgwoning.
Open oproep: deel jullie ontwerp binnen de Merwedekanaalzone
Gisteren, 12:30
Half december willen we op Architectenweb.nl een overzichtsartikel van de verschillende ontwerpen publiceren en nemen jullie ontwerp daar dan graag in mee!
Stad Villingen-Schwenningen kiest VenhoevenCS en RKW Architektur voor nieuw Zentralbad
Gisteren, 12:00
VenhoevenCS heeft, in samenwerking met RKW Architektur +, de aanbesteding gewonnen voor het nieuwe Zentralbad in Villingen-Schwenningen, Duitsland.
Compacter schoolgebouw in Klein-Zundert maakt veel groener schoolplein mogelijk
Gisteren, 10:30
In Klein-Zundert, een dorp in Noord-Brabant, heeft een uitgestrekte, eenlaagse school plaats gemaakt voor een tweelaagse, duurzame school met houten aula als hart. Door de compactere opzet van de nieuwe school kon de omgeving ervan vergroend worden.
Kennisinstituut: reizen met auto, vliegtuig en e-bike in de lift
Gisteren, 12:56
Het wegverkeer, het aantal vliegtuigpassagiers, en het gebruik van de elektrische fiets zijn in 2024 gegroeid en naar verwachting zet die stijging door.
Amsterdam koppelt metrolijn 50 en 53 om capaciteit metronetwerk te verhogen
Gisteren, 10:00
Op het nieuwe netwerk kunnen de metro's vaker rijden: acht keer per uur overdag en tien keer per uur in de spits. Door de ontvlechting rijden er straks minder lijnen op hetzelfde spoor.
Gemeente Den Haag komt met meldpunt voor onveilige plekken
24 november, 12:11
De gemeente Den Haag heeft een meldpunt gecreëerd waar mensen melding kunnen maken van onveilige plekken. Experts bekijken de locaties vervolgens om vast te stellen welke maatregelen er nodig zijn om het gevoel van veiligheid te verbeteren.
Vervoersregio's Rotterdam, Den Haag en Amsterdam willen miljard extra voor OV
21 november, 11:29
Volgens burgemeester Jan van Zanen van Den Haag is 500 miljoen euro extra nodig "om niet achteruit te gaan door indexering en bezuinigingen". En nog eens 500 miljoen euro is nodig "om het OV mee te laten groeien met het aantal inwoners.
Mogelijke proef zelfrijdende pendelbussen tussen station Hoofddorp en Schiphol Trade Park
20 november, 2:15
De provincie Noord-Holland onderzoekt of het zelfrijdende pendelbussen zonder chauffeur kan laten rijden in de buurt van Schiphol. Als dit qua veiligheid en techniek haalbaar is, wil de provincie in 2027 een proef starten.
Fietsflat bij Amsterdam Centraal wordt na 25 jaar gesloopt
20 november, 1:45
Voor de door VMX Architects ontworpen fietsenstalling is geen nieuwe plek gevonden. Daarom wordt de 'fietsflat' nu gesloopt.
Ga naar het nieuws-archief
Ronnie Weessies
Redacteur
0
0
0
0
Voor een optimale gebruikservaring plaatst Architectenweb functionele cookies. Wat de verschillende cookies precies doen leggen we uit in een
overzicht
. Cookies van social media kun je optioneel
aanzetten
.
Akkoord
Instellingen
Annuleren
OK
Sluiten
Doorgaan
Inloggen
Maak een gratis persoonlijk account aan
Feedback
Feedback
Wij horen graag jouw feedback. Laat je reactie achter en eventueel jouw e-mail adres.
Reactie
Verstuur