Projecten
Producten
Bedrijven
Vacatures
Agenda
Awards
Podcasts
more_horiz
Videos
Magazine
Thema's
Favorieten
Profiel
Uitloggen
Abonneer je nu op onze nieuwsbrieven!
Abonneren
Nee, bedankt
Ja, denk met me mee rond de
materialisering van mijn project
Copyright: Rob van Esch
Copyright: Rob van Esch
Copyright: Rob van Esch
Copyright: Rob van Esch
Copyright: Rob van Esch
Copyright: Rob van Esch
Copyright: Rob van Esch
Copyright: Rob van Esch
Copyright: Matthijs Borghgraef
Copyright: Ossip van Duivenbode
Copyright: Ossip van Duivenbode
Copyright: Rob van Esch
Copyright: Rob van Esch
Copyright: Rob van Esch
Copyright: Rob van Esch
Copyright: Rob van Esch
Copyright: Rob van Esch
Copyright: Rob van Esch
Copyright: Rob van Esch
Copyright: Rob van Esch
Copyright: Rob van Esch
Copyright: Rob van Esch
Copyright: Rob van Esch
Copyright: Rob van Esch
Copyright: Rob van Esch
Copyright: Rob van Esch
Copyright: Ossip van Duivenbode
Copyright: Rob van Esch
Copyright: EGM architecten
Copyright: EGM architecten
Copyright: EGM architecten
Copyright: EGM architecten
Copyright: EGM architecten
Copyright: EGM architecten
Nieuw Erasmus MC officieel geopend
11 september 2018, 12:17
Afgelopen donderdag is in het bijzijn van koning Willem-Alexander het nieuwe Erasmus MC in Rotterdam geopend. Daarmee komt officieel een einde aan twintig jaar plannen, ontwerpen en bouwen. Door middel van nieuwbouw is een verzameling losse gebouwen getransformeerd naar een kleine ‘medische stad’.
EGM architecten
is verantwoordelijk voor het ontwerp van zowel de architectuur als het interieur. Het landschapsontwerp is, evenals het groen op de daken en in het interieur, ontworpen door
Juurlink
[+]
Geluk
.
Nadat er al twaalf jaar van plannen en ontwerpen aan vooraf was gegaan, is tussen 2009 en 2017 gebouwd aan het Erasmus MC, dat met een omvang van 207.000 vierkante meter het grootste universitair medisch centrum van Nederland is. Dagelijks zullen 13.500 medewerkers, 4.500 studenten en duizenden patiënten en bezoekers in het ziekenhuis te vinden zijn.
Alles in het nieuwe Erasmus MC draait om het creëren van een ‘healing environment’, dat bijdraagt aan een sneller herstel van de patiënt, verlaging van het stressniveau bij een ziekenhuisbezoek en zorgt voor een prettige werkomgeving voor het personeel. Hierom zijn ruime passages, verschillende atria, grote glaspartijen, verdiepte patio’s en veel groen gerealiseerd.
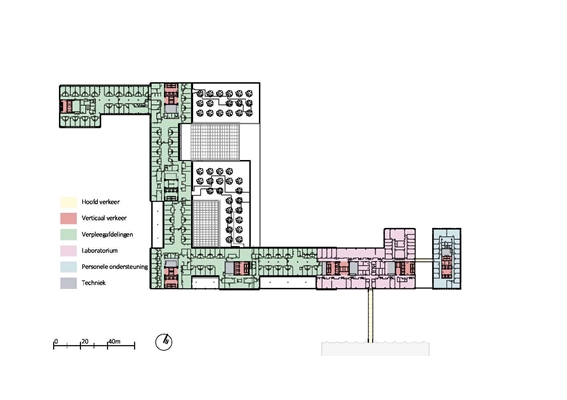
Verbindingsas
Een centrale, U-vormige verbindingsas vormt de ruggengraat van het complex en ritst bestaande en nieuwe gebouwen aaneen. Bovendien zijn entrees van alle zijden aangesloten op deze met daglicht overgoten binnenstraat, worden de verschillende functionele zones van het ziekenhuis vanuit de as ontsloten en is de as een herkenningspunt binnen het ziekenhuis.
Aan de as liggen atria met de omvang van een plein, die in functionele en esthetische zin belangrijke onderdelen vormen van het ontwerp. Deze publieke verblijfsgebieden hebben, passend binnen het healing environment-concept, een hoog afwerkingsniveau met een houten binnengevel, bamboe zitelementen, verlichting tussen het groen en een glazen overkapping.
De zorg is georganiseerd rond de zorgbehoefte van de patiënt. De specialismen en voorzieningen rondom ziektebeelden, zoals oncologie, hersenen en zintuigen, zijn bijeengebracht en verticaal geclusterd in patiëntenthema’s. Binnen deze clusters vinden patiënten alles wat zij nodig hebben voor hun specifieke zorgvraag, meldt EGM architecten.
Eveneens ter bevordering van het herstel beschikken alle patiënten over eenpersoonskamers, met eigen sanitair. Zo heeft elke patiënt een eigen plek waar hij of zij in alle beslotenheid bezoekers en artsen kan ontvangen. Dankzij het zicht naar buiten en directe daglichtinval in de kamers ervaren de patiënten bovendien het dagritme.
Plint
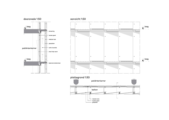
De hoofdingang van het nieuwe Erasmus MC is duidelijk herkenbaar aan de vier verdiepingen hoge transparante plint, die aan de zijkanten over twee verdiepingen is doorgezet (met er achterliggende functies als kantoren, horeca en fitness).
Boven de plint is een gevarieerd gevelbeeld gecreëerd met geplooide bouwmassa’s, afwisselende horizontale en verticale raampartijen, een variatie aan diepe neggen en erkers en verschillend afgewerkte betonnen geveldelen. De patiëntenkamers zijn herkenbaar aan de houten geveldelen.
Deze variatie deelt de gevel op in duidelijke eenheden, meldt EGM architecten. Op die manier wordt de indruk gewekt van een rij afzonderlijke coherente gebouwen aan een levendige straat. Ook de lagere bouwmassa’s zijn opgebroken in kleinere bouwdelen, waarmee ze aansluiten op de kleinschalige onderwijs- en woongebouwen in de directe omgeving.
Flexibiliteit
De nieuwbouw kent een grote indelings- en gebruiksflexibiliteit. De vrij indeelbare vloervelden hebben een stramienmaat tot 9.60 meter, een verdiepingshoogte van 4.00 meter en dragende gevels voor de 31 verdiepingen tellende kantoortoren.
Tijdens het ontwerpproces is het casco vanwege de lange doorlooptijd van het project losgekoppeld van het interieurontwerp. Dankzij dit ‘tweesporentraject’ konden de nieuwste zorgprocessen en de bijbehorende medische apparatuur worden ingepast.
Trefwoorden
juurlink [ ] geluk
erasmus mc
universitair medisch centrum
egm architecten
ziekenhuis
zorg
rotterdam
Locatie
Best gelezen
1
PSV presenteert plannen voor uitbreiding Philips Stadion
vrijdag, 20 maart
2
Luxe appartementengebouw naast klooster Etten-Leur door Studio AAAN klaar
donderdag, 19 maart
3
Houten Stelthuis van Woonpioniers is aardbevings- en klimaatbestendig
woensdag, 18 maart
4
BureauVanEig verbetert uitstraling Haagse rijtjeswoningen bij verduurzaming
dinsdag, 17 maart
5
KAAN Architecten en De Zwarte Hond winnen tender voor Area 19 TU Eindhoven
vrijdag, 20 maart
Gerelateerde nieuwsberichten
Ontwikkelingsgericht interieurontwerp voor Prinses Máxima Centrum
28 november 2018
Invloeden Bossche School geven nieuw hoofdgebouw Radboudumc eigen ritmiek
23 november 2022
Voormalig onderzoeksgebouw TU/e-campus open gemaakt voor Fontys-opleidingen
25 november 2019
Team aan de Schie geselecteerd voor volgende fase binnenstadscampus Erasmus MC
20 juni 2025
Verslag van Het Tweede Grote Zorgcongres
8 december 2015
Minister moet Erasmus MC 236 miljoen betalen
19 oktober 2015
Winnaars Rotterdam Architectuurprijs bekend
20 december 2013
Hoogste punt Erasmus MC bereikt
6 oktober 2011
Nieuwbouw Erasmus MC van start
15 oktober 2009
BAM en Ballast Nedam breiden Erasmus MC uit
29 mei 2009
Duurzaam bouwhek rond Erasmus MC
22 juli 2008
Bouwstart 'gevangenisdorp' Haren (B) aanstaande
31 oktober 2018
Compact en robuust kantoor voor Scheepswerf Slob
16 november 2018
Erasmus MC grote winnaar Rotterdam Architectuurprijs
19 december 2018
Plannen voor vervanging Bronovo
8 maart 2019
EGM benoemt Zita Balajti tot associate architect
3 april 2019
Jaarboek Architectuur 2018/2019 officieel gepresenteerd
7 mei 2019
Noord-Zuidlijn is BNA Beste Gebouw van het Jaar 2019
17 mei 2019
MAS biedt concept voor toekomstige ziekenhuis
10 juli 2019
Heleen Meinsma benoemd tot associate bij EGM architecten
17 september 2019
Kliniek als villa in het bos door EGM
11 november 2019
Rotterdam start competitie voor loopbrug over ‘s-Gravendijkwal
27 januari 2020
Medisch centrum op Saba gerenoveerd door DAM Caribbean
16 april 2020
EGM architecten ontwerpt politiedistrictskantoor in Middelburg
8 mei 2020
Vernieuwd stadhuis en stadskantoor Hengelo in gebruik genomen
5 juni 2020
wUrck ontwerpt voetgangersbrug tussen Erasmus MC en Little C
23 september 2020
Erasmus MC krijgt een campus
3 februari 2022
Ontwikkelingsgericht interieurontwerp voor Prinses Máxima Centrum
28 november 2018
Invloeden Bossche School geven nieuw hoofdgebouw Radboudumc eigen ritmiek
23 november 2022
Voormalig onderzoeksgebouw TU/e-campus open gemaakt voor Fontys-opleidingen
25 november 2019
Team aan de Schie geselecteerd voor volgende fase binnenstadscampus Erasmus MC
20 juni 2025
Verslag van Het Tweede Grote Zorgcongres
8 december 2015
Minister moet Erasmus MC 236 miljoen betalen
19 oktober 2015
Winnaars Rotterdam Architectuurprijs bekend
20 december 2013
Hoogste punt Erasmus MC bereikt
6 oktober 2011
Nieuwbouw Erasmus MC van start
15 oktober 2009
BAM en Ballast Nedam breiden Erasmus MC uit
29 mei 2009
Duurzaam bouwhek rond Erasmus MC
22 juli 2008
Bouwstart 'gevangenisdorp' Haren (B) aanstaande
31 oktober 2018
Compact en robuust kantoor voor Scheepswerf Slob
16 november 2018
Erasmus MC grote winnaar Rotterdam Architectuurprijs
19 december 2018
Plannen voor vervanging Bronovo
8 maart 2019
EGM benoemt Zita Balajti tot associate architect
3 april 2019
Jaarboek Architectuur 2018/2019 officieel gepresenteerd
7 mei 2019
Noord-Zuidlijn is BNA Beste Gebouw van het Jaar 2019
17 mei 2019
MAS biedt concept voor toekomstige ziekenhuis
10 juli 2019
Heleen Meinsma benoemd tot associate bij EGM architecten
17 september 2019
Kliniek als villa in het bos door EGM
11 november 2019
Rotterdam start competitie voor loopbrug over ‘s-Gravendijkwal
27 januari 2020
Medisch centrum op Saba gerenoveerd door DAM Caribbean
16 april 2020
EGM architecten ontwerpt politiedistrictskantoor in Middelburg
8 mei 2020
Vernieuwd stadhuis en stadskantoor Hengelo in gebruik genomen
5 juni 2020
wUrck ontwerpt voetgangersbrug tussen Erasmus MC en Little C
23 september 2020
Erasmus MC krijgt een campus
3 februari 2022
Toon alles
Gerelateerde bedrijven
TG Lining
Making places and spaces accessible
Andere nieuwsberichten
Vernieuwde Welstandsnota Rotterdam staat in teken van Omgevingswet, duurzaamheid en gebruiksgemak
2 uur geleden
De Rotterdamse Welstandsnota uit 2012 is geactualiseerd. Daarbij waren nieuwe inzichten en regelgeving, alsmede het gebruiksgemak voor gemeente en aanvragers bepalend.
PSV presenteert plannen voor uitbreiding Philips Stadion
20 maart, 3:37
De Eindhovense club wil de capaciteit van zijn onderkomen opschroeven met maximaal 25.000 bezoekers. Om dit te bewerkstelligen, komt er een nieuwe schil rond het stadion waarin een derde ring is opgenomen.
Rijkswaterstaat staakt renovatie markante houten Krùsrak-brug in Sneek
20 maart, 11:32
Tijdens de renovatie werd duidelijk dat de constructieve veiligheid van de brug niet langer kan worden verzekerd, laat RWS weten. De uit 2008 stammende Krúsrak-brug over de rijksweg 7 is ontworpen door Onix en Archterbosch Architecten.
KAAN Architecten en De Zwarte Hond winnen tender voor Area 19 TU Eindhoven
20 maart, 10:35
De opdracht omvat het ontwerp van een nieuw onderzoeks- en onderwijsgebouw en de stedenbouwkundige ontwikkeling van een nieuw campusgebied.
Boekholt schrapt wet die voorrang statushouders stopt
1 uur geleden
De minister werkt aan een alternatieve wet, die pas in werking treedt als er genoeg mogelijkheden zijn om statushouders aan een huis te helpen.
Friesland brengt duizenden karakteristieke boerderijen in kaart
20 maart, 2:16
Door alle informatie over de voor het landschap kenmerkende gebouwen op één plek te brengen, moet het makkelijker worden om ze te behouden.
ING: bijna de helft van de huiseigenaren stelt verduurzaming uit
20 maart, 12:18
De meeste mensen vinden dat de overheid te weinig doet om dit te stimuleren.
Rekenkamer kraakt resultaten EU-innovatiefonds voor verduurzaming
20 maart, 9:25
Het Innovatiefonds van de Europese Unie levert veel minder resultaat op dan verwacht op het gebied van verduurzaming en innovatie.
Provincie schrapt beoogde locaties windturbines in Groene Hart
19 maart, 1:35
De provincie had twaalf plekken op het oog, maar dat leidde tot maatschappelijk en politiek verzet.
Staten Utrecht willen netcongestie versneld aanpakken
19 maart, 9:44
De fracties wezen op de noodzaak van het zo snel mogelijk realiseren van een hoogspanningsstation dat essentieel is voor het opsplitsen van het elektriciteitsnetwerk tussen de Flevopolder, Gelderland en Utrecht.
Ga naar het nieuws-archief
Ronnie Weessies
Redacteur
1
0
0
0
Voor een optimale gebruikservaring plaatst Architectenweb functionele cookies. Wat de verschillende cookies precies doen leggen we uit in een
overzicht
. Cookies van social media kun je optioneel
aanzetten
.
Akkoord
Instellingen
Annuleren
OK
Sluiten
Doorgaan
Inloggen
Maak een gratis persoonlijk account aan
Feedback
Feedback
Wij horen graag jouw feedback. Laat je reactie achter en eventueel jouw e-mail adres.
Reactie
Verstuur