Abonneer je nu op onze nieuwsbrieven!
Abonneren
Nee, bedankt
Ja, denk met me mee rond de
materialisering van mijn project
Overzicht
Copyright: Scagliola Brakkee
Impressie toekomstige situatie
Copyright: Scagliola Brakkee
Entree
Copyright: Scagliola Brakkee
Atrium
Copyright: Scagliola Brakkee
Atrium
Copyright: Scagliola Brakkee
Kleiner atrium met poliklinieken
Copyright: Scagliola Brakkee
Zitjes rond kleiner atrium
Copyright: Scagliola Brakkee
Kleiner atrium met poliklinieken
Copyright: Scagliola Brakkee
Behandelkamer
Copyright: Scagliola Brakkee
Behandelkamer
Copyright: Scagliola Brakkee
Kleiner atrium met poliklinieken
Copyright: Scagliola Brakkee
Zicht op binnentuin en kleiner atrium erachter
Copyright: Scagliola Brakkee
Daktuin
Copyright: Scagliola Brakkee
Daktuin
Copyright: Scagliola Brakkee
Balie op verdieping met patiëntenkamers
Copyright: Scagliola Brakkee
Zitje op verdieping met patiëntenkamers
Copyright: Scagliola Brakkee
Patiëntenkamer
Copyright: Scagliola Brakkee
Bedrijfsrestaurant
Copyright: Scagliola Brakkee
Bibliotheek
Copyright: Scagliola Brakkee
Copyright: EGM architecten
Copyright: EGM architecten
Copyright: EGM architecten
Copyright: EGM architecten
Copyright: EGM architecten
Copyright: EGM architecten
Copyright: EGM architecten
Copyright: EGM architecten
Copyright: EGM architecten
Copyright: EGM architecten
Copyright: EGM architecten
Copyright: EGM architecten
Copyright: EGM architecten
Copyright: EGM architecten
Copyright: EGM architecten
Copyright: EGM architecten
Invloeden Bossche School geven nieuwe hoofdgebouw Radboudumc eigen ritmiek
Met het ontwerp voor het nieuwe hoofdgebouw van Radboudumc zet EGM architecten, als het om universitair medische centra gaat, een nieuwe standaard wat betreft hospitality, healing environment, efficiency en duurzaamheid. Dat in het ontwerp ook een aantal principes van de Bossche School zijn toegepast, maakt het gebouw extra prettig en menselijk.
Het heeft wel wat van een eigentijds hotel, de manier waarop je het nieuwe hoofdgebouw van Radboudumc (gebouw A) in Nijmegen binnenkomt. Van buiten is het een statig en symmetrisch gebouw dat zijn bezoekers met een brede colonnade en luifels welkom heet. De feitelijke entree binnen de colonnade is compact gelaten, om wat erachter ligt een grotere verrassing te laten zijn.

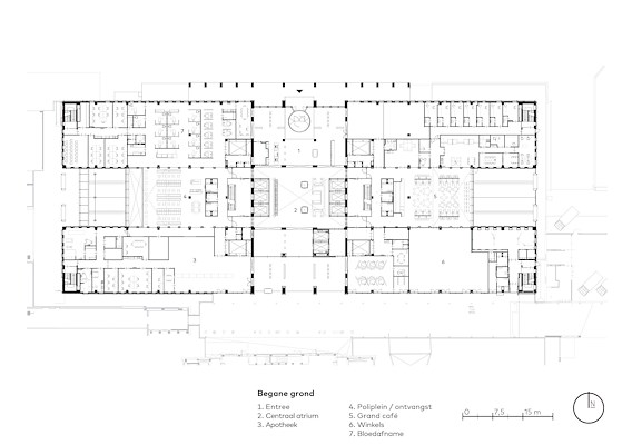
Die verrassing is een licht en groen atrium dat zeven verdiepingen hoog is. Links en rechts bewegen transparante liften omhoog en omlaag. Middenin de ruimte bewegen ‘vogels’ in slow-motion hun vleugels heen en weer – een kunstwerk van Studio Drift. Van de zorg zelf is hier nog niets te zien, net als van de restaurants en de café’s in het gebouw. Hier word je welkom geheten, meld je je aan bij één van de informatiebalies of wacht je even in een van de zitjes. Het is een wat formele maar daarmee ook kalme entree.
“In het atrium maak je als bezoeker de keuze om de oostelijke of westelijke vleugel van het gebouw in te gaan. Vanaf dat moment is het bijna 48.000 m2 grote gebouw eigenlijk nog maar half zo groot”, stelt Daniël van den Berg, architect en partner van EGM architecten. Vanuit het atrium maak je ook de keuze of je onderin het gebouw blijft, waar de poliklinieken liggen, of dat je naar boven gaat, naar de patiëntenkamers of de kantoren.
Kom je voor de poliklinieken, dan beweeg je een van de vleugels in, en kom je bij een van de lagere atria uit. Centraal in die atria liggen de ontvangstgebieden, met uitzicht op binnentuinen. De poliklinieken liggen in drie lagen rond die atria.

Kom je voor de patiëntenkamers of de kantoren daar weer boven, dan kun je een van de zes liften nemen. “Omdat het gebouw toch zeven verdiepingen hoog is, en we patiënten en bezoekers niet wilden ontmoedigen, hebben we er hier voor gekozen om de liften het zichtbaarst te maken en de ruime trappen daarachter te plaatsen”, licht Van den Berg toe.

De liften zijn bijzonder ruim uitgevoerd – er moet ook een bed in kunnen – en hebben één transparante zijde die zicht biedt op het atrium. Een bijzonder prettige manier om omhoog het gebouw in te gaan.
Bossche School
In het nieuwe hoofdgebouw van Radboudumc ervaar je overal architectonische verhoudingen en daarbij horende ritmes: van de gevel via het grote atrium tot in de kleinere atria. In de houten kaders in het interieur is dat het best zichtbaar. “Wat je ervaart zijn de verhoudingen 1:2 en 1:3 en in mindere mate ook de verhouding 3:4”, licht Van den Berg toe.

“Het bouwbureau van het toen nog ‘katholiek’ geheten ziekenhuis kreeg les van architect Dom van der Laan”, vertelt Van den Berg. De eerste gebouwen van het ziekenhuis na de Tweede Wereldoorlog dragen daarom kenmerken van de Bossche School. In de loop van de tijd zijn sommige van die gebouwen weer gesloopt. Maar in het ontwerp van het nieuwe hoofdgebouw heeft EGM architecten die lijn weer opgepakt. Om zo de identiteit van deze plek naar voren te halen.

Maar de gehanteerde maatverhoudingen en daaruit volgende ritmes leveren meer op. Als je rondloopt in het ziekenhuis merk je dat de verhoudingen niet gedicteerd worden door de bouwtechniek, maar dat die bouwtechniek ten dienste staat van het ontwerp. De gehanteerde maatverhoudingen trekken het gebouw uit het technische domein in het kunstzinnige en zodoende menselijke domein. Het is daardoor een heel menselijk gebouw geworden. Voor een ziekenhuis als dit is dat niet niks.
Achter het nieuwe hoofdgebouw ligt een flink gebouw dat volgens de principes van de Bossche School ontworpen is. In de renovatie van dat gebouw naar ontwerp van EGM architecten is de binnenplaats overdekt en is daar een restaurant gerealiseerd. In het gebouw zijn nu vooral kantoren opgenomen en het restaurant is zo in basis het bedrijfsrestaurant. “Maar iedereen kan hier wat komen eten”, benadrukt Van den Berg. In het oude gebouw zijn veel hardstenen kaders te zien, laat de architect zien. “In de nieuwbouw is dat motief vertaalt naar houten kaders.”

Binnen het plastisch getal, zoals Dom van der Laan dat onderwees, was de verhouding 3:4 heel belangrijk. In de verhouding van ruimtes, van openingen, van balken en kolommen. Juist die verhouding bleek in dit ontwerp meestal niet praktisch, geeft Van den Berg aan, daarom heeft hij zich met zijn team gericht op andere verhoudingen die in de Bossche School ook veel voorkomen. In het ontwerp van de voorgevel van het gebouw komt de getallenreeks 1-2-3-5-8 terug.
Een compact ziekenhuis
Meer doen met minder. Dat is wat de Raad van Bestuur van Radboudumc het ontwerpteam tien jaar geleden meegaf. Het ziekenhuis wilde in een compactere setting betere voorzieningen bieden. Daarbij hoorde dat voorzieningen, waar dat logisch is, voortaan ook door afdelingen gedeeld zouden worden. Met die ambitie was het ziekenhuis zijn tijd ver vooruit, constateert Van den Berg. “Van eigendom naar gebruik.”

Het verlangen naar een compacter ziekenhuis kwam ook voort uit de wel erg ruim en meanderend opgezette westvleugel van het ziekenhuis. De looplijnen die daaruit voort kwamen waren enorm. Dat moest anders. “Met de realisatie van het nieuwe hoofdgebouw is het totale ziekenhuis maar liefst 100.000 m2 kleiner geworden”, becijfert Van den Berg. “Het totale ziekenhuis is nu nog een kleine 400.000 m2 groot, dus er is een vijfde af gegaan.”

De oude westvleugel van het ziekenhuis wordt momenteel gesloopt. Daarvoor in de plaats komt een groot park. Zo wordt de geschiedenis van deze plek, als landgoed, opnieuw zichtbaar. Op de plek waar na de Tweede Wereldoorlog de universiteit en het ziekenhuis zijn verrezen, was daarvoor namelijk eeuwenlang landgoed Heyendael te vinden. Van dat landgoed zijn zowel het oude landhuis als het nieuwe landhuis overgebleven. Met de sloop van de westvleugel van het Radboudumc wordt de laan naar het oude landhuis – nu Oud-Heyendael genoemd – weer beter leesbaar en wordt het nieuwe landhuis – nu Huize Heyendael of het kasteeltje genoemd – weer omringd door groen.
Drie generaties architect-partners vanuit EGM architecten
Het ontwerpproces dat leidde tot het nieuwe hoofdgebouw van Radboudumc stond vanuit EGM architecten onder leiding van architect-partners Daniël van den Berg en Willemineke Hammer. Het is de derde generatie architecten-partners die vanuit EGM architecten aan het ziekenhuis werken. De eerste generatie werd gevormd door architecten-partners Gerard Groot Zwaftink en Bas Molenaar, de tweede generatie door architect-partner Pieter Walraad. Vanuit het bureau wordt er al vanaf de vroege jaren negentig aan gewerkt.

De verschillende gebouwen die over de decennia zijn gerealiseerd, weerspiegelen de veranderende inzichten rond zorggebouwen. In elk volgend gebouw zie je meer aandacht voor de beleving en het welbevinden van gebruikers. Daglicht, groen, wayfinding… in ieder gebouw krijgt het meer ruimte. Het nieuwe hoofdgebouw gaat daarin weer een heel aantal stappen verder dan het gebouw voor Medium en Intensive Care dat hiervoor gerealiseerd is.

In het nieuwe hoofdgebouw is bij het ontwerp van het interieur op initiatief van het ziekenhuis samengewerkt met een interieurarchitect met veel ervaring in de hospitality: Suzanne Holtz Studio. Die samenwerking heeft het ontwerp extra diepte gegeven. Daardoor is er een grote rijkdom in het kleurgebruik in het interieur, is de detaillering van het vaste meubilair net wat zwieriger en is er een rijkdom aan toegepaste patronen op de vloeren en wanden. De kraakheldere structuur en uitwerking van het gebouw kan het hebben. Bij de uitwerking van het interieur zijn vervolgens ook EGM interieur en de afdeling bouwzaken van het ziekenhuis nog betrokken geweest.

Aan zijn achterzijde sluit het nieuwe hoofdgebouw aan op een gezamenlijke ‘pier’ die de verschillende gebouwen van het Radboudumc met elkaar verbinden. Deze kaarsrechte, meerlaagse ontsluiting is begin jaren negentig door de voorgangers van Van den Berg geïntroduceerd en werkt wat hem betreft goed. De structuur laat de gebouwen zelf in hun waarde. Ook biedt de structuur de flexibiliteit om gebouwen toe te voegen of weg te nemen.

Aan zijn oostelijke uiteinde haakt de ‘pier’ aan op het kinderziekenhuis. Daar is bovenin de pier onlangs een Ronald McDonald huiskamer ontworpen door EGM architecten en Thoben & Minten. Dit ontwerp was genomineerd voor de prijs voor Zorggebouw van het Jaar 2022. De bolle vormen van die huiskamer contrasteren sterk met de rechthoekige geometrie van de ‘pier’. Zo is daar echt een eigen wereldje gecreëerd.
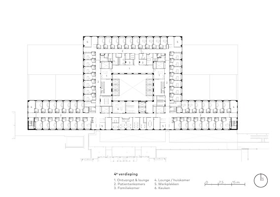
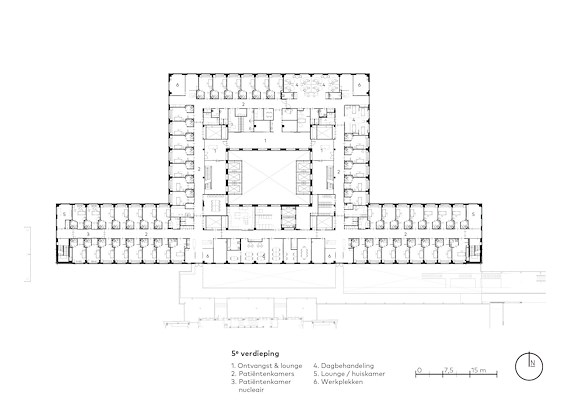
Patiëntenkamers
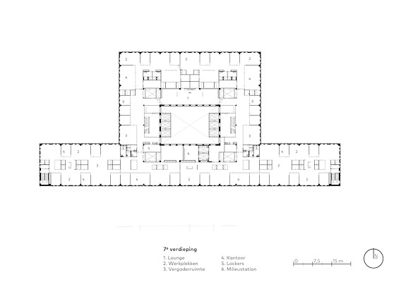
Terug naar het nieuwe hoofdgebouw van het Radboudumc. Boven de drie lagen met poliklinieken liggen vier lagen met patiëntenkamers en daar bovenop liggen nog twee lagen met kantoren. In de aluminium gevel van het hoofdgebouw is die ordening ook leesbaar gemaakt.

De verdiepingen met de poliklinieken vouwen zich rond twee atria en daarachter gelegen binnentuinen. Zo wordt op die verdiepingen de plattegrond bijna geheel gevuld. Richting de patiëntenkamers verjongt het bouwvolume zich om de 150 eenpersoonskamers allemaal een eigen uitzicht te geven. Ter hoogte van die verjonging zijn twee daktuinen gemaakt.

In de oudere gebouwen van het Radboudumc kijken de patiëntenkamers soms ook nog uit op bebouwing van het ziekenhuis zelf. Radboudumc is tot het inzicht gekomen dat die situatie, waar dat mogelijk is, beter vermeden kan worden. Een vrij uitzicht werkt voor de patiënten echt beter. Zo is in het hoofdgebouw tot een plattegrond gekomen in de vorm van een omega. De patiëntenkamers liggen in twee vleugels en aan drie zijden van het middendeel van het gebouw. In de laatste zijde van het middendeel liggen, heel centraal, ruimtes voor het zorgverlenend personeel.

Op de verdiepingen worden patiënten en gasten opgevangen bij stijlvol ontworpen balies en kan er gewacht worden op mooi vormgegeven zitjes. Bij het ontwerp van de patiëntenkamers zelf is alles uit de kast gehaald om deze er zo normaal mogelijk uit te laten zien. En het heeft echt al iets van een hotelkamer, met een ‘houten’ vloer, een muurschildering op de wand achter het bed, een groot televisiescherm daar tegenover en een groot raam. De kabelgoten en andere techniek is opgenomen in de achterwand. Noodzakelijke kasten en tafels zijn op maat gemaakt voor de kamers en houden alle voorraad uit het zicht. Voor het raam is een bank opgenomen die in een handomdraai getransformeerd kan worden tot een slaapbank. Het raam zelf biedt een weids uitzicht over de stad Nijmegen. De lichtinval kan daarbij op verschillende manieren worden geregeld – met vitrage, zonwering en gordijnen.

Voor de patiëntenkamer is van tevoren een mock-up gebouwd om alle onderdelen te testen. En dat is te zien. Alles sluit perfect op elkaar aan. De badkamer is bijvoorbeeld overal voorzien van ronde hoeken, heeft een speciaal hygiënisch putje gekregen en heeft een hele slimme indeling gekregen.

Een noviteit is nog dat het bed in de kamer ook nog een kwartslag gedraaid en dan langs de muur geplaatst kan worden. Hiervoor zijn de aansluitingen op een slimme manier in de wand opgenomen. Het zorgt voor een prikkelarmere situatie voor patiënten die daar behoefte aan hebben.

Vanuit het bed staan de patiënt en haar of zijn bezoekers via een tablet in contact met het zorgpersoneel. Zo kan direct de juiste zorgverlener opgeroepen worden en kunnen specifieke wensen doorgegeven worden. Ook kan de patiënt aangeven waar hij of zij in algemene zin behoefte aan heeft. Buiten de kamer hangt een scherm waarop die behoeften zichtbaar zijn, net als algemene informatie over de patiënt. Het welbevinden van de patiënt en efficiency in het zorgproces komen hier bij elkaar.
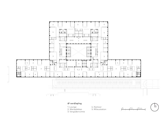
Kantoorverdiepingen
Bovenin het hoofdgebouw zijn nog twee kantoorverdiepingen voor het zorgpersoneel ontworpen. Deze volgen de omega-opzet van de verdiepingen eronder, met open kantoorruimtes in de vleugels en aan drie zijden van het middendeel van het gebouw. Het middendeel is op de ene verdieping ingezet als bibliotheek en op de andere verdieping ingezet als lounge.

Op de kantoorverdiepingen heeft niemand meer een vaste werkplek. Dat was natuurlijk wel een proces, geeft Van den Berg aan, maar het maakt ook een veel hoger voorzieningenniveau mogelijk, en dat ziet iedereen die er werkt. Naast werkplekken in een open setting zijn er overal overlegruimtes en videobelruimtes gemaakt. Zo is het heel eenvoudig om je even terug te trekken voor een overleg.
Healing environment
“Veel daglicht, overal uitzicht op de eigen binnentuin en verrassende doorkijkjes maken elke ruimte prettig. Werken en verblijven in natuurlijk licht – de hele dag door – ondersteunt het bioritme en is cruciaal voor lichamelijk en geestelijk herstel”, schrijft EGM architecten over het ontwerp. “Het centrale atrium over zeven verdiepingen zorgt voor daglicht in het hart van het gebouw. Volwassen bomen en groene planten halen de natuur naar binnen. De getrapte polipleinen, ontvangstgebieden en het restaurant liggen achter een glazen gevel, die zich in één beweging omvouwt tot glazen kap. Zo wordt de natuur voel- en tastbaar. De dynamische lichtschakeringen spelen een essentiële rol in het gebouw voor een prettig en gezond verblijfsklimaat.”
Duurzaamheid
Het ontwerp voor het nieuwe hoofdgebouw heeft – als eerste universitair medisch centrum in Nederland – een BREEAM Excellent-certificaat ontvangen. Het gebouw kent een materiaalbesparende constructie, dunne vloervelden, veel prefab-onderdelen, 700 m² zonnepanelen op het dak, een WKO-installatie, waterbesparende maatregelen en verbruikt geen fossiele brandstoffen. Daarbij is biophilic design toegepast en heeft het Radboudumc de eigen processen en facilitaire inkoop ingericht op basis van duurzaamheid en gezondheid. Alle ontwerpkeuzes en innovaties samen maken van het gebouw volgens Radboudumc het duurzaamste ziekenhuis van West-Europa.

Gerelateerde nieuwsberichten

Gerelateerde podcasts

Andere nieuwsberichten

'Stuttende' en contrasterende installatie voor Besiendershuis Nijmegen

1 mei, 3:52

Specht architectuur en stedenbouw toont met meergeneratiehofje alledaagse woongemeenschappelijkheid

1 mei, 2:25

Mobiliteitshub van gerecycled tropisch hardhout voor Tholen

1 mei, 11:41

Kleurrijke textielinstallatie van Simone Post voor entreegebied Centraal Museum

1 mei, 9:05

Verzet natuurorganisaties tegen stroomkabel via Schiermonnikoog

1 mei, 4:39

ING: huizenprijzen stijgen dit jaar niet verder door hoger aanbod

1 mei, 1:03

TenneT mag datacenteraansluiting uitstellen om vol stroomnet

1 mei, 10:11

Brabant investeert 1,4 miljoen in waterfilter in Vlaanderen

30 april, 3:51

Rli: klimaat, vervuiling en groei bedreigen beschikbaarheid drinkwater

30 april, 12:20

ABN AMRO: huurwetaanpassingen stoppen uittocht beleggers niet

30 april, 9:04
Michiel van RaaijHoofdredacteur
KUBUS | Specialist in Archicad
SAPA
Reynaers Aluminium Nederland
Jansen
SAB-profiel bv
Aliplast Aluminium Systems
Kingspan Light & Air
ALUCOBOND®
Caparol
Tarkett BV
Kawneer
Grohe Nederland B.V.
Malaysian Timber Council
OCS | Office Cabling Systems
Swisspearl Nederland
Forster Nederland N.V.
VELUX Commercial Benelux B.V.
Sempergreen
Houthandel van Dam
Aluprof Nederland BV
QbiQ Wall Systems
Forbo Flooring
Schüco Nederland
Cedral
Sto Isoned bv
Triflex bv
Gorter Luiken BV
wienerberger
DUCO Ventilation & Sun Control
BEWI IsoBouw
ROCKWOOL B.V.
Mview+
Rockfon (ROCKWOOL B.V.)
Gira Nederland B.V.
Kingspan Geïsoleerde Panelen
GEZE Benelux  B.V.
Renson
Metaglas Groep
ABB | Busch-Jaeger
Jung | Hateha B.V.
Knauf B.V.
Saint-Gobain Glass Benelux
Faay Vianen B.V.
objectflor
Boon Edam Nederland B.V.
Hunter Douglas Architectural
VOLA Nederland BV
Forbo Eurocol Nederland B.V.
EQUITONE gevelpanelen
Holonite B.V.
Kronospan
Tata Steel Colorcoat®
Architectenweb
Over ons
Contact

© 2002 - 2026 Architectenweb BV / Voorwaarden / Privacy / Disclaimer / Sitemap
Annuleren
OK
Sluiten
Doorgaan
Inloggen
Maak een gratis persoonlijk account aan