Projecten
Producten
Bedrijven
Vacatures
Agenda
Awards
Podcasts
more_horiz
Videos
Magazine
Favorieten
Profiel
Uitloggen
Abonneer je nu op onze nieuwsbrieven!
Abonneren
Nee, bedankt
Ja, denk met me mee rond de
materialisering van mijn project
Copyright: Bas Gijselhart
Copyright: Bas Gijselhart
Copyright: Bas Gijselhart
Copyright: Bas Gijselhart
Copyright: Bas Gijselhart
Copyright: Bas Gijselhart
Copyright: Bas Gijselhart
Copyright: Bas Gijselhart
Copyright: Bas Gijselhart
Copyright: Bas Gijselhart
Copyright: Bas Gijselhart
Copyright: Bas Gijselhart
Copyright: Bas Gijselhart
Situatie
Copyright: EGM architecten
Copyright: EGM architecten
Copyright: EGM architecten
Copyright: EGM architecten
Copyright: EGM architecten
Copyright: EGM architecten
Copyright: EGM architecten
Drie woongebouwen op kunstmatige terp aan de Waal door EGM architecten
26 juli 2024, 11:29
In de Dijkzone langs de Waal in Nijmegen is afgelopen jaar het door
EGM architecten
ontworpen woningbouwproject Loyd opgeleverd. Het gaat om een ensemble van drie gebouwen met in totaal 78 woningen. De gebouwen liggen op een kunstmatige terp, waardoor de bewoners hoger uitzicht genieten op onder meer de rivier en het historische stadscentrum van Nijmegen.
De gebouwen verspringen in hoogte trapsgewijs en zijn in omvang oplopend, wat volgens EGM voor een prettige ruimtelijke ervaring zorgt. Om de bewoners van de royale appartementen goed van het uitzicht te kunnen laten genieten, zijn de woningen voorzien van grote ramen en ruime leefbalkons. Bewoners kunnen elkaar ontmoeten in de omliggende, openbaar toegankelijke bloementuin en patio.
De gevel is gemaakt van bamboe met reliëf, dat gedurende dag voor een schaduwspel zorgt. De bamboe heeft de hoogste milieuclassificatie (A-label) en is CO2-neutraal gedurende de levensduur. De keramische balkonranden benadrukken de horizontaliteit van de architectuur. De keramische delen zijn droog gemonteerd en daardoor eenvoudig vervangbaar.
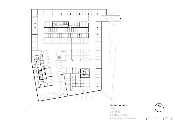
De gebouwen zelf hebben een flexibele opzet, die eventueel veranderend gebruik in de toekomst mogelijk maakt. Alle gebouwen kunnen dankzij de indelingsvrijheid per verdieping en de individuele liften vanuit de parkeergarage per gebouw afzonderlijk van functie veranderen. De parkeergarage, die toegankelijk is via de patio, biedt tevens plek aan fietsen en bergingen.
In de Nijmeegse Dijkzone, die is gelegen tussen Hof van Holland en de Waaldijk, komen meer dan zevenhonderd woningen. Naast Loyd worden de projecten De Waalhoven (565 woningen, ontwerp: Barcode Architects, KCAP Architects&Planners enLodewijk Baljon landschapsarchitecten) en Homestead (77 woningen, ontwerp: Zecc Architecten) gerealiseerd. Daarnaast is er ruimte voor zelfbouw.
Trefwoorden
lent
nijmegen
waalsprong
dijkzone
egm architecten
woningbouw
Locatie
Best gelezen
1
Woontoren Front door Monadnock wint tiende Architectuurprijs Nijmegen
donderdag, 9 april
2
Architect Cees Dam op 93-jarige leeftijd overleden
dinsdag, 14 april
3
SeARCH en Heutink Groep winnen tender voor woongebouw Sluisbuurt
vrijdag, 10 april
4
Powerhouse Company wint aanbesteding voor verbouwing Vista College Maastricht
dinsdag, 14 april
5
Tien bureaus geselecteerd voor tweede ronde nieuwbouw De Meervaart
woensdag, 15 april
Gerelateerde nieuwsberichten
MIX architectuur ontwerpt woningen rond 'erf' langs de Spiegelwaal
7 april
Woningbouwproject Hortus Ludi onderscheiden met Architectuurprijs Nijmegen 2024
5 april 2024
Bouw van landschappelijke woonbuurt in Nijmegen-Noord gestart
28 november 2024
Koschuch Architects ontwerpt woontoren aan de Waal in Nijmegen
4 januari 2024
EGM architecten weerspiegelt merkidentiteit The Magnum Ice Cream Company in interieur hoofdkantoor
13 mei 2025
Kindcentrum met variërende gevels en buitenterrein voor Montfoort
10 januari 2025
Beeldbepalende woongebouwen aan de Waalkade in Nijmegen
3 januari 2024
Woontoren Front vervult meerdere rollen in Hart van de Waalsprong
Gisteren, 16:31
Van borrelen tot dansen in industriële omgeving
12 augustus 2024
Radboudumc heeft speciaal infectieziektengebouw naar ontwerp van EGM
18 december 2023
Eerste fase energieneutraal winkelcentrum Hart van Waalsprong geopend
16 november 2023
Twee Nederlandse zorgprojecten verkozen tot internationaal beste van afgelopen tien jaar
17 februari 2025
Drie woongebouwen met een licht karakter in Park Fort Krayenhoff
15 november 2023
Grootschalig woningbouwproject Havenkade Nijmegen afgerond
12 juli 2023
Lingotto presenteert plannen herontwikkeling Honigcomplex in Nijmegen
24 oktober 2022
Transformatie De Vasim tot multifunctioneel gebouw afgerond
20 december 2023
Politieteam Feijenoord krijgt nieuwe thuisbasis op Rotterdam-Zuid
9 juli 2024
Bouw nieuwe Nederlandse ambassade in Ankara gaat van start
28 juni 2024
EGM realiseert renovatie faculteit Diergeneeskunde volgens circulaire principes
6 juni 2024
Zeven biobased woningen op de plek van een voormalig tuincentrum
2 september 2025
EGM architecten ontwerpt nieuwbouw Adrz in Goes
4 april 2024
Inschrijving voor tiende editie Architectuurprijs Nijmegen geopend
19 december 2025
EGM architecten ontwerpt uitbreiding terminal Eindhoven Airport
25 maart 2024
Eerste integrale Spoedpost in Amsterdam-Noord straalt rust uit
11 maart 2024
EGM benoemt Jan Paul de Ridder tot associate
15 januari 2024
Invloeden Bossche School geven nieuw hoofdgebouw Radboudumc eigen ritmiek
23 november 2022
Kanshebbers voor tiende editie Architectuurprijs Nijmegen bekend
4 maart
MIX architectuur ontwerpt woningen rond 'erf' langs de Spiegelwaal
7 april
Woningbouwproject Hortus Ludi onderscheiden met Architectuurprijs Nijmegen 2024
5 april 2024
Bouw van landschappelijke woonbuurt in Nijmegen-Noord gestart
28 november 2024
Koschuch Architects ontwerpt woontoren aan de Waal in Nijmegen
4 januari 2024
EGM architecten weerspiegelt merkidentiteit The Magnum Ice Cream Company in interieur hoofdkantoor
13 mei 2025
Kindcentrum met variërende gevels en buitenterrein voor Montfoort
10 januari 2025
Beeldbepalende woongebouwen aan de Waalkade in Nijmegen
3 januari 2024
Woontoren Front vervult meerdere rollen in Hart van de Waalsprong
Gisteren, 16:31
Van borrelen tot dansen in industriële omgeving
12 augustus 2024
Radboudumc heeft speciaal infectieziektengebouw naar ontwerp van EGM
18 december 2023
Eerste fase energieneutraal winkelcentrum Hart van Waalsprong geopend
16 november 2023
Twee Nederlandse zorgprojecten verkozen tot internationaal beste van afgelopen tien jaar
17 februari 2025
Drie woongebouwen met een licht karakter in Park Fort Krayenhoff
15 november 2023
Grootschalig woningbouwproject Havenkade Nijmegen afgerond
12 juli 2023
Lingotto presenteert plannen herontwikkeling Honigcomplex in Nijmegen
24 oktober 2022
Transformatie De Vasim tot multifunctioneel gebouw afgerond
20 december 2023
Politieteam Feijenoord krijgt nieuwe thuisbasis op Rotterdam-Zuid
9 juli 2024
Bouw nieuwe Nederlandse ambassade in Ankara gaat van start
28 juni 2024
EGM realiseert renovatie faculteit Diergeneeskunde volgens circulaire principes
6 juni 2024
Zeven biobased woningen op de plek van een voormalig tuincentrum
2 september 2025
EGM architecten ontwerpt nieuwbouw Adrz in Goes
4 april 2024
Inschrijving voor tiende editie Architectuurprijs Nijmegen geopend
19 december 2025
EGM architecten ontwerpt uitbreiding terminal Eindhoven Airport
25 maart 2024
Eerste integrale Spoedpost in Amsterdam-Noord straalt rust uit
11 maart 2024
EGM benoemt Jan Paul de Ridder tot associate
15 januari 2024
Invloeden Bossche School geven nieuw hoofdgebouw Radboudumc eigen ritmiek
23 november 2022
Kanshebbers voor tiende editie Architectuurprijs Nijmegen bekend
4 maart
Toon alles
Gerelateerde podcasts
Gesprek met Willemineke Hammer en Roemer Pierik over 50 jaar EGM architecten
20 juni 2024
Andere nieuwsberichten
Anterieure overeenkomst voor bouw woontoren The Four in Eindhoven
Vandaag, 13:26
Naar verwachting wordt beging volgend jaar gestart met de bouw van woontoren The Four in Eindhoven. De door Mecanoo ontworpen toren op de zogeheten Vierlanderlocatie in Fellenoord bestaat uit 306 woningen.
Jury maakt shortlist Prix de Rome Architectuur 2026 bekend
Vandaag, 09:30
Dérive (Hedwig van der Linden and Kevin Westerveld), Maarten Plomp en Iris van der Wal, Namelok (Wiegert Ambagts en Kaj van Boheemen) en Slodka x Zatta (Izabela Slodka en Federica Zatta) zijn de kanshebbers voor deze editie van de prijs.
Woontoren Front vervult meerdere rollen in Hart van de Waalsprong
Gisteren, 16:31
Vorige week werd de door Monadnock ontworpen woontoren Front onderscheiden met de Architectuurprijs Nijmegen. Het achthoekige gebouw in Lent markeert het centrum van de stadsuitbreiding Hart van de Waalsprong.
Bijzonder erfgoed Fundatie van Renswoude Utrecht gered
Gisteren, 15:29
Hendrick de Keyser Monumenten heeft de Fundatie van Renswoude in Utrecht, een bijzonder goed bewaard ensemble uit de 18e eeuw, verworven. Hiermee blijven gebouw, historisch interieur en collectie als een geheel behouden.
Architecten voor restauratie en herbestemming Rivièrahal gekozen
Vandaag, 12:00
Voor de grootscheepse restauratie en herbestemming van de Rivièrahal in de Rotterdamse Diergaarde Blijdorp zijn Mecanoo en BiermanHenket geselecteerd.
Bewoners aardbevingsgebied Groningen blijven kritisch op herstel
Vandaag, 10:34
Door de complexiteit en onzekerheid van het jarenlange proces ervaren mensen stress en frustratie.
ING: optoppen en splitsen van woningen steeds minder haalbaar
Gisteren, 13:22
Het kabinet-Jetten gaat naar verwachting het doel van 15.000 extra woningen per jaar uit verbouwingen niet halen, stelt ING.
Geen rechtszaak over subsidie ministerie aan Van Gogh Museum
Gisteren, 10:02
De zaak draait om geld dat het museum nodig zegt te hebben voor een renovatie.
AFM: funderingsproblemen bij bijna 220.000 woningen
14 april, 1:25
De huizen van bijna een half miljoen woningeigenaren hebben een hoog risico op funderingsproblemen of een mogelijke kwetsbare fundering.
Oprichter omgevallen vastgoedconcern Evergrande bekent schuld
14 april, 9:17
Evergrande was ooit de grootste projectontwikkelaar van China, maar kwam in de problemen toen het zijn schulden niet kon terugbetalen.
Ga naar het nieuws-archief
Ronnie Weessies
Redacteur
1
0
0
0
Voor een optimale gebruikservaring plaatst Architectenweb functionele cookies. Wat de verschillende cookies precies doen leggen we uit in een
overzicht
. Cookies van social media kun je optioneel
aanzetten
.
Akkoord
Instellingen
Annuleren
OK
Sluiten
Doorgaan
Inloggen
Maak een gratis persoonlijk account aan
Feedback
Feedback
Wij horen graag jouw feedback. Laat je reactie achter en eventueel jouw e-mail adres.
Reactie
Verstuur