Projecten
Producten
Bedrijven
Vacatures
Agenda
Awards
Podcasts
more_horiz
Videos
Magazine
Favorieten
Profiel
Uitloggen
Abonneer je nu op onze nieuwsbrieven!
Abonneren
Nee, bedankt
Ja, denk met me mee rond de
materialisering van mijn project
Copyright: Sebastian van Damme
Copyright: Sebastian van Damme
Copyright: Sebastian van Damme
Copyright: Sebastian van Damme
Copyright: Sebastian van Damme
Copyright: Sebastian van Damme
Copyright: Sebastian van Damme
Copyright: Sebastian van Damme
Copyright: Sebastian van Damme
Copyright: Sebastian van Damme
Copyright: Sebastian van Damme
Copyright: Sebastian van Damme
Copyright: Sebastian van Damme
Copyright: Sebastian van Damme
Copyright: Sebastian van Damme
Copyright: Sebastian van Damme
Situatie
Copyright: Orange Architects
Concept
Copyright: Orange Architects
Doorsnede
Copyright: Orange Architects
Plattegrond begane grond
Copyright: Orange Architects
Typische woonplattegrond
Copyright: Orange Architects
Entreehal
Copyright: Orange Architects
Fragment
Copyright: Orange Architects
Geveldetail plattegrond
Copyright: Orange Architects
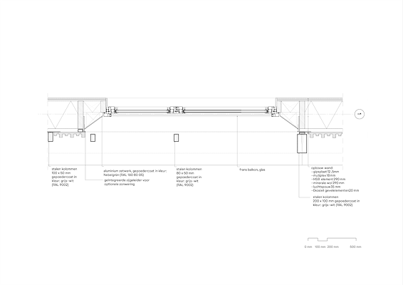
Geveldetail doorsnede
Copyright: Orange Architects
Duurzaamheidsschema
Copyright: Orange Architects
Drie woongebouwen met een licht karakter in Park Fort Krayenhoff
15 november 2023, 10:32
In het ontwikkelgebied Waalfront in Nijmegen heeft
Orange Architects
drie woongebouwen met in totaal 42 appartementen ontworpen. Samen met een gereconstrueerde fortwand en een groen ingericht landschap naar ontwerp van
Bureau Oslo
vormen de gebouwen Park Fort Krayenhoff. De gebouwen zijn identiek, maar ten opzichte van elkaar gedraaid en gespiegeld.
Hierdoor ontstaat een losse en speelse compositie van gebouwen met een licht karakter. Dit beeld wordt versterkt doordat de gebouwen zijn opgetild; onder de gebouwen ligt een half ondergrondse parkeergarage. De gevels zijn bekleed met steenachtige, verdiepingshoge panelen in een lichte groentint met een subtiele verticale profilering. Ter plaatse van de inpandige buienruimtes draait de thermische schil naar binnen en volgen dunne kolommen de contouren van het gebouw.
De gebouwen bestaan ieder uit veertien appartementen (95-154 vierkante meter), verdeeld over vijf bouwlagen waarvan de bovenste twee iets terugtrappen. Een compacte kern biedt toegang tot drie appartementen per laag en twee penthouses op de bovenste verdieping. De daken zijn voorzien van pv-panelen. De onderste woningen liggen iets boven het maaiveld, de entrees zijn op de begane grond gerealiseerd.
Park Fort Krayenhoff ligt op de plek van het gelijknamige verdedigingsbolwerk, dat in de vorige eeuw moest wijken voor industrie. Onder meer de Honigfabriek en De Vasim, die beide worden herontwikkeld, staan in de buurt. Als onderdeel van het nieuwe woonpark werd de historische fortwand, aan de oostzijde van het park, gereconstrueerd op zijn oorspronkelijk positie.
Als overloopgebied en knipoog naar het oude fort is aan de andere kant van de woongebouwen een ‘droge’ gracht gegraven, die ruimte biedt aan groen en fungeert als wadi. Als de ontwikkeling op het naastgelegen terrein klaar is, komen er bruggen over deze gracht.
Trefwoorden
bureau oslo
nijmegen
orange architects
waalfront
woningbouw
Locatie
Best gelezen
1
Architect Cees Dam op 93-jarige leeftijd overleden
dinsdag, 14 april
2
Powerhouse Company wint aanbesteding voor verbouwing Vista College Maastricht
dinsdag, 14 april
3
Tien bureaus geselecteerd voor tweede ronde nieuwbouw De Meervaart
woensdag, 15 april
4
Anterieure overeenkomst voor bouw woontoren The Four in Eindhoven
donderdag, 16 april
5
Voormalig hoofdkantoor Ferro in M4H verbouwd tot bedrijfsverzamelgebouw
woensdag, 15 april
Gerelateerde nieuwsberichten
Transformatie De Vasim tot multifunctioneel gebouw afgerond
20 december 2023
Grootschalig woningbouwproject Havenkade Nijmegen afgerond
12 juli 2023
Masterplan voor Havenkade Nijmegen gereed
7 april 2020
Vijf genomineerden voor Abe Bonnema Architectuurprijs 2023
11 oktober 2023
Zuider Gymnasium en Fridtjof Nansenschool winnen Rotterdam Architectuurprijs 2023
7 juni 2023
Woningbouwproject Hortus Ludi onderscheiden met Architectuurprijs Nijmegen 2024
5 april 2024
Jonas uitgeroepen tot BNA Beste Gebouw van het Jaar 2023
11 mei 2023
Drie woongebouwen op kunstmatige terp aan de Waal door EGM architecten
26 juli 2024
Porseleinen Hof vormt sculpturale hoeksteen van Nieuw Delft
8 juli 2024
Woningbouwproject The Hudsons naast het Dakpark opgeleverd
22 maart 2023
Zecc Architecten presenteert ontwerp voor renovatie De Vasim
29 november 2021
Een sculpturale woontoren als baken in Kerckebosch
1 april 2025
Overdekt winkelcentrum Molenpoort Nijmegen maakt plaats voor woningen en straatjes
8 januari 2024
Lingotto presenteert plannen herontwikkeling Honigcomplex in Nijmegen
24 oktober 2022
Inschrijving voor Architectuurprijs Nijmegen 2023 geopend
9 januari 2024
Beeldbepalende woongebouwen aan de Waalkade in Nijmegen
3 januari 2024
Eerste fase energieneutraal winkelcentrum Hart van Waalsprong geopend
16 november 2023
Nominaties Architectuurprijs Nijmegen bekend
7 maart 2024
Team diederendirrix verbouwt Stadsschouwburg Nijmegen
29 februari 2024
Van borrelen tot dansen in industriële omgeving
12 augustus 2024
Orange en Felixx presenteren ontwerp voor woonbuurt op oud kloosterterrein
22 april 2024
Transformatie De Vasim tot multifunctioneel gebouw afgerond
20 december 2023
Grootschalig woningbouwproject Havenkade Nijmegen afgerond
12 juli 2023
Masterplan voor Havenkade Nijmegen gereed
7 april 2020
Vijf genomineerden voor Abe Bonnema Architectuurprijs 2023
11 oktober 2023
Zuider Gymnasium en Fridtjof Nansenschool winnen Rotterdam Architectuurprijs 2023
7 juni 2023
Woningbouwproject Hortus Ludi onderscheiden met Architectuurprijs Nijmegen 2024
5 april 2024
Jonas uitgeroepen tot BNA Beste Gebouw van het Jaar 2023
11 mei 2023
Drie woongebouwen op kunstmatige terp aan de Waal door EGM architecten
26 juli 2024
Porseleinen Hof vormt sculpturale hoeksteen van Nieuw Delft
8 juli 2024
Woningbouwproject The Hudsons naast het Dakpark opgeleverd
22 maart 2023
Zecc Architecten presenteert ontwerp voor renovatie De Vasim
29 november 2021
Een sculpturale woontoren als baken in Kerckebosch
1 april 2025
Overdekt winkelcentrum Molenpoort Nijmegen maakt plaats voor woningen en straatjes
8 januari 2024
Lingotto presenteert plannen herontwikkeling Honigcomplex in Nijmegen
24 oktober 2022
Inschrijving voor Architectuurprijs Nijmegen 2023 geopend
9 januari 2024
Beeldbepalende woongebouwen aan de Waalkade in Nijmegen
3 januari 2024
Eerste fase energieneutraal winkelcentrum Hart van Waalsprong geopend
16 november 2023
Nominaties Architectuurprijs Nijmegen bekend
7 maart 2024
Team diederendirrix verbouwt Stadsschouwburg Nijmegen
29 februari 2024
Van borrelen tot dansen in industriële omgeving
12 augustus 2024
Orange en Felixx presenteren ontwerp voor woonbuurt op oud kloosterterrein
22 april 2024
Toon alles
Gerelateerde video's
Jonas
Orange Architects
Andere nieuwsberichten
LEVS publiceert duurzaamheidsanalyse eigen projecten
Gisteren, 14:45
Met de Rapportage Duurzaamheid 2021–2025 heeft het bureau 43 projecten uit de afgelopen vijf jaar getoetst aan de Paris Proof normen.
Nominaties Rotterdam Architectuurprijs 2026 bekend
Gisteren, 09:00
Zowel de jury als het publiek heeft de keuze uit tien projecten, die zijn geselecteerd uit 36 inzendingen. De winnaars worden op 12 juni bekendgemaakt in het Nhow Hotel in Rotterdam.
Wie verdient dit jaar de prijs voor Architect van het Jaar?
Gisteren, 09:00
Welke architect, of collectief van architecten, heeft dit jaar de grootste bijdrage geleverd aan de ontwikkeling van de architectuur in Nederland? Stuur jouw suggestie, met een beknopte motivatie, uiterlijk 15 mei 2026 op naar Architectenweb.
OMA gebruikt bestaand gebouw als canvas bij renovatie Edo-Tokyo Museum
17 april, 3:55
Na een renovatie van bijna vier jaar is het Edo-Tokyo Museum in de Japanse hoofdstad Tokio heropend. OMA nam het uit 1993 stammende gebouw, dat is ontworpen door de Metabolist Kiyonori Kikutake, onder handen.
Minister wil Lelystad Airport openen in oktober 2027
Gisteren, 12:24
Het vliegveld heeft nog geen natuurvergunning, maar Vincent Karremans werkt ‘parallel’ aan de andere zaken die nog moeten worden geregeld voordat vakantievluchten vanuit Flevoland kunnen beginnen.
Boekholt wil minder strenge huurwet, hogere huren mogelijk
Gisteren, 10:15
Verhuurders moeten meer kunnen vragen voor dure huurhuizen, nieuwbouw en huizen zonder tuin of balkon.
Woningbouwzaken krijgen langer voorrang bij Raad van State
17 april, 4:49
Om het huizentekort tegen te gaan, blijft de Raad van State woningbouwzaken met voorrang behandelen.
Inspectie positief over verbetering sociale veiligheid TU Delft
17 april, 11:36
De TU Delft heeft aanzienlijke stappen gezet om de sociale veiligheid voor medewerkers te verbeteren.
NVM vreest minder nieuwbouw door veranderende voorrang stroomnet
17 april, 9:23
Bouwers kunnen, door onzekerheid over welke projecten straks nog maatschappelijke prioriteit krijgen in een bepaalde regio, besluiten om minder nieuwe huizen te bouwen.
Architecten voor restauratie en herbestemming Rivièrahal gekozen
16 april, 12:00
Voor de grootscheepse restauratie en herbestemming van de Rivièrahal in de Rotterdamse Diergaarde Blijdorp zijn Mecanoo en BiermanHenket geselecteerd.
Ga naar het nieuws-archief
Ronnie Weessies
Redacteur
2
0
0
0
Voor een optimale gebruikservaring plaatst Architectenweb functionele cookies. Wat de verschillende cookies precies doen leggen we uit in een
overzicht
. Cookies van social media kun je optioneel
aanzetten
.
Akkoord
Instellingen
Annuleren
OK
Sluiten
Doorgaan
Inloggen
Maak een gratis persoonlijk account aan
Feedback
Feedback
Wij horen graag jouw feedback. Laat je reactie achter en eventueel jouw e-mail adres.
Reactie
Verstuur