Projecten
Producten
Bedrijven
Vacatures
Agenda
Awards
Podcasts
more_horiz
Videos
Magazine
Thema's
Favorieten
Profiel
Uitloggen
Nieuw
Populair
Toon alles
Architectenweb magazine #14
Architectenweb magazine #13
Publieke gebouwen
Architectenweb magazine #12
Kantoren
Architectenweb magazine #11
Scholen
Architectenweb magazine #10
Zorg
Architectenweb magazine #14
Architectenweb magazine #10
Zorg
Architectenweb magazine #12
Kantoren
Architectenweb magazine #13
Publieke gebouwen
Architectenweb magazine #6
Transformatie en Renovatie
Om direct naar je favorieten te kunnen gaan is het nodig om eerst in te loggen.
Nieuw
Architectenweb Awards 2025
Architectenweb Awards 2024
Architectenweb Awards 2023
Architectenweb Awards 2022
Architectenweb Awards 2021
Architectenweb Awards 2020
Architectenweb Awards 2019
Architectenweb Awards 2018
Om direct naar je favorieten te kunnen gaan is het nodig om eerst in te loggen.
Nieuw
Populair
Favorieten
Toon alles
Vakwerk Architecten
Nominatie voor de prijs voor Architect van het Jaar 2025
Sanne van Manen
Nominatie voor de prijs voor Architect van het Jaar 2025
KSA
Nominatie voor de prijs voor Architect van het Jaar 2025
KRFT
Nominatie voor de prijs voor Architect van het Jaar 2025
Joost Ector
Nominatie voor de prijs voor Architect van het Jaar 2025
Prijsuitreiking Architectenweb Awards 2024
Impressie van een feestelijke avond
Martens, Willems & Humblé Architecten
Nominatie voor de prijs voor Architect van het Jaar 2024
Uitreiking van Architectenweb Awards 2020
Impressie van de prijsuitreiking via Zoom
De Zwarte Hond
Nominatie voor de prijs voor Architect van het Jaar 2024
Avond met De Zwarte Hond
Symposium
Om direct naar je favorieten te kunnen gaan is het nodig om eerst in te loggen.
Nieuw
Populair
Categorieën
Favorieten
Toon alles
Brandpreventie Academy BV
Cay Circulaire Keukens
Circulaire keukens en pantry's
Studio Kirsten Reith
Interieurontwerp
Studio175
Interieuradvies in regio Utrecht
Orange Automatic Doors
Indoorwrap
De specialist in Keukenwrappen
Cay Circulaire Keukens
Circulaire keukens en pantry's
Studio Kirsten Reith
Interieurontwerp
Studio175
Interieuradvies in regio Utrecht
Interior & Co
Orange Automatic Doors
Indoorwrap
De specialist in Keukenwrappen
Architecten
Architectuur
Mobiliteit en infrastructuur
Stedenbouw en landschapsarchitectuur
Leveranciers
Gevels
Daken
Ramen en deuren
Trappen, liften en balustrades
Binnenwanden
Vloeren
Plafonds
Verlichting
Sanitair
Projectinrichting
Installaties
Constructies
Buitenruimte
Software
Adviseurs
Bestekschrijvers
Bouwmanagement
Installatie adviseurs E
Bouwfysica
Calculators
Installatie adviseurs G/W
Bouwkundig tekenwerk
Constructeurs
Lichtadviseurs
Adviseur beveiliging
Juristen
Intermediairs, Payrolling
Aannemers
Overig
Presentatie
Instellingen / onderwijs
Overig
Om direct naar je favorieten te kunnen gaan is het nodig om eerst in te loggen.
Nieuw
Populair
Favorieten
Toon alles
Gesprek met Stephan Sliepenbeek over hoogbouw in Amstel III
Gesprek met Ellen van Bueren over gebiedsontwikkeling en hoogbouw
Gesprek met Ma Yansong over ontwerpen die emotie oproepen
Gesprek met Paul de Ruiter over innovatieve en duurzame hoogbouw
Gesprek met Pi de Bruijn over zijn ontwerpen voor de Tweede Kamer toen en nu
Gesprek met Ellen van Bueren over gebiedsontwikkeling en hoogbouw
Gesprek met Oresti Sarafopoulos over het ontwerpen van een kantoorgebouw met bijna geen installaties
Gesprek met Stijn Steenbakkers over verdichting en hoogbouw in Eindhoven
Gesprek met Pi de Bruijn over zijn ontwerpen voor de Tweede Kamer toen en nu
Gesprek met Paul de Ruiter over innovatieve en duurzame hoogbouw
Om direct naar je favorieten te kunnen gaan is het nodig om eerst in te loggen.
Nieuw
Populair
Categorieën
Favorieten
Toon alles
Alphen aan de Rijn - Park 100
Woningen op BEFU terrein Utrecht
Ontdek het bruisende kantoor van Roku in Amsterdam
Groningse baksteenarchitectuur met Clickbrick Pure
Berkel Noordersingel
Prinsenpark, Rotterdam
ASML Gebouw 3
IVY, Amsterdam
IKC De Brug
Houthavens, Amsterdam
Architectuur
Woningbouw
Zorg
Hotels
Restaurants en café’s
Winkels
Sportgebouwen
Culturele gebouwen
Overheidsgebouwen
Scholen
Kantoren
Bedrijfsgebouwen
Paviljoens en kunst
Overig
Mobiliteit en infrastructuur
Trein- en metrostations
Luchthavens
Busstations
Parkeergarages
Fietsparkeren
Wegen
Bruggen
Water
Energie
Tankstations en laadstations
Waterzuivering en afvalverwerking
Overig
Stedenbouw en landschapsarchitectuur
Regionale visies
Gebiedsvisies
Plannen stedelijk weefsel
Amusementsparken en dierentuinen
Lichtontwerpen
Openbare ruimte
Pleinen
Parken
Tuinen
Speelplaatsen
Uitkijktorens
Overige (bijv. begraafplaatsen)
Om direct naar je favorieten te kunnen gaan is het nodig om eerst in te loggen.
Nieuw
Populair
Categorieën
Favorieten
Toon alles
Gevelplinten
Geïsoleerd of ongeïsoleerd
ILLUNOX trapleuning met LED verlichting
Fraai en functioneel. In RVS of op kleur gecoat.
Fermacell Therm25 vloerverwarmingselementen
Vandaag droog, morgen warm
Vinylfit douchegoten voor vinylvloeren
stijlvol, hygiënisch en duurzaam
BERA RailFix - voor groene trambanen
Optimale drainage van regenwater, verkoeling van de stad, gereduceerd geluid en fijnstof
Digital Prints
Meer mogelijkheden in gekleurd staal
Element+ H-I
Hout - Aluminium Elementgevel
Vierkante vluchtroutearmaturen voor grote ruimtes
Zichtbare veiligheid van alle kanten
Schüco Zonweringsysteem Integralmaster in FWS
Bescherming tegen zon, verblinding en privacy – verborgen en volledig geïntegreerd
Dictator deuropeningsbegrenzers
Controle over elke deuropening
Gevels
Gevelbekleding
Vliesgevels
Zonwering buiten
Isolatie
Gevelconstructies
Signing
Overig
Daken
Dakafwerkingen
Dakisolatie
Dakconstructies
Dakranden, dakgoten en HWA's
Dakramen
Lichtkoepels
Lichtstraten
Schoorstenen
Overig
Dakluiken
Ramen en deuren
Raam- en deursystemen / kozijnen
Vliesgevels
Hang- en sluitwerk
Beveiliging en luiken
Dorpels en vensterbanken
Lateien
Roosters
Glas
Dakramen
Dakkoepels
Lichtstraten
Zonwering buiten
Zonwering binnen
Buitendeuren
Binnendeuren
Postvakken en brievenbussen
Overig
Dakluiken
Trappen, liften en balustrades
Trappen
Roltrappen
Liften
Balustrades en hekwerken
Galerijen
Binnenwanden
Binnenwanden
Wandafwerking
Vloeren
Constructieve vloeren
Verhoogde vloeren
Vloerafwerkingen
Overig
Plafonds
Tegels
Lineair
Grill
Open en roosters
Naadloos
Eilanden en baffles
Plafondafwerkingen
Ophangsystemen
Overig
Klimaatplafonds
Verlichting
Binnenverlichting
Buitenverlichting
Sanitair
Kranen en douchesets
Wastafels
Douchewanden en douchebakken
Baden
Waterclosets
Accessoires
Overig
Projectinrichting
Stoelen
Banken
Tafels
Kasten
Balies
Vrijstaande wanden
Keukens
Accessoires
Overig
Cabines
Interieurbeplanting
Stoffering
Installaties
Verwarming, koeling en ventilatie
Elektrotechnische installaties
Schakelmateriaal
Domotica
Deurcommunicatie
Beveiliging
Liften
Onderhoudsinstallaties
Overig
Brandbeveiliging
Constructies
Draagconstructies
Funderingen en kelders
Overig
Brandbeveiliging
Buitenruimte
Bestratingen en verhardingen
Afwateringen
Terreinafscheidingen en geluidsschermen
Buitenmeubilair
Fietsparkeren
Terrassen
Terrasoverkappingen
Bruggen
Accessoires
Overig
Beplanting
Sport- en speeltoestellen
Software
Tekenen 2D
Modelleren 3D / BIM
Visualisatie / rendering
Parametrisch ontwerpen
Bouwfysica
Draagconstructie
Overig
Virtual Reality
Cloudoplossingen
Om direct naar je favorieten te kunnen gaan is het nodig om eerst in te loggen.
Nieuw
Populair
Favorieten
Toon alles
LIAG over duurzaamheid centraal in project
Online
Zomerwandelingen Nieuwe Stad op Zondag 2025
Amsterdam
Prefab beurs - 7 t/m 9 oktober 2025
Brabanthallen 's-Hertogenbosch
Boekpresentatie en panelgesprek met Floor Milikows
Prins Hendrikkade 600, 1011 VX Amsterdam
Architects Table ’25: Lunch & Inspiratie in HAUT Amsterdam
ATAG LIVE – HAUT gebouw, Spaklerweg 10F, 1096 BA Amsterdam (tegenover metrostation Spaklerweg)
Architects Table ’25: Lunch & Inspiratie in HAUT Amsterdam
ATAG LIVE – HAUT gebouw, Spaklerweg 10F, 1096 BA Amsterdam (tegenover metrostation Spaklerweg)
Ontdek het seminarieprogramma van Architect@Work Amsterdam
De Kromhouthal, Gedempt Hamerkanaal 231, Amsterdam
LIAG over duurzaamheid centraal in project
Online
Carbon Stories: Architects taking sustainable initiatives
Keilepand Rotterdam
1.Lectures HouseEurope! Renovate, don’t speculate
Pakhuis de Zwijger
Om direct naar je favorieten te kunnen gaan is het nodig om eerst in te loggen.
Nieuw
Toon alles
Design
Duurzaamheid
Gevel
Infrastructuur
Interieur
Kantoren
Leisure
Openbare ruimte
Publieke gebouwen
Scholen
Transformatie en Renovatie
Woningbouw
Zorg
Om direct naar je favorieten te kunnen gaan is het nodig om eerst in te loggen.
Nieuw
Populair
Toon alles
architect / interieurarchitect Amsterdam
(assistent) Architect by Bassie Architectuur in Gouda.
Stedenbouwkundige Van Tuijn Stedenbouw (32 - 40 uur)
Stagiair bouwkunde Leusden
Junior Bim Modelleur
Architect
Junior Architect gezocht!
wUrck zoekt junior Architect
Project Architect
Shift zoekt medior/senior architect
Assistent Ontwerper & vakidioot
Architect
Om direct naar je favorieten te kunnen gaan is het nodig om eerst in te loggen.
Copyright: scagliolabrakkee
Copyright: scagliolabrakkee
Copyright: scagliolabrakkee
Copyright: scagliolabrakkee
Copyright: scagliolabrakkee
Copyright: scagliolabrakkee
Copyright: scagliolabrakkee
Copyright: scagliolabrakkee
Copyright: scagliolabrakkee
Copyright: scagliolabrakkee
Copyright: scagliolabrakkee
Copyright: scagliolabrakkee
Copyright: scagliolabrakkee
Copyright: scagliolabrakkee
Copyright: scagliolabrakkee
Copyright: scagliolabrakkee
Copyright: scagliolabrakkee
Copyright: scagliolabrakkee
Copyright: scagliolabrakkee
Copyright: EGM architecten
Copyright: EGM architecten
Copyright: EGM architecten
Copyright: EGM architecten
Copyright: EGM architecten
Copyright: EGM architecten
Copyright: EGM architecten
Copyright: EGM architecten
EGM architecten weerspiegelt merkidentiteit The Magnum Ice Cream Company in interieur hoofdkantoor
13 mei, 11:21
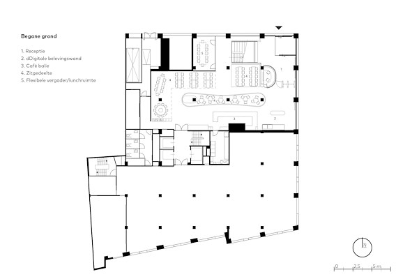
The Magnum Ice Cream Company, de verzelfstandigde voormalige ijsdivisie van Unilever, heeft een nieuw hoofdkantoor betrokken in de Amsterdamse Reguliersdwarsstraat. Voor de ijsmaker ontwierp
EGM architecten
een interieur waarin de verschillende merken van het bedrijf worden weerspiegeld en waar het personeel en de bezoekers een gevarieerde en kleurrijke werkomgeving wordt geboden. Het interieur is volledig demontabel en verschillende ontwerpkeuzes zijn ingegeven door circulaire principes.
Dit jaar is de vroegere ijsdivisie van Unilever, met bekende merken als Magnum, Ben & Jerry’s en Cornetto, omgevormd tot een zelfstandig bedrijf. The Magnum Ice Cream Company heeft zijn intrek genomen in een voormalig kantoor van Booking.com aan de Regulierswarsstraat, dat vrijkwam na de opening van een
nieuw hoofdkantoor voor het boekingsbedrijf
op het Oosterdokseiland.
Een belangrijk uitgangspunt voor het ontwerp was de vertaling van de merkidentiteit van The Magnum Ice Company in het interieur. Het hoofdmerk Magnum vormde daarbij de basis, maar ook andere submerken hebben de ruimte gekregen. Zo zijn de verschillende kleuren van de ijsmerken door het interieur verweven en vormt het beroemde Raket-ijsje het beeldmerk van the Clubhouse, een van de informele ruimtes in het kantoor.
IJsstokjes
De merkidentiteit komt ook terug in de vormentaal van het interieur. Zo zijn met de herkenbare vloeiende vorm van ijsstokjes lamellen voor tussenwanden gemaakt en hebben plafondarmaturen de kenmerkende ‘swirl’ van softijs. De swirl ook terug te zien in zwierige grafische prints op de glazen wanden.
Ook het stimuleren van interactie en samenwerking vormde een belangrijke grondslag voor het ontwerp. Er is een afwisselende interieur gerealiseerd met hybride werkplekken, concentratiezones, conferentiezalen, break-out rooms en informele overleggebieden. Het Experience Centre, waar onder meer nieuwe smaken worden ontwikkeld, heeft een centrale plek gekregen.
Het centrum beschikt over een ‘creative kitchen’, ‘tasting labs’ en interactieve demonstratieruimten. Bezoekers zoals retailers en concesssiehouders maken hier kennis met nieuwe ijsvarianten, volgen workshops wonen demonstraties bij. Ook zijn er aparte ruimtes om real-life verkoopopstellingen te testen.
Gezonde levensstijl
Het interieur van het nieuwe hoofdkantoor is volledig demontabel en daardoor flexibel indeelbaar. Hierdoor kunnen ruimtes eenvoudig worden aangepast aan veranderende behoeften, groei of nieuwe vormen van samenwerken. Ook is aandacht besteed aan het faciliteren van een gezonde levensstijl. Dat gebeurt door een zorgvuldig uitgedachte inrichting met comfortabele ontmoetingsplekken, gevarieerd meubilair voor verschillende werkstijlen, rust- en concentratiezones en ontspanningsmogelijkheden op bijvoorbeeld het dakterras.
Hergebruik vormt daarnaast een belangrijk principe voor onder meer het meubilair. Zo is bestaand vast meubilair dat op locatie was achtergebleven – zoals pantry’s en de uitgiftebalie – behouden en opgefrist met een nieuwe toplaag. Kasten uit de vorige Unilever-locatie kregen een tweede leven na een grondige opknapbeurt. Ook stoelen zijn hergebruikt en opnieuw gestoffeerd, en een deel van de verlichting is hersteld en verplaatst.
Voor dit project werkte EGM architecten samen met The Magnum Ice Company, CBRE, Sunhouse Creative, Verwol en Vijverborgh.
Trefwoorden
interieur
egm architecten
hoofdkantoor
Locatie
Best gelezen
1
Na renovatie en verduurzaming heeft Aquarium van Artis zijn helderheid terug
donderdag, 25 september
2
Architectenweb symposium: klein maar fijn wonen?
donderdag, 25 september
3
KAAN Architecten wint aanbesteding voor gebouw Europees parlement
maandag, 29 september
4
Startsein gegeven voor bouw De Scharnier op Katendrecht
maandag, 29 september
5
Kabinet wil wijken erbij op 127 plekken in Nederland
maandag, 29 september
Gerelateerde nieuwsberichten
Twee Nederlandse zorgprojecten verkozen tot internationaal beste van afgelopen tien jaar
17 februari
Hoogste punt blikvanger migratiemuseum Fenix bereikt
9 september 2024
EGM benoemt Leonie Grootveld en Martijn in ’t Veld tot associate
9 september
Drie woongebouwen op kunstmatige terp aan de Waal door EGM architecten
26 juli 2024
Bouw nieuwe Nederlandse ambassade in Ankara gaat van start
28 juni 2024
Woningbouwproject Hortus Ludi onderscheiden met Architectuurprijs Nijmegen 2024
5 april 2024
EGM architecten ontwerpt nieuwbouw Adrz in Goes
4 april 2024
EGM architecten ontwerpt uitbreiding terminal Eindhoven Airport
25 maart 2024
Eerste integrale Spoedpost in Amsterdam-Noord straalt rust uit
11 maart 2024
EGM benoemt Jan Paul de Ridder tot associate
15 januari 2024
Radboudumc heeft speciaal infectieziektengebouw naar ontwerp van EGM
18 december 2023
Twee Nederlandse zorgprojecten verkozen tot internationaal beste van afgelopen tien jaar
17 februari
Hoogste punt blikvanger migratiemuseum Fenix bereikt
9 september 2024
EGM benoemt Leonie Grootveld en Martijn in ’t Veld tot associate
9 september
Drie woongebouwen op kunstmatige terp aan de Waal door EGM architecten
26 juli 2024
Bouw nieuwe Nederlandse ambassade in Ankara gaat van start
28 juni 2024
Woningbouwproject Hortus Ludi onderscheiden met Architectuurprijs Nijmegen 2024
5 april 2024
EGM architecten ontwerpt nieuwbouw Adrz in Goes
4 april 2024
EGM architecten ontwerpt uitbreiding terminal Eindhoven Airport
25 maart 2024
Eerste integrale Spoedpost in Amsterdam-Noord straalt rust uit
11 maart 2024
EGM benoemt Jan Paul de Ridder tot associate
15 januari 2024
Radboudumc heeft speciaal infectieziektengebouw naar ontwerp van EGM
18 december 2023
Toon alles
Gerelateerde podcasts
Gesprek met Willemineke Hammer en Roemer Pierik over 50 jaar EGM architecten
20 juni 2024
Andere nieuwsberichten
Nudus en Proof of the Sum geselecteerd voor groot laboratoriumgebouw Groningen
33 minuten geleden
Een team met onder meer Nudus en Proof of the Sum is geselecteerd voor het ontwerp van het nieuwe Centraal Laboratorium voor Diagnostiek en Research (CLDR) op de Healthy Ageing Campus in Groningen.
Nieuwe editie van DigiBouw vindt plaats op 19 en 20 november in Utrecht
1 uur geleden
AI, robotisering, parametrisch ontwerpen en bouwen, verandermanagement, veiligheid, open standaarden, BIM, slimme bouwlogistiek, CO2-reductie op de bouwplaats… dat zijn de thema’s die aan bod komen bij DigiBouw.
Nominaties Interieur van het Jaar 2025 bekend
2 uur geleden
Als onderdeel van de Architectenweb Awards 2025 wordt begin november de prijs voor Interieur van het Jaar 2025 uitgereikt. Uit de achttien inzendingen voor deze prijs heeft de jury drie projecten genomineerd.
Leiden wil verhoogd busstation naast treinperrons centraal station
Gisteren, 13:55
De gemeente heeft voor die variant gekozen na overleg met verschillende belanghebbenden. Vanaf 2030 ondergaat Leiden Centraal een grote verbouwing waarbij het station een ander aanzicht krijgt.
Veelzijdig ontwerper Mathieu Bruls verzorgt 21e Peutz-lezing
Gisteren, 15:05
Bruls (1960) is een veelzijdig ontwerper, die naast gebouwen en stedenbouwkundige plannen onder meer interieurs, meubels en tentoonstellingen ontwerpt.
Rekenkamer betwijfelt of miljoenen voor Woningbouwimpuls nuttig waren
Gisteren, 12:03
Het is ‘twijfelachtig’ of honderden miljoenen euro's overheidsgeld hebben geleid tot meer woningen, schrijft de Rekenkamer.
Rapport: rijke Amsterdammers leven steeds vaker apart van rest
30 september, 9:44
Het wel of niet bezitten van een woning zorgt voor een steeds grotere welvaartskloof tussen Amsterdammers.
Meer nieuwbouw van woningcorporaties in eerste jaarhelft
29 september, 1:54
Volgens het Centraal Bureau voor de Statistiek kwamen er ruim 9100 nieuwbouwwoningen van corporaties bij.
Kabinet zet Groningenwet door na kritisch advies Raad van State
29 september, 11:01
In de wet wordt vastgelegd dat schades tot 60.000 euro worden vergoed, ook zonder dat een oorzakelijk verband met de gaswinning is aangetoond.
Vliet wordt nieuwe drinkwaterbron voor Zuid-Holland
26 september, 12:12
Waterbedrijf Dunea schat dat de aanleg van de benodigde infrastructuur zo'n 500 miljoen euro kost.
Ga naar het nieuws-archief
Ronnie Weessies
Redacteur
0
0
0
0
Voor een optimale gebruikservaring plaatst Architectenweb functionele cookies. Wat de verschillende cookies precies doen leggen we uit in een
overzicht
. Cookies van social media kun je optioneel
aanzetten
.
Akkoord
Instellingen
Annuleren
OK
Sluiten
Doorgaan
Inloggen
Maak een gratis persoonlijk account aan
Feedback
Feedback
Wij horen graag jouw feedback. Laat je reactie achter en eventueel jouw e-mail adres.
Reactie
Verstuur