Projecten
Producten
Bedrijven
Vacatures
Agenda
Awards
Podcasts
more_horiz
Videos
Magazine
Favorieten
Profiel
Uitloggen
Abonneer je nu op onze nieuwsbrieven!
Abonneren
Nee, bedankt
Ja, denk met me mee rond de
materialisering van mijn project
Entree
Copyright: Rob van Esch
De tweede verdieping als luifel
Copyright: Rob van Esch
Achterzijde
Copyright: Rob van Esch
Interieur entree
Copyright: Rob van Esch
Atirum overzicht
Copyright: Rob van Esch
Trappenhuis met kunst
Copyright: Rob van Esch
Eerste verdieping, doorzicht
Copyright: Rob van Esch
Eerste verdieping, activeringszone
Copyright: Rob van Esch
9 - Reinier Haga Orthopedisch Centrum_interieur_verdieping1_verpleegkamer_© Rob van Esch - Architectuurfotograaf
Copyright: Rob van Esch
Tweede verdieping, operatiekamer
Copyright: Rob van Esch
Parkeergarage
Copyright: Rob van Esch
Situatie
Copyright: EGM architecten
Begane grond
Copyright: EGM architecten
Begane grond
Copyright: EGM architecten
Eerste verdieping
Copyright: EGM architecten
Eerste verdieping
Copyright: EGM architecten
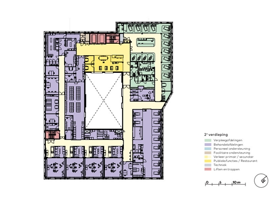
Tweede verdieping
Copyright: EGM architecten
Tweede verdieping
Copyright: EGM architecten
Doorsnede AA
Copyright: EGM architecten
Doorsnede BB
Copyright: EGM architecten
Concept
Copyright: EGM architecten
Axonometrie
Copyright: EGM architecten
Orthopedisch Centrum naar ontwerp van EGM geopend
6 juli 2020, 16:40
Het nieuwe Reinier Haga Orthopedisch Centrum (RHOC) Zoetermeer is gisteren officieel geopend. De nieuwbouw en naastgelegen parkeergarage zijn ontworpen door
EGM architecten
. Het bureau heeft de kliniek ontworpen als een ‘stadsvilla’ met een fris en overzichtelijk interieur.
De 7.500 m² grote orthopediekliniek is gerealiseerd in het zogenoemde Zorghart van Zoetermeer, waar verschillende eerste- en tweedelijns zorginstellingen gevestigd zijn. De kliniek is verbonden met het naastgelegen LangeLand Ziekenhuis (LLZ) en maakt, indien nodig, efficiënt gebruik van alle aanvullende medische voorzieningen van het LLZ.
Een luxe stadsvilla, zo omschrijft EGM architecten zijn ontwerp voor het nieuwe centrum. Het bureau ontwierp een compact en stedelijk volume met een duidelijk herkenbare hoofdentree. De gevel is voorzien van ritmisch vormgegeven raampartijen en witte, golvende gevelpanelen zijn als een vitrage om het gebouw gedrapeerd
Uitkraging
De uitkragende tweede verdieping vormt op vanzelfsprekende wijze een luifel boven de hoofdentree. De uitkraging zorgt voor extra ruimte op het zeer modern uitgeruste OK-complex, dat op de tweede verdieping ligt. Daarnaast zorgt de uitkragende verdieping voor plasticiteit en een eigentijdse uitstraling voor de hoofdentree.
De grote ramen in deze luifel werken als een tweezijdige stimulans voor patiënten, legt EGM uit: het binnenkomende daglicht stimuleert het herstel en patiënten voelen zich meer verbonden met buiten en met ‘naar huis gaan’. Het drielaagse gebouw sluit wat betreft schaal aan op de omringende bebouwing en voegt zich soepel in de locatie.
Beweging
Het overkoepelende thema in de orthopedie is ‘beweging’. Dat heeft het architectenbureau tot uitdrukking willen brengen in zowel het exterieur als interieur van de nieuwbouw.
Enerzijds uit zich dat in de vormgeving, met golvende bewegingen en het lijnenspel in de gevels buiten en de houten wanden binnen. Anderzijds draagt het ontwerp bij aan het motiveren van de patiënten tot extra beweging, bijvoorbeeld door een overvloed aan daglicht en een aantrekkelijke espressobar achterin het atrium.
Uitnodigend
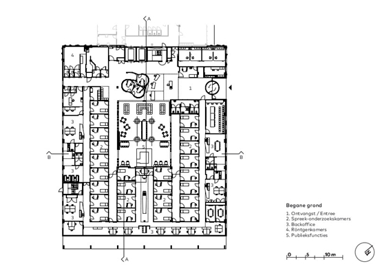
De nieuwe kliniek stelt de mensgerichte benadering centraal. Bij binnenkomst op de begane grond treft de bezoeker geen traditionele centrale balie, maar vier moderne en compacte ‘desks’ waar medewerkers de patiënten op persoonlijke wijze ontvangen en de weg wijzen.
Vanaf deze toegankelijke balies worden bezoekers en patiënten als vanzelf naar het met veel daglicht verrijkte ruime atrium getrokken. Dit hart van het gebouw ontvangt volop daglicht door het glazen dak en met activerende frisse kleuren, houten privacy-schermen, levend groen op de wanden, vier grote ‘schemerlampen’, en uitnodigende zitjes biedt het een rustig en aantrekkelijk wachtgebied.
Onderzoek, verpleging, herstel
Rond deze centrale ruimte zijn op de begane grond de publieksgerichte functies zoals het spreek- en onderzoekscentrum en poliklinieken. Op de eerste verdieping is de verpleegafdeling gesitueerd, aan de centrale verkeersruimte rondom het atrium.
De verpleegafdeling kent een- en vierpersoonskamers. De vierpersoonskamers hebben iets schuine achterwanden. Dit zorgt ervoor dat de patiënten iets van elkaar weg kunnen kijken en daardoor meer privacy ervaren.
Naast de verpleegkamers zijn de re-activeringszones gemaakt. Onder begeleiding van een fysiotherapeut werkten patiënten hier aan hun herstel. Alle kamers hebben zicht op buiten en op de re-activeringszones aan het atrium wat aanzet tot herstel, motiveert en stimuleert, aldus EGM.
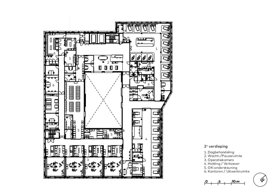
Moderne OK’s
Op de tweede verdieping liggen de dagbehandeling en de ultramoderne operatiekamers. Elke OK is circa 50 m², de ideale maat voor veilige en overzichtelijke orthopedische ingrepen, legt EGM uit. Een innovatief luchtbehandelingssysteem geeft zeer sterk gezuiverde lucht met hoge steriele kwaliteit in alle OK’s. Op grote beeldschermen kunnen de arts, assistent én de patiënt de operatie volgen.
Door grote ramen in elke operatiekamer is er tevens daglichtbeleving en uitzicht naar buiten. Dit zorgt voor een goed dagritmegevoel tijdens de vaak lange operaties, een belangrijk kenmerk van dit gezonde gebouw. Ledlampen reguleren een optimale verlichting. Kalme – individueel te kiezen – achtergrondmuziek stelt gerust.
Lavastenen
Naast het nieuwe RHOC is er een nieuwe parkeergarage voor de bezoekers van het zorggebouw gerealiseerd, die plek biedt aan circa 356 voertuigen. Het geluid dat het in- en uitrijdend verkeer veroorzaakt hebben de architecten door specifieke ontwerpkeuzes geminimaliseerd.
Zo bestaat de gevel van de garage uit gaaspanelen, die zijn gevuld en lavastenen. Deze ‘luchtige’ stenen zorgen voor een goede geluidsabsorptie. Daarnaast is levend groen toegepast, dat eveneens bijdraagt aan geluiddemping en tevens de luchtkwaliteit verbetert en kansen biedt voor grotere biodiversiteit, aldus EGM.
Het RHOC heeft gisteren, 5 juli, officieel de deuren geopend. In het project is Valstar Simonis verantwoordelijk voor het ontwerp van de technische installaties. Royal HaskoningDHV is constructeur.
Trefwoorden
zorg
reinier haga orthopedisch centrum
egm architecten
zoetermeer
interieur
zorggebouw
Locatie
Best gelezen
1
Woontoren Front door Monadnock wint tiende Architectuurprijs Nijmegen
donderdag, 9 april
2
Spoorwegverleden inspireert ontwerp woonblok Wisselspoor 10 in Utrecht
woensdag, 8 april
3
Rotterdam mag woningen gaan bouwen aan de Parkhaven
woensdag, 8 april
4
RED Company vraagt vergunning aan voor productie- en onderzoeksfaciliteit Lilly
dinsdag, 7 april
5
KOW wint met Marker Woods tender voor nieuwe wijk Eschmarkerveld
woensdag, 8 april
Gerelateerde nieuwsberichten
Een terp met woongebouwen in het Nijmeegse landschap
18 maart 2021
Expositie over zorgarchitectuur in het RadboudUMC
13 juli 2023
EGM architecten ontwerpt nieuwbouw Adrz in Goes
4 april 2024
Veel zeggenschap voor bewoners ARC Rokkeveen bij ontwerp eigen woning
5 december 2023
Zorgvuldige renovatie en uitbreiding voor Pniëlschool in Rotterdam Zuid naar ontwerp van EGM Architecten
1 juli 2022
Woongebouw 70lux markeert de entree tot het stadshart van Zoetermeer
22 mei 2025
EGM heeft Gerben Vos en Gary Cornel benoemd tot associate
10 oktober 2022
Bouw van 'altijd-op-vakantie'-woonbuurt in Zoetermeer gestart
13 september 2022
EGM Architecten renoveert hoofdgebouw Maastricht UMC+
17 februari 2022
Jubileumviering van zestigjarige 'new town' Zoetermeer
18 januari 2022
EGM Architecten benoemt Arno van Schaik tot associate
14 januari 2022
Team V en BoschSlabbers ontwerpen plintgebouw en fietsbrug Zoetermeer
14 december 2021
EGM brengt Ronald McDonald Huiskamer onder in zwevende 'kiezelstenen'
26 november 2021
Eerste gerenoveerde verpleegafdelingen Amsterdam UMC in gebruik
4 november 2021
Ronald Knappers nieuwe stadsbouwmeester van Zoetermeer
1 oktober 2021
Experience Center van Radboudumc combineert ontmoeting, onderwijs en innovatie
8 juni 2021
Nieuw OK-complex bovenop parkeergarage Reinier de Graaf Gasthuis
7 april 2021
Moke Architecten ontwerpt woontoren in centrum Zoetermeer
2 april 2021
EGM architecten presenteert opgeleverd Rosa Spier Huis
28 augustus 2020
Hoofdkantoor met testfaciliteiten voor e-mobiliteitsbedrijf Delft
20 juli 2020
Overzichtelijk en vriendelijk Oogcentrum door EGM architecten
29 juni 2020
Vernieuwd stadhuis en stadskantoor Hengelo in gebruik genomen
5 juni 2020
EGM architecten ontwerpt politiedistrictskantoor in Middelburg
8 mei 2020
Transformatie Fenix II-loods Rotterdam van start
29 april 2020
Gebiedsvisie maakt het verschil in nieuw moderniseringsplan De Kuip
17 april 2020
Nieuw algemeen ziekenhuis Curaçao in gebruik genomen
12 december 2019
Voormalig onderzoeksgebouw TU/e-campus open gemaakt voor Fontys-opleidingen
25 november 2019
Kliniek als villa in het bos door EGM
11 november 2019
Erasmus MC grote winnaar Rotterdam Architectuurprijs
19 december 2018
Compact en robuust kantoor voor Scheepswerf Slob
16 november 2018
Bouwstart 'gevangenisdorp' Haren (B) aanstaande
31 oktober 2018
Eerste paal nieuw Rosa Spier Huis geslagen
1 juni 2018
Een terp met woongebouwen in het Nijmeegse landschap
18 maart 2021
Expositie over zorgarchitectuur in het RadboudUMC
13 juli 2023
EGM architecten ontwerpt nieuwbouw Adrz in Goes
4 april 2024
Veel zeggenschap voor bewoners ARC Rokkeveen bij ontwerp eigen woning
5 december 2023
Zorgvuldige renovatie en uitbreiding voor Pniëlschool in Rotterdam Zuid naar ontwerp van EGM Architecten
1 juli 2022
Woongebouw 70lux markeert de entree tot het stadshart van Zoetermeer
22 mei 2025
EGM heeft Gerben Vos en Gary Cornel benoemd tot associate
10 oktober 2022
Bouw van 'altijd-op-vakantie'-woonbuurt in Zoetermeer gestart
13 september 2022
EGM Architecten renoveert hoofdgebouw Maastricht UMC+
17 februari 2022
Jubileumviering van zestigjarige 'new town' Zoetermeer
18 januari 2022
EGM Architecten benoemt Arno van Schaik tot associate
14 januari 2022
Team V en BoschSlabbers ontwerpen plintgebouw en fietsbrug Zoetermeer
14 december 2021
EGM brengt Ronald McDonald Huiskamer onder in zwevende 'kiezelstenen'
26 november 2021
Eerste gerenoveerde verpleegafdelingen Amsterdam UMC in gebruik
4 november 2021
Ronald Knappers nieuwe stadsbouwmeester van Zoetermeer
1 oktober 2021
Experience Center van Radboudumc combineert ontmoeting, onderwijs en innovatie
8 juni 2021
Nieuw OK-complex bovenop parkeergarage Reinier de Graaf Gasthuis
7 april 2021
Moke Architecten ontwerpt woontoren in centrum Zoetermeer
2 april 2021
EGM architecten presenteert opgeleverd Rosa Spier Huis
28 augustus 2020
Hoofdkantoor met testfaciliteiten voor e-mobiliteitsbedrijf Delft
20 juli 2020
Overzichtelijk en vriendelijk Oogcentrum door EGM architecten
29 juni 2020
Vernieuwd stadhuis en stadskantoor Hengelo in gebruik genomen
5 juni 2020
EGM architecten ontwerpt politiedistrictskantoor in Middelburg
8 mei 2020
Transformatie Fenix II-loods Rotterdam van start
29 april 2020
Gebiedsvisie maakt het verschil in nieuw moderniseringsplan De Kuip
17 april 2020
Nieuw algemeen ziekenhuis Curaçao in gebruik genomen
12 december 2019
Voormalig onderzoeksgebouw TU/e-campus open gemaakt voor Fontys-opleidingen
25 november 2019
Kliniek als villa in het bos door EGM
11 november 2019
Erasmus MC grote winnaar Rotterdam Architectuurprijs
19 december 2018
Compact en robuust kantoor voor Scheepswerf Slob
16 november 2018
Bouwstart 'gevangenisdorp' Haren (B) aanstaande
31 oktober 2018
Eerste paal nieuw Rosa Spier Huis geslagen
1 juni 2018
Toon alles
Gerelateerde podcasts
Gesprek met Willemineke Hammer en Roemer Pierik over 50 jaar EGM architecten
20 juni 2024
Andere nieuwsberichten
Restauratie Atlasbeeld op dak Koninklijk Paleis Amsterdam afgerond
Gisteren, 15:38
Het beeld op het fronton van het paleis was in juli van zijn plek gehaald voor een uitgebreide onderhoudsbeurt in Antwerpen.
Nieuw zitgebied Lounge 2 Schiphol geïnspireerd door overgangsfase in oeuvre Mondriaan
Gisteren, 14:16
Op luchthaven Schiphol is de derde en laatste fase van door Beyond Space ontworpen zitgebieden opgeleverd. Net als de eerste twee fases van het project is dit gedeelte geïnspireerd door het werk van Mondriaan, maar dan uit een eerdere periode.
SeARCH en Heutink Groep winnen tender voor woongebouw Sluisbuurt
Gisteren, 11:15
Gebouw Radius biedt plek aan zo’n honderd appartementen, een stadskamer, een binnentuin, daktuinen en andere gemeenschappelijke ruimtes. Het gebouw wordt gerealiseerd van natuurlijke materialen als hout, stampleem en leemsteen.
Woontoren Front door Monadnock wint tiende Architectuurprijs Nijmegen
9 april, 10:00
“Front is een optimistisch icoon, gemaakt met lef, dat ambachtelijkheid en vakmanschap uitstraalt”, stelt de jury in zijn rapport.
Grote en kleine gemeenten balen van bouwregels Zuid-Holland
Gisteren, 16:31
Grote en kleine gemeenten in Zuid-Holland hebben hun zorgen geuit over nieuwe regels van de provincie, die volgens hen de woningbouw belemmeren.
Twijfels in Zuid-Holland over halen van doelen landelijk gebied
Gisteren, 12:18
De meeste partijen in de Zuid-Hollandse politiek hebben twijfels over de plannen die in zestien deelgebieden zijn gemaakt voor de aanpak van het landelijk gebied.
Huurprijzen stijgen harder dan koopwoningprijzen
Gisteren, 09:31
Volgens Huurwoningen.nl en Pararius moesten nieuwe huurders in het eerste kwartaal gemiddeld 21,12 euro per vierkante meter per maand neerleggen.
ABN AMRO: investeringen defensie vergroten druk op bouwcapaciteit
9 april, 12:29
Kazernes, opslagplaatsen en oefenterreinen dingen om dezelfde aannemers, ingenieurs en installateurs die ook nodig zijn voor bijvoorbeeld woningbouw.
Europa kent 831 miljoen euro subsidie toe aan Utrechtse projecten
9 april, 9:27
Het gaat onder meer om projecten tegen oververhitting van gebouwen, slimmer gebruik van energie en het hergebruik van materialen en grondstoffen.
Rotterdam mag woningen gaan bouwen aan de Parkhaven
8 april, 3:38
De Raad van State maakte woensdag bekend dat alle bezwaren tegen het bestemmingsplan zijn verworpen.
Ga naar het nieuws-archief
Robert Muis
Redacteur
0
0
0
0
Voor een optimale gebruikservaring plaatst Architectenweb functionele cookies. Wat de verschillende cookies precies doen leggen we uit in een
overzicht
. Cookies van social media kun je optioneel
aanzetten
.
Akkoord
Instellingen
Annuleren
OK
Sluiten
Doorgaan
Inloggen
Maak een gratis persoonlijk account aan
Feedback
Feedback
Wij horen graag jouw feedback. Laat je reactie achter en eventueel jouw e-mail adres.
Reactie
Verstuur