Projecten
Producten
Bedrijven
Vacatures
Agenda
Awards
Podcasts
more_horiz
Videos
Magazine
Favorieten
Profiel
Uitloggen
Abonneer je nu op onze nieuwsbrieven!
Abonneren
Nee, bedankt
Ja, denk met me mee rond de
materialisering van mijn project
Copyright: Anna Giulia Gregori
Copyright: Anna Giulia Gregori
Copyright: Egbert de Boer
Copyright: Egbert de Boer
Copyright: Egbert de Boer
Copyright: Egbert de Boer
Copyright: Egbert de Boer
Copyright: Egbert de Boer
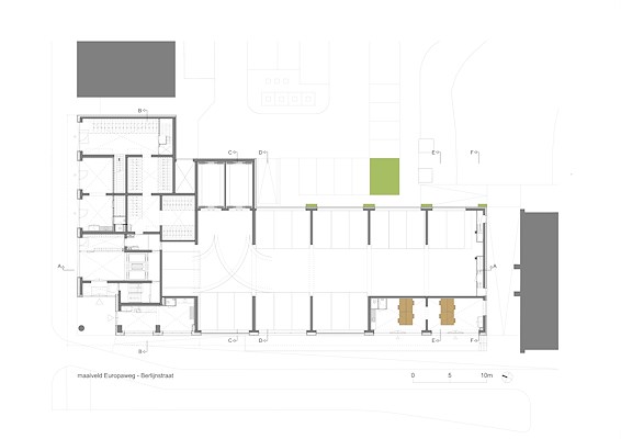
Begane grond
Copyright: Dal Architecten
Tweede verdieping
Copyright: Dal Architecten
Derde verdieping
Copyright: Dal Architecten
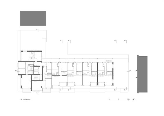
Zevende verdieping
Copyright: Dal Architecten
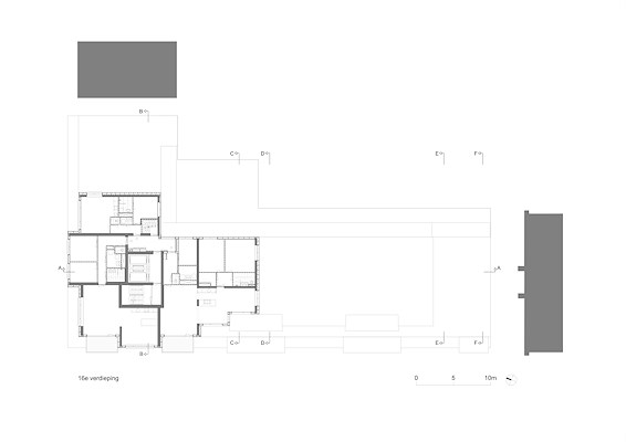
Zestiende verdieping
Copyright: Dal Architecten
Twee-en-twintigste verdieping
Copyright: Dal Architecten
Doorsnede AB
Copyright: Dal Architecten
Doorsnede CD
Copyright: Dal Architecten
Doorsnede EF
Copyright: Dal Architecten
Noordgevel
Copyright: Dal Architecten
Oostgevel
Copyright: Dal Architecten
Zuidgevel
Copyright: Dal Architecten
Westgevel
Copyright: Dal Architecten
Situatie
Copyright: Dal Architecten
Woongebouw 70lux markeert de entree tot het stadshart van Zoetermeer
22 mei 2025, 12:41
Een nieuw, zeventig meter hoog woongebouw markeert de entree tot het stadshart van Zoetermeer.
Dal Architecten
ontwierp het statige woongebouw 70lux met een klassieke opbouw in een hoge plint, een stedelijke laag en een torenvolume, voorzien van opvallende dieptesprongen.
Woongebouw 70lux ligt aan de rand van het stadshart van Zoetermeer, met zijn toren op de hoek van de Europaweg en de Luxemburglaan. In de uitstraling van 70lux heeft Dal Architecten gezocht naar de sfeer van art deco-gebouwen zoals die in de Verenigde Staten tijdens het interbellum zijn gerealiseerd.
Met dieptesprongen in de gevel en metselwerk in een lichte tint sluit het gebouw aan op bebouwing in de omgeving. Een doorgaande luifel vormt de overgang tussen de plint en de stedelijke laag en biedt beschutting aan de wandelaars van en naar het stadscentrum.
Diverse typen appartementen
Het woongebouw biedt ruimte aan 134 appartementen in 22 verschillende typen, variërend van 45 tot 129 m
2
. In de stedelijke laag zijn tien woningen per verdieping ingepast; daarboven verkleint het volume en biedt het zeven woningen per verdieping. Vanaf de zestiende verdieping biedt het gebouw drie woningen per bouwlaag. De woningen zijn gericht op middenhuur en het vrije-huursegment.
De woningen worden deels direct ontsloten vanuit een lifthal en deels via een galerij. De appartementen aan de Europaweg hebben toegang tot een gemeenschappelijke buitenruimte op het dek aan het binnenterrein. Door middel van klimplanten, nestkasten en insectenhotels wordt hier een groene verblijfsplek gecreëerd. De appartementen aan de Luxemburglaan hebben royale balkons of loggia’s, georiënteerd op het zuidwesten.
Op de begane grond ligt in totaal 159 m
2
aan commerciële ruimte, geschikt voor een bestemming zoals een zorgwinkel, fysiopraktijk of zakelijke dienstverlening. Deze ruimten liggen langs beide straten. De gebouwentree voor de bewoners ligt op de hoek van de Europaweg en de Luxemburglaan. Verder omvat het gebouw 97 auto- en 320 fietsparkeerplekken.
Duurzaam
Het gebouw is bijna energieneutraal (BENG) en bezit energielabel A+++. Het is uitgevoerd met zonnepanelen, tripel glas en een bodemwarmtepomp voor verwarming en koeling.
70lux is tevens het eerste gebouw dat in het kader van de gemeentelijke versnellingsagenda is gerealiseerd. Opdrachtgever van het project was De Maese Projecten. Het project is in iets meer dan twee jaar gebouwd door Staton Bouw.
Trefwoorden
woningbouw
dal architecten
huurappartementen
hoogbouw
appartementencomplex
zoetermeer
Locatie
Best gelezen
1
Architect Cees Dam op 93-jarige leeftijd overleden
dinsdag, 14 april
2
Powerhouse Company wint aanbesteding voor verbouwing Vista College Maastricht
dinsdag, 14 april
3
Tien bureaus geselecteerd voor tweede ronde nieuwbouw De Meervaart
woensdag, 15 april
4
Voormalig hoofdkantoor Ferro in M4H verbouwd tot bedrijfsverzamelgebouw
woensdag, 15 april
5
QWA heeft A16 boven Rotterdam eigen identiteit gegeven
maandag, 13 april
Gerelateerde nieuwsberichten
Zes nominaties voor Zoetermeerse Gemma Smid Architectuurprijs 2025
17 juni 2025
Zuid-Holland akkoord met bouw duizenden woningen in Lansingerland
23 oktober 2024
Flexwonen in een groene omgeving
4 juni 2024
Ibelings van Tilburg geeft boerderij met monumentale schuur in Zoetermeer woonbestemming
2 december 2025
Zoetermeer wil brug over spoor en A12 renoveren
22 juli 2025
Woon-zorgproject geselecteerd voor voormalige Monuta-locatie in Zoetermeer
3 januari 2024
'Vakantiewoonbuurt' Happy Days wint Gemma Smid Architectuurprijs Zoetermeer 2025
2 september 2025
Veel zeggenschap voor bewoners ARC Rokkeveen bij ontwerp eigen woning
5 december 2023
Zoetermeer laat aanpak bij instortingsgevaar brug onderzoeken
12 april 2023
Bouw van 'altijd-op-vakantie'-woonbuurt in Zoetermeer gestart
13 september 2022
Stadskwartier Palenstein wint Gemma Smid Architectuurprijs
20 juni 2022
Vijf nominaties voor Gemma Smid Architectuurprijs 2022
31 mei 2022
Jubileumviering van zestigjarige 'new town' Zoetermeer
18 januari 2022
Regio Haaglanden wil ruim 79.000 woningen bouwen
20 december 2021
Team V en BoschSlabbers ontwerpen plintgebouw en fietsbrug Zoetermeer
14 december 2021
Houten hoogbouw voor nieuwe wijk in Zoetermeer
9 november 2021
Ronald Knappers nieuwe stadsbouwmeester van Zoetermeer
1 oktober 2021
Moke Architecten ontwerpt woontoren in centrum Zoetermeer
2 april 2021
LIAG geeft Kindcentrum in Zoetermeer ruimte voor open onderwijs
8 oktober 2020
Architectuurprijs Zoetermeer 2020 voor station Lansingerland
14 september 2020
Orthopedisch Centrum naar ontwerp van EGM geopend
6 juli 2020
Station Lansingerland-Zoetermeer is heldere vervoershub
17 oktober 2019
Architectuurprijs Zoetermeer voor Cadenza
4 juni 2018
Zes nominaties voor Zoetermeerse Gemma Smid Architectuurprijs 2025
17 juni 2025
Zuid-Holland akkoord met bouw duizenden woningen in Lansingerland
23 oktober 2024
Flexwonen in een groene omgeving
4 juni 2024
Ibelings van Tilburg geeft boerderij met monumentale schuur in Zoetermeer woonbestemming
2 december 2025
Zoetermeer wil brug over spoor en A12 renoveren
22 juli 2025
Woon-zorgproject geselecteerd voor voormalige Monuta-locatie in Zoetermeer
3 januari 2024
'Vakantiewoonbuurt' Happy Days wint Gemma Smid Architectuurprijs Zoetermeer 2025
2 september 2025
Veel zeggenschap voor bewoners ARC Rokkeveen bij ontwerp eigen woning
5 december 2023
Zoetermeer laat aanpak bij instortingsgevaar brug onderzoeken
12 april 2023
Bouw van 'altijd-op-vakantie'-woonbuurt in Zoetermeer gestart
13 september 2022
Stadskwartier Palenstein wint Gemma Smid Architectuurprijs
20 juni 2022
Vijf nominaties voor Gemma Smid Architectuurprijs 2022
31 mei 2022
Jubileumviering van zestigjarige 'new town' Zoetermeer
18 januari 2022
Regio Haaglanden wil ruim 79.000 woningen bouwen
20 december 2021
Team V en BoschSlabbers ontwerpen plintgebouw en fietsbrug Zoetermeer
14 december 2021
Houten hoogbouw voor nieuwe wijk in Zoetermeer
9 november 2021
Ronald Knappers nieuwe stadsbouwmeester van Zoetermeer
1 oktober 2021
Moke Architecten ontwerpt woontoren in centrum Zoetermeer
2 april 2021
LIAG geeft Kindcentrum in Zoetermeer ruimte voor open onderwijs
8 oktober 2020
Architectuurprijs Zoetermeer 2020 voor station Lansingerland
14 september 2020
Orthopedisch Centrum naar ontwerp van EGM geopend
6 juli 2020
Station Lansingerland-Zoetermeer is heldere vervoershub
17 oktober 2019
Architectuurprijs Zoetermeer voor Cadenza
4 juni 2018
Toon alles
Andere nieuwsberichten
OMA gebruikt bestaand gebouw als canvas bij renovatie Edo-Tokyo Museum
17 april, 3:55
Na een renovatie van bijna vier jaar is het Edo-Tokyo Museum in de Japanse hoofdstad Tokio heropend. OMA nam het uit 1993 stammende gebouw, dat is ontworpen door de Metabolist Kiyonori Kikutake, onder handen.
Winnaars verkiezing Beste Bossche Gebouw 2020–2025 bekend
17 april, 2:16
De vakjury en het publiek wezen elk in drie categorieën een winnaar aan. Daarnaast kende vakjury nog een wildcard toe aan een project.
Appartementengebouwen door MIX architectuur vormen sluitstuk Noorderhaven Zutphen
17 april, 12:29
In de nieuwe buurt Noorderhaven in Zutphen zijn drie appartementengebouwen naar ontwerp van MIX architectuur opgeleverd. De gebouwen met in totaal tachtig woningen vormen het sluitstuk van de gebiedsontwikkeling.
EUmies Award naar renovatie congrescentrum in Charleroi en tijdelijke ruimtes Sloveens theater
17 april, 10:54
Donderdag zijn de winnaars van de EUmies Award 2026 bekendgemaakt. De renovatie van het congrescentrum Charleroi Palais des Expositions won in de belangrijkste categorie architectuur.
Woningbouwzaken krijgen langer voorrang bij Raad van State
17 april, 4:49
Om het huizentekort tegen te gaan, blijft de Raad van State woningbouwzaken met voorrang behandelen.
Inspectie positief over verbetering sociale veiligheid TU Delft
17 april, 11:36
De TU Delft heeft aanzienlijke stappen gezet om de sociale veiligheid voor medewerkers te verbeteren.
NVM vreest minder nieuwbouw door veranderende voorrang stroomnet
17 april, 9:23
Bouwers kunnen, door onzekerheid over welke projecten straks nog maatschappelijke prioriteit krijgen in een bepaalde regio, besluiten om minder nieuwe huizen te bouwen.
Architecten voor restauratie en herbestemming Rivièrahal gekozen
16 april, 12:00
Voor de grootscheepse restauratie en herbestemming van de Rivièrahal in de Rotterdamse Diergaarde Blijdorp zijn Mecanoo en BiermanHenket geselecteerd.
Bewoners aardbevingsgebied Groningen blijven kritisch op herstel
16 april, 10:34
Door de complexiteit en onzekerheid van het jarenlange proces ervaren mensen stress en frustratie.
ING: optoppen en splitsen van woningen steeds minder haalbaar
15 april, 1:22
Het kabinet-Jetten gaat naar verwachting het doel van 15.000 extra woningen per jaar uit verbouwingen niet halen, stelt ING.
Ga naar het nieuws-archief
Robert Muis
Redacteur
0
0
0
0
Voor een optimale gebruikservaring plaatst Architectenweb functionele cookies. Wat de verschillende cookies precies doen leggen we uit in een
overzicht
. Cookies van social media kun je optioneel
aanzetten
.
Akkoord
Instellingen
Annuleren
OK
Sluiten
Doorgaan
Inloggen
Maak een gratis persoonlijk account aan
Feedback
Feedback
Wij horen graag jouw feedback. Laat je reactie achter en eventueel jouw e-mail adres.
Reactie
Verstuur