Projecten
Producten
Bedrijven
Vacatures
Agenda
Awards
Podcasts
more_horiz
Videos
Magazine
Favorieten
Profiel
Uitloggen
Abonneer je nu op onze nieuwsbrieven!
Abonneren
Nee, bedankt
Ja, denk met me mee rond de
materialisering van mijn project
Copyright: Scagliola+Brakkee
Copyright: Scagliola+Brakkee
Copyright: Scagliola+Brakkee
Copyright: Scagliola+Brakkee
Copyright: Scagliola+Brakkee
Copyright: Scagliola+Brakkee
Situatie
Copyright: EGM architecten
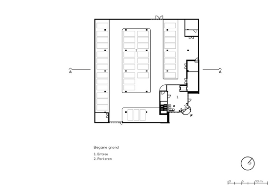
Begane grond
Copyright: EGM architecten
Eerste verdieping
Copyright: EGM architecten
Tweede verdieping
Copyright: EGM architecten
Doorsnede
Copyright: EGM architecten
Concept
Copyright: EGM architecten
Licht
Copyright: EGM architecten
Axonometrie
Copyright: EGM architecten
Overzichtelijk en vriendelijk Oogcentrum door EGM architecten
29 juni 2020, 12:31
Oogcentrum Noordholland heeft deze maand zijn nieuwe onderkomen in Heerhugowaard in gebruik genomen. Het ontwerp van
EGM architecten
voor zowel architectuur als interieur kenmerkt zich door ruimtelijkheid, een heldere interne organisatie en de ruime toepassing van afgeronde vormen.
De opdrachtgever, oogarts en ondernemer Rob Wouters, wenste een gebouw dat zowel een vriendelijk welkom als professionaliteit zou uitstralen. Tot voor kort ontving het regionale expertisecentrum voor oogheelkunde zijn patiënten en bezoekers – zo’n 50.000 per jaar – in een generiek bedrijfspand even verderop in Heerhugowaard.
Het nieuwe pand, met een omvang van bijna 4.100 m² bvo, biedt ruimte, een gastvrijere sfeer en een heldere interne organisatie van functies. Dat schept voor patiënten direct overzicht, waardoor ze eerder en beter tot rust komen bij een toch vaak spannend moment, legt EGM architecten uit.
Geleidelijke overgang
Het architectenbureau heeft het Oogcentrum Noordholland “met zijn compactheid en visuele aantrekkelijkheid als een paviljoen in het groen neergezet.” De verticale gevelopeningen strekken over twee verdiepingen en worden, gezien vanaf de entree, geleidelijk smaller.
Deze gradiënt in afmetingen van de ramen sluit aan bij de mate waarin de achterliggende functie daglicht wensen. Tegelijkertijd zorgt de geleidelijke verandering voor een dynamisch gevelbeeld aan alle zijden van het gebouw.
Oriëntatie
Het interieur biedt op verschillende wijzen houvast aan mensen met beperkt zicht. Een prominente rol daarbij spelen materialen die verschillen in tactiliteit, akoestisch vermogen en kleur. De entreehal klinkt anders dan de spreekkamers, balies voelen aangenaam aan en bij de overgangen in de vloer en naar de wand en het plafond draagt contrast bij aan oriëntatie en verduidelijking van ruimten.
Patiënten, bezoekers en medewerkers betreden op dezelfde laagdrempelige wijze het centrum. Achter een groen talud ligt op maaiveldniveau de parkeergarage onder het opgetilde paviljoen. Via de hoofdingang op maaiveld en de parkeergarage komt men in de entreehal met toegang tot de ontvangstruimte.
Centrale patio
Daar vangt de groene patio, met volledig transparante glazen scheidingswand, direct de aandacht en opent zich de rondgang op intuïtieve wijze, aldus EGM. Het groene hart brengt ruim daglicht binnen en zorgt voor een open en lichte sfeer met een goede oriëntatie door het gehele centrum.
Direct rond de patio ligt het verblijfsgebied, met op de eerste verdieping direct aangrenzend de spreek- en onderzoekskamers. De kantooromgeving en de operatieruimten bevinden zich op de tweede verdieping, waar meer rust en privacy heersen. Ook de moderne faciliteiten en apparatuur dragen bij aan de rust en vriendelijkheid die in het gebouw heersen, leggen de architecten uit.
Voorbeeld
Oogcentrum Noordholland ligt in het gemeentelijke plangebied De Boulevard, waarvoor een ambitieus ontwikkelplan bestaat. De komst van het Oogcentrum betekent voor de gemeente de vestiging van een ondernemende partij in het gebied, wat meer bedrijvigheid kan aantrekken. De aansprekende architectuur, legt EGM uit, kan als voorbeeld dienen voor de gewenste aandacht aan vormgeving.
Trefwoorden
zorg
egm architecten
interieur
oogcentrum noordholland
heerhugowaard
Locatie
Best gelezen
1
Woontoren Front door Monadnock wint tiende Architectuurprijs Nijmegen
donderdag, 9 april
2
SeARCH en Heutink Groep winnen tender voor woongebouw Sluisbuurt
vrijdag, 10 april
3
Architect Cees Dam op 93-jarige leeftijd overleden
dinsdag, 14 april
4
Powerhouse Company wint aanbesteding voor verbouwing Vista College Maastricht
dinsdag, 14 april
5
Padelhal vormt nieuwe kop van sportcomplex in Bussum
donderdag, 9 april
Gerelateerde nieuwsberichten
Zorgvuldige renovatie en uitbreiding voor Pniëlschool in Rotterdam Zuid naar ontwerp van EGM Architecten
1 juli 2022
Studio Vinke presenteert conceptvisie voor verdere ontwikkeling stadshart Heerhugowaard
12 januari
Een terp met woongebouwen in het Nijmeegse landschap
18 maart 2021
Expositie over zorgarchitectuur in het RadboudUMC
13 juli 2023
EGM architecten ontwerpt nieuwbouw Adrz in Goes
4 april 2024
EGM heeft Gerben Vos en Gary Cornel benoemd tot associate
10 oktober 2022
EGM Architecten benoemt Arno van Schaik tot associate
14 januari 2022
EGM brengt Ronald McDonald Huiskamer onder in zwevende 'kiezelstenen'
26 november 2021
Eerste gerenoveerde verpleegafdelingen Amsterdam UMC in gebruik
4 november 2021
Experience Center van Radboudumc combineert ontmoeting, onderwijs en innovatie
8 juni 2021
Nieuw OK-complex bovenop parkeergarage Reinier de Graaf Gasthuis
7 april 2021
Variatie en textuur in woningbouwproject Heerhugowaard
20 januari 2021
EGM architecten presenteert opgeleverd Rosa Spier Huis
28 augustus 2020
Hoofdkantoor met testfaciliteiten voor e-mobiliteitsbedrijf Delft
20 juli 2020
Orthopedisch Centrum naar ontwerp van EGM geopend
6 juli 2020
Vernieuwd stadhuis en stadskantoor Hengelo in gebruik genomen
5 juni 2020
EGM architecten ontwerpt politiedistrictskantoor in Middelburg
8 mei 2020
Transformatie Fenix II-loods Rotterdam van start
29 april 2020
Nieuw algemeen ziekenhuis Curaçao in gebruik genomen
12 december 2019
Voormalig onderzoeksgebouw TU/e-campus open gemaakt voor Fontys-opleidingen
25 november 2019
Kliniek als villa in het bos door EGM
11 november 2019
Erasmus MC grote winnaar Rotterdam Architectuurprijs
19 december 2018
Compact en robuust kantoor voor Scheepswerf Slob
16 november 2018
Bouwstart 'gevangenisdorp' Haren (B) aanstaande
31 oktober 2018
Eerste paal nieuw Rosa Spier Huis geslagen
1 juni 2018
Zorgvuldige renovatie en uitbreiding voor Pniëlschool in Rotterdam Zuid naar ontwerp van EGM Architecten
1 juli 2022
Studio Vinke presenteert conceptvisie voor verdere ontwikkeling stadshart Heerhugowaard
12 januari
Een terp met woongebouwen in het Nijmeegse landschap
18 maart 2021
Expositie over zorgarchitectuur in het RadboudUMC
13 juli 2023
EGM architecten ontwerpt nieuwbouw Adrz in Goes
4 april 2024
EGM heeft Gerben Vos en Gary Cornel benoemd tot associate
10 oktober 2022
EGM Architecten benoemt Arno van Schaik tot associate
14 januari 2022
EGM brengt Ronald McDonald Huiskamer onder in zwevende 'kiezelstenen'
26 november 2021
Eerste gerenoveerde verpleegafdelingen Amsterdam UMC in gebruik
4 november 2021
Experience Center van Radboudumc combineert ontmoeting, onderwijs en innovatie
8 juni 2021
Nieuw OK-complex bovenop parkeergarage Reinier de Graaf Gasthuis
7 april 2021
Variatie en textuur in woningbouwproject Heerhugowaard
20 januari 2021
EGM architecten presenteert opgeleverd Rosa Spier Huis
28 augustus 2020
Hoofdkantoor met testfaciliteiten voor e-mobiliteitsbedrijf Delft
20 juli 2020
Orthopedisch Centrum naar ontwerp van EGM geopend
6 juli 2020
Vernieuwd stadhuis en stadskantoor Hengelo in gebruik genomen
5 juni 2020
EGM architecten ontwerpt politiedistrictskantoor in Middelburg
8 mei 2020
Transformatie Fenix II-loods Rotterdam van start
29 april 2020
Nieuw algemeen ziekenhuis Curaçao in gebruik genomen
12 december 2019
Voormalig onderzoeksgebouw TU/e-campus open gemaakt voor Fontys-opleidingen
25 november 2019
Kliniek als villa in het bos door EGM
11 november 2019
Erasmus MC grote winnaar Rotterdam Architectuurprijs
19 december 2018
Compact en robuust kantoor voor Scheepswerf Slob
16 november 2018
Bouwstart 'gevangenisdorp' Haren (B) aanstaande
31 oktober 2018
Eerste paal nieuw Rosa Spier Huis geslagen
1 juni 2018
Toon alles
Gerelateerde podcasts
Gesprek met Willemineke Hammer en Roemer Pierik over 50 jaar EGM architecten
20 juni 2024
Andere nieuwsberichten
Woontoren Front vervult meerdere rollen in Hart van de Waalsprong
Gisteren, 16:31
Vorige week werd de door Mondadnock ontworpen woontoren Front onderscheiden met de Architectuurprijs Nijmegen. Het achthoekige gebouw in Lent markeert het centrum van de stadsuitbreiding Hart van de Waalsprong.
Bijzonder erfgoed Fundatie van Renswoude Utrecht gered
Gisteren, 15:29
Hendrick de Keyser Monumenten heeft de Fundatie van Renswoude in Utrecht, een bijzonder goed bewaard ensemble uit de 18e eeuw, verworven. Hiermee blijven gebouw, historisch interieur en collectie als een geheel behouden.
Studioninedots – Albert Herder vertrekt, Wouter Hermanns en Stijn de Jongh treden toe
Gisteren, 14:51
De medeoprichter en partner van het bureau gaat verder als zelfstandig adviseur en supervisor. Wouter Hermanns en Stijn de Jongh zijn juist tot partner benoemd bij Studioninedots.
BURA, LOLA en Goudappel maken plan voor vernieuwing stationsgebied Haarlem
Gisteren, 12:11
De bureaus mogen onder meer een het busstation en de openbare ruimte herinrichten, de mogelijkheden voor fietsparkeren uitbreiden en een plan maken voor de sloop en nieuwbouw van het Beresteyncomplex tegenover het station.
ING: optoppen en splitsen van woningen steeds minder haalbaar
Gisteren, 13:22
Het kabinet-Jetten gaat naar verwachting het doel van 15.000 extra woningen per jaar uit verbouwingen niet halen, stelt ING.
Geen rechtszaak over subsidie ministerie aan Van Gogh Museum
Gisteren, 10:02
De zaak draait om geld dat het museum nodig zegt te hebben voor een renovatie.
AFM: funderingsproblemen bij bijna 220.000 woningen
14 april, 1:25
De huizen van bijna een half miljoen woningeigenaren hebben een hoog risico op funderingsproblemen of een mogelijke kwetsbare fundering.
Oprichter omgevallen vastgoedconcern Evergrande bekent schuld
14 april, 9:17
Evergrande was ooit de grootste projectontwikkelaar van China, maar kwam in de problemen toen het zijn schulden niet kon terugbetalen.
Grote en kleine gemeenten balen van bouwregels Zuid-Holland
10 april, 4:31
Grote en kleine gemeenten in Zuid-Holland hebben hun zorgen geuit over nieuwe regels van de provincie, die volgens hen de woningbouw belemmeren.
Twijfels in Zuid-Holland over halen van doelen landelijk gebied
10 april, 12:18
De meeste partijen in de Zuid-Hollandse politiek hebben twijfels over de plannen die in zestien deelgebieden zijn gemaakt voor de aanpak van het landelijk gebied.
Ga naar het nieuws-archief
Robert Muis
Redacteur
1
0
0
0
Voor een optimale gebruikservaring plaatst Architectenweb functionele cookies. Wat de verschillende cookies precies doen leggen we uit in een
overzicht
. Cookies van social media kun je optioneel
aanzetten
.
Akkoord
Instellingen
Annuleren
OK
Sluiten
Doorgaan
Inloggen
Maak een gratis persoonlijk account aan
Feedback
Feedback
Wij horen graag jouw feedback. Laat je reactie achter en eventueel jouw e-mail adres.
Reactie
Verstuur