Projecten
Producten
Bedrijven
Vacatures
Agenda
Awards
Podcasts
more_horiz
Videos
Magazine
Thema's
Favorieten
Profiel
Uitloggen
Abonneer je nu op onze nieuwsbrieven!
Abonneren
Nee, bedankt
Ja, denk met me mee rond de
materialisering van mijn project
Copyright: Sebastian van Damme
Copyright: Sebastian van Damme
Copyright: Sebastian van Damme
Copyright: Sebastian van Damme
Copyright: Sebastian van Damme
Copyright: EGM architecten
Copyright: Sebastian van Damme
Copyright: Sebastian van Damme
Copyright: Sebastian van Damme
Copyright: Sebastian van Damme
Copyright: Sebastian van Damme
Copyright: EGM architecten
Copyright: EGM architecten
Copyright: EGM architecten
Copyright: EGM architecten
Copyright: EGM architecten
Copyright: EGM architecten
Copyright: EGM architecten
Copyright: EGM architecten
Copyright: EGM architecten
Copyright: EGM architecten
Hoofdkantoor met testfaciliteiten voor e-mobiliteitsbedrijf Delft
20 juli 2020, 15:49
In Delft heeft het Zweeds-Zwitserse e-mobiliteitsbedrijf ABB een nieuw hoofdkantoor annex R&D-faciliteit voor snelladers in gebruik genomen. In de nieuwbouw, ontworpen door
EGM architecten
, kunnen complete stadsbussen, vrachtwagens en andere zware elektrische voertuigen naar binnen rijden voor tests met laadsystemen. Ook hebben negentig medewerkers er een werkplek.
ABB verkoopt snelladers in meer dan zeventig landen. In Nederland staan de snellaadstations onder andere bij de snelwegstations van Fastned. In het hoofdkantoor op de campus van de TU Delft ontwikkelt en test het bedrijf laadsystemen.
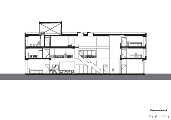
Behalve de testruimte voor (zware) voertuigen bevat het gebouw testruimtes waarin extreme weersomstandigheden worden nagebootst om te testen hoe laadsystemen zich gedragen. Temperaturen van -40 tot +40 graden Celsius en hoge luchtvochtigheid worden hier opgewekt.
Voor vele andere tests zijn computersimulatiemodellen van vrijwel elk elektrische automerk en elk type beschikbaar. Prototypes voor snellaadsystemen die nog niet getoond mogen worden, staan afgeschermd klaar voor onderzoek, meldt EGM.
De werkplekken zijn verdeeld over drie verdiepingen. Een open structuur met een atrium en al dan niet met glas afgescheiden verdiepingen moet onderlinge zichtbaarheid en ontmoeting tussen de medewerkers bevorderen. Het robuuste interieur van beton en glas kent één kleuruitspatting; de signaalrode centrale trap, die dan ook een oriëntatiepunt vormt in het interieur.
Buiten speelt het zonlicht met de witte gefacetteerde gevel boven de donkere solide plint. Het ritme van de dag creëert zo een continue rustige dynamiek van licht en schaduw op het gebouw, zo meldt EGM architecten. Dankzij daklichten en de op strategische plekken geopende gevel stroomt tevens natuurlijk licht het interieur binnen.
Het compacte gebouw is aangesloten op de warmtekrachtcentrale van de TU Delft, het volledige dak ligt bedekt met zonnepanelen en het gebouw is zeer goed geïsoleerd. Binnenin zijn de laatste technologische nufjes verwerkt. Zo hangen overal sensoren voor de verlichting en CO2-meting en zijn het volledige klimaat- en gebouwmanagementsysteem ‘state-of-the-art’, zoals dat zo mooi heet.
Trefwoorden
laadsysteem
delft
hoofdkantoor
campus
elektrisch vervoer
mobiliteit
e-mobiliteit
tu delft
egm architecten
Locatie
Best gelezen
1
Finalisten presenteren ontwerp voor Shift Landmark in Rotterdam
woensdag, 4 maart
2
Architect Oliver Thill op 55-jarige leeftijd overleden
donderdag, 5 maart
3
Nieuwe Hittekaart Woningmarkt 2026 van BPD toont aanhoudende woningdruk
dinsdag, 3 maart
4
Strijp-S krijgt woonbuurtje met karakteristieken voormalig Philips-terrein
maandag, 2 maart
5
Haagse gemeenteraad stemt in met bouw van 11.400 woningen in nieuw stadscentrum
maandag, 2 maart
Gerelateerde nieuwsberichten
Studio Klinker ontwerpt groene FNG-fabriek voor duurzame luchtvaart
30 januari 2024
10 interieurs met elegant draaiende trappen
15 juni 2022
Een terp met woongebouwen in het Nijmeegse landschap
18 maart 2021
Zorgvuldige renovatie en uitbreiding voor Pniëlschool in Rotterdam Zuid naar ontwerp van EGM Architecten
1 juli 2022
Radboudumc heeft speciaal infectieziektengebouw naar ontwerp van EGM
18 december 2023
Orthopedisch Centrum naar ontwerp van EGM geopend
6 juli 2020
Interieur Rosa Spier Huis geeft kunst de ruimte
30 juni 2020
Overzichtelijk en vriendelijk Oogcentrum door EGM architecten
29 juni 2020
Vernieuwd stadhuis en stadskantoor Hengelo in gebruik genomen
5 juni 2020
EGM architecten ontwerpt politiedistrictskantoor in Middelburg
8 mei 2020
Transformatie Fenix II-loods Rotterdam van start
29 april 2020
Gebiedsvisie maakt het verschil in nieuw moderniseringsplan De Kuip
17 april 2020
Bouw flexibel en interfacultair onderwijsgebouw TU Delft van start gegaan
18 juni 2020
Campus TU Delft krijgt gebouw voor doorgroeiende jonge bedrijven
15 juni 2020
Circulair onderkomen voor Firma van Buiten op campus TU Delft
18 februari 2020
EGM architecten presenteert opgeleverd Rosa Spier Huis
28 augustus 2020
Nieuw OK-complex bovenop parkeergarage Reinier de Graaf Gasthuis
7 april 2021
Experience Center van Radboudumc combineert ontmoeting, onderwijs en innovatie
8 juni 2021
Eerste gerenoveerde verpleegafdelingen Amsterdam UMC in gebruik
4 november 2021
EGM brengt Ronald McDonald Huiskamer onder in zwevende 'kiezelstenen'
26 november 2021
Campus TU Delft uitgebreid met ‘acceleratorgebouw’ NEXT
11 augustus 2022
Cepezed mag House of Quantum op campus TU Delft ontwerpen
27 september 2022
Opvallend onderkomen voor dienst Logistiek en Milieu TU Delft
29 september 2022
EGM heeft Gerben Vos en Gary Cornel benoemd tot associate
10 oktober 2022
Studio Klinker ontwerpt groene FNG-fabriek voor duurzame luchtvaart
30 januari 2024
10 interieurs met elegant draaiende trappen
15 juni 2022
Een terp met woongebouwen in het Nijmeegse landschap
18 maart 2021
Zorgvuldige renovatie en uitbreiding voor Pniëlschool in Rotterdam Zuid naar ontwerp van EGM Architecten
1 juli 2022
Radboudumc heeft speciaal infectieziektengebouw naar ontwerp van EGM
18 december 2023
Orthopedisch Centrum naar ontwerp van EGM geopend
6 juli 2020
Interieur Rosa Spier Huis geeft kunst de ruimte
30 juni 2020
Overzichtelijk en vriendelijk Oogcentrum door EGM architecten
29 juni 2020
Vernieuwd stadhuis en stadskantoor Hengelo in gebruik genomen
5 juni 2020
EGM architecten ontwerpt politiedistrictskantoor in Middelburg
8 mei 2020
Transformatie Fenix II-loods Rotterdam van start
29 april 2020
Gebiedsvisie maakt het verschil in nieuw moderniseringsplan De Kuip
17 april 2020
Bouw flexibel en interfacultair onderwijsgebouw TU Delft van start gegaan
18 juni 2020
Campus TU Delft krijgt gebouw voor doorgroeiende jonge bedrijven
15 juni 2020
Circulair onderkomen voor Firma van Buiten op campus TU Delft
18 februari 2020
EGM architecten presenteert opgeleverd Rosa Spier Huis
28 augustus 2020
Nieuw OK-complex bovenop parkeergarage Reinier de Graaf Gasthuis
7 april 2021
Experience Center van Radboudumc combineert ontmoeting, onderwijs en innovatie
8 juni 2021
Eerste gerenoveerde verpleegafdelingen Amsterdam UMC in gebruik
4 november 2021
EGM brengt Ronald McDonald Huiskamer onder in zwevende 'kiezelstenen'
26 november 2021
Campus TU Delft uitgebreid met ‘acceleratorgebouw’ NEXT
11 augustus 2022
Cepezed mag House of Quantum op campus TU Delft ontwerpen
27 september 2022
Opvallend onderkomen voor dienst Logistiek en Milieu TU Delft
29 september 2022
EGM heeft Gerben Vos en Gary Cornel benoemd tot associate
10 oktober 2022
Toon alles
Andere nieuwsberichten
André Kempe: ‘Het ging Oliver Thill om het geven van betekenis’
Gisteren, 19:15
Agelopen maandag is architect Oliver Thill overleden. Zijn compagnon André Kempe gedenkt de man met wie hij al meer dan 35 jaar bevriend was en ruim een kwarteeuw geleden Atelier Kempe Thill oprichtte.
TconcepT transformeert voormalig warenhuis in Offenbach tot bibliotheek
Gisteren, 15:54
Het 12.000 vierkante meter omvattende complex gaat in bredere zin fungeren als een cultuur- en educatiecentrum met vele functies. In 2027 moet Station Mitte, zoals het gebouw zijn volgende leven wordt genoemd, klaar zijn.
Werkstatt gaat verder zonder medeoprichter Niels Groeneveld
Gisteren, 14:49
Medeoprichter van Werkstatt Niels Groeneveld stopt als partner bij het bureau, om zich te kunnen richten op zijn gezin en onderwijs. Floor Frings en Raoul Vleugels blijven het Eindhovense bureau leiden.
Binationaal ontwerpteam buigt zich over waterhuishouding Cartagena in Colombia
Gisteren, 13:43
Een Colombiaans-Nederlands ontwerpteam met Felixx Landscape Architects & Planners en Witteveen+Bos moedigt Cartagena aan om haar relatie met water te heroverwegen en na te denken over een veerkrachtige toekomst
Kunstmuseum in Den Haag moet worden verbouwd
Gisteren, 16:32
Daarvoor dient het museum in het Statenkwartier waarschijnlijk een tijd te sluiten.
Coen van Oostrom benoemd tot nieuwe voorzitter VNO-NCW
Gisteren, 12:23
De oprichter van ontwikkelaar Edge volgt in die rol Ingrid Thijssen op, die deze week is begonnen als nieuwe bestuursvoorzitter van de TU Delft.
Rapport: lokaal klimaatbeleid schiet nog tekort
Gisteren, 10:25
De makers van de zogeheten Toekomstmeter hebben het beleid van zeventig gemeenten doorgelicht.
Hardt Hyperloop failliet verklaard door rechtbank
5 maart, 11:37
Het Rotterdamse bedrijf was bezig met de ontwikkeling van technologie om mensen op hoge snelheid via capsules door een vacuümbuis te vervoeren.
Onderzoek: zeespiegel kustgebieden hoger dan in studies aangenomen
5 maart, 9:13
De zeespiegel aan de kust is in grote delen van de wereld waarschijnlijk hoger dan in veel wetenschappelijke studies wordt aangenomen.
Gelderland geeft voorrang aan vergunningen met minder stikstof
4 maart, 12:24
De plannen zijn onderdeel van het pakket maatregelen dat het Gelderse bestuur wil nemen om de vergunningverlening voor zaken als de woningbouw weer op gang te krijgen.
Ga naar het nieuws-archief
Ronnie Weessies
Redacteur
1
0
0
0
Voor een optimale gebruikservaring plaatst Architectenweb functionele cookies. Wat de verschillende cookies precies doen leggen we uit in een
overzicht
. Cookies van social media kun je optioneel
aanzetten
.
Akkoord
Instellingen
Annuleren
OK
Sluiten
Doorgaan
Inloggen
Maak een gratis persoonlijk account aan
Feedback
Feedback
Wij horen graag jouw feedback. Laat je reactie achter en eventueel jouw e-mail adres.
Reactie
Verstuur