Abonneer je nu op onze nieuwsbrieven!
Abonneren
Nee, bedankt
Ja, denk met me mee rond de
materialisering van mijn project
Copyright: Nudus
Copyright: Nudus
Copyright: Nudus
Copyright: Nudus
Gebouw R11
Copyright: Frank Hanswijk
Gebouw R11
Copyright: Frank Hanswijk
Gebouw R11
Copyright: Frank Hanswijk
Gebouw R11
Copyright: Frank Hanswijk
Gebouw R11
Copyright: Frank Hanswijk
Gebouw R11
Copyright: Frank Hanswijk
Gebouw R11
Copyright: Ewout Huibers
Gebouw R11
Copyright: Ewout Huibers
Gebouw R11, aanzicht noordgevel
Copyright: Nudus
Gebouw R11, aanzicht zuidgevel
Copyright: Nudus
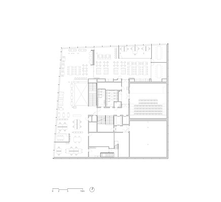
Gebouw R11, eerste verdieping
Copyright: Nudus
Gebouw R12
Copyright: Frank Hanswijk
Gebouw R12
Copyright: Frank Hanswijk
Gebouw R12
Copyright: Ewout Huibers
Gebouw R12
Copyright: Rutger Raymakers
Gebouw R12
Copyright: Ewout Huibers
Gebouw R12
Copyright: Frank Hanswijk
Gebouw R12, aanzicht noordgevel
Copyright: Nudus
Gebouw R12,eerste verdieping
Copyright: Nudus
Gebouw R13
Copyright: Frank Hanswijk
Gebouw R13
Copyright: Frank Hanswijk
Gebouw R13
Copyright: Frank Hanswijk
Gebouw R13
Copyright: Frank Hanswijk
Gebouw R13
Copyright: Frank Hanswijk
Gebouw R13
Copyright: Ewout Huibers
Gebouw R13
Copyright: Mike Bink
Gebouw R13
Copyright: Frank Hanswijk
Aanzicht noordgevel
Copyright: Nudus
Eerste verdieping
Copyright: Nudus
Getransformeerde campus Fontys Hogescholen Eindhoven officieel geopend
In Eindhoven is de getransformeerde campus Rachelsmolen van Fontys Hogescholen officieel geopend. Van een omheinde campus die werd gedomineerd door parkeren is het terrein veranderd in een open en groen ingerichte plek. Door de opleidingen te verspreiden over drie nieuwe gebouwen, willen de architecten beweging en ontmoeting op de campus stimuleren.
Het ontwerpteam van Barcode Architects, Nudus (onder de vlag van het eerstgenoemde bureau is het project gestart, Nudus heeft het afgerond), OKRA landschapsarchitecten en Hollandse Nieuwe is verantwoordelijk voor het ontwerp van het masterplan, het omliggend landschap en drie nieuwe gebouwen. Het nieuwe deel van de campus is gerealiseerd op de plek waar tot jaar geleden het gesloopte gebouw R1 stond.

Het 24.000 vierkante meter omvattende onderwijsprogramma is verdeeld over de drie gebouwen. De gebouwen zijn zo geplaatst dat ze een eenheid vormen met de bestaande gebouwen en het landschap. Samen omzomen ze een binnengebied, een groene openbare ruimte van vier hectare met een plein, dat dient als een ontmoetingspunt voor studenten, docenten en andere gebruikers.
Gebouw R11
Gebouw R11 neemt een centrale plek in op de campus. Het bevat gemeenschappelijke functies voor studenten en medewerkers van Fontys, waaronder het restaurant, de bibliotheek en een ruime collegezaal. Het gebouw heeft twee gezichten. Aan de zijde van de campus presenteert het zich met een transparante gevel, waardoor hier een sterke relatie tussen interieur en buitenruimte ontstaat. Aan de kant van de aangrenzende woonwijk heeft het een meer gesloten karakter.
Gebouw R12
R12 is het gebouw voor praktijkgericht onderwijs met gespecialiseerde faciliteiten die professionele situaties nabootsen, bijvoorbeeld op het gebied van fysiotherapie, MRI en chirurgie. Enkele van deze ruimtes zijn open voor publiek, zodat bewoners van de stad toegang hebben tot specifieke medische behandelingen.

In het ontwerp is gestreefd naar een balans tussen toegankelijkheid en privacy, met een atrium, uitgebreide raampartijen en een prominente trap die dient als zittribune en route door het gebouw, en die verschillende verdiepingen met elkaar verbindt. Dieper in het gebouw zijn de privéruimtes strategisch geplaatst, weg van de centrale routes, om zo de privacy, veiligheid en het comfort van studenten en patiënten te waarborgen.
Gebouw R13
Het R13-gebouw heeft een dubbele functie. Het fungeert als de etalage van de campus en als een essentiële schakel tussen de campus en de stad. Een opvallend eenlaags volume doorsnijdt het gebouw loodrecht en biedt een hoofdentree aan zowel de stads- als campuszijde. De gevel van het volume valt op door een trap-tribune, die niet alleen plaats biedt aan groen en geïntegreerde zitgelegenheden, maar ook een rol heeft als het openluchttheater van de campus.

“De integratie van dit architectonische object zorgt voor een aangename aansluiting tussen het gebouw en de natuurlijke omgeving, zowel qua vormgeving als gebruik. Tegelijkertijd introduceert het een menselijke schaal, die de toegankelijkheid en verbondenheid van gebouw met de omgeving verhoogt”, aldus de architecten.

Gerelateerde nieuwsberichten

Andere nieuwsberichten

OMA gebruikt bestaand gebouw als canvas bij renovatie Edo-Tokyo Museum

17 minuten geleden

Winnaars verkiezing Beste Bossche Gebouw 2020–2025 bekend

1 uur geleden

Appartementengebouwen door MIX architectuur vormen sluitstuk Noorderhaven Zutphen

3 uur geleden

EUmies Award naar renovatie congrescentrum in Charleroi en tijdelijke ruimtes Sloveens theater

Vandaag, 10:54

Inspectie positief over verbetering sociale veiligheid TU Delft

4 uur geleden

NVM vreest minder nieuwbouw door veranderende voorrang stroomnet

Vandaag, 09:23

Architecten voor restauratie en herbestemming Rivièrahal gekozen

Gisteren, 12:00

Bewoners aardbevingsgebied Groningen blijven kritisch op herstel

Gisteren, 10:34

ING: optoppen en splitsen van woningen steeds minder haalbaar

15 april, 1:22

Geen rechtszaak over subsidie ministerie aan Van Gogh Museum

15 april, 10:02
Ronnie WeessiesRedacteur
KUBUS | Specialist in Archicad
SAPA
Reynaers Aluminium Nederland
Jansen
SAB-profiel bv
Aliplast Aluminium Systems
Kingspan Light & Air
ALUCOBOND®
Caparol
Tarkett BV
Kawneer
Grohe Nederland B.V.
Malaysian Timber Council
OCS | Office Cabling Systems
Swisspearl Nederland
Forster Nederland N.V.
VELUX Commercial Benelux B.V.
Sempergreen
Houthandel van Dam
Aluprof Nederland BV
QbiQ Wall Systems
Forbo Flooring
Schüco Nederland
Cedral
Sto Isoned bv
Triflex bv
Gorter Luiken BV
wienerberger
DUCO Ventilation & Sun Control
BEWI IsoBouw
ROCKWOOL B.V.
Mview+
Rockfon (ROCKWOOL B.V.)
Gira Nederland B.V.
Kingspan Geïsoleerde Panelen
GEZE Benelux  B.V.
Renson
Metaglas Groep
ABB | Busch-Jaeger
Jung | Hateha B.V.
Knauf B.V.
Saint-Gobain Glass Benelux
Faay Vianen B.V.
objectflor
Boon Edam Nederland B.V.
Hunter Douglas Architectural
VOLA Nederland BV
Forbo Eurocol Nederland B.V.
EQUITONE gevelpanelen
Holonite B.V.
Kronospan
Tata Steel Colorcoat®
Architectenweb
Over ons
Contact

© 2002 - 2026 Architectenweb BV / Voorwaarden / Privacy / Disclaimer / Sitemap
Annuleren
OK
Sluiten
Doorgaan
Inloggen
Maak een gratis persoonlijk account aan