Projecten
Producten
Bedrijven
Vacatures
Agenda
Awards
Podcasts
more_horiz
Videos
Magazine
Thema's
Favorieten
Profiel
Uitloggen
Abonneer je nu op onze nieuwsbrieven!
Abonneren
Nee, bedankt
Ja, denk met me mee rond de
materialisering van mijn project
Copyright: Michael Moser
Copyright: Egbert de Boer
Copyright: Egbert de Boer
Copyright: Egbert de Boer
Copyright: Egbert de Boer
Copyright: Egbert de Boer
Copyright: Egbert de Boer
Copyright: Egbert de Boer
Copyright: Kees Leemeijer
Copyright: Egbert de Boer
Copyright: Egbert de Boer
Copyright: Egbert de Boer
Copyright: Egbert de Boer
Copyright: Egbert de Boer
Copyright: Egbert de Boer
Copyright: Michael Moser
Situatie
Copyright: Barcode Architects
Doorsnede
Copyright: Barcode Architects
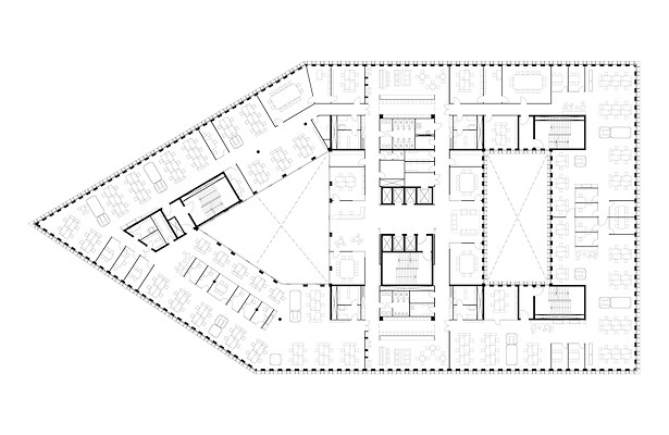
Begane grond
Copyright: Barcode Architects
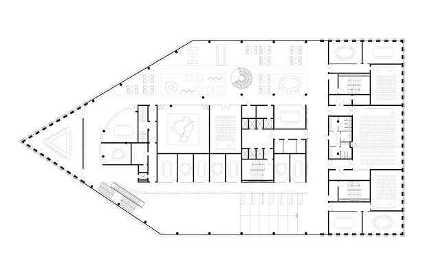
Eerste verdieping
Copyright: Barcode Architects
Tweede verdieping
Copyright: Barcode Architects
Derde verdieping
Copyright: Barcode Architects
Barcode Architects presenteert opgeleverd stadskantoor van Dresden
5 december 2025, 14:53
Het door
Barcode Architects
en
Tchoban Voss Architekten
ontworpen stadskantoor van Dresden is geopend. Het 34.000 vierkante meter omvattend gebouw maakt deel uit van de vernieuwing van het Ferdinandplatz in het centrum van de Duitse stad. Het gebouw kent drie majeure ‘openingen’ in de richting van enkele prominente plekken.
Aan de kant van het Ferdinandplatz en het historische raadhuis zijn twee grote vensters gerealiseerd die uitzicht bieden op respectievelijk het plein en het
Rathaus
. Aan de zijde waar het park Großer Garten is gelegen, is een uitsparing in het volume gecreëerd met daarachter een groene patio. Deze gebouwopeningen moeten de relatie van het stadskantoor met zijn omgeving versterken.
Bezoekers komen van het Ferdinandplatz de meerdere lagen tellende foyer van het gebouw binnen. Op de begane grond bevinden zich onder meer de receptie, gemeentelijke balies, een restaurant en ontmoetingsruimtes. Een van de trappartijen die naar de eerste verdieping leidt, kan ook worden gebruikt als een auditorium voor bijvoorbeeld presentaties en debatten.
De bovengelegen verdieping van de ‘stadsfoyer’ huisvest een congrescentrum en een gezamenlijke ruimte voor bezoekers en ambtenaren. De kantoren op de verdiepingen daar weer boven zijn georganiseerd rond twee groene binnentuinen, die fungeren als de ‘longen’ van het gebouw. Ze brengen daglicht de kantoren binnen en vormen zowel een oriëntatie als (visueel) rustpunt.
De n gevel is geleed in drie delen, in lijn met de traditionele gevelopbouw in Dresden. Waar de onderste twee geveldelen zijn bekleed met witte natuursteen, is de kroon gematerialiseerd in donker metaal. Alle ramen zijn verdiepinghoog. Binnenwanden en plafonds moet het interieur met hun houten latwerk een warm karakter geven.
Trefwoorden
duitsland
dresden
tchoban voss architekten
stadskantoor
barcode architects
Locatie
Best gelezen
1
Architectenweb symposium: ontwerpen van autovrije buurten
donderdag, 12 maart
2
Weg met de auto?
donderdag, 12 maart
3
De Urbanisten schetst perspectief voor vitale en aantrekkelijke Rotterdamse binnenstad
vrijdag, 13 maart
4
Nominaties Amsterdamse Architectuurprijs 2026 bekend
vrijdag, 13 maart
5
Studio Vinke en Loos van Vliet ontwerpen blok met woningen in haven Lelystad
vrijdag, 13 maart
Gerelateerde nieuwsberichten
Barcode Architects ontwerpt stadskantoor van Dresden
20 april 2021
Holterbergdistrict Amsterdam Zuidoost herontwikkeld tot gemengde wijk
4 december 2025
Voormalig pand Sociale Zaken Den Haag nog niet afgebroken
21 augustus 2025
Getransformeerde campus Fontys Hogescholen Eindhoven officieel geopend
7 maart 2024
Bouw multifunctioneel complex tegenover station Nijmegen kan starten
1 november 2023
CasaNova maakt sculpturaal ensemble van woontorens af
21 augustus 2023
Barcode Architects ontwerpt stadskantoor van Dresden
20 april 2021
Holterbergdistrict Amsterdam Zuidoost herontwikkeld tot gemengde wijk
4 december 2025
Voormalig pand Sociale Zaken Den Haag nog niet afgebroken
21 augustus 2025
Getransformeerde campus Fontys Hogescholen Eindhoven officieel geopend
7 maart 2024
Bouw multifunctioneel complex tegenover station Nijmegen kan starten
1 november 2023
CasaNova maakt sculpturaal ensemble van woontorens af
21 augustus 2023
Toon alles
Andere nieuwsberichten
Houten Stelthuis van Woonpioniers is aardbevings- en klimaatbestendig
2 uur geleden
De houten steltwoning, ontworpen door Woonpioniers, vervangt een door aardbevingsschade getroffen woning in Overschild.
Bouwvergunning voor wooncomplex door SVP in Banne Noord verleend
3 uur geleden
Het blok bestaat uit 107 woningen, te weten seniorenwoningen rond een collectieve binnentuin en appartementen en een woontoren. In de plint komen commerciële functies en een fietsenstalling.
Landschappelijk ontworpen buurt in Vinex-wijk Schuytgraaf voltooid
4 uur geleden
Het ontwerp van MIX architectuur en MAAK.space bestaat uit 56 grondgebonden woningen, verdeeld over verschillende alzijdige woonvelden. Door het vele groen rond de huizen vloeien de grenzen tussen privé en openbaar in elkaar over.
BureauVanEig verbetert uitstraling Haagse rijtjeswoningen bij verduurzaming
Gisteren, 15:30
In de Haagse wederopbouwwijk De Venen zijn naar ontwerp van BureauVanEig75 rijtjeswoningen gerenoveerd. Behalve dat de sociale huurwoningen werden verduurzaamd is de architectonische uitstraling verbeterd.
Veel meer financieringsaanvragen Warmtefonds om hogere gasprijzen
1 uur geleden
De gestegen gasprijzen zorgen ervoor dat veel meer huiseigenaren financiering aanvragen voor het energiezuiniger maken van hun woning.
Grondprijs voor landbouwgrond loopt op tot bijna een ton
Vandaag, 09:36
Ook overheden en andere partijen zoeken naar grond voor onder meer woningbouw, natuur en infrastructuur.
ANWB: betrek bewoners beter bij parkeerplannen in de wijk
Gisteren, 14:00
Bewoners vinden naast parkeerruimte groen en leefbaarheid in hun wijk ook belangrijk, stelt de organisatie.
Kabinet gaat mogelijk infrastructuurprojecten schrappen
Gisteren, 10:42
Miljardentekorten dwingen het kabinet tot nieuwe keuzes in de aanleg en het onderhoud van infrastructuur.
Onderzoek: bedrijventerreinen slecht voorbereid op wateroverlast
16 maart, 1:10
Volgens een analyse van alle 3713 bedrijventerreinen bevat zeventig procent veel gebouwen die kwetsbaar zijn bij extreme regenbuien.
Eerste waterstoffabriek aangesloten op Nederlands netwerk
16 maart, 10:08
De waterstoffabriek van Shell op de Rotterdamse Maasvlakte is de eerste met een aansluiting op het waterstofnetwerk.
Ga naar het nieuws-archief
Ronnie Weessies
Redacteur
1
0
0
0
Voor een optimale gebruikservaring plaatst Architectenweb functionele cookies. Wat de verschillende cookies precies doen leggen we uit in een
overzicht
. Cookies van social media kun je optioneel
aanzetten
.
Akkoord
Instellingen
Annuleren
OK
Sluiten
Doorgaan
Inloggen
Maak een gratis persoonlijk account aan
Feedback
Feedback
Wij horen graag jouw feedback. Laat je reactie achter en eventueel jouw e-mail adres.
Reactie
Verstuur