Projecten
Producten
Bedrijven
Vacatures
Agenda
Awards
Podcasts
more_horiz
Videos
Magazine
Thema's
Favorieten
Profiel
Uitloggen
Copyright: WAX
Copyright: WAX
Copyright: WAX
Copyright: WAX
Copyright: WAX
Copyright: WAX
Copyright: WAX
Copyright: WAX
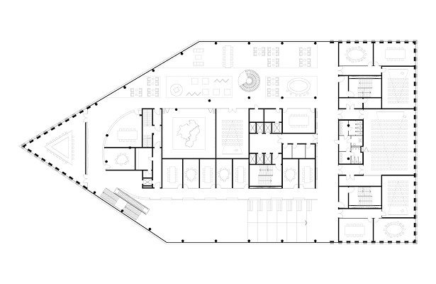
Begane grond
Copyright: Barcode Architects
Eerste verdieping
Copyright: Barcode Architects
Vierde verdieping
Copyright: Barcode Architects
Zesde verdieping
Copyright: Barcode Architects
Barcode Architects ontwerpt stadskantoor van Dresden
20 april 2021, 12:27
Barcode Architects heeft samen met Tchoban Voss Architekten de prijsvraag voor het nieuwe stadskantoor van Dresden gewonnen. Het 34.000 vierkante meter omvattend gebouw verrijst aan het Ferdinandplatz, dat eveneens volgens een plan van Barcode Architects
wordt herontwikkeld
. Aan dit plein bevindt zich de transparante entree voor bezoekers.
De entree vormt een van de drie openingen die in het alzijdige volume zijn ‘gesneden’, verklaart het architectenbureau. Een groot venster in een hoek van de eerste verdieping (met daarachter een ‘huiskamer’ voor medewerkers en bezoekers) vormt de tweede opening, een patio aan de achterkant van het gebouw die zichtbaar is dankzij een uitsparing in de gevel is de derde.
De onderste lagen van het gebouw zijn ontworpen als een ‘stadsfoyer’, met verschillende openbare functies. Vanaf de centrale receptie op de begane grond voeren twee trappen aan weerzijden (een van de trappen fungeert tevens als debat- en presentatiepodium) de bezoekers naar de eerste verdieping, waar zich een openbaar conferentiecentrum en de huiskamer voor de bezoekers en ambtenaren met restaurant bevinden.
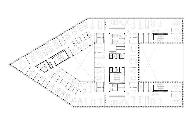
Op de bovenste verdiepingen liggen de kantoorruimten, die zijn georganiseerd rond twee patio’s aan weerszijden van de gebouwkern. De twee binnenhoven fungeren onder meer als plek om een luchtje te scheppen en zorgen ervoor dat alle kantoren van daglicht worden voorzien. Daarnaast dragen ze bij aan korte looplijnen en een heldere oriëntatie voor de medewerkers.
Natuurstenen gevel
Het gebouw is voorzien van een natuurstenen gevel met daartussen verdiepinghoge ramen. De interieurs worden grotendeels gerealiseerd van hout. De donkere kroon zorgt voor een optische verlaging van het volume, verklaart Barcode Architects.
Het nieuwe stadskantoor moet in 2025 klaar zijn. In dat jaar is ook de oplevering van het vernieuwde Ferdinandplatz gepland.
Trefwoorden
duitsland
dresden
tchoban voss architekten
barcode architects
publiek gebouw
stadskantoor
Locatie
Best gelezen
1
Amsterdam schrijft internationale architectenprijsvraag uit voor Nationaal Slavernijmuseum
donderdag, 12 februari
2
Singelbloktoren Amsterdam-Noord biedt ook bewoners tussenwoningen overhoeks zicht
maandag, 16 februari
3
Bouwstart voor zestig seniorenwoningen in groen landschap Hoorn
vrijdag, 13 februari
4
Meerdaags evenement over bouwen met aarde aangekondigd
donderdag, 12 februari
5
Leren van Santos
dinsdag, 17 februari
Gerelateerde nieuwsberichten
Barcode Architects presenteert opgeleverd stadskantoor van Dresden
5 december 2025
Caro van de Venne vertrekt bij Barcode Architects en richt nieuw bureau op
23 mei 2023
Naoorlogse fabriek getransformeerd tot stadskantoor Den Haag
21 september 2022
Caro van de Venne supervisor voor transformatieproject Sloterdijk I Zuid
15 maart 2021
Woningbouw bij aanlanding De Oversteek in Nijmegen
5 januari 2021
Transformatie Fontys-campus Eindhoven gaat van start
1 december 2020
De knik maakt het verschil in woontoren The Muse
26 oktober 2020
Barcode Architects ontwerpt nieuw kantoor SDK en Stam + De Koning
30 september 2020
Bartok en Focus Filmtheater winnaars Heuvelinkprijs 2020
21 september 2020
Barcode Architects: ‘Van Rotterdam een wandelstad maken’
3 september 2020
Barcode Architects transformeert deel van Berlijnse brouwerij
9 april 2020
Masterplan met hoogbouw en drijvend stadspark voor Rijnhaven gepresenteerd
6 maart 2020
Barcode Architects maakt visie voor Utrecht Science Park
13 februari 2020
Gevel met 'stromende delta' karakteriseert faculteitsgebouw
4 oktober 2019
Barcode Architects en Karres+Brands maken plan Weezenlanden-Noord
13 september 2019
Mijlpalen voor woontorens The Muse en CasaNova
14 juni 2019
Barcode Architects wint prijsvraag voor herontwikkeling Ferdinandplatz in Dresden
25 augustus 2017
Bouw wooncomplex Imagine op de grens Parkstad en Feyenoord City gestart
7 december 2021
Hoogste punt voor woontoren CasaNova in Rotterdam
13 december 2021
Barcode Architects toont definitief ontwerp The Orchard II voor Rijswijk
11 januari 2022
Barcode Architects presenteert opgeleverd stadskantoor van Dresden
5 december 2025
Caro van de Venne vertrekt bij Barcode Architects en richt nieuw bureau op
23 mei 2023
Naoorlogse fabriek getransformeerd tot stadskantoor Den Haag
21 september 2022
Caro van de Venne supervisor voor transformatieproject Sloterdijk I Zuid
15 maart 2021
Woningbouw bij aanlanding De Oversteek in Nijmegen
5 januari 2021
Transformatie Fontys-campus Eindhoven gaat van start
1 december 2020
De knik maakt het verschil in woontoren The Muse
26 oktober 2020
Barcode Architects ontwerpt nieuw kantoor SDK en Stam + De Koning
30 september 2020
Bartok en Focus Filmtheater winnaars Heuvelinkprijs 2020
21 september 2020
Barcode Architects: ‘Van Rotterdam een wandelstad maken’
3 september 2020
Barcode Architects transformeert deel van Berlijnse brouwerij
9 april 2020
Masterplan met hoogbouw en drijvend stadspark voor Rijnhaven gepresenteerd
6 maart 2020
Barcode Architects maakt visie voor Utrecht Science Park
13 februari 2020
Gevel met 'stromende delta' karakteriseert faculteitsgebouw
4 oktober 2019
Barcode Architects en Karres+Brands maken plan Weezenlanden-Noord
13 september 2019
Mijlpalen voor woontorens The Muse en CasaNova
14 juni 2019
Barcode Architects wint prijsvraag voor herontwikkeling Ferdinandplatz in Dresden
25 augustus 2017
Bouw wooncomplex Imagine op de grens Parkstad en Feyenoord City gestart
7 december 2021
Hoogste punt voor woontoren CasaNova in Rotterdam
13 december 2021
Barcode Architects toont definitief ontwerp The Orchard II voor Rijswijk
11 januari 2022
Toon alles
Gerelateerde podcasts
Toren van Babel
Gesprek met Caro van de Venne over hoogbouw en de openbare ruimte
8 april 2021
Andere nieuwsberichten
AG NOVA ontwerpt woon-zorggebouw voor kwetsbare ouderen op Centrumeiland
Gisteren, 15:15
Het pand is bestemd voor bewoners die complexe zorg nodig hebben en met ondersteuning in de stad kunnen blijven wonen.
Team van Nederlandse en Oekraïense architecten ontwikkelt open-source bouwsysteem voor publieke voorzieningen in Oekraïne
Gisteren, 13:57
Een team van Orange Architects, NOVA en ReThink heeft samen met een verschillende vastgoed en productontwikkelaars op het gebied van modulair bouwen een schaalbaar, open-source bouwsysteem voor publieke voorzieningen in Oekraïne ontwikkeld.
Expositie toont mogelijkheden voor nieuwe woonruimte in bestaande Rotterdamse wijken
Gisteren, 11:05
Hoe kun je in Rotterdam honderdduizend nieuwe woningen realiseren zonder nieuwe wijken te hoeven aanleggen? In een tentoonstelling bij OMI laten Platform Woonopgave en Recht op de Stad zien op welke manieren dat kan.
Vincent Bijlo en Berlage Saxophone Quartet brengen iconisch ontwerp van Berlage tot leven
17 februari, 3:50
In de nieuwe voorstelling ‘Het Visioen van Berlage’ van cabaretier en schrijver Vincent Bijlo en het Berlage Saxophone Quartet speelt het iconische ontwerp Pantheon der Menschheid (1915) van architect Berlage een centrale rol.
Ridderkerk hoeft voorlopig niet samen te werken bij verdeling huurwoningen
Gisteren, 16:29
De provincie Zuid-Holland mag Ridderkerk voorlopig niet dringen om hierbij samen te werken met elf andere gemeenten.
Zichtbaar verduurzaamde huizen leveren meer op bij verkoop
Gisteren, 11:59
Cijfers wijzen uit dat in het derde kwartaal van vorig jaar bijna 4700 euro per vierkante meter werd betaald voor woningen met een energielabel A of beter.
Noord-Brabant verdeelt vijftig miljoen euro over regio-Moerdijk
Gisteren, 09:09
Het geld dient om de leefbaarheid op peil te houden in het gebied waar de komende jaren diverse energieprojecten worden uitgevoerd.
Nederland en Vlaanderen maken afspraken over stikstofuitstoot
17 februari, 2:51
Overheden in de grensregio moeten als ze een vergunning geven voor zaken als woningbouw ook kijken naar de mogelijke gevolgen die de uitstoot heeft voor beschermde natuurgebieden aan de andere kant van de grens.
Blaricum lost Laren af als gemeente met duurste woningen
17 februari, 10:39
Het verschil tussen de duurste en goedkoopste koophuizen is in 2025 groter geworden.
Noord-Hollands dorp Opmeer wil eerste mini-kernreactor huisvesten
16 februari, 1:34
Opmeer heeft in het Nederlandse bedrijf Allseas een mogelijke bouwer van een Small Modular Reactor gevonden.
Ga naar het nieuws-archief
Ronnie Weessies
Redacteur
0
0
0
0
Voor een optimale gebruikservaring plaatst Architectenweb functionele cookies. Wat de verschillende cookies precies doen leggen we uit in een
overzicht
. Cookies van social media kun je optioneel
aanzetten
.
Akkoord
Instellingen
Annuleren
OK
Sluiten
Doorgaan
Inloggen
Maak een gratis persoonlijk account aan
Feedback
Feedback
Wij horen graag jouw feedback. Laat je reactie achter en eventueel jouw e-mail adres.
Reactie
Verstuur