Projecten
Producten
Bedrijven
Vacatures
Agenda
Awards
Podcasts
more_horiz
Videos
Magazine
Favorieten
Profiel
Uitloggen
Abonneer je nu op onze nieuwsbrieven!
Abonneren
Nee, bedankt
Ja, denk met me mee rond de
materialisering van mijn project
Copyright: Christian van der Kooy
Copyright: Christian van der Kooy
Copyright: Hans Wilschut
Copyright: Christian van der Kooy
Copyright: Hans Wilschut
De gevel van de parkeergarage aan de Wijnstraat
Copyright: Hans Wilschut
Copyright: Hans Wilschut
Copyright: Christian van der Kooy
Copyright: Christian van der Kooy
Copyright: Christian van der Kooy
Copyright: Hans Wilschut
Copyright: Hans Wilschut
Copyright: Hans Wilschut
Copyright: Hans Wilschut
Copyright: Barcode Architects
Copyright: Barcode Architects
Copyright: Barcode Architects
Copyright: Barcode Architects
Copyright: Barcode Architects
Copyright: Barcode Architects
Copyright: Barcode Architects
De knik maakt het verschil in woontoren The Muse
26 oktober 2020, 15:57
In het Rotterdamse Wijnhavenkwartier is dit jaar woontoren The Muse in gebruik genomen. In het ontwerp voor het zeventig meter hoge gebouw heeft
Barcode Architects
geprobeerd om zowel de toren als de plint te verbinden met de straat. De oplossing werd gevonden in een knik, zo vertelt architect en bureaupartner Caro van de Venne tegen Architectenweb. “De witte balkons kletteren als een waterval naar beneden.”
Anno 2020 is het nauwelijks meer voor te stellen, maar zeven jaar geleden moest het initiatief voor een woontoren in het centraal gelegen Wijnhavenkwartier van een architectenbureau komen. En het lukte Barcode Architects niet om het project te slijten aan Nederlandse ontwikkelaars, ondanks de ogenschijnlijk gunstige omstandigheden.
‘Dynamisch masterplan'
De plek ligt op een steenworp afstand van het stadscentrum en heeft de potentie om als schakel te fungeren tussen de Markthal, de Maas, de Witte de Withstraat en het Museumkwartier. Bovendien biedt het ‘dynamisch masterplan' van KCAP voor het Wijnhavenkwartier ruimte voor marktpartijen om bijvoorbeeld extra woningen te ontwikkelen. KCAP had zelf al The Red Apple ontworpen in het gebied en in 2013 was ook de door Klunder Architecten ontworpen toren 100Hoog gereedgekomen.
“Op de plek van The Muse stond een gebouw van de gemeente Rotterdam, dat vrijkwam omdat de daarin gehuisveste dienst naar het Timmerhuis werd verplaatst”, vertelt Caro van de Venne, die met Barcode Architects in de niet veel verderop gelegen Scheepmakershaven zetelt. “Mijn bureaupartner Dirk Peters en ik zagen er een prachtige locatie in voor een luxe woontoren, een typologie die in het centrum van Rotterdam nog bepaald niet goed was vertegenwoordigd.”
“We zijn in gesprek gegaan met de gemeente en KCAP, hebben vervolgens een plan gemaakt en zijn ermee naar Nederlandse ontwikkelaars gestapt. Daar hoorden we steeds: in Amsterdam zouden we er onmiddellijk mee aan de slag zijn gegaan, maar dit is Rotterdam, een lastige markt. We hadden er een Duitse partij voor nodig om het project van de grond te krijgen. Wilma Wonen, dat enerzijds de bril draagt van een buitenstaander maar ook kennis heeft van de Nederlandse markt, zag wel brood in ons plan om op deze plek koopwoningen te ontwikkelen.”
Daktuin
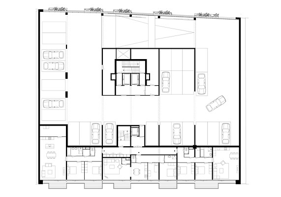
De ontwikkelaar kocht zowel de kavel waar nu The Muse staat als het naastgelegen perceel waar op dit moment de eveneens door Barcode Architects ontworpen woontoren CasaNova wordt gebouwd. The Muse is bijna 75 meter hoog en telt 94 woningen, de in 2022 op te leveren CasaNova reikt 110 meter de lucht in en zal bestaan uit 116 woningen. De gebouwen delen een daktuin, die zich op de plint van CasaNova bevindt en bereikbaar is vanaf de vijfde verdieping van The Muse.
Volgens de hoogbouwvisie van de gemeente Rotterdam dienen torens te bestaan uit een plint die aansluit op de hoogte van de bestaande bebouwing (de zogeheten Rotterdamse laag) en een toren die is teruggelegen ten opzichte van de straat. Voor het ontwerp van The Muse is gezocht naar een manier om zowel de plint als de toren te verbinden met het maaiveld, zodat ook de hoger wonende bewoners connectie houden met de straat en de toren zelf ‘beleefbaar’ blijft vanaf straatniveau.
Knik
De oplossing is gevonden in een knik die de toren vlak boven de sokkel gemaakt en de buitenruimtes die zijn gerealiseerd voor de bewoners. “Onze opdrachtgever wilde ruime woningen, in combinatie met een fantastische buitenruimte”, zegt Van de Venne. “Dat hebben we vertaald in diepe witte balkons, die dankzij de knik als een waterval naar beneden kletteren. Op die manier loopt de toren vloeiend door vanuit de sokkel en ervaar je het hele gebouw vanaf de straat als een eenheid.”
De bewoners houden dankzij hun ruime balkons (die in de tussenlaag zijn met 4,5 meter het diepst) weer contact met ‘buiten’ en het maaiveld. En mocht de straat toch iets te ver van de woning liggen, is er in de toekomst nog de gedeelde daktuin waaruit het hoogbouwdeel van CasaNova ontspruit. Die bevindt zich immers op een hoogte waarvandaan ‘je nog iemand op straat kunt roepen’, zoals Van de Venne het verwoordt.
Zo groot mogelijke woonkamers
The Muse bestaat voornamelijk uit woningen van 80 tot 120 vierkante meter. Daarnaast zijn er ook twee verdieping-grote penthouses van ruim 200 m². “We hebben ingezet op zo groot mogelijke woonkamers en het aantal slaapkamers meestal beperkt tot twee. Zo voorkom je ‘verhokking’ van de woonruimte en sluit de omvang van de woonkamer beter aan op die van de buitenruimte. Bovendien spaar je zo een kamer voor gasten uit, die wordt toch tachtig procent niet gebruikt. Mochten er bezoekers willen overnachten, dan kunnen ze dat eventueel voor een zachte prijs doen voor een van de twee hotelkamers in het gebouw.”
De speciaal voor de bewoners en hun gasten bestemde hotelkamers bevinden zich net als de andere gemeenschappelijke voorzieningen (waaronder een sportruimte en een kamer voor de huismeester) in de knik van het gebouw, op de vijfde verdieping die toegang geeft tot het gedeelde dakterras. Die knik is overigens ook bedoeld als voorzet voor de in aanbouw zijnde CasaNova-toren. Door het hoge volume te verschuiven, ontstaat uitzicht voor de bewoners van de diagonaal geplaatste toekomstige toren. Bovendien gaan The Muse en CasaNova zo in visueel opzicht een Yin en Yang vormen.
Bijzonder is dat op de onderste verdiepingen woningen zijn gecombineerd met een parkeergarage aan de achterkant. Door het ritme van de balkons in de gevel ook aan de achterzijde door te zetten, maar dan in de vorm van plantenbakken, behoudt het gebouw ook hier zijn eenduidig beeld en verandert de gevel van de parkeergarage aan de Wijnstraat niet in een typische ‘achterkant’.
Trefwoorden
100hoog
the muse
kcap architects&planners
caro van de venne
woontoren
hoogbouw
kcap
rotterdam
toren
wijnhaven
barcode architects
wijnhavenkwartier
Locatie
Best gelezen
1
Woontoren Front door Monadnock wint tiende Architectuurprijs Nijmegen
donderdag, 9 april
2
Spoorwegverleden inspireert ontwerp woonblok Wisselspoor 10 in Utrecht
woensdag, 8 april
3
Rotterdam mag woningen gaan bouwen aan de Parkhaven
woensdag, 8 april
4
SeARCH en Heutink Groep winnen tender voor woongebouw Sluisbuurt
vrijdag, 10 april
5
KOW wint met Marker Woods tender voor nieuwe wijk Eschmarkerveld
woensdag, 8 april
Gerelateerde nieuwsberichten
CasaNova maakt sculpturaal ensemble van woontorens af
21 augustus 2023
Caro van de Venne supervisor voor transformatieproject Sloterdijk I Zuid
15 maart 2021
Hernieuwde tentoonstelling over Maritiem District in Rotterdam
4 november 2024
Nudus ontwerpt omvangrijke faciliteit voor Havenbedrijf Rotterdam
5 juli 2023
Team V presenteert opgeleverd Clubhouse Boompjes in Rotterdam
30 januari
V8 Architects presenteert bouwfoto’s 150 meter hoge Cooltoren
8 april 2021
Caro van de Venne vertrekt bij Barcode Architects en richt nieuw bureau op
23 mei 2023
Groen licht voor woontoren Riva in Rotterdam
12 maart 2025
Beladen geschiedenis van plek weerspiegeld in gevel OurDomain Rotterdam
2 september 2022
Namen burgerslachtoffers bombardement geprojecteerd op gevel woontoren
11 mei 2022
MoederscheimMoonen presenteert definitief ontwerp woontoren Riva
13 januari 2022
Terraced Tower: ongebruikelijke toren met oog voor de omgeving
12 januari 2022
Hoogste punt voor woontoren CasaNova in Rotterdam
13 december 2021
Bouw wooncomplex Imagine op de grens Parkstad en Feyenoord City gestart
7 december 2021
Leuvepaviljoen Rotterdam opent deuren voor publiek
14 juli 2021
Hotel Marina Beach aan boulevard Scheveningen geopend
6 mei 2021
Nominaties Rotterdam Architectuurprijs 2021 bekend
28 april 2021
Barcode Architects ontwerpt stadskantoor van Dresden
20 april 2021
Rotterdams bureau ontwerpt pure en krachtige toren voor Malta
6 april 2021
Bouw woontorens Clubhouse Boompjes gaat van start
17 februari 2021
Onderzoeksvoorstel BURA en Civic wint Highrise Innovation Award
26 januari 2021
STACK Rotterdam vormt afsluiting ontwikkeling Müllerpier
18 december 2020
Multifunctioneel complex met hoge toren op plek Lumièrepand Rotterdam
16 december 2020
Hoogste punt voor woontorens Zalmhaven II en III Rotterdam
15 december 2020
Gebiedsontwikkelaar AM start presale van markant woongebouw Babel
18 november 2020
Barcode Architects: ‘Van Rotterdam een wandelstad maken’
3 september 2020
Masterplan met hoogbouw en drijvend stadspark voor Rijnhaven gepresenteerd
6 maart 2020
Mijlpalen voor woontorens The Muse en CasaNova
14 juni 2019
Barcode Architects presenteert woontoren CasaNova
26 maart 2018
Barcode ontwerpt ook woontoren naast The Muse
8 juni 2017
OZ ontwerpt toren als gestapeld woonplezier
25 januari 2017
Meer hoogbouw in Wijnhavenkwartier Rotterdam
23 januari 2017
2016: woningbouw kent veel ambities
23 december 2016
Nieuwe woontoren aan Wijnhaven Rotterdam
8 juni 2016
Overeenkomst voor woontoren UP:TOWN
5 januari 2016
Woontoren 100hoog Rotterdam opgeleverd
14 januari 2014
Markante nieuwe toren voor Wijnhavenkwartier
11 juni 2010
Woontoren The Red Apple opgeleverd
8 juni 2009
Juffertoren topper op snel verdichtend Wijnhaveneiland
24 januari 2006
CasaNova maakt sculpturaal ensemble van woontorens af
21 augustus 2023
Caro van de Venne supervisor voor transformatieproject Sloterdijk I Zuid
15 maart 2021
Hernieuwde tentoonstelling over Maritiem District in Rotterdam
4 november 2024
Nudus ontwerpt omvangrijke faciliteit voor Havenbedrijf Rotterdam
5 juli 2023
Team V presenteert opgeleverd Clubhouse Boompjes in Rotterdam
30 januari
V8 Architects presenteert bouwfoto’s 150 meter hoge Cooltoren
8 april 2021
Caro van de Venne vertrekt bij Barcode Architects en richt nieuw bureau op
23 mei 2023
Groen licht voor woontoren Riva in Rotterdam
12 maart 2025
Beladen geschiedenis van plek weerspiegeld in gevel OurDomain Rotterdam
2 september 2022
Namen burgerslachtoffers bombardement geprojecteerd op gevel woontoren
11 mei 2022
MoederscheimMoonen presenteert definitief ontwerp woontoren Riva
13 januari 2022
Terraced Tower: ongebruikelijke toren met oog voor de omgeving
12 januari 2022
Hoogste punt voor woontoren CasaNova in Rotterdam
13 december 2021
Bouw wooncomplex Imagine op de grens Parkstad en Feyenoord City gestart
7 december 2021
Leuvepaviljoen Rotterdam opent deuren voor publiek
14 juli 2021
Hotel Marina Beach aan boulevard Scheveningen geopend
6 mei 2021
Nominaties Rotterdam Architectuurprijs 2021 bekend
28 april 2021
Barcode Architects ontwerpt stadskantoor van Dresden
20 april 2021
Rotterdams bureau ontwerpt pure en krachtige toren voor Malta
6 april 2021
Bouw woontorens Clubhouse Boompjes gaat van start
17 februari 2021
Onderzoeksvoorstel BURA en Civic wint Highrise Innovation Award
26 januari 2021
STACK Rotterdam vormt afsluiting ontwikkeling Müllerpier
18 december 2020
Multifunctioneel complex met hoge toren op plek Lumièrepand Rotterdam
16 december 2020
Hoogste punt voor woontorens Zalmhaven II en III Rotterdam
15 december 2020
Gebiedsontwikkelaar AM start presale van markant woongebouw Babel
18 november 2020
Barcode Architects: ‘Van Rotterdam een wandelstad maken’
3 september 2020
Masterplan met hoogbouw en drijvend stadspark voor Rijnhaven gepresenteerd
6 maart 2020
Mijlpalen voor woontorens The Muse en CasaNova
14 juni 2019
Barcode Architects presenteert woontoren CasaNova
26 maart 2018
Barcode ontwerpt ook woontoren naast The Muse
8 juni 2017
OZ ontwerpt toren als gestapeld woonplezier
25 januari 2017
Meer hoogbouw in Wijnhavenkwartier Rotterdam
23 januari 2017
2016: woningbouw kent veel ambities
23 december 2016
Nieuwe woontoren aan Wijnhaven Rotterdam
8 juni 2016
Overeenkomst voor woontoren UP:TOWN
5 januari 2016
Woontoren 100hoog Rotterdam opgeleverd
14 januari 2014
Markante nieuwe toren voor Wijnhavenkwartier
11 juni 2010
Woontoren The Red Apple opgeleverd
8 juni 2009
Juffertoren topper op snel verdichtend Wijnhaveneiland
24 januari 2006
Toon alles
Gerelateerde podcasts
Toren van Babel
Gesprek met Caro van de Venne over hoogbouw en de openbare ruimte
8 april 2021
Toren van Babel
Gesprek met Erik Faber over stedelijke verdichting door hoogbouw
14 oktober 2021
Andere nieuwsberichten
Architect Cees Dam op 93-jarige leeftijd overleden
Gisteren, 14:35
De oprichter van Dam & Partners architecten ontwierp onder meer de Stopera in Amsterdam (samen met Wilhelm Holzbauer), het stadhuis van Almere en het Huis van de Toekomst in Rosmalen.
Powerhouse Company wint aanbesteding voor verbouwing Vista College Maastricht
Gisteren, 12:16
Het onderkomen van de mbo-school wordt gerenoveerd en uitgebreid met een houten gebouwdeel, dat onder meer de nieuwe hoofdentree en twee atria bevat. Ook moet de nieuwbouw de bestaande gebouwen beter met elkaar verbinden.
Stedelijk Museum organiseert tentoonstelling over ontwerper Kho Liang Ie
Gisteren, 10:52
Met zijn ontwerpen voor meubels en interieurs van de jaren vijftig tot zijn dood halverwege de jaren zeventig nam Kho een centrale positie in binnen de Nederlandse vormgeving. Vermaard is onder meer zijn inrichting van luchthaven Schiphol.
Restauratie Atlasbeeld op dak Koninklijk Paleis Amsterdam afgerond
10 april, 3:38
Het beeld op het fronton van het paleis was in juli van zijn plek gehaald voor een uitgebreide onderhoudsbeurt in Antwerpen.
AFM: funderingsproblemen bij bijna 220.000 woningen
Gisteren, 13:25
De huizen van bijna een half miljoen woningeigenaren hebben een hoog risico op funderingsproblemen of een mogelijke kwetsbare fundering.
Oprichter omgevallen vastgoedconcern Evergrande bekent schuld
Gisteren, 09:17
Evergrande was ooit de grootste projectontwikkelaar van China, maar kwam in de problemen toen het zijn schulden niet kon terugbetalen.
Grote en kleine gemeenten balen van bouwregels Zuid-Holland
10 april, 4:31
Grote en kleine gemeenten in Zuid-Holland hebben hun zorgen geuit over nieuwe regels van de provincie, die volgens hen de woningbouw belemmeren.
Twijfels in Zuid-Holland over halen van doelen landelijk gebied
10 april, 12:18
De meeste partijen in de Zuid-Hollandse politiek hebben twijfels over de plannen die in zestien deelgebieden zijn gemaakt voor de aanpak van het landelijk gebied.
Huurprijzen stijgen harder dan koopwoningprijzen
10 april, 9:31
Volgens Huurwoningen.nl en Pararius moesten nieuwe huurders in het eerste kwartaal gemiddeld 21,12 euro per vierkante meter per maand neerleggen.
ABN AMRO: investeringen defensie vergroten druk op bouwcapaciteit
9 april, 12:29
Kazernes, opslagplaatsen en oefenterreinen dingen om dezelfde aannemers, ingenieurs en installateurs die ook nodig zijn voor bijvoorbeeld woningbouw.
Ga naar het nieuws-archief
Ronnie Weessies
Redacteur
2
0
0
0
Voor een optimale gebruikservaring plaatst Architectenweb functionele cookies. Wat de verschillende cookies precies doen leggen we uit in een
overzicht
. Cookies van social media kun je optioneel
aanzetten
.
Akkoord
Instellingen
Annuleren
OK
Sluiten
Doorgaan
Inloggen
Maak een gratis persoonlijk account aan
Feedback
Feedback
Wij horen graag jouw feedback. Laat je reactie achter en eventueel jouw e-mail adres.
Reactie
Verstuur