Projecten
Producten
Bedrijven
Vacatures
Agenda
Awards
Podcasts
more_horiz
Videos
Magazine
Thema's
Favorieten
Profiel
Uitloggen
Copyright: Jure Zivkovic
Copyright: Jure Zivkovic
Copyright: Jure Zivkovic
Copyright: Jure Zivkovic
Copyright: Jure Zivkovic
Copyright: Jure Zivkovic
Copyright: Jure Zivkovic
Copyright: Jure Zivkovic
Copyright: Jure Zivkovic
Copyright: Jure Zivkovic
Copyright: Jure Zivkovic
Copyright: Jure Zivkovic
Copyright: Jure Zivkovic
Copyright: Jure Zivkovic
Copyright: Jure Zivkovic
Copyright: Jure Zivkovic
Copyright: Jure Zivkovic
Copyright: Jure Zivkovic
Copyright: Jure Zivkovic
Copyright: Jure Zivkovic
Copyright: Jure Zivkovic
Copyright: Jure Zivkovic
Copyright: 3LHD
Copyright: 3LHD
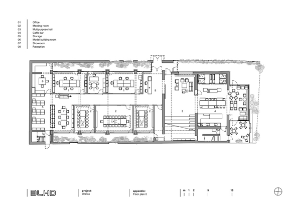
Begane grond
Copyright: 3LHD
Eerste verdieping
Copyright: 3LHD
Tweede verdieping
Copyright: 3LHD
Multifunctionele zaal indeling 1
Copyright: 3LHD
Multifunctionele zaal indeling 2
Copyright: 3LHD
Dwarsdoorsnede nieuw
Copyright: 3LHD
Dwarsdoorsnede oud
Copyright: 3LHD
Langsdoorsnede nieuw
Copyright: 3LHD
Langsdoorsnede oud
Copyright: 3LHD
Situatie
Copyright: 3LHD
Gebruikers
Copyright: 3LHD
Gebruikers
Copyright: 3LHD
Daglichttoetreding
Copyright: 3LHD
Ventilatie
Copyright: 3LHD
Architectenbureau verbouwt cinema tot eigen kantoor
9 april 2020, 14:47
Het Kroatische architectenbureau
3LHD
vond een voormalige buurtbioscoop in Zagreb als potentiƫle nieuwe kantoorruimte. Met behoud van de oorspronkelijke constructie transformeerde het bureau Urania Cinema tot nieuwe studioruimte en plek voor culturele evenementen.
Urania Cinema is een van de vele oude bioscopen in Zagreb, gebouwd in het begin van de 20
e
eeuw. Dergelijke bioscopen lagen verspreid in het centrum, geĆÆntegreerd in de stedelijke blokken. Niet heel anders dan in Nederland, zorgde de opkomst van moderne multiplextheaters voor het geleidelijk sluiten van die buurtbioscopen, waarna de gebouwen in verval raakten.
Opvallende betonconstructie
Het gebouw van Urania Cinema ligt in het midden van een woonblok aan het Kvaternik-plein. Toen 3LHD het plan opvatte om de oude bioscoop een nieuwe bestemming te geven bleek de complete betonnen constructie van het gebouw, stammend uit 1939, nog in goede staat te verkeren. Alle dragende kolommen, de belangrijkste bogen van de grote zaal en de plafonds waren intact.
De plafonds zijn een voorbeeld van de eerste betonconstructies uit die periode met smalle constructieve ribben in de lengterichting. āDat prachtige voorbeeld van vroege betontechniek was het waard om te behouden, te restaureren en te renoverenā, zo geeft het architectuurbureau aan.
Grote zaal
Het gebouw bood een goede basis voor de transformatie tot nieuw kantoor voor 3LHD en een publieke ruimte. Bij de verbouwing heeft het bureau drie van de vier oorspronkelijke bouwvolumes behouden: de entreehal met drie verdiepingen en het kantoorgebouw, de grote lobby en de spectaculaire bioscoopzaal met dubbele hoogte.
De voormalige bioscoopzaal bestaat uit een 9 meter hoog centraal volume en twee 3 meter hoge zijbeuken, legt 3LHD uit. Deze ruimte zonder toetreding van daglicht wilde het bureau omvormen tot een functionele werkruimte.
Tijdens de verbouwing is het centrale volume verdeeld in twee verdiepingen. De voormalige zijbeuken heeft het architectenbureau aan de bovenzijde geopend en tot een soort tuinen gemaakt, wat voor daglicht op de begane grond zorgt. Op de (nieuwe) eerste verdieping valt daglicht via 3 meter brede dakramen die over de gehele lengte van de hal zijn aangebracht.
Materialen
Het grootste deel van de oorspronkelijke constructieve materialen heeft 3LHD behouden, van de originele baksteenmuren en het pleisterwerk tot de betonnen vloeren en plafonds. Voor de nieuwe toevoegingen hebben de architecten zich beperkt tot drie materialen: eiken voor vloeren , dennenfineer en ruw staal voor gevelbekleding en interieurafwerking.
Naast kantoorruimte voor het architectenbureau biedt het vernieuwde Urania verschillende openbare ruimten voor culturele evenementen. Er is een multifunctionele zaal, voorzien van multimedia en stands, met aangrenzend een cafƩ met een patio en een dakterras. Het glazen paviljoen is het enige nieuw toegevoegde volume.
Publieke functie
Met de transformatie van Urania heeft 3LHD ook iets aan de buurt willen toevoegen; het project integreert nieuwe culturele ruimten voor de lokale gemeenschap in het bestaande historische weefsel. āHet wordt een plek van samenkomst en openbare activiteiten, zoals educatieve workshops, presentaties, tentoonstellingen, concerten, vertoningen en dergelijkeā, aldus 3LHD.
Trefwoorden
kroatië
3lhd
transformatie
kantoorruimte
architectenbureau
zagreb
bioscoop
cinema
publiek gebouw
Locatie
Best gelezen
1
Finalisten presenteren ontwerp voor Shift Landmark in Rotterdam
woensdag, 4 maart
2
Nieuwe Hittekaart Woningmarkt 2026 van BPD toont aanhoudende woningdruk
dinsdag, 3 maart
3
Strijp-S krijgt woonbuurtje met karakteristieken voormalig Philips-terrein
maandag, 2 maart
4
Architect Oliver Thill op 55-jarige leeftijd overleden
donderdag, 5 maart
5
Melkmeisje staat model voor woontoren De Catharina in Zaandam
vrijdag, 27 februari
Gerelateerde nieuwsberichten
HofmanDujardin transformeert loods tot eigen Office Villa
25 juni 2019
B-architecten breidt werkruimte uit met historische bioscoop
7 januari 2025
Brouwerij Eylenbosch krijgt herbestemming naar ontwerp OSK-AR
9 april 2020
De Zwarte Hond transformeert textielfabriek naar scholencampus
7 april 2020
Nieuw onderkomen voor Zijdekwartier architecten
9 februari 2023
Binst Architects en Snøhetta winnen transformatieproject in centrum Brussel
24 maart 2020
Nieuwe ruimten Universiteit Maastricht in getransformeerde kazerne
19 maart 2020
Bibliotheek Neude is een publiek interieur voor Utrecht
11 maart 2020
Nieuwe huisvesting IAA Architecten in herbestemde Melkhal
15 augustus 2023
Oude kunstmestloods herbestemd tot Zeeuws Veilinghuis
4 maart 2020
Haags architectenbureau verwezenlijkt eigen Bureau Kroner Paviljoen
3 september 2024
JDWA realiseert modern kantoor in fabriekscomplex aan de Maas
11 juni 2020
Voormalig Betonson-terrein in Arkel wordt groen woongebied
20 februari 2020
Transformatie Meterhuiscomplex Haarlem van start
24 januari 2020
Hellingbaan verbindend element in getransformeerde Citroëngarage Noord
22 januari 2020
Bouw nieuw filmtheater in Utrechtse binnenstad gestart
9 februari 2021
Werkspoorfabriek biedt flexibele ruimte voor maakindustrie
14 januari 2020
Hernieuwde glorie voor herbestemd Citroëngebouw Zuid
9 januari 2020
Ana Rocha en HP Architecten ontwerpen herbestemming bankgebouw
7 januari 2020
Kloostercomplex Theodorahof in Zwolle getransformeerd door SACON architecten
16 december 2019
DomusDela in voormalig klooster Mariënhage geopend
25 november 2019
Pesthuiscomplex wordt ontmoetingsplek voor heel Leiden
4 november 2019
Tinfabriek Naarden verbouwd tot autoshowroom en ontmoetingsplek
21 oktober 2019
Kantoor van PUUR geïnspireerd op Arsenale en soberheid
19 oktober 2021
Nieuw kantoor voor De Zwarte Hond Rotterdam
20 oktober 2021
HofmanDujardin transformeert loods tot eigen Office Villa
25 juni 2019
B-architecten breidt werkruimte uit met historische bioscoop
7 januari 2025
Brouwerij Eylenbosch krijgt herbestemming naar ontwerp OSK-AR
9 april 2020
De Zwarte Hond transformeert textielfabriek naar scholencampus
7 april 2020
Nieuw onderkomen voor Zijdekwartier architecten
9 februari 2023
Binst Architects en Snøhetta winnen transformatieproject in centrum Brussel
24 maart 2020
Nieuwe ruimten Universiteit Maastricht in getransformeerde kazerne
19 maart 2020
Bibliotheek Neude is een publiek interieur voor Utrecht
11 maart 2020
Nieuwe huisvesting IAA Architecten in herbestemde Melkhal
15 augustus 2023
Oude kunstmestloods herbestemd tot Zeeuws Veilinghuis
4 maart 2020
Haags architectenbureau verwezenlijkt eigen Bureau Kroner Paviljoen
3 september 2024
JDWA realiseert modern kantoor in fabriekscomplex aan de Maas
11 juni 2020
Voormalig Betonson-terrein in Arkel wordt groen woongebied
20 februari 2020
Transformatie Meterhuiscomplex Haarlem van start
24 januari 2020
Hellingbaan verbindend element in getransformeerde Citroëngarage Noord
22 januari 2020
Bouw nieuw filmtheater in Utrechtse binnenstad gestart
9 februari 2021
Werkspoorfabriek biedt flexibele ruimte voor maakindustrie
14 januari 2020
Hernieuwde glorie voor herbestemd Citroëngebouw Zuid
9 januari 2020
Ana Rocha en HP Architecten ontwerpen herbestemming bankgebouw
7 januari 2020
Kloostercomplex Theodorahof in Zwolle getransformeerd door SACON architecten
16 december 2019
DomusDela in voormalig klooster Mariënhage geopend
25 november 2019
Pesthuiscomplex wordt ontmoetingsplek voor heel Leiden
4 november 2019
Tinfabriek Naarden verbouwd tot autoshowroom en ontmoetingsplek
21 oktober 2019
Kantoor van PUUR geïnspireerd op Arsenale en soberheid
19 oktober 2021
Nieuw kantoor voor De Zwarte Hond Rotterdam
20 oktober 2021
Toon alles
Andere nieuwsberichten
Architect Oliver Thill op 55-jarige leeftijd overleden
Vandaag, 14:27
Afgelopen maandag is op 55-jarige leeftijd architect Oliver Thill overleden. Het door hem en André Kempe opgerichte Atelier Kempe Thill behoort tot de meest gewaardeerde Nederlandse architectenbureaus van de afgelopen 25 jaar.
HvdHA ontwerpt twee woonblokken in Utrecht Terwijde volgens typologie van woonpalazzo
Vandaag, 10:49
In Utrecht Terwijde worden twee woonblokken met 161 sociale huurwoningen naar ontwerp van Hans van der Heijden Architecten gerealiseerd. De gebouwen worden ontworpen volgens de typologie van een āwoonpalazzoā.
Sweco neemt Belgische activiteiten Conix RDBM Architects over
Gisteren, 16:31
Sweco voegt opnieuw een grote vis toe aan zijn vijver van overgenomen architectenbureaus. Vanaf 30 april zet Conix RDBM Architects zijn Belgische activiteiten voort onder de naam Sweco Architects.
VAi schijnt licht op feministische vrouwenwerkgroep uit de jaren tachtig
Gisteren, 15:47
In de jaren 1980 ging de Vlaamse Werkgroep Vrouwen en Wonen de strijd aan met het heersende patriarchale woon- en maatschappijmodel. Het Vlaams Architectuurinstituut organiseert een tentoonstelling over deze wegbereiders en hun boodschap.
Hardt Hyperloop failliet verklaard door rechtbank
Vandaag, 11:37
Het Rotterdamse bedrijf was bezig met de ontwikkeling van technologie om mensen op hoge snelheid via capsules door een vacuümbuis te vervoeren.
Onderzoek: zeespiegel kustgebieden hoger dan in studies aangenomen
Vandaag, 09:13
De zeespiegel aan de kust is in grote delen van de wereld waarschijnlijk hoger dan in veel wetenschappelijke studies wordt aangenomen.
Gelderland geeft voorrang aan vergunningen met minder stikstof
Gisteren, 12:24
De plannen zijn onderdeel van het pakket maatregelen dat het Gelderse bestuur wil nemen om de vergunningverlening voor zaken als de woningbouw weer op gang te krijgen.
Amsterdam bouwde opnieuw minder woningen dan de bedoeling is
Gisteren, 10:56
Wethouder Steven van Weyenberg spreekt van een āsprong in de aantallenā, omdat er in 2025 beduidend meer huizen bijkwamen dan de jaren daarvoor.
Rijksvastgoedbedrijf zet eerste deelgebied nieuwe wijk Valkenhorst in Katwijk te koop
3 maart, 3:26
Op deze locatie mogen de eerste 450 van de in totaal 5.600 woningen worden gebouwd.
Verkoopgolf van woningen door investeerders zet door
2 maart, 2:57
Investeerders hebben in het vierde kwartaal van vorig jaar de meeste woningen verkocht sinds 2021, meldt het Kadaster.
Ga naar het nieuws-archief
Robert Muis
Redacteur
1
0
0
0
Voor een optimale gebruikservaring plaatst Architectenweb functionele cookies. Wat de verschillende cookies precies doen leggen we uit in een
overzicht
. Cookies van social media kun je optioneel
aanzetten
.
Akkoord
Instellingen
Annuleren
OK
Sluiten
Doorgaan
Inloggen
Maak een gratis persoonlijk account aan
Feedback
Feedback
Wij horen graag jouw feedback. Laat je reactie achter en eventueel jouw e-mail adres.
Reactie
Verstuur