Projecten
Producten
Bedrijven
Vacatures
Agenda
Awards
Podcasts
more_horiz
Videos
Magazine
Favorieten
Profiel
Uitloggen
Abonneer je nu op onze nieuwsbrieven!
Abonneren
Nee, bedankt
Ja, denk met me mee rond de
materialisering van mijn project
De gevel van de nieuwbouw aan de Oudegracht
Copyright: Kees Hummel
De vergrote openingen aan weerszijden van de centrale hal
Copyright: Kees Hummel
Vaste collectie, verticale circulatie en vergrote doorgangen naar de omloop eerste verdieping Vaste collectie met verticale circulatie en tribune, rechts het kunstwerk van Jop Vissers Vorstenbosch
Copyright: Kees Hummel
Vaste collectie, verticale circulatie en vergrote doorgangen naar de omloop eerste verdieping
Copyright: Kees Hummel
De vergrote openingen naar de omloop op de verdiepingen
Copyright: Kees Hummel
Kinderafdeling met verdiepte voorleesruimte, entresol met atelier en boekenhuis van Frank Halmans
Copyright: Kees Hummel
Nijntje op de kinderafdeling en het zicht op De Neude
Copyright: Kees Hummel
Oude spanten en vensters naar de centrale hal
Copyright: Kees Hummel
Oude spanten en vensters naar de centrale hal
Copyright: Kees Hummel
Werkplekken met uitzicht langs de gevel en in hoogte oplopende boekenkasten haaks op de gevel
Copyright: Kees Hummel
Het lager gelegen deel met studeertafels in het Stadsstudiehuis
Copyright: Kees Hummel
Het Stadsstudiehuis met nieuwe dakramen, door de verschillende vloerniveaus’s onstaat er zicht naar De Neude
Copyright: Kees Hummel
De jongerenafdeling in de kap
Copyright: Kees Hummel
Het auditorium in de nieuwbouw
Copyright: Kees Hummel
Doorsnede
Copyright: Rijnboutt, Zecc Architecten
Doorsnede
Copyright: Rijnboutt, Zecc Architecten
Souterrain
Copyright: Rijnboutt, Zecc Architecten
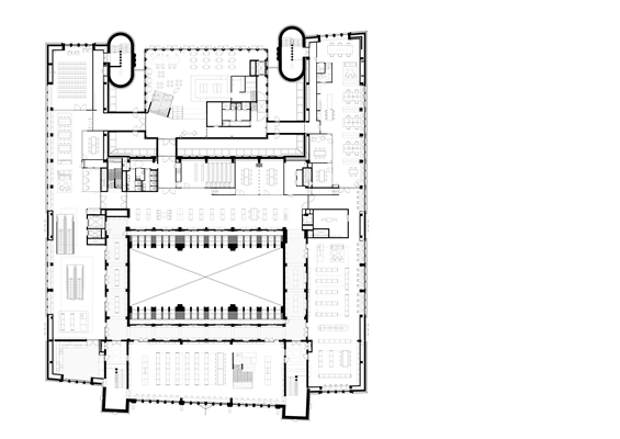
Begane grond
Copyright: Rijnboutt, Zecc Architecten
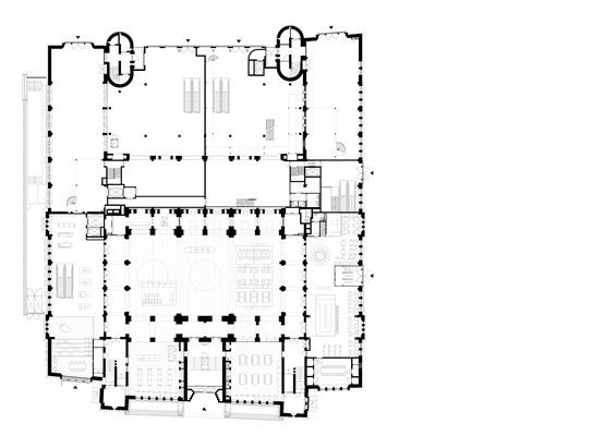
Eerste verdieping
Copyright: Rijnboutt, Zecc Architecten
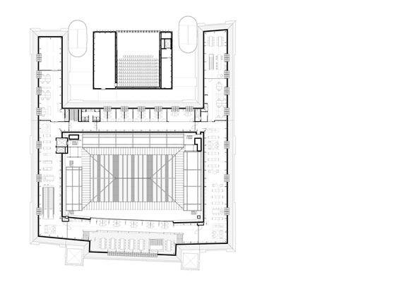
Tweede verdieping
Copyright: Rijnboutt, Zecc Architecten
Derde verdieping
Copyright: Rijnboutt, Zecc Architecten
Historische foto 1926
Copyright: Het Utrechts Archief
Historische foto 1927
Copyright: Het Utrechts Archief
Historische foto 1930
Copyright: Het Utrechts Archief
Historische foto interieur
Copyright: Het Utrechts Archief
Bibliotheek Neude is een publiek interieur voor Utrecht
11 maart 2020, 16:07
Met de opening van Bibliotheek Neude, aanstaande vrijdag 13 maart, krijgen Utrecht en haar inwoners een publiek gebouw terug. Na de herbestemming en uitbreiding van het voormalige hoofdpostkantoor is het gebouw zelfs meer publiek en verbonden met de stad dan voorheen.
“Het is van zichzelf al een prachtig gebouw, met de mooiste centrale hal van Utrecht”, zegt Bart Kellerhuis van
Zecc Architecten
. “Maar voor het publiek was de hal ook het enige bekende deel van het gebouw.” Waarvan de meeste mensen zich nauwelijks bewust waren, was dat rond de imposante hal met het parabolisch plafond, glas-in-lood, geglazuurde gele stenen en grote ornamenten, nog eens zo’n 8.000 m
2
bedrijfsvloer strekte. “Dat fascineert. Zo veel verborgen ruimte midden in de stad.”
Vijf jaar is gewerkt aan de verbouwing van het voormalige postkantoor tot nieuw onderkomen van de bibliotheek. Architectenbureau
Rijnboutt
droeg zorg voor de herbestemming van het pand en de uitbreiding van het casco. Zecc is verantwoordelijk voor het interieurontwerp en de inrichting. Een deel van de opgave was om, nu het pand een belangrijke publieke functie zou krijgen, het gebouw te openen en verbinden met de stad.
Van eenzijdig naar open
Tot nu toe was het feitelijk een naar binnen gekeerd gebouw, legt Kellerhuis uit. De hal was het hart van het gebouw waarmee nissen in de rondgangen in verbinding staan. Daarnaast ligt het gebouw prominent in het historisch centrum, tussen de Neude en de Oudegracht, maar was het gebouw alleen open naar het plein. Joseph Crouwel ontwierp het gebouw met de publieke zijde aan het plein en de expeditie aan de grachtzijde.
Dat is deels verklaarbaar vanuit het stedenbouwkundig plan van destijds. Toen in 1918 de bouw van het hoofdpostkantoor startte voorzag het plan van Berlage in een verminderd belang voor de Oudegracht, ten faveure van de Potterstraat als belangrijke verkeersader met daaraan de Neude als stadsplein. Het postkantoor kreeg een monumentale entree en publieke hal aan het plein, de tegenoverliggende zijde de logistieke zone.
De Oudegracht heeft zich in de loop der decennia ontwikkeld tot belangrijke winkelroute, Toen in 2015 de eerste plannen werden ontwikkeld voor huisvesting van de bibliotheek was de opdracht van
a.s.r. real estate
helder: zorg dat het monument actief meedoet in het stedelijk weefsel van Utrecht. De bibliotheek als nieuwe gebruiker had bovendien behoefte aan een stadsstudiezaal, een brasserie en een auditorium .
Nieuw gebouwdeel
Om het bibliotheekprogramma, plus de gewenste winkelruimte, in te passen heeft Rijnboutt een bouwvolume toegevoegd op de plek van het voormalige expeditiehof, ingebed tussen de twee vleugels van het oude postkantoor. Daarmee heeft het architectenbureau meteen een extra ‘voorzijde’ aan de kant van de Oudegracht kunnen realiseren.
Het toegevoegde volume gaat zo’n 5.400 m
2
ruimte bieden aan een foodmarket en winkels. Vanaf de tweede verdieping biedt het gebouwdeel ruimte aan de bibliotheek, met een brasserie en een auditorium.
Toolbox
De nieuwbouw sluit, zowel in het interieur als aan de buitenzijde, vlekkeloos aan op de bestaande architectuur. Frederik Vermeesch van Rijnboutt legt uit dat het architectenbureau het bestaande gebouw heeft geanalyseerd op volumeopbouw, horizontale en verticale lijnen, open-dichtverhoudingen, en dergelijke.
“Daaruit is een toolbox voor de nieuwbouw samengesteld. Zo konden we de nieuwbouw eigenheid geven, die tegelijkertijd voldoende verwantschap toont met het bestaande. Reliëf, ornamentiek en de geglazuurde pannen van de enorme kappen van de oudbouw zijn bijvoorbeeld vertaald naar eigentijdse gevelelementen, waarvoor we met Koninklijke Tichelaar een nieuw glazuur hebben ontwikkeld.”
Doorbraken en doorzicht
Aan de zijde van het plein verwelkomt de hal, 450 m
2
groot, de bezoekers met open armen. De ruimte is ingericht met los meubilair voor leestafels en zitjes. In de nissen zijn de kranten en tijdschriften ondergebracht. Aan de kopse kanten van de hal heeft Zecc in de bogen boven de deuren – drie aan elke zijde – grote ramen aangebracht. Daardoor valt licht tot in het hart van het gebouw, terwijl ook de aandacht naar de naastgelegen ruimten wordt geleid.
Aan de noordelijke zijde ligt achter de deuren een nieuw café-restaurant, dat bovendien ook een eigen entree vanaf de Potterstraat heeft gekregen. Aan de zuidzijde zijn doorbraken gemaakt voor een verticale ontsluiting via roltrappen tot aan de zolderverdieping. Op de begane grond is hier bovendien een presentatieruimte met houten tribunetrap gerealiseerd. Doorbraken tussen ruimten aan de centrale hal zorgen ervoor dat bij evenementen in de hal het publiek vanuit de hoofdentree toch de roltrappen kan bereiken.
De hal is vanaf elke verdieping te ervaren. “De inherente kwaliteit van het gebouw is behouden”, legt Kellerhuis uit. “We hebben de heldere opzet van de plattegronden aangehouden, zelfs versterkt; we hebben de oriëntatie benut.” Door brede doorgangen te maken in de hoeken van de kamers – nu leeszalen – die rond de hal liggen zijn er zichtrelaties en een vanzelfsprekende omloop gecreëerd, met behoud van het karakter van de ruimten.
Zicht op de binnenstad
Op de tweede verdieping is, naar een idee van Zecc, een servicebalie bij wijze van tweede ontvangst gerealiseerd. Op deze verdieping bestrijkt de bibliotheek het volledige perceeloppervlak; vanuit de oudbouw kunnen de bezoekers de brasserie in het toegevoegde volume bereiken. Ook zijn hier de trappen naar het auditorium.
Via de grote ramen ziet het publiek achter het podium het historische stadscentrum. Dankzij verduisterende gordijnen en een uitrolbaar doek kan de ruimte ook dienst doen als filmzaal. “Het is een doos-in-doosconstructie, dus we kunnen hier aardig wat kabaal maken”, merkt bibliotheekdirecteur Ton van Vlimmeren op.
Vanuit de brasserie heeft de bezoeker eveneens zicht op de stad en het winkelend publiek langs de Oudegracht. Via zijramen staat het publiek nu ook oog in oog met ornamenten, hoog aan de bestaande buitengevel geplaatst, en de monumentale trappenhuizen in de vleugels van de oudbouw. De trappenhuizen zijn overigens nog steeds in gebruik.
Aanhaken met interieur
Tijdens het strippen van het gebouw werd de afwerking van de kap zichtbaar, vertellen de architecten. De houten spanten zijn in het zicht gelaten en vormen nu sfeermakers op de ‘zolder’, die een volwaardig onderdeel van de bibliotheek vormt. In de daken zijn grote vensters gemaakt, voor toetreding van licht en een blik op bijvoorbeeld de Domtoren.
Met de inrichting heeft Zecc willen aanhaken op het gegeven gebouw. Zo zijn de bestaande lambriseringen gebruikt om mede de hoogte van schilderwerk en kasten te bepalen en een menselijke maat te behouden. Kasten zijn veelal haaks op de ramen geplaatst en laag gehouden om daglicht diep in het interieur te laten vallen en het zicht naar buiten niet te belemmeren.
Het architectenbureau heeft ook gereageerd op het verdwijnen van de ornamentering in het gebouw naar boven toe. Zo wordt de kleur van de houten boekenkasten lichter naarmate je hoger in het gebouw komt. Het losse meubilair heeft steeds een modern-klassieke vormgeving om de rust in het gebouw te bandrukken. Lijnverlichting is een subtiele toevoeging die het zicht op de historische omgeving niet beneemt.
Kennis maken
De bibliotheek heeft het interieur verder van een aantal accenten willen voorzien. Er zijn bijvoorbeeld ‘specials’ gemaakt door Sure, zoals meubels waaraan bezoekers kunnen lezen of werken, terwijl ze hun laptop of telefoon al pedalerend van stroom voorzien. Ook wil de bibliotheek permanente kunst aan het gebouw toevoegen; uit een eerste opdracht zijn er al
vier werken gerealiseerd
, binnenkort komt de vijfde. Daar zal het niet bij blijven, zegt directeur Van Vlimmeren.
Immers, legt hij uit, naast een plek om boeken te lenen en lezen, moet de Bibliotheek Neude – zoals elke eigentijdse bibliotheek - ook een plek zijn waar mensen samen komen om ‘kennis te maken’. In deze hoofdbibliotheek van Utrecht kan dat via films, workshops, debatten, kunst en cultuur en ontmoeting. Rijnboutt en Zecc hebben daarvoor circa 9.100 m
2
publieke ruimte gecreëerd.
Trefwoorden
a.s.r. real estate
post utrecht
neude
zecc architecten
bibliotheek
utrecht
rijnboutt
transformatie
a.s.r.
interieur
bibliotheek neude
Locatie
Best gelezen
1
Woontoren Front door Monadnock wint tiende Architectuurprijs Nijmegen
donderdag, 9 april
2
SeARCH en Heutink Groep winnen tender voor woongebouw Sluisbuurt
vrijdag, 10 april
3
Architect Cees Dam op 93-jarige leeftijd overleden
dinsdag, 14 april
4
Powerhouse Company wint aanbesteding voor verbouwing Vista College Maastricht
dinsdag, 14 april
5
Padelhal vormt nieuwe kop van sportcomplex in Bussum
donderdag, 9 april
Gerelateerde nieuwsberichten
Nominaties Utrechtse Rietveldprijs 2022 bekend
23 augustus 2022
Bibliotheek Neude krijgt vijf permanente kunstwerken
13 januari 2020
Karianne Vandenbroucke en Marleen van Driel nieuwe associates Rijnboutt
19 april 2021
Zecc
30 augustus 2020
Zecc gaat bibliotheek Neude inrichten
25 september 2015
Bieb Utrecht komt in postkantoor Neude
29 juni 2015
Brouwerij Eylenbosch krijgt herbestemming naar ontwerp OSK-AR
9 april 2020
Winkels en hotel in postkantoor Neude
10 maart 2009
Werkspoorfabriek biedt flexibele ruimte voor maakindustrie
14 januari 2020
Oostvleugel gesloopt voor toekomstig POST Rotterdam
16 mei 2022
Woongebouw als 'bergdorp' op parkeergarage Amstelveen
25 november 2020
Architectenbureau verbouwt cinema tot eigen kantoor
9 april 2020
Hellingbaan verbindend element in getransformeerde Citroëngarage Noord
22 januari 2020
Saluut aan oorspronkelijke gevel bij verbouwd winkelpand
27 november 2019
Oudste textielfabriek Tilburg wordt Duveldorp
2 juni 2021
Blok met 178 sociale huurwoningen voor Leidsche Rijn Centrum
19 juli 2019
Parkeergebouw van Zecc is herkenningspunt voor Leidsche Rijn Centrum
7 januari 2021
Het Eiland van Zecc is robuuste woningbouw aan het water
28 november 2018
Mattijs Rijnboutt neemt afscheid van Rijnboutt
15 mei 2024
Rijnboutt biedt zijn BIM-expertise nu ook apart aan via Boltt
16 oktober 2023
Rietveldprijs 2022 toegekend aan parkontwerp Catharijnesingel
21 november 2022
Kabinet wil een bibliotheek in elke gemeente verplichten
7 november 2022
Video: Stijn Poelstra filmt Post Utrecht
21 juni 2022
Boeken en kunst mengen zich in voormalig gemeentehuis
9 februari 2022
Interieur als wonderland voor kinderbibliotheek Gütersloh door aatvos
1 september 2021
Zecc plaatst witte accenten in het Utrechtse Rijnvliet
30 augustus 2021
Nominaties NRP Gulden Feniks 2021 bekend
7 juli 2021
Jongenspatronaat Tiel getransformeerd tot woon-zorggebouw
3 juni 2021
Nieuw directieteam en management voor Rijnboutt
28 mei 2021
Utrecht investeert in binnenstad om leegstand weg te werken
9 april 2021
Rijnboutt transformeert verborgen telefooncentrale naar woningen
27 januari 2021
Bart van der Vossen neemt afscheid bij Rijnboutt
25 januari 2021
Zecc uitgeroepen tot Architect van het Jaar 2020
28 oktober 2020
Arbeiderswoning met stalen gezicht
14 oktober 2020
Zecc – genomineerd voor de Architect van het Jaar-prijs
5 oktober 2020
Gerestaureerd postkantoor in Het Schip heropent in september
17 augustus 2020
Woongebouw De Koningin 'bekroont' Het Kraanbolwerk Zwolle
22 juli 2020
Rijnboutt aan de slag met vernieuwing Lodewijk van Deysselbuurt
3 juni 2020
Breda en Amvest presenteren plannen voor Backer+Rueb-terrein
6 mei 2020
Zecc architecten ontwerpt gemeentehuis Renswoude
24 april 2020
Project Catharinasteeg in Leiden bekroond met internationale prijs
15 april 2019
Nominaties Utrechtse Rietveldprijs 2022 bekend
23 augustus 2022
Bibliotheek Neude krijgt vijf permanente kunstwerken
13 januari 2020
Karianne Vandenbroucke en Marleen van Driel nieuwe associates Rijnboutt
19 april 2021
Zecc
30 augustus 2020
Zecc gaat bibliotheek Neude inrichten
25 september 2015
Bieb Utrecht komt in postkantoor Neude
29 juni 2015
Brouwerij Eylenbosch krijgt herbestemming naar ontwerp OSK-AR
9 april 2020
Winkels en hotel in postkantoor Neude
10 maart 2009
Werkspoorfabriek biedt flexibele ruimte voor maakindustrie
14 januari 2020
Oostvleugel gesloopt voor toekomstig POST Rotterdam
16 mei 2022
Woongebouw als 'bergdorp' op parkeergarage Amstelveen
25 november 2020
Architectenbureau verbouwt cinema tot eigen kantoor
9 april 2020
Hellingbaan verbindend element in getransformeerde Citroëngarage Noord
22 januari 2020
Saluut aan oorspronkelijke gevel bij verbouwd winkelpand
27 november 2019
Oudste textielfabriek Tilburg wordt Duveldorp
2 juni 2021
Blok met 178 sociale huurwoningen voor Leidsche Rijn Centrum
19 juli 2019
Parkeergebouw van Zecc is herkenningspunt voor Leidsche Rijn Centrum
7 januari 2021
Het Eiland van Zecc is robuuste woningbouw aan het water
28 november 2018
Mattijs Rijnboutt neemt afscheid van Rijnboutt
15 mei 2024
Rijnboutt biedt zijn BIM-expertise nu ook apart aan via Boltt
16 oktober 2023
Rietveldprijs 2022 toegekend aan parkontwerp Catharijnesingel
21 november 2022
Kabinet wil een bibliotheek in elke gemeente verplichten
7 november 2022
Video: Stijn Poelstra filmt Post Utrecht
21 juni 2022
Boeken en kunst mengen zich in voormalig gemeentehuis
9 februari 2022
Interieur als wonderland voor kinderbibliotheek Gütersloh door aatvos
1 september 2021
Zecc plaatst witte accenten in het Utrechtse Rijnvliet
30 augustus 2021
Nominaties NRP Gulden Feniks 2021 bekend
7 juli 2021
Jongenspatronaat Tiel getransformeerd tot woon-zorggebouw
3 juni 2021
Nieuw directieteam en management voor Rijnboutt
28 mei 2021
Utrecht investeert in binnenstad om leegstand weg te werken
9 april 2021
Rijnboutt transformeert verborgen telefooncentrale naar woningen
27 januari 2021
Bart van der Vossen neemt afscheid bij Rijnboutt
25 januari 2021
Zecc uitgeroepen tot Architect van het Jaar 2020
28 oktober 2020
Arbeiderswoning met stalen gezicht
14 oktober 2020
Zecc – genomineerd voor de Architect van het Jaar-prijs
5 oktober 2020
Gerestaureerd postkantoor in Het Schip heropent in september
17 augustus 2020
Woongebouw De Koningin 'bekroont' Het Kraanbolwerk Zwolle
22 juli 2020
Rijnboutt aan de slag met vernieuwing Lodewijk van Deysselbuurt
3 juni 2020
Breda en Amvest presenteren plannen voor Backer+Rueb-terrein
6 mei 2020
Zecc architecten ontwerpt gemeentehuis Renswoude
24 april 2020
Project Catharinasteeg in Leiden bekroond met internationale prijs
15 april 2019
Toon alles
Gerelateerde podcasts
Gesprek met Frederik Vermeesch over ontwerpen vanuit de context
3 september 2021
Gerelateerde video's
Zecc
Nominatie voor de prijs voor Architect van het Jaar 2020
Andere nieuwsberichten
Woontoren Front vervult meerdere rollen in Hart van de Waalsprong
Gisteren, 16:31
Vorige week werd de door Mondadnock ontworpen woontoren Front onderscheiden met de Architectuurprijs Nijmegen. Het achthoekige gebouw in Lent markeert het centrum van de stadsuitbreiding Hart van de Waalsprong.
Bijzonder erfgoed Fundatie van Renswoude Utrecht gered
Gisteren, 15:29
Hendrick de Keyser Monumenten heeft de Fundatie van Renswoude in Utrecht, een bijzonder goed bewaard ensemble uit de 18e eeuw, verworven. Hiermee blijven gebouw, historisch interieur en collectie als een geheel behouden.
Studioninedots – Albert Herder vertrekt, Wouter Hermanns en Stijn de Jongh treden toe
Gisteren, 14:51
De medeoprichter en partner van het bureau gaat verder als zelfstandig adviseur en supervisor. Wouter Hermanns en Stijn de Jongh zijn juist tot partner benoemd bij Studioninedots.
BURA, LOLA en Goudappel maken plan voor vernieuwing stationsgebied Haarlem
Gisteren, 12:11
De bureaus mogen onder meer een het busstation en de openbare ruimte herinrichten, de mogelijkheden voor fietsparkeren uitbreiden en een plan maken voor de sloop en nieuwbouw van het Beresteyncomplex tegenover het station.
ING: optoppen en splitsen van woningen steeds minder haalbaar
Gisteren, 13:22
Het kabinet-Jetten gaat naar verwachting het doel van 15.000 extra woningen per jaar uit verbouwingen niet halen, stelt ING.
Geen rechtszaak over subsidie ministerie aan Van Gogh Museum
Gisteren, 10:02
De zaak draait om geld dat het museum nodig zegt te hebben voor een renovatie.
AFM: funderingsproblemen bij bijna 220.000 woningen
14 april, 1:25
De huizen van bijna een half miljoen woningeigenaren hebben een hoog risico op funderingsproblemen of een mogelijke kwetsbare fundering.
Oprichter omgevallen vastgoedconcern Evergrande bekent schuld
14 april, 9:17
Evergrande was ooit de grootste projectontwikkelaar van China, maar kwam in de problemen toen het zijn schulden niet kon terugbetalen.
Grote en kleine gemeenten balen van bouwregels Zuid-Holland
10 april, 4:31
Grote en kleine gemeenten in Zuid-Holland hebben hun zorgen geuit over nieuwe regels van de provincie, die volgens hen de woningbouw belemmeren.
Twijfels in Zuid-Holland over halen van doelen landelijk gebied
10 april, 12:18
De meeste partijen in de Zuid-Hollandse politiek hebben twijfels over de plannen die in zestien deelgebieden zijn gemaakt voor de aanpak van het landelijk gebied.
Ga naar het nieuws-archief
Robert Muis
Redacteur
1
0
0
0
Voor een optimale gebruikservaring plaatst Architectenweb functionele cookies. Wat de verschillende cookies precies doen leggen we uit in een
overzicht
. Cookies van social media kun je optioneel
aanzetten
.
Akkoord
Instellingen
Annuleren
OK
Sluiten
Doorgaan
Inloggen
Maak een gratis persoonlijk account aan
Feedback
Feedback
Wij horen graag jouw feedback. Laat je reactie achter en eventueel jouw e-mail adres.
Reactie
Verstuur