Projecten
Producten
Bedrijven
Vacatures
Agenda
Awards
Podcasts
more_horiz
Videos
Magazine
Thema's
Favorieten
Profiel
Uitloggen
Copyright: Stijnstijl Fotografie
Copyright: Stijnstijl Fotografie
Copyright: Stijnstijl Fotografie
Copyright: Stijnstijl Fotografie
Copyright: Stijnstijl Fotografie
Copyright: Stijnstijl Fotografie
Copyright: Stijnstijl Fotografie
Copyright: Stijnstijl Fotografie
Copyright: Stijnstijl Fotografie
Copyright: Stijnstijl Fotografie
Copyright: Stijnstijl Fotografie
Copyright: Stijnstijl Fotografie
Copyright: Stijnstijl Fotografie
Copyright: Stijnstijl Fotografie
Steel Craft House, doorsnede
Copyright: Zecc Architecten
Steel Craft House, gevel nieuwe situatie
Copyright: Zecc Architecten
Steel Craft House, gevel oude situatie
Copyright: Zecc Architecten
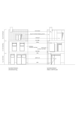
Steel Craft House, karakteristieken gevel
Copyright: Zecc Architecten
Steel Craft House, plattegrond
Copyright: Zecc Architecten
Arbeiderswoning met stalen gezicht
14 oktober 2020, 12:05
Tussen de gemetselde woonhuizen in de Utrechtse wijk Wittevrouwen staat een woning met een Corten-stalen gevel. Het ontwerp van
Zecc
valt op in zijn abstractie en gekozen materiaal, maar sluit verrassend goed aan bij de aangrenzende bebouwing door kleur, compositie en detail.
In een periode van tien jaar is een voormalige garage omgebouwd tot woonhuis, met een interieur dat wordt gedomineerd door hout en een gevel in Corten-staal. Zecc Architecten heeft de gevel ontworpen; de opdrachtgevers hebben zelf met behulp van bevriende vakmensen het gehele project gerealiseerd.
In het gevelontwerp voor het Steel Craft House heeft Zecc de vorm en stijlkenmerken van een arbeiderswoning, zoals er vele in de betreffende straat staan, overgenomen. Het bureau heeft de typerende gevelindeling, de kap met dakkapel en een schoorsteen vertaald in de stalen bekleding.
Ook elementen zoals een plint, spekbanden, rollagen en daklijsten zijn herkenbaar in de plaatverdeling.
Abstractie
De vensters in de nieuwe gevel hebben elk een eigen karakter, inspelend op de functie die er achter ligt, legt het architectenbureau uit. Samen vormen de vensters een abstracte compositie. Op het straatniveau heeft Zecc gekozen voor een terugliggende transparante pui, die er voorheen ook was en bovendien overeenstemt met de buurpanden.
Op de eerste verdieping vormt een uitkragend gesloten vlak een ‘erker’ ter plaatse van de badkamer. Het gesloten vlak zorgt voor privacy, een smalle lichtspleet aan de bovenzijde zorgt voor binnenvallend daglicht. Het tweede vlak op deze verdieping is een, zoals de architecten het omschrijven, ‘mini-loggia’, waarachter zich de woonruimte bevindt.
Achter de harde, soms wat gesloten gevel, bevindt zich een zachte en lichte woning, vertelt Zecc. Het interieur ontvangt daglicht via een patio en verschillende daklichten. Zo is ook de dichte dakkapel aan de bovenzijde voorzien van een lichtkoepel. Een sculpturaal meubel in eikenhout strekt zich over de drie bouwlagen en geeft het interieur vorm.
Staal en metselwerk
Met dit ontwerp onderscheidt de moderne woning zich van de omgeving en voegt zich desalniettemin goed in het straatbeeld. Verrassend is ook hoe het uiterlijk van het staal op het eerste gezicht contrasteert met het metselwerk van de panden in de buurt, maar tegelijkertijd de kleur van het staal en de bakstenen goed aansluiten.
De keuze voor Corten-staal komt ook voort uit de liefde van voor het materiaal. De opdrachtgever van het Steel Craft House is staalkunstenaar en eigenaar van Staalstudio in Utrecht.
Trefwoorden
utrecht
woonhuis
zecc architecten
gevel
corten staal
woningbouw
woning
zelfbouw
zecc
Locatie
Best gelezen
1
Woongebouwen door VdpArchitecten vormen nieuwe 'voorkant' Groningse Oosterparkwijk
vrijdag, 17 oktober
2
Gedetailleerde 3D-geprinte maquette toont ruimtelijke ontwikkeling Amsterdam
vrijdag, 17 oktober
3
Buikslotermeerplein in Amsterdam-Noord krijgt zeventig meter hoge woontoren
woensdag, 22 oktober
4
Nieuw woongebouw op plek befaamde elektronicazaak Rotterdam-Noord
maandag, 20 oktober
5
De Louise van De Zwarte Hond combineert sociale woningbouw met kwaliteit en duurzaamheid
maandag, 20 oktober
Gerelateerde nieuwsberichten
Oudste textielfabriek Tilburg wordt Duveldorp
2 juni 2021
Geen doorsnee rijtjeshuis van derksen|windt architecten
16 november 2020
Open leefruimten achter een zwart houten gevel
17 december 2020
Architecten_Lab ontwerpt expogebouw in industriële context
29 augustus 2023
Parkeergebouw van Zecc is herkenningspunt voor Leidsche Rijn Centrum
7 januari 2021
Exclusieve woning over zes verdiepingen in een watertoren
12 december 2022
Nieuwe woontoren voor Almere Duin naar ontwerp Zecc
26 januari 2023
Zecc – genomineerd voor de Architect van het Jaar-prijs
5 oktober 2020
Woongebouw De Koningin 'bekroont' Het Kraanbolwerk Zwolle
22 juli 2020
Buurtje met 112 woningen op locatie oud tuincentrum Woerden
12 mei 2020
Zecc architecten ontwerpt gemeentehuis Renswoude
24 april 2020
Realisatie eerste deelgebied Wisselspoor van start
21 april 2020
Bibliotheek Neude is een publiek interieur voor Utrecht
11 maart 2020
Werkspoorfabriek biedt flexibele ruimte voor maakindustrie
14 januari 2020
Blok met 178 sociale huurwoningen voor Leidsche Rijn Centrum
19 juli 2019
Het Eiland van Zecc is robuuste woningbouw aan het water
28 november 2018
Parkeergarage met uitstraling van woongebouw
22 juni 2018
Zecc presenteert publieksingang tijdelijke Tweede Kamer
7 juni 2018
Herbestemming van de Polygonale Loods in Tilburg voltooid
12 december 2017
Zecc herstelt verscholen parel in ere
7 december 2017
Zecc presenteert getransformeerde boerderij
14 december 2016
Zecc uitgeroepen tot Architect van het Jaar 2020
28 oktober 2020
Vrijstaande stadswoning van 8A voor gedraaide zelfbouwkavel
7 januari 2021
Jongenspatronaat Tiel getransformeerd tot woon-zorggebouw
3 juni 2021
Zecc plaatst witte accenten in het Utrechtse Rijnvliet
30 augustus 2021
Nationale Watertorenprijs 2022 naar transformatie van Zecc
1 mei 2023
Oudste textielfabriek Tilburg wordt Duveldorp
2 juni 2021
Geen doorsnee rijtjeshuis van derksen|windt architecten
16 november 2020
Open leefruimten achter een zwart houten gevel
17 december 2020
Architecten_Lab ontwerpt expogebouw in industriële context
29 augustus 2023
Parkeergebouw van Zecc is herkenningspunt voor Leidsche Rijn Centrum
7 januari 2021
Exclusieve woning over zes verdiepingen in een watertoren
12 december 2022
Nieuwe woontoren voor Almere Duin naar ontwerp Zecc
26 januari 2023
Zecc – genomineerd voor de Architect van het Jaar-prijs
5 oktober 2020
Woongebouw De Koningin 'bekroont' Het Kraanbolwerk Zwolle
22 juli 2020
Buurtje met 112 woningen op locatie oud tuincentrum Woerden
12 mei 2020
Zecc architecten ontwerpt gemeentehuis Renswoude
24 april 2020
Realisatie eerste deelgebied Wisselspoor van start
21 april 2020
Bibliotheek Neude is een publiek interieur voor Utrecht
11 maart 2020
Werkspoorfabriek biedt flexibele ruimte voor maakindustrie
14 januari 2020
Blok met 178 sociale huurwoningen voor Leidsche Rijn Centrum
19 juli 2019
Het Eiland van Zecc is robuuste woningbouw aan het water
28 november 2018
Parkeergarage met uitstraling van woongebouw
22 juni 2018
Zecc presenteert publieksingang tijdelijke Tweede Kamer
7 juni 2018
Herbestemming van de Polygonale Loods in Tilburg voltooid
12 december 2017
Zecc herstelt verscholen parel in ere
7 december 2017
Zecc presenteert getransformeerde boerderij
14 december 2016
Zecc uitgeroepen tot Architect van het Jaar 2020
28 oktober 2020
Vrijstaande stadswoning van 8A voor gedraaide zelfbouwkavel
7 januari 2021
Jongenspatronaat Tiel getransformeerd tot woon-zorggebouw
3 juni 2021
Zecc plaatst witte accenten in het Utrechtse Rijnvliet
30 augustus 2021
Nationale Watertorenprijs 2022 naar transformatie van Zecc
1 mei 2023
Toon alles
Andere nieuwsberichten
Schimmelstraat Amsterdam loopt niet langer dood dankzij woongebouw voor 55-plussers
4 uur geleden
Aan de Tweede Kostverlorenkade in Amsterdam-West is deze zomer een appartementengebouw voor 55-plussers opgeleverd. Het gebouw met 38 sociale huurwoningen is in opdracht van Rochdale ontworpen door INBO.
Vormingsjaren van het Nieuwe Bouwen centraal in boek
Vandaag, 15:30
Bij uitgeverij Wbooks is een boek verschenen over wat je de vormingsjaren van Het Nieuwe Bouwen kunt noemen. Centraal staat de periode 1910-1940, toen architecen als J.J.P. Oud en jan Duiker op zoek gingen naar een nieuwe architectuur.
Suikerbrug in Veurne voert gebruikers over hellingbanen langs werelderfgoed
Vandaag, 11:56
In het West-Vlaamse Veurne is onlangs de door ZJA Architects & Engineers ontworpen Suikerbrug geopend. De gebruikers fietsen of wandelen er over het kanaal door tussen de boomtoppen en langs Unesco Werelderfgoed.
Buikslotermeerplein in Amsterdam-Noord krijgt zeventig meter hoge woontoren
Vandaag, 10:57
VORM, VMX Architects en Arup hebben een tender gewonnen voor een zeventig hoge woontoren aan het Buikslotermeerplein in Amsterdam-Noord. Hartje Noord bestaat uit 114 woningen van elk zestig vierkante meter, met flexibele plattegronden.
Provincies zetten in op natuurherstel tegen stikstofimpasse
Vandaag, 13:27
In 2030 moet zeventig procent van die natuurgebieden op orde zijn, vijf jaar later moet dat voor negentig procent gelden.
Renovatie Prinsenhof Delft kost negen miljoen meer dan eerder begroot
Vandaag, 09:33
Dat komt onder meer doordat bouwmaterialen en energie duurder zijn geworden en door ‘schaarste aan gespecialiseerd vakmanschap’, meldt de gemeente.
Oproep aan nieuw kabinet: maak topprioriteit van schoon water
Gisteren, 12:26
De Unie van Waterschappen vindt dat het volgende kabinet hiervoor moet zorgen om de Europese doelen voor schoon en gezond water te halen.
Zuid-Holland draagt elf locaties Groene Hart aan voor windturbines
Gisteren, 10:45
Uit een verkennend onderzoek bleek al dat in het open polderlandschap ruimte is voor maximaal 67 turbines van 240 meter.
Advocaten waarschuwen voor beperken bezwaar bij bouw
20 oktober, 11:54
Het inperken van de mogelijkheden om in bezwaar te gaan tegen bouwplannen is een risico voor de rechtsstaat, stelt de Nederlandse orde van advocaten.
Controle na asbestsanering schiet in derde van gevallen tekort
20 oktober, 9:31
Daardoor worden gebouwen schoon verklaard terwijl er nog asbestresten aanwezig zijn, waarschuwt de Arbeidsinspectie.
Ga naar het nieuws-archief
Robert Muis
Redacteur
0
0
0
0
Voor een optimale gebruikservaring plaatst Architectenweb functionele cookies. Wat de verschillende cookies precies doen leggen we uit in een
overzicht
. Cookies van social media kun je optioneel
aanzetten
.
Akkoord
Instellingen
Annuleren
OK
Sluiten
Doorgaan
Inloggen
Maak een gratis persoonlijk account aan
Feedback
Feedback
Wij horen graag jouw feedback. Laat je reactie achter en eventueel jouw e-mail adres.
Reactie
Verstuur