Projecten
Producten
Bedrijven
Vacatures
Agenda
Awards
Podcasts
more_horiz
Videos
Magazine
Thema's
Favorieten
Profiel
Uitloggen
Abonneer je nu op onze nieuwsbrieven!
Abonneren
Nee, bedankt
Ja, denk met me mee rond de
materialisering van mijn project
Transformatie van de voormalige Bovenbouwwerkplaats
Copyright: Proloog.tv
Transformatie van de voormalige Bovenbouwwerkplaats
Copyright: Proloog.tv
Transformatie van de voormalige Bovenbouwwerkplaats
Copyright: Proloog.tv
Dakaanzicht getransformeerde Bovenbouwwerkplaats
Copyright: Studioninedots
Voorbeeld inrichting werkruimte getransformeerde Bovenbouwwerkplaats
Copyright: Studioninedots
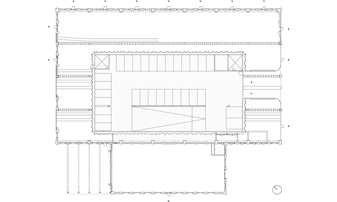
Plattegrond getransformeerde Bovenbouwwerkplaats
Copyright: Studioninedots
Woningbouw binnen deelfase 1 project Wisselspoor
Copyright: Synchroon
Woningbouw binnen deelfase 1 project Wisselspoor
Copyright: Synchroon
Woningbouw binnen deelfase 1 project Wisselspoor
Copyright: Synchroon
Woningbouw binnen deelfase 1 project Wisselspoor
Copyright: Synchroon
Realisatie eerste deelgebied Wisselspoor van start
21 april 2020, 15:10
In Utrecht is gestart met de bouw van het eerste deelgebied binnen het plan
Wisselspoor
. Deze fase van het project behelst de transformatie van de Bovenbouwwerkplaats tot parkeervoorziening en onderkomen voor bedrijven en horeca plus de bouw van 122 woningen. Het ontwerp voor de transformatie van de Bovenbouwwerkplaats ligt in handen van Studioninedots; Zecc Architecten, MeesVisser en Space Encounters ontwerpen de woningen.
Binnen het project Wisselspoor wordt het meest westelijke deel van het voormalige werkgebied van NS aan de Tweede Daalsedijk geleidelijk getransformeerd tot een gemengd woon- en werkgebied. Het spoorerfgoed zal worden geïntegreerd met nieuwe bebouwing en groen.
Het samenwerkingsverband dat de transformatie voor zijn rekening neemt bestaat uit Synchroon, Studioninedots, Delva Landscape Architects en SKONK. Daarnaast zijn nog eens tien architecten en andere adviseurs bij het project betrokken, laat ontwikkelaar Synchroon weten.
Bovenbouwwerkplaats
Het letterlijke middelpunt van het eerste deelgebied is de Bovenbouwwerkplaats. De vroegere loods biedt ruimte aan een parkeergarage voor 174 (deel)auto’s en zo’n tweeduizend vierkante meter aan commerciële ruimte, horeca en verschillende buurtfuncties.
Het parkeerhuis, dat ervoor zorgt dat de buurt autoluw kan worden, vormt het hart van het gebouw. Dit deel krijgt een nieuwe, abstracte gevel die boven het bestaande bouwdeel uitsteekt en is bekleed met met concave, aluminiumkleurige delen strekmetaal in verschillende breedtes.
“Deze geveldelen lopen door tot op de werkvloer en vormen zo tevens de achterwand van de rauwe, onafgewerkte werkruimten. Doordat de nieuwe gevel als een geplooid gordijn langs het gebouw is dichtgetrokken, varieert het aanzicht gedurende de dag en door de seizoenen heen. Bovendien wordt het reliëf ’s avonds subtiel aangelicht zodat het ook in het donker een baken in de buurt is”, meldt Studioninedots.
Industriële karakter
Het industriële karakter van de oude werkplaats wordt behouden, laat het bureau verder weten. De kenmerkende structuur, daken, façades en details blijven behouden of worden teruggebracht. In de schil rond de parkeergarage komen de kleinschalige bedrijfsunits, horecavoorzieningen en functies voor de buurt. De woningen worden gerealiseerd in een parkachtige omgeving rond de werkplaats, waarvoor het masterplan is opgesteld door Studioninedots en Delva Landscape Architects.
In totaal bestaat het plan Wisselspoor uit vier deelgebieden, die gefaseerd worden gerealiseerd. In de volgende drie fasen komen er nog zo’n duizend woningen en verschillende commerciële functies bij, meldt Synchroon.
Trefwoorden
bovenbouwwerkplaats
transformatie
studioninedots
gebiedstransformatie
delva landscape architects
zecc architecten
2e daalsedijk
wisselspoor
space encounters
meesvisser
synchroon
woningbouw
utrecht
Best gelezen
1
De Urbanisten schetst perspectief voor vitale en aantrekkelijke Rotterdamse binnenstad
vrijdag, 13 maart
2
Nominaties Amsterdamse Architectuurprijs 2026 bekend
vrijdag, 13 maart
3
Studio Vinke en Loos van Vliet ontwerpen blok met woningen in haven Lelystad
vrijdag, 13 maart
4
Duncan Stutterheim en SOM maken plannen voor meerdere locaties Sloterdijk I
maandag, 16 maart
5
Houten Stelthuis van Woonpioniers is aardbevings- en klimaatbestendig
woensdag, 18 maart
Gerelateerde nieuwsberichten
Intentieovereenkomst BPD en Katwijk voor woningbouw bij Valkenburg
13 mei 2020
Zecc
30 augustus 2020
Het Platform bekroond als Kantoorgebouw van het Jaar 2020
28 oktober 2020
Plan van team JPO gekozen voor Stadsbruglocatie Weert
21 april 2021
VORM en NS Stations tekenen overeenkomst voor deelgebied 3 Wisselspoor Utrecht
23 juni 2025
Bovenbouw en David Kohn Architects verbinden begijnhof opnieuw met binnenstad Hasselt
28 november 2025
Campina-terrein Eindhoven wordt stadsbuurt met coöperatieve buitenruimte
20 mei 2021
Oudste textielfabriek Tilburg wordt Duveldorp
2 juni 2021
Bouw 397 huurwoningen in Wisselspoor-gebied Utrecht gestart
30 oktober 2023
MeesVisser geeft coffeeshop interieur met allure
27 augustus 2024
Nimeto wint Rietveldprijs en Truus Schröderprijs 2024
18 november 2024
Zecc Architecten werkt in een zelf ontworpen en ontwikkeld gebouw
3 februari 2025
Team Wisselspoor presenteert plan 2e Daalsedijk
9 juni 2015
Oud NS-terrein Utrecht wordt herontwikkeld
9 april 2015
Zecc architecten ontwerpt gemeentehuis Renswoude
24 april 2020
Transformatie Overstad van start met herinrichting Ringersplein
22 mei 2020
Ingetogen en krachtig functioneel gebouw door Space Encounters
2 juni 2020
Voorstel voor co-living-project in Madrid van Keizer Koopmans
15 juni 2020
Woningen met fiscaal aftrekbare werkruimte in gebouw The Doors
16 juni 2020
Bouwstart laatste fase woonwijk Zuiderlei in Rosmalen
18 juni 2020
Anterieure overeenkomst voor Kabeldistrict Delft getekend
14 juli 2020
Woongebouw De Koningin 'bekroont' Het Kraanbolwerk Zwolle
22 juli 2020
MeesVisser ontwerpt transparant bedrijfsgebouw in Amsterdam
10 augustus 2020
Gemeenschappelijke binnentuin als kern van nieuw woonblok
10 september 2020
Casino met hotel moet blikvanger Vlaamse badplaats worden
25 september 2020
Zecc – genomineerd voor de Architect van het Jaar-prijs
5 oktober 2020
Arbeiderswoning met stalen gezicht
14 oktober 2020
Delva presenteert schetsontwerp voor water-landschapspark in IJburg
5 november 2020
Westbeat in Amsterdam geopend met online dansvoorstelling
10 november 2020
Utrecht bouwt vooral binnenstedelijk en rond ov-knooppunten
27 november 2020
Villa Fifty-Fifty heeft gelijkwaardige binnen- en buitenruimtes
30 november 2020
Bouw markante woontoren Highnote in Almere dichterbij
30 november 2020
Shortstay-hotel voegt zich in historisch lintdorp Sloten
4 december 2020
Westbeat als sculpturale verbinder ontworpen door Studioninedots
16 december 2020
Team met MVSA en Beyond Space renoveert oud rijkskantoor Haarlem
15 januari 2021
Medeoprichters Space Encounters starten nieuw bureau: Beyond Space
22 januari 2021
Overeenkomst Amsterdam en Synchroon voor ontwikkeling in centrum Bijlmer
4 februari 2021
MeesVisser ontwerpt houten kantoorgebouwen voor World Food Center Ede
5 mei 2021
Jongenspatronaat Tiel getransformeerd tot woon-zorggebouw
3 juni 2021
Zecc plaatst witte accenten in het Utrechtse Rijnvliet
30 augustus 2021
Delva Landscape Architecture & Urbanism – genomineerd voor prijs Architect van het Jaar 2021
6 oktober 2021
Studioninedots benoemt vier associates
10 december 2021
Delva presenteert integraal woon- en natuurplan voor Geestwater Lisse
24 maart 2022
Drie panden samengevoegd tot nieuw hoofdkantoor Lieven de Key
27 juni 2022
Expressieve architectuur van Space Encounters voor woonbuurt Wisselspoor
21 september 2022
Studioninedots presenteert opgeleverde Bovenbouwwerkplaats Utrecht
1 november 2022
Karakteristieke villa gerenoveerd en uitgebreid met passend contrast
10 november 2022
Intentieovereenkomst BPD en Katwijk voor woningbouw bij Valkenburg
13 mei 2020
Zecc
30 augustus 2020
Het Platform bekroond als Kantoorgebouw van het Jaar 2020
28 oktober 2020
Plan van team JPO gekozen voor Stadsbruglocatie Weert
21 april 2021
VORM en NS Stations tekenen overeenkomst voor deelgebied 3 Wisselspoor Utrecht
23 juni 2025
Bovenbouw en David Kohn Architects verbinden begijnhof opnieuw met binnenstad Hasselt
28 november 2025
Campina-terrein Eindhoven wordt stadsbuurt met coöperatieve buitenruimte
20 mei 2021
Oudste textielfabriek Tilburg wordt Duveldorp
2 juni 2021
Bouw 397 huurwoningen in Wisselspoor-gebied Utrecht gestart
30 oktober 2023
MeesVisser geeft coffeeshop interieur met allure
27 augustus 2024
Nimeto wint Rietveldprijs en Truus Schröderprijs 2024
18 november 2024
Zecc Architecten werkt in een zelf ontworpen en ontwikkeld gebouw
3 februari 2025
Team Wisselspoor presenteert plan 2e Daalsedijk
9 juni 2015
Oud NS-terrein Utrecht wordt herontwikkeld
9 april 2015
Zecc architecten ontwerpt gemeentehuis Renswoude
24 april 2020
Transformatie Overstad van start met herinrichting Ringersplein
22 mei 2020
Ingetogen en krachtig functioneel gebouw door Space Encounters
2 juni 2020
Voorstel voor co-living-project in Madrid van Keizer Koopmans
15 juni 2020
Woningen met fiscaal aftrekbare werkruimte in gebouw The Doors
16 juni 2020
Bouwstart laatste fase woonwijk Zuiderlei in Rosmalen
18 juni 2020
Anterieure overeenkomst voor Kabeldistrict Delft getekend
14 juli 2020
Woongebouw De Koningin 'bekroont' Het Kraanbolwerk Zwolle
22 juli 2020
MeesVisser ontwerpt transparant bedrijfsgebouw in Amsterdam
10 augustus 2020
Gemeenschappelijke binnentuin als kern van nieuw woonblok
10 september 2020
Casino met hotel moet blikvanger Vlaamse badplaats worden
25 september 2020
Zecc – genomineerd voor de Architect van het Jaar-prijs
5 oktober 2020
Arbeiderswoning met stalen gezicht
14 oktober 2020
Delva presenteert schetsontwerp voor water-landschapspark in IJburg
5 november 2020
Westbeat in Amsterdam geopend met online dansvoorstelling
10 november 2020
Utrecht bouwt vooral binnenstedelijk en rond ov-knooppunten
27 november 2020
Villa Fifty-Fifty heeft gelijkwaardige binnen- en buitenruimtes
30 november 2020
Bouw markante woontoren Highnote in Almere dichterbij
30 november 2020
Shortstay-hotel voegt zich in historisch lintdorp Sloten
4 december 2020
Westbeat als sculpturale verbinder ontworpen door Studioninedots
16 december 2020
Team met MVSA en Beyond Space renoveert oud rijkskantoor Haarlem
15 januari 2021
Medeoprichters Space Encounters starten nieuw bureau: Beyond Space
22 januari 2021
Overeenkomst Amsterdam en Synchroon voor ontwikkeling in centrum Bijlmer
4 februari 2021
MeesVisser ontwerpt houten kantoorgebouwen voor World Food Center Ede
5 mei 2021
Jongenspatronaat Tiel getransformeerd tot woon-zorggebouw
3 juni 2021
Zecc plaatst witte accenten in het Utrechtse Rijnvliet
30 augustus 2021
Delva Landscape Architecture & Urbanism – genomineerd voor prijs Architect van het Jaar 2021
6 oktober 2021
Studioninedots benoemt vier associates
10 december 2021
Delva presenteert integraal woon- en natuurplan voor Geestwater Lisse
24 maart 2022
Drie panden samengevoegd tot nieuw hoofdkantoor Lieven de Key
27 juni 2022
Expressieve architectuur van Space Encounters voor woonbuurt Wisselspoor
21 september 2022
Studioninedots presenteert opgeleverde Bovenbouwwerkplaats Utrecht
1 november 2022
Karakteristieke villa gerenoveerd en uitgebreid met passend contrast
10 november 2022
Toon alles
Gerelateerde podcasts
Gesprek met Tobias Verhoeven over duurzame stedelijke verdichting
15 maart 2024
Gerelateerde video's
Studioninedots
Nominatie voor de prijs voor Architect van het Jaar 2023
Zecc
Nominatie voor de prijs voor Architect van het Jaar 2020
Gerelateerde bedrijven
Staka Dakluiken
Complete oplossingen voor daktoegang
Andere nieuwsberichten
Projecten gezocht voor vijfde Adriaan Dessingprijs
4 uur geleden
De tweejaarlijkse architectuurprijs vestigt de aandacht op bijzondere, gerealiseerde plannen in de Zuid-Hollandse gemeenten Westland en Midden-Delfland. Het kan gaan om nieuwbouw, restauratie of landschappelijke projecten.
Nora Prins en Floor Marree versterken directie ECHO
Vandaag, 12:24
Met de uitbreiding verstevigt ECHO naar eigen zeggen de aansturing van zowel het ontwerpbureau als de adviespraktijk voor gebiedsontwikkeling.
Luxe appartementengebouw naast klooster Etten-Leur door Studio AAAN klaar
Vandaag, 10:50
Bij klooster ’t Withof in Etten-Leur is afgelopen jaar woongebouw De Hoogschout opgeleverd. Het door Studio AAAN ontworpen complex bestaat uit veertig ruime appartementen.
Hogeschool InHolland realiseert nieuw hoofdgebouw op campus Alkmaar
Gisteren, 15:38
Het gebouw, dat is ontworpen door BRTArchitecten, moet een plek worden waar studenten, docenten en andere betrokkenen samenkomen om te leren, onderzoeken en samenwerken. Spil in het ontwerp vormt een doorlopende verbindende ruimte.
Provincie schrapt beoogde locaties windturbines in Groene Hart
Vandaag, 13:35
De provincie had twaalf plekken op het oog, maar dat leidde tot maatschappelijk en politiek verzet.
Staten Utrecht willen netcongestie versneld aanpakken
Vandaag, 09:44
De fracties wezen op de noodzaak van het zo snel mogelijk realiseren van een hoogspanningsstation dat essentieel is voor het opsplitsen van het elektriciteitsnetwerk tussen de Flevopolder, Gelderland en Utrecht.
Rotterdam wil woningbouw versnellen met pilot ‘Ontwikkelaar aan Zet’
Gisteren, 16:33
De gemeente Rotterdam start een pilot waarbij projectontwikkelaars een grotere rol krijgen bij de voorbereiding van woningbouwprojecten.
Veel meer financieringsaanvragen Warmtefonds om hogere gasprijzen
Gisteren, 14:31
De gestegen gasprijzen zorgen ervoor dat veel meer huiseigenaren financiering aanvragen voor het energiezuiniger maken van hun woning.
Grondprijs voor landbouwgrond loopt op tot bijna een ton
Gisteren, 09:36
Ook overheden en andere partijen zoeken naar grond voor onder meer woningbouw, natuur en infrastructuur.
ANWB: betrek bewoners beter bij parkeerplannen in de wijk
17 maart, 2:00
Bewoners vinden naast parkeerruimte groen en leefbaarheid in hun wijk ook belangrijk, stelt de organisatie.
Ga naar het nieuws-archief
Ronnie Weessies
Redacteur
0
0
0
0
Voor een optimale gebruikservaring plaatst Architectenweb functionele cookies. Wat de verschillende cookies precies doen leggen we uit in een
overzicht
. Cookies van social media kun je optioneel
aanzetten
.
Akkoord
Instellingen
Annuleren
OK
Sluiten
Doorgaan
Inloggen
Maak een gratis persoonlijk account aan
Feedback
Feedback
Wij horen graag jouw feedback. Laat je reactie achter en eventueel jouw e-mail adres.
Reactie
Verstuur