Projecten
Producten
Bedrijven
Vacatures
Agenda
Awards
Podcasts
more_horiz
Videos
Magazine
Favorieten
Profiel
Uitloggen
Abonneer je nu op onze nieuwsbrieven!
Abonneren
Nee, bedankt
Ja, denk met me mee rond de
materialisering van mijn project
Copyright: Peter Tijhuis
Copyright: Peter Tijhuis
Copyright: Peter Tijhuis
Copyright: Peter Tijhuis
Copyright: Peter Tijhuis
Copyright: Peter Tijhuis
Copyright: Peter Tijhuis
Copyright: Peter Tijhuis
Copyright: Peter Tijhuis
Copyright: MeesVisser
Copyright: MeesVisser
Shortstay-hotel voegt zich in historisch lintdorp Sloten
4 december 2020, 14:35
In Sloten is dit jaar een shortstay-hotel naar ontwerp van
MeesVisser
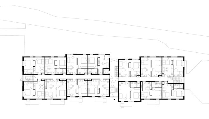
opgeleverd. Het gebouw bij de entree van het oude lintdorp, dat binnen de gemeentegrens van Amsterdam ligt, bestaat uit 36 shortstay-appartementen. Het vrij grote volume is afgestemd op de schaal van de omgeving, door het te verdelen in vier segmenten.
Dat laatste is om meerdere redenen van belang. Het Ditlaar Greenstay-hotel is een stuk groter dan het bedrijfsverzamelgebouw dat ooit op dezelfde plek stond. Daarnaast kent het kleinschalige dorp Sloten een actieve groep bewoners die zich sterk maakt voor het behoud van het historisch karakter van het dorp en het omliggende groen.
Het ontwerp is in samenspraak met de bewoners tot stand gekomen en gedurende het proces deels aangepast op basis van hun commentaar. De segmenten liggen verschoven ten opzichte van elkaar, wat het volume extra nuance geeft. Door het natuurlijke hoogteverschil tussen de dijk en de kavelgrens aan de sloot te benutten, krijgt het gebouw een bijzondere doorsnede.
Ondanks het eenvoudige volume ontstaan er hierdoor verschillende typen appartementen met ieder een eigen kwaliteit, meldt MeesVisser. De verschillende hoogtes worden zichtbaar in het atrium midden in het gebouw. Deze transparante entreehal kadert tevens een doorzicht in naar de achterliggende kerk.
Het materiaalgebruik is eveneens gekozen op basis van het uitgangspunt om een terughoudend gebouw met respect voor zijn omgeving te ontwerpen. Er is onder meer houten gevelbekleding, luiken, witte kozijnen en dito daklijsten toegepast. De daken bestaan geheel uit zonnepanelen.
Trefwoorden
amsterdam
shortstay
hotel
sloten
meesvisser
Locatie
Best gelezen
1
Genomineerden BNA Beste Gebouw van het Jaar 2026 bekend
dinsdag, 28 april
2
Architectenweb symposium: samenwerken op kantoor
dinsdag, 28 april
3
MVRDV en Diamond Schmitt ontwerpen tweede gebouw voor universiteit Toronto
dinsdag, 28 april
4
Groosman heeft 'eigen' Coolse Poort in centrum Rotterdam gerenoveerd
woensdag, 29 april
5
Bouwvergunning voor torens MVRDV op Tour & Taxis-terrein Brussel
donderdag, 30 april
Gerelateerde nieuwsberichten
MeesVisser geeft coffeeshop interieur met allure
27 augustus 2024
'Lifestyle-hotel' The Den in Den Bosch met bar-restaurant op hoogte
9 augustus 2022
MeesVisser ontwerpt houten kantoorgebouwen voor World Food Center Ede
5 mei 2021
Cavern Vastgoed heeft plan voor hotel in Delfshaven Rotterdam
10 maart 2021
Gemeenschappelijke binnentuin als kern van nieuw woonblok
10 september 2020
MeesVisser ontwerpt transparant bedrijfsgebouw in Amsterdam
10 augustus 2020
Omgedraaid woonprogramma voor eerste bewoners Centrumeiland
17 juni 2020
Realisatie eerste deelgebied Wisselspoor van start
21 april 2020
KettingHuls plaatst woongebouw tussen IJ en sporen
6 februari 2020
Nominaties Interieur van het Jaar 2019 bekend
2 oktober 2019
MeesVisser geeft coffeeshop interieur met allure
27 augustus 2024
'Lifestyle-hotel' The Den in Den Bosch met bar-restaurant op hoogte
9 augustus 2022
MeesVisser ontwerpt houten kantoorgebouwen voor World Food Center Ede
5 mei 2021
Cavern Vastgoed heeft plan voor hotel in Delfshaven Rotterdam
10 maart 2021
Gemeenschappelijke binnentuin als kern van nieuw woonblok
10 september 2020
MeesVisser ontwerpt transparant bedrijfsgebouw in Amsterdam
10 augustus 2020
Omgedraaid woonprogramma voor eerste bewoners Centrumeiland
17 juni 2020
Realisatie eerste deelgebied Wisselspoor van start
21 april 2020
KettingHuls plaatst woongebouw tussen IJ en sporen
6 februari 2020
Nominaties Interieur van het Jaar 2019 bekend
2 oktober 2019
Toon alles
Andere nieuwsberichten
'Stuttende' en contrasterende installatie voor Besiendershuis Nijmegen
Gisteren, 15:52
Bij het Besiendershuis in Nijmegen is afgelopen maand een door Frank Havermans ontworpen kunstinstallatie geopend. Het bouwwerk is gerealiseerd ter viering van het vijfhonderdjarig jubileum van het bijzondere huis in het centrum van de Keizerstad.
Specht architectuur en stedenbouw toont met meergeneratiehofje alledaagse woongemeenschappelijkheid
Gisteren, 14:25
Het meergeneratiehofje met sociale huurwoningen in Stedum is een bijdrage aan de zoektocht naar alledaagse gemeenschappelijkheid in het wonen in Nederland.
Mobiliteitshub van gerecycled tropisch hardhout voor Tholen
Gisteren, 11:41
In het Zeeuwse Tholen is een mobiliteitshub naar ontwerp van RO&AD Architecten opgeleverd. Het gebouw, dat is geheel is gemaakt van gerecycled tropisch hardhout, fungeert als knooppunt voor bussen en fietsers.
Kleurrijke textielinstallatie van Simone Post voor entreegebied Centraal Museum
Gisteren, 09:05
Voor Patchwork Post heeft ontwerper Simone Post objecten en kunstwerken uit de museumcollectie vertaald naar diverse werken in textiel.
Verzet natuurorganisaties tegen stroomkabel via Schiermonnikoog
Gisteren, 16:39
Negen natuurorganisaties maken zich grote zorgen over het plan om stroom van een nieuw windpark op de Noordzee via Schiermonnikoog aan land te brengen.
ING: huizenprijzen stijgen dit jaar niet verder door hoger aanbod
Gisteren, 13:03
Na jaren van groei is het voor het eerst in lange tijd dat een bank verwacht dat de huizenmarkt niet verder groeit.
TenneT mag datacenteraansluiting uitstellen om vol stroomnet
Gisteren, 10:11
Een projectontwikkelaar van een datacenter bij Schiphol klaagde hierover en spande een kort geding aan.
Brabant investeert 1,4 miljoen in waterfilter in Vlaanderen
30 april, 3:51
Het fosfaatfilter moet vervuild grondwater op een natuurlijke manier zuiveren voordat het naar het Nederlandse natuurgebied de Groote Meer bij Ossendrecht stroomt.
Rli: klimaat, vervuiling en groei bedreigen beschikbaarheid drinkwater
30 april, 12:20
De beschikbaarheid van drinkwater staat ernstig onder druk, waarschuwt de Raad voor de leefomgeving en infrastructuur.
ABN AMRO: huurwetaanpassingen stoppen uittocht beleggers niet
30 april, 9:04
Volgens de onderzoekers onderschat woonminister Boekholt de negatieve effecten van het huidige fiscale beleid.
Ga naar het nieuws-archief
Ronnie Weessies
Redacteur
0
0
0
0
Voor een optimale gebruikservaring plaatst Architectenweb functionele cookies. Wat de verschillende cookies precies doen leggen we uit in een
overzicht
. Cookies van social media kun je optioneel
aanzetten
.
Akkoord
Instellingen
Annuleren
OK
Sluiten
Doorgaan
Inloggen
Maak een gratis persoonlijk account aan
Feedback
Feedback
Wij horen graag jouw feedback. Laat je reactie achter en eventueel jouw e-mail adres.
Reactie
Verstuur