Projecten
Producten
Bedrijven
Vacatures
Agenda
Awards
Podcasts
more_horiz
Videos
Magazine
Thema's
Favorieten
Profiel
Uitloggen
Copyright: Stefan Müller
Copyright: Stefan Müller
Copyright: Stefan Müller
Copyright: Stefan Müller
Copyright: Pillows Maurits at the Park
Copyright: Stefan Müller
Copyright: Pillows Maurits at the Park
Copyright: Stefan Müller
Copyright: Stefan Müller
Copyright: Pillows Maurits at the Park
Copyright: Stefan Müller
Copyright: Stefan Müller
Copyright: Stefan Müller
Copyright: Stefan Müller
Speciaal voor het project vervaardigde bakstenen
Copyright: Office Winhov
Situatie
Copyright: Office Winhov
Gevel
Copyright: Office Winhov
Gevel
Copyright: Office Winhov
Gevel
Copyright: Office Winhov
Souterrain
Copyright: Office Winhov
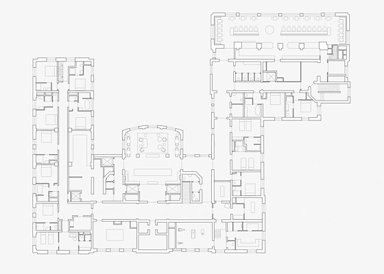
Begane grond
Copyright: Office Winhov
Verdieping
Copyright: Office Winhov
Doorsnede
Copyright: Office Winhov
Voormalig ontleedkundig laboratorium Amsterdam getransformeerd tot vijfsterrenhotel
1 maart 2023, 12:14
Naar ontwerp van
Office Winhov
is het voormalig ontleedkundig laboratorium van de Universiteit van Amsterdam aan de Mauritskade in de hoofdstad getransformeerd tot een vijfsterrenhotel. Aan de kant van het Oosterpark is het monument uitgebreid met een uitbouw, ondergronds zijn een parkeergarage, kantoorruimtes en een personeelsrestaurant gerealiseerd.
Het uit 1909 ontleedkundig stammend ontleedkundig laboratorium is oorspronkelijk ontworpen door architect Bernard Springer (1854–1922). Net als bijvoorbeeld het vlak ernaast gelegen Tropenmuseum heeft het gebouw een formele voorkant aan de Mauritskade en strekken drie vleugels aan de achterkant zich uit in het park.
Nadat het gebouw na het verlies van zijn oorspronkelijke functie jaren had leeggestaan, kreeg het een nieuwe bestemming als hotel. Een eerder plan voor een hotel met 120 kamers sneuvelde, maar de nieuwe uitbater Pillows vestigde uiteindelijk het 88 kamers tellende vijfsterrenhotel Maurits at the Park in het gebouw.
De keuze voor minder kamers kwam voort uit kwalitatieve overwegingen, meldt Office Winhov. “Dit reflecteert echt de wens van de gemeente en de opdrachtgever om dit gebouw een meer publiek karakter te geven en de monumentale ruimtes in het pand te respecteren”, zegt Uri Gilad, medeoprichter en partner bij het Amsterdamse bureau.
Hotel meer in het park komen te staan
Als onderdeel van de uitbreiding van het Oosterpark zijn ook de hekken bij het gebouw verdwenen, waardoor de vleugels van het pand meer in het park zijn komen te staan. In de uitbouw, die aan deze kant is gerealiseerd, is een brasserie opgenomen waar ook mensen die niet in het hotel logeren welkom zijn. Wel is een natuurlijke afscheiding van het park gemaakt, door middel van beplanting en hoogteverschillen.
De uitbouw is tegen de bestaande westelijke vleugel aangebouwd. Deze vleugel is later toegevoegd en de gevel bestond volgens Office Winhov uit minder hoogwaardige materialen. De ramen van de uitbouw zijn op een vergelijkbare manier gegroepeerd en gespiegeld als in het monument. Wel is de nieuwbouw duidelijk te onderscheiden van het bestaande gedeelte.
De bakstenen hebben dezelfde maat en kleurtoon als in het oude gebouw, maar om het ‘nieuwe’ te onderstrepen is voor een dieper gekleurde Petersen-steen met meer nuance gekozen. Ook is in het metselwerkverband een eigen reliëf aangebracht. Verder heeft de uitbouw aan de bovenkant net als de rest van het gebouw een bekroning gekregen, maar dan een hedendaagse variant.
36 bomen
Het ondergrondse deel met de parkeergarage, kantoorruimtes en het personeelsrestaurant was een grote bouwkundige uitdaging, zeker omdat de structuur moest worden versterkt om een meter aarde en 36 grote bomen te kunnen dragen. “De landschapsarchitectuur is in samenspraak met de gemeente ontstaan. En nu kun je echt niet zien waar het hotelterrein ophoudt en het park begint”, zegt Rick Bruggink, projectarchitect bij Office Winhov.
Landschapsarchitect
Thijs de Zeeuw
ontwikkelde voor het project verschillende plekken die meer flora en fauna uitnodigen op het terrein, zoals een open volière, waar vogels vrijwillig verblijven.
Interieur
In het bestaande interieur vormden de muren van geglazuurde baksteen in de gangen en de spantconstructies en expressieve ruimte in de vroegere museumzaal de hoogtepunten. Deze elementen zijn zichtbaar en sfeerbepalend gebleven, maar ook in balans gebracht met de zachtere interieurs van de hotelketen.
In de oude museumzaal was ooit het wereldberoemde anatomisch museum Vrolik gevestigd, maar dat is verhuisd naar de locatie AMC van het Universitair Medisch Centrum Amsterdam. In plaats daarvan is in de zaal een restaurant ondergebracht, waar rondom zicht wordt geboden op het park. Het interieur van het Maurits at the Park is ontworpen in samenwerking met
Studio Linse
.
In 2017 werd verderop in het Oosterpark het door Team V Architectuur ontworpen
Hotel Arena
geopend.
Trefwoorden
amsterdam
thijs de zeeuw
studio linse
transformatie
oosterpark
office winhov
hotel
Locatie
Best gelezen
1
Houthybride woongebouw langs de A8 in Zaandam opgeleverd
dinsdag, 11 november
2
WillemsenU zinkt villa af in landschap
dinsdag, 11 november
3
Woongebouw voor gezinnen biedt ruime corridor en gekoppelde terrassen met glijbaan
woensdag, 12 november
4
MVRDV ontwerpt bolvormig sportcomplex in Albanese hoofdstad Tirana
maandag, 10 november
5
Groningers kiezen nieuwe invulling voor plek gesloopte parkeergarage in stadscentrum
dinsdag, 11 november
Gerelateerde nieuwsberichten
Office Winhov verkozen tot Architect van het Jaar 2023
8 november 2023
Office Winhov
1 september 2023
Office Winhov – genomineerd voor prijs Architect van het Jaar 2023
27 september 2023
Vijf genomineerden voor Abe Bonnema Architectuurprijs 2023
11 oktober 2023
Inschrijving NRP Gulden Feniks 2024 gestart
6 februari 2024
Terugluisteren: Jan Peter Wingender in Nooit Meer Slapen
5 januari 2024
Vijf Nederlandse projecten genomineerd voor Brick Award 24
9 april 2024
Architectenweb organiseert Avond met Office Winhov
17 juli 2024
Luxe woongebouw door Office Winhov aan Park Somerlust
18 januari 2024
Amsterdamse Nieuwbouwprijs voor Eerste Oosterparkstraat 88-126
22 juni 2020
Hotel Arena prominenter aanwezig in Oosterpark
6 september 2017
Piet Boon ontwerpt grand café tropeninstituut
6 juli 2015
Amsterdam start met verdubbeling Oosterpark
22 november 2012
Office Winhov herstelt verzekeringsbank Arthur Staal in oude luister
7 december 2022
Stadhuis Leiden vernieuwd met gelaagde historie als referentiepunt
9 november 2022
Feestelijke 'opening' voor gerenoveerd Amstelstation
25 oktober 2021
Woongebouw uit vier 'palazzi' voor Amstelkwartier
1 februari 2021
Trippenhuiscomplex uitgeroepen tot Interieur van het Jaar 2020
28 oktober 2020
Boek belicht Meelfabriek op te transformeren terrein Rotterdam
10 februari 2023
Lingotto presenteert plannen herontwikkeling Honigcomplex in Nijmegen
24 oktober 2022
Office Winhov smeedt erkers en loggia’s samen in woningen Sud
6 juli 2020
Architecten presenteren schetsontwerp stadhuis Den Helder
2 maart 2020
Nominaties Gouden A.A.P. 2023 bekend
18 maart 2023
Kantoorgebouw door Arthur Staal aan de Schinkel gerenoveerd en uitgebreid
15 oktober
Gouden A.A.P. 2025 voor Nationaal Holocaustmuseum en Station Wildeman
11 juni
Being en COD ontwikkelen vier woongebouwen aan Tolhuiskanaal in Amsterdam-Noord
21 mei
Zeven nominaties BNA Beste Gebouw van het Jaar 2025
31 maart
Fase 4 herontwikkeling Strijp-S start met getrapt woonblok
22 januari
Stepstone en Nationaal Holocaustmuseum bekroond met De Prijzen 2024
11 december 2024
Video: interviews met genomineerden Abe Bonnema Prijs voor Jonge Architecten
13 november 2024
Winnaars NRP Gulden Feniks 2024 bekend
8 november 2024
Stadhuis Den Helder bekroond tot Publiek gebouw van het Jaar 2024
6 november 2024
Nominaties Publiek gebouw van het Jaar 2024 bekend
9 oktober 2024
Winnaars ARC24 Awards bekend
27 september 2024
Inez Tan benoemd tot partner bij Office Winhov
25 september 2024
Team met Office Winhov en HUB ontwerpt Collectie Centrum Antwerpen
24 september 2024
Boek Architecture Repurposed gepresenteerd tijdens Avond met Office Winhov
4 september 2024
Construction Company, RED Bouw en Baken Bouw realiseren Think District Amsterdam
11 juni 2024
Herengracht Industrie Prijs 2024 naar Stadhuis Den Helder
31 mei 2024
Faculteit ITC van Universiteit Twente uitgeroepen tot BNA Beste Gebouw van het Jaar 2024
23 mei 2024
Zeven architectenbureaus ontwerpen eerste woningen De Suikerzijde
15 april 2024
Gebouwen Nationaal Holocaustmuseum laten geschiedenis spreken
6 maart 2024
Rijksvastgoedbedrijf start aanbesteding voor bouw boekenmagazijn Koninklijke Bibliotheek
21 februari 2024
Vier winnaars NRP Gulden Feniks
7 november 2023
Bouw 397 huurwoningen in Wisselspoor-gebied Utrecht gestart
30 oktober 2023
Elf lessen uit symposium rond ontwerpen in analogie met het bestaande
23 oktober 2023
Nog twee dagen om jouw stem uit te brengen voor de Architect van het Jaar 2023!
12 oktober 2023
Architectenweb symposium: ontwerpen in analogie met het bestaande
20 september 2023
Vijf nominaties voor de prijs voor Architect van het Jaar 2023
4 september 2023
Winnaars ARC22 Awards bekendgemaakt
3 november 2022
Nominaties Publiek gebouw van het Jaar 2022 bekend
3 oktober 2022
RED Company ontwikkelt duurzame wijk rond IBM-kantoor in Amsterdam
14 maart 2022
1.500 woningen en 220 meter hoge toren op Codrico-terrein Katendrecht
2 december 2020
Nominaties 'Interieur van het Jaar 2020' bekend
30 september 2020
Office Winhov – genomineerd voor de Architect van het Jaar-prijs
28 september 2020
Gouden A.A.P. 2020 voor Trippenhuiscomplex en Rhapsody in West
24 september 2020
Stadsarchief Delft wint categorieprijs Brick Award 20
24 september 2020
Conservatorium van Amsterdam krijgt dependance op Zuidas
17 september 2020
Nominaties voor de prijs voor Architect van het Jaar 2020 bekend
31 augustus 2020
Office Winhov
30 augustus 2020
Verbouwing en verduurzaming stadhuis Leiden gestart
4 februari 2020
Fenix I grote winnaar Rotterdam Architectuurprijs 2019
18 december 2019
Gevel als 'zonnewijzer' voor pand horlogemaker en juwelier
23 oktober 2019
Renovatie hal Amstelstation start na de zomer
6 mei 2019
Nieuw woongebouw in hart van Kop Zuidas
26 juni 2018
Vijf architecten onderzoeken mogelijkheden Amsterdam Museum
10 oktober 2017
Nieuwbouw Stadsarchief Delft officieel geopend
7 september 2017
V&D-complex Rokin krijgt oude karakter terug
23 juni 2017
Leiden toont plannen verbouwing stadhuis
25 april 2017
Drie kandidaten verbouwing stadhuis Leiden
15 februari 2017
Zuiderkerkprijs 2016 naar De Smaragd
8 december 2016
Winnaars ARC16 Awards bekend
21 november 2016
Met opening BANK is W Amsterdam compleet
7 oktober 2016
Nederlanders bouwen mee aan modelwijk Berlijn
11 juli 2016
Opdracht Amstelstation voor combinatie Office Winhov
28 juni 2016
Architect Joost Hovenier overleden
15 maart 2016
W Hotel Amsterdam officieel geopend
22 oktober 2015
Winhov wint competitie flagshipstore Bucherer
7 oktober 2015
Verslag van Het Grote Leisure Congres
23 juni 2015
Ton Venhoeven geeft keynote op Het Grote Leisure Congres
10 juni 2015
Co-founder Zoku geeft keynote op Het Grote Leisure Congres
3 juni 2015
Bouwstart studentenwoningen op campus TU/e
27 mei 2015
Zorgcomplex historische haven Middelburg klaar
11 mei 2015
Vijf winnaars bij Arie Keppler Prijs 2014
17 november 2014
W Hotel in gebouw achter Paleis op de Dam
14 februari 2014
Office Winhov verkozen tot Architect van het Jaar 2023
8 november 2023
Office Winhov
1 september 2023
Office Winhov – genomineerd voor prijs Architect van het Jaar 2023
27 september 2023
Vijf genomineerden voor Abe Bonnema Architectuurprijs 2023
11 oktober 2023
Inschrijving NRP Gulden Feniks 2024 gestart
6 februari 2024
Terugluisteren: Jan Peter Wingender in Nooit Meer Slapen
5 januari 2024
Vijf Nederlandse projecten genomineerd voor Brick Award 24
9 april 2024
Architectenweb organiseert Avond met Office Winhov
17 juli 2024
Luxe woongebouw door Office Winhov aan Park Somerlust
18 januari 2024
Amsterdamse Nieuwbouwprijs voor Eerste Oosterparkstraat 88-126
22 juni 2020
Hotel Arena prominenter aanwezig in Oosterpark
6 september 2017
Piet Boon ontwerpt grand café tropeninstituut
6 juli 2015
Amsterdam start met verdubbeling Oosterpark
22 november 2012
Office Winhov herstelt verzekeringsbank Arthur Staal in oude luister
7 december 2022
Stadhuis Leiden vernieuwd met gelaagde historie als referentiepunt
9 november 2022
Feestelijke 'opening' voor gerenoveerd Amstelstation
25 oktober 2021
Woongebouw uit vier 'palazzi' voor Amstelkwartier
1 februari 2021
Trippenhuiscomplex uitgeroepen tot Interieur van het Jaar 2020
28 oktober 2020
Boek belicht Meelfabriek op te transformeren terrein Rotterdam
10 februari 2023
Lingotto presenteert plannen herontwikkeling Honigcomplex in Nijmegen
24 oktober 2022
Office Winhov smeedt erkers en loggia’s samen in woningen Sud
6 juli 2020
Architecten presenteren schetsontwerp stadhuis Den Helder
2 maart 2020
Nominaties Gouden A.A.P. 2023 bekend
18 maart 2023
Kantoorgebouw door Arthur Staal aan de Schinkel gerenoveerd en uitgebreid
15 oktober
Gouden A.A.P. 2025 voor Nationaal Holocaustmuseum en Station Wildeman
11 juni
Being en COD ontwikkelen vier woongebouwen aan Tolhuiskanaal in Amsterdam-Noord
21 mei
Zeven nominaties BNA Beste Gebouw van het Jaar 2025
31 maart
Fase 4 herontwikkeling Strijp-S start met getrapt woonblok
22 januari
Stepstone en Nationaal Holocaustmuseum bekroond met De Prijzen 2024
11 december 2024
Video: interviews met genomineerden Abe Bonnema Prijs voor Jonge Architecten
13 november 2024
Winnaars NRP Gulden Feniks 2024 bekend
8 november 2024
Stadhuis Den Helder bekroond tot Publiek gebouw van het Jaar 2024
6 november 2024
Nominaties Publiek gebouw van het Jaar 2024 bekend
9 oktober 2024
Winnaars ARC24 Awards bekend
27 september 2024
Inez Tan benoemd tot partner bij Office Winhov
25 september 2024
Team met Office Winhov en HUB ontwerpt Collectie Centrum Antwerpen
24 september 2024
Boek Architecture Repurposed gepresenteerd tijdens Avond met Office Winhov
4 september 2024
Construction Company, RED Bouw en Baken Bouw realiseren Think District Amsterdam
11 juni 2024
Herengracht Industrie Prijs 2024 naar Stadhuis Den Helder
31 mei 2024
Faculteit ITC van Universiteit Twente uitgeroepen tot BNA Beste Gebouw van het Jaar 2024
23 mei 2024
Zeven architectenbureaus ontwerpen eerste woningen De Suikerzijde
15 april 2024
Gebouwen Nationaal Holocaustmuseum laten geschiedenis spreken
6 maart 2024
Rijksvastgoedbedrijf start aanbesteding voor bouw boekenmagazijn Koninklijke Bibliotheek
21 februari 2024
Vier winnaars NRP Gulden Feniks
7 november 2023
Bouw 397 huurwoningen in Wisselspoor-gebied Utrecht gestart
30 oktober 2023
Elf lessen uit symposium rond ontwerpen in analogie met het bestaande
23 oktober 2023
Nog twee dagen om jouw stem uit te brengen voor de Architect van het Jaar 2023!
12 oktober 2023
Architectenweb symposium: ontwerpen in analogie met het bestaande
20 september 2023
Vijf nominaties voor de prijs voor Architect van het Jaar 2023
4 september 2023
Winnaars ARC22 Awards bekendgemaakt
3 november 2022
Nominaties Publiek gebouw van het Jaar 2022 bekend
3 oktober 2022
RED Company ontwikkelt duurzame wijk rond IBM-kantoor in Amsterdam
14 maart 2022
1.500 woningen en 220 meter hoge toren op Codrico-terrein Katendrecht
2 december 2020
Nominaties 'Interieur van het Jaar 2020' bekend
30 september 2020
Office Winhov – genomineerd voor de Architect van het Jaar-prijs
28 september 2020
Gouden A.A.P. 2020 voor Trippenhuiscomplex en Rhapsody in West
24 september 2020
Stadsarchief Delft wint categorieprijs Brick Award 20
24 september 2020
Conservatorium van Amsterdam krijgt dependance op Zuidas
17 september 2020
Nominaties voor de prijs voor Architect van het Jaar 2020 bekend
31 augustus 2020
Office Winhov
30 augustus 2020
Verbouwing en verduurzaming stadhuis Leiden gestart
4 februari 2020
Fenix I grote winnaar Rotterdam Architectuurprijs 2019
18 december 2019
Gevel als 'zonnewijzer' voor pand horlogemaker en juwelier
23 oktober 2019
Renovatie hal Amstelstation start na de zomer
6 mei 2019
Nieuw woongebouw in hart van Kop Zuidas
26 juni 2018
Vijf architecten onderzoeken mogelijkheden Amsterdam Museum
10 oktober 2017
Nieuwbouw Stadsarchief Delft officieel geopend
7 september 2017
V&D-complex Rokin krijgt oude karakter terug
23 juni 2017
Leiden toont plannen verbouwing stadhuis
25 april 2017
Drie kandidaten verbouwing stadhuis Leiden
15 februari 2017
Zuiderkerkprijs 2016 naar De Smaragd
8 december 2016
Winnaars ARC16 Awards bekend
21 november 2016
Met opening BANK is W Amsterdam compleet
7 oktober 2016
Nederlanders bouwen mee aan modelwijk Berlijn
11 juli 2016
Opdracht Amstelstation voor combinatie Office Winhov
28 juni 2016
Architect Joost Hovenier overleden
15 maart 2016
W Hotel Amsterdam officieel geopend
22 oktober 2015
Winhov wint competitie flagshipstore Bucherer
7 oktober 2015
Verslag van Het Grote Leisure Congres
23 juni 2015
Ton Venhoeven geeft keynote op Het Grote Leisure Congres
10 juni 2015
Co-founder Zoku geeft keynote op Het Grote Leisure Congres
3 juni 2015
Bouwstart studentenwoningen op campus TU/e
27 mei 2015
Zorgcomplex historische haven Middelburg klaar
11 mei 2015
Vijf winnaars bij Arie Keppler Prijs 2014
17 november 2014
W Hotel in gebouw achter Paleis op de Dam
14 februari 2014
Toon alles
Gerelateerde podcasts
Gesprek met Oana Bogdan en Jan Peter Wingender over de lage honoraria in België en de wankele cao in Nederland
1 februari 2024
Gerelateerde video's
Office Winhov
Nominatie voor de prijs voor Architect van het Jaar 2023
Ontwerpen in analogie met het bestaande
Symposium
Avond met Office Winhov
Andere nieuwsberichten
Nominaties Zuiderkerkprijs en Geurt Brinkgreve Bokaal 2025 bekend
14 november, 12:17
Voor de eerstgenoemde woningbouwprijs van de gemeente Amsterdam zijn tien projecten genomineerd, de bokaal voor het beste initiatief op het gebied van herontwikkeling, transformatie of renovatie leverde zeven nominaties op.
'Architecten kunnen kwaliteit waarborgen bij splitsen en opdelen rijtjeshuizen'
14 november, 11:14
Om het splitsen en opdelen van rijtjeswoningen van de grond te krijgen, dienen het Rijk en gemeenten de regie te nemen. Architecten kunnen hierbij worden ingeschakeld voor de waarborging van de kwaliteit, aldus een vrijdag verschenen rapport.
MVRDV en Buro Happold ontwerpen nieuw theater in Veenendaal
14 november, 10:23
Voor de vernieuwing van Theater De Lampegiet zijn vijf schetsontwerpen gemaakt. Zowel de inwoners van de stad als de jury hebben daarbij voor het ontwerp van MVRDV en Buro Happold gekozen.
Benthem Crouwel Architects plaatst slotstuk in Paleiskwartier van Den Bosch
13 november, 5:00
Benthem Crouwel Architects heeft het stadsblok Palazzo in het Paleiskwartier van Den Bosch opgeleverd
Zuid-Holland verhoogt budget voor restauratie rijksmonumenten
14 november, 2:08
De provincie Zuid-Holland verhoogt het budget voor de restauratie van rijksmonumenten structureel.
Rapport: natuur kan helpen beschermen tegen stijgende zeespiegel
14 november, 9:24
Natuurlijke oplossingen zoals ruim baan geven aan gebieden met eb en vloed kunnen helpen de Nederlandse kustlijn te beschermen tegen de stijgende zeespiegel.
Deltacommissaris: ga nu al in gesprek over toekomst waterbeheer
13 november, 4:03
Nederland moet nu al kijken welke randvoorwaarden nodig zijn om grote waterbeschermingsprogramma's zoals de Deltawerken in de komende jaren uit te voeren.
Gemeentebestuur wil Brabants dorp Moerdijk laten verdwijnen
13 november, 10:23
Het dorp Moerdijk in Noord-Brabant moet verdwijnen om plaats te maken voor uitbreiding van het bestaande haven- en industrieterrein in die plaats.
Iets minder mensen vertrekken uit de Randstad dan in eerdere jaren
12 november, 10:00
Onder andere omdat er in de Randstad meer kinderen worden geboren, groeit de bevolking daar sneller dan in de gebieden eromheen. Netto vertrokken er afgelopen jaar 14.000 mensen.
Woningen en park op plek van rangeerterrein bij Rotterdamse Kuip
12 november, 9:30
Een rangeerterrein voor treinen tegenover stadion De Kuip in Rotterdam verdwijnt. Op de plek worden woningen en een nieuw station gebouwd. Bovendien moet een park naast het spoor worden uitgebreid.
Ga naar het nieuws-archief
Ronnie Weessies
Redacteur
4
0
0
0
Voor een optimale gebruikservaring plaatst Architectenweb functionele cookies. Wat de verschillende cookies precies doen leggen we uit in een
overzicht
. Cookies van social media kun je optioneel
aanzetten
.
Akkoord
Instellingen
Annuleren
OK
Sluiten
Doorgaan
Inloggen
Maak een gratis persoonlijk account aan
Feedback
Feedback
Wij horen graag jouw feedback. Laat je reactie achter en eventueel jouw e-mail adres.
Reactie
Verstuur