Projecten
Producten
Bedrijven
Vacatures
Agenda
Awards
Podcasts
more_horiz
Videos
Magazine
Thema's
Favorieten
Profiel
Uitloggen
Abonneer je nu op onze nieuwsbrieven!
Abonneren
Nee, bedankt
Ja, denk met me mee rond de
materialisering van mijn project
Copyright: Surrend3r
Copyright: Surrend3r
Concept
Copyright: Arons en Gelauff architecten
Axonometrie
Copyright: Arons en Gelauff architecten
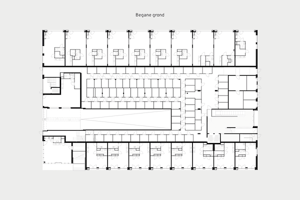
Plattegronden
Copyright: Arons en Gelauff architecten
Woonloft
Copyright: Arons en Gelauff architecten
Werkloft
Copyright: Arons en Gelauff architecten
Fase 4 herontwikkeling Strijp-S start met getrapt woonblok
22 januari 2025, 11:34
Dit jaar wordt gestart met de bouw van het eerste blok van de vierde fase van de herontwikkeling van Strijp-S in Eindhoven. Blok A3, dat is ontworpen door
Arons en Gelauff architecten
, bestaat uit 150 appartementen, elf werklofts en een café-restaurant. Het gebouw wordt schuin afgetrapt met terrassen richting de zonzijde van het plein, met in de punt de horecavoorziening.
In fase 4 van de herontwikkeling van Strijp-S worden drie nieuwe woongebouwen rond een nieuw plein, naast Microlab dat een transformatie ondergaat. Het stedenbouwkundig plan voor fase 4 is gemaakt door West 8; Arons en Gelauff, Office Winhov en Marc Koehler Architects ontwerpen de nieuwe gebouwen met in totaal 1.500 woningen en verschillende andere functies.
Arons en Gelaff heeft Blok A3 opgevat als een stedenbouwkundige schakel in het gebied. Volgens het bureau markeert het getrapte volume de overgang van de torens en fabrieksgebouwen naar laagbouw en vice versa. De gevelindeling is de met grote, liggende ramen een hoge plint en een naar buiten geduwde trap geïnspireerd op de bedrijfsgebouwen van Strijp-S. De materialisatie van de gevel is geënt op het bakstenen Philipsdorp en refereert zo aan de woonfunctie van het blok.
De rozerode baksteen is een dikformaat dat in wild verband wordt gemetseld, meldt Arons en Gelauff. Bijzondere elementen in de gevel krijgen een staand tegelverband; boven de ramen vormen de rollagen een extra accent.
Binnentuin
Een binnentuin vormt het hart van Blok A3. Hoewel er een parkeergarage onder het blok ligt, is de tuin niet opgetild. Aan het binnenterrein Aan dit binnenterrein worden de gevels uitgevoerd in een lichte mergelsteen; trappen, kozijnen en deuren krijgen er een oranjetint. Iedere verdiepingstrede biedt plek aan privébuitenruimtes en groene daken.
De verplichte vluchttrappen zijn ingezet als de meest voor de hand liggende route voor de bewoners naar hun huis. Samen met de zogeheten leefgalerijen vormen ze vanaf het plein en de binnentuin de snelste toegang tot de woningen. Op die manier worden traplopen en ontmoeting gestimuleerd, menen de architecten.
Parkeergarage van drie verdiepingen
Om de kwaliteit van de openbare ruimte te versterken wordt het parkeren in fase 4 van Strijp-S geheel ondergronds gebracht. Op voorstel van de architecten komt er één parkeergarage van drie verdiepingen onder Blok A3, in plaats van een eenlaagse garage onder alle drie blokken. Op die manier kan de bouw van de blokken ook wat onafhankelijker van elkaar plaatsvinden.
De oplevering van Blok A3 is voorzien in 2028.
Trefwoorden
west 8
woongebouw
marc koehler architects
strijp-s
eindhoven
office winhov
arons en gelauff architecten
Locatie
Best gelezen
1
PSV presenteert plannen voor uitbreiding Philips Stadion
vrijdag, 20 maart
2
Luxe appartementengebouw naast klooster Etten-Leur door Studio AAAN klaar
donderdag, 19 maart
3
Houten Stelthuis van Woonpioniers is aardbevings- en klimaatbestendig
woensdag, 18 maart
4
BureauVanEig verbetert uitstraling Haagse rijtjeswoningen bij verduurzaming
dinsdag, 17 maart
5
De nieuwe kleren van de keizer
dinsdag, 17 maart
Gerelateerde nieuwsberichten
Tribunevormig gebouw van MVRDV met zicht op het hart van Strijp-S
10 mei 2024
Marc Koehler Associates ontwerpt ensemble van biobased en natuurinclusieve woongebouwen in Haarrijn
22 april 2025
Woon- en werkgebouw met open karakter op Strijp-S
22 augustus 2025
Bouwstart voor gebouw Matchbox van KAAN Architecten
19 maart 2024
Glasgebouw op Strijp-S in Eindhoven krijgt nieuw leven als woongebouw
5 september 2025
Woontoren van Binst Architects op Strijp-S opgeleverd
12 april 2023
Gebouw met appartementen van houten modules in Buiksloterham opgeleverd
15 september 2025
Arons en Gelauff benoemt drie associates
4 november 2025
Met Lighthouse is voorlopig hoogste toren van Eindhoven opgeleverd
4 december 2025
Gebouwenensemble S-West in Eindhoven opgeleverd
22 april 2022
Strijp-S krijgt woonbuurtje met karakteristieken voormalig Philips-terrein
2 maart
Nieuw kantoorgebouw als schakel tussen stad en Strijp-S
1 juli 2020
Strijp-S Eindhoven wint NEPROM-prijs
17 mei 2019
Amvest ontvangt Van Abbepenning 2024 voor herontwikkeling Strijp R
4 november 2024
Eindhoven opent in september voormalig Philips-landgoed voor publiek
3 juli 2025
Kantoorgebouw door Arthur Staal aan de Schinkel gerenoveerd en uitgebreid
15 oktober 2025
Uitvoering plan West 8 voor Venlose herontwikkeling gestart
9 december 2025
Eindhovens architectenbureau betrekt kantoor in optopping Veemgebouw
7 augustus 2023
Groot Egyptisch Museum naar ontwerp van Heneghan Peng en West 8 officieel geopend
3 november 2025
Eek en Dekkers ontwerpt ruimtelijke 'schuurwoning' op Strijp R in Eindhoven
11 november 2022
M+R toont 'flagship office' BDO Zuid-Nederland in kantoorgebouw Strijp S
27 juli 2022
Eindhoven presenteert masterplan voor Stadhuisplein en omgeving
30 juni 2025
Station Eindhoven krijgt ondergronds busstation en nieuwe hal aan de noordzijde
14 januari
'Verticaal bos' door Stefano Boeri op Strijp S opgeleverd
4 oktober 2021
Woningen op de locatie van de voormalige beeldbuizenfabriek in Eindhoven
23 augustus 2021
Rijksmuseum krijgt vestiging in nieuw gebouw in Eindhoven
11 december 2025
Flexibele werkomgeving voor scale-ups in oude Philips-kantine
22 april 2021
Realisatie woningbouwproject INCK in Eindhoven aanstaande
31 oktober 2025
VMX Architects presenteert opgeleverd woongebouw Haasje Over
26 maart 2021
Villa Fifty-Fifty heeft gelijkwaardige binnen- en buitenruimtes
30 november 2020
Woongebouw met getrapte gevel van diederendirrix in spoorzone Strijp S klaar
11 november 2020
Bouw Chinees paviljoen op Strijp S Eindhoven van start
30 oktober 2020
Tribunevormig gebouw van MVRDV met zicht op het hart van Strijp-S
10 mei 2024
Marc Koehler Associates ontwerpt ensemble van biobased en natuurinclusieve woongebouwen in Haarrijn
22 april 2025
Woon- en werkgebouw met open karakter op Strijp-S
22 augustus 2025
Bouwstart voor gebouw Matchbox van KAAN Architecten
19 maart 2024
Glasgebouw op Strijp-S in Eindhoven krijgt nieuw leven als woongebouw
5 september 2025
Woontoren van Binst Architects op Strijp-S opgeleverd
12 april 2023
Gebouw met appartementen van houten modules in Buiksloterham opgeleverd
15 september 2025
Arons en Gelauff benoemt drie associates
4 november 2025
Met Lighthouse is voorlopig hoogste toren van Eindhoven opgeleverd
4 december 2025
Gebouwenensemble S-West in Eindhoven opgeleverd
22 april 2022
Strijp-S krijgt woonbuurtje met karakteristieken voormalig Philips-terrein
2 maart
Nieuw kantoorgebouw als schakel tussen stad en Strijp-S
1 juli 2020
Strijp-S Eindhoven wint NEPROM-prijs
17 mei 2019
Amvest ontvangt Van Abbepenning 2024 voor herontwikkeling Strijp R
4 november 2024
Eindhoven opent in september voormalig Philips-landgoed voor publiek
3 juli 2025
Kantoorgebouw door Arthur Staal aan de Schinkel gerenoveerd en uitgebreid
15 oktober 2025
Uitvoering plan West 8 voor Venlose herontwikkeling gestart
9 december 2025
Eindhovens architectenbureau betrekt kantoor in optopping Veemgebouw
7 augustus 2023
Groot Egyptisch Museum naar ontwerp van Heneghan Peng en West 8 officieel geopend
3 november 2025
Eek en Dekkers ontwerpt ruimtelijke 'schuurwoning' op Strijp R in Eindhoven
11 november 2022
M+R toont 'flagship office' BDO Zuid-Nederland in kantoorgebouw Strijp S
27 juli 2022
Eindhoven presenteert masterplan voor Stadhuisplein en omgeving
30 juni 2025
Station Eindhoven krijgt ondergronds busstation en nieuwe hal aan de noordzijde
14 januari
'Verticaal bos' door Stefano Boeri op Strijp S opgeleverd
4 oktober 2021
Woningen op de locatie van de voormalige beeldbuizenfabriek in Eindhoven
23 augustus 2021
Rijksmuseum krijgt vestiging in nieuw gebouw in Eindhoven
11 december 2025
Flexibele werkomgeving voor scale-ups in oude Philips-kantine
22 april 2021
Realisatie woningbouwproject INCK in Eindhoven aanstaande
31 oktober 2025
VMX Architects presenteert opgeleverd woongebouw Haasje Over
26 maart 2021
Villa Fifty-Fifty heeft gelijkwaardige binnen- en buitenruimtes
30 november 2020
Woongebouw met getrapte gevel van diederendirrix in spoorzone Strijp S klaar
11 november 2020
Bouw Chinees paviljoen op Strijp S Eindhoven van start
30 oktober 2020
Toon alles
Gerelateerde podcasts
Toren van Babel
Gesprek met Fieke van den Beuken over sociale woningen in hoogbouw
14 oktober 2022
Gesprek met Annemariken Hilberink en Geert Bosch over gewortelde architectuur
3 februari 2022
Andere nieuwsberichten
PSV presenteert plannen voor uitbreiding Philips Stadion
20 maart, 3:37
De Eindhovense club wil de capaciteit van zijn onderkomen opschroeven met maximaal 25.000 bezoekers. Om dit te bewerkstelligen, komt er een nieuwe schil rond het stadion waarin een derde ring is opgenomen.
Rijkswaterstaat staakt renovatie markante houten Krùsrak-brug in Sneek
20 maart, 11:32
Tijdens de renovatie werd duidelijk dat de constructieve veiligheid van de brug niet langer kan worden verzekerd, laat RWS weten. De uit 2008 stammende Krúsrak-brug over de rijksweg 7 is ontworpen door Onix en Archterbosch Architecten.
KAAN Architecten en De Zwarte Hond winnen tender voor Area 19 TU Eindhoven
20 maart, 10:35
De opdracht omvat het ontwerp van een nieuw onderzoeks- en onderwijsgebouw en de stedenbouwkundige ontwikkeling van een nieuw campusgebied.
Projecten gezocht voor vijfde Adriaan Dessingprijs
19 maart, 2:42
De tweejaarlijkse architectuurprijs vestigt de aandacht op bijzondere, gerealiseerde plannen in de Zuid-Hollandse gemeenten Westland en Midden-Delfland. Het kan gaan om nieuwbouw, restauratie of landschappelijke projecten.
Friesland brengt duizenden karakteristieke boerderijen in kaart
20 maart, 2:16
Door alle informatie over de voor het landschap kenmerkende gebouwen op één plek te brengen, moet het makkelijker worden om ze te behouden.
ING: bijna de helft van de huiseigenaren stelt verduurzaming uit
20 maart, 12:18
De meeste mensen vinden dat de overheid te weinig doet om dit te stimuleren.
Rekenkamer kraakt resultaten EU-innovatiefonds voor verduurzaming
20 maart, 9:25
Het Innovatiefonds van de Europese Unie levert veel minder resultaat op dan verwacht op het gebied van verduurzaming en innovatie.
Provincie schrapt beoogde locaties windturbines in Groene Hart
19 maart, 1:35
De provincie had twaalf plekken op het oog, maar dat leidde tot maatschappelijk en politiek verzet.
Staten Utrecht willen netcongestie versneld aanpakken
19 maart, 9:44
De fracties wezen op de noodzaak van het zo snel mogelijk realiseren van een hoogspanningsstation dat essentieel is voor het opsplitsen van het elektriciteitsnetwerk tussen de Flevopolder, Gelderland en Utrecht.
Rotterdam wil woningbouw versnellen met pilot ‘Ontwikkelaar aan Zet’
18 maart, 4:33
De gemeente Rotterdam start een pilot waarbij projectontwikkelaars een grotere rol krijgen bij de voorbereiding van woningbouwprojecten.
Ga naar het nieuws-archief
Ronnie Weessies
Redacteur
1
0
0
0
Voor een optimale gebruikservaring plaatst Architectenweb functionele cookies. Wat de verschillende cookies precies doen leggen we uit in een
overzicht
. Cookies van social media kun je optioneel
aanzetten
.
Akkoord
Instellingen
Annuleren
OK
Sluiten
Doorgaan
Inloggen
Maak een gratis persoonlijk account aan
Feedback
Feedback
Wij horen graag jouw feedback. Laat je reactie achter en eventueel jouw e-mail adres.
Reactie
Verstuur