Projecten
Producten
Bedrijven
Vacatures
Agenda
Awards
Podcasts
more_horiz
Videos
Magazine
Favorieten
Profiel
Uitloggen
Abonneer je nu op onze nieuwsbrieven!
Abonneren
Nee, bedankt
Ja, denk met me mee rond de
materialisering van mijn project
Copyright: ANA architecten
Copyright: ANA architecten
De woontoren met het jongerenhospice
Copyright: ANA architecten
Copyright: ANA architecten en Landlab
Copyright: ANA architecten en Landlab
Copyright: ANA architecten
Copyright: ANA architecten
Copyright: Werkstatt
Copyright: Werkstatt
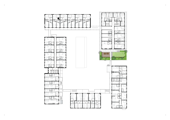
Situatie
Copyright: ANA architecten
Groen plus daktuin
Copyright: Landlab
De gebouwen krijgen een eigen karakter
Copyright: ANA architecten
Begane grond
Copyright: ANA architecten en Landlab
Plattegrond
Copyright: ANA architecten en Landlab
Eerste verdieping
Copyright: ANA architecten en Landlab
Derde verdieping
Copyright: ANA architecten en Landlab
Vijfde verdieping
Copyright: ANA architecten en Landlab
Opgetild maaiveld en collectieve ruimtes
Copyright: ANA architecten
Kernen en ontsluiting
Copyright: ANA architecten
Onderscheidende korrels
Copyright: ANA architecten
De verbindende lichte structuur
Copyright: ANA architecten
Woningtypen
Copyright: ANA architecten
Strijp-S krijgt woonbuurtje met karakteristieken voormalig Philips-terrein
2 maart, 11:31
Binnenkort wordt op Strijp-S in Eindhoven gestart met de bouw van 236 woningen op de kavel Delta. Het ontwerp voor het ensemble gebouwen op de kavel naast het Bosch-gebouw is door
ANA architecten
,
Werkstatt
en
Landlab
en opdrachtgever Trudo opgevat als een buurtje waarin de karakteristieken van het voormalige Philipsterrein op eigen wijze zijn verwerkt.
Het project bestaat uit grote, stevige volumes met grote gevelopeningen en een gevelritmiek die is gebaseerd op de generieke fabrieksgebouwen van Strijp. In kleur verwijzen de gebouwen zowel naar het rood van Philipsdorp als naar het wit van de Hoge Rug en het geel van de oude Philips-bedrijfsschool en het Natlab. Elk gebouw krijgt hierbij een eigen interpretatie.
Zoals op het voormalige abrieksterrein leidingstraten de gebouwen verbonden, worden de volumes binnen Delta verbonden via een lichte structuur. ANA omschrijft deze structuur als een ‘permeabele, gemoedelijke schil die ontmoeting en beweging stimuleert’. Ook het opgetilde maaiveld, collectieve ruimtes en zogeheten leefgalerijen moeten bijdragen aan de sociale cohesie binnen het plan.
Het gevarieerde woonprogramma bestaat uit sociale- en middenhuurwoningen (van studio’s tot vierkamerwoningen), groepswoningen en hospicewoningen voor jongvolwassenen. Het jongerenhospice krijgt een plek op de eerste verdieping van de woontoren en wordt volgens ANA een ‘warm, beschermd thuis voor jongvolwassenen met een intensieve zorgvraag’.
Centraal in het project komt een fietsenstalling en twee collectieve ruimtes waar alle bewoners elkaar kunnen ontmoeten, kunnen klussen, samen kunnen eten of iets anders kunnen organiseren, meldt Trudo. Woongenootschap Klein Strijp krijgt een plek in twee van de zeven gebouwdelen, met in totaal 53 woningen.
Naar verwachting wordt het project medio 2028 opgeleverd. Toekomstige bewoners zijn intensief betrokken bij het ontwerpproces, meldt ANA.
Trefwoorden
ana architecten
strijp-s
werkstatt
woningbouw
landlab
trudo
eindhoven
Locatie
Best gelezen
1
Architect Cees Dam op 93-jarige leeftijd overleden
dinsdag, 14 april
2
Powerhouse Company wint aanbesteding voor verbouwing Vista College Maastricht
dinsdag, 14 april
3
Tien bureaus geselecteerd voor tweede ronde nieuwbouw De Meervaart
woensdag, 15 april
4
Voormalig hoofdkantoor Ferro in M4H verbouwd tot bedrijfsverzamelgebouw
woensdag, 15 april
5
QWA heeft A16 boven Rotterdam eigen identiteit gegeven
maandag, 13 april
Gerelateerde nieuwsberichten
Werkstatt gaat verder zonder medeoprichter Niels Groeneveld
6 maart
Met Lighthouse is voorlopig hoogste toren van Eindhoven opgeleverd
4 december 2025
ANA ontwerpt woongebouw voor 55-plussers in Amsterdam-Zuidoost
8 april
Glasgebouw op Strijp-S in Eindhoven krijgt nieuw leven als woongebouw
5 september 2025
PSV presenteert plannen voor uitbreiding Philips Stadion
20 maart
Woon- en werkgebouw met open karakter op Strijp-S
22 augustus 2025
Anterieure overeenkomst voor bouw woontoren The Four in Eindhoven
16 april
Fase 4 herontwikkeling Strijp-S start met getrapt woonblok
22 januari 2025
Amvest ontvangt Van Abbepenning 2024 voor herontwikkeling Strijp R
4 november 2024
Tribunevormig gebouw van MVRDV met zicht op het hart van Strijp-S
10 mei 2024
Bouwstart voor gebouw Matchbox van KAAN Architecten
19 maart 2024
Eindhovens architectenbureau betrekt kantoor in optopping Veemgebouw
7 augustus 2023
Woontoren van Binst Architects op Strijp-S opgeleverd
12 april 2023
Eek en Dekkers ontwerpt ruimtelijke 'schuurwoning' op Strijp R in Eindhoven
11 november 2022
M+R toont 'flagship office' BDO Zuid-Nederland in kantoorgebouw Strijp S
27 juli 2022
Gebouwenensemble S-West in Eindhoven opgeleverd
22 april 2022
'Verticaal bos' door Stefano Boeri op Strijp S opgeleverd
4 oktober 2021
VMX Architects presenteert opgeleverd woongebouw Haasje Over
26 maart 2021
Villa Fifty-Fifty heeft gelijkwaardige binnen- en buitenruimtes
30 november 2020
Woongebouw met getrapte gevel van diederendirrix in spoorzone Strijp S klaar
11 november 2020
Strijp-S Eindhoven wint NEPROM-prijs
17 mei 2019
Werkstatt gaat verder zonder medeoprichter Niels Groeneveld
6 maart
Met Lighthouse is voorlopig hoogste toren van Eindhoven opgeleverd
4 december 2025
ANA ontwerpt woongebouw voor 55-plussers in Amsterdam-Zuidoost
8 april
Glasgebouw op Strijp-S in Eindhoven krijgt nieuw leven als woongebouw
5 september 2025
PSV presenteert plannen voor uitbreiding Philips Stadion
20 maart
Woon- en werkgebouw met open karakter op Strijp-S
22 augustus 2025
Anterieure overeenkomst voor bouw woontoren The Four in Eindhoven
16 april
Fase 4 herontwikkeling Strijp-S start met getrapt woonblok
22 januari 2025
Amvest ontvangt Van Abbepenning 2024 voor herontwikkeling Strijp R
4 november 2024
Tribunevormig gebouw van MVRDV met zicht op het hart van Strijp-S
10 mei 2024
Bouwstart voor gebouw Matchbox van KAAN Architecten
19 maart 2024
Eindhovens architectenbureau betrekt kantoor in optopping Veemgebouw
7 augustus 2023
Woontoren van Binst Architects op Strijp-S opgeleverd
12 april 2023
Eek en Dekkers ontwerpt ruimtelijke 'schuurwoning' op Strijp R in Eindhoven
11 november 2022
M+R toont 'flagship office' BDO Zuid-Nederland in kantoorgebouw Strijp S
27 juli 2022
Gebouwenensemble S-West in Eindhoven opgeleverd
22 april 2022
'Verticaal bos' door Stefano Boeri op Strijp S opgeleverd
4 oktober 2021
VMX Architects presenteert opgeleverd woongebouw Haasje Over
26 maart 2021
Villa Fifty-Fifty heeft gelijkwaardige binnen- en buitenruimtes
30 november 2020
Woongebouw met getrapte gevel van diederendirrix in spoorzone Strijp S klaar
11 november 2020
Strijp-S Eindhoven wint NEPROM-prijs
17 mei 2019
Toon alles
Andere nieuwsberichten
OMA gebruikt bestaand gebouw als canvas bij renovatie Edo-Tokyo Museum
Gisteren, 15:55
Na een renovatie van bijna vier jaar is het Edo-Tokyo Museum in de Japanse hoofdstad Tokio heropend. OMA nam het uit 1993 stammende gebouw, dat is ontworpen door de Metabolist Kiyonori Kikutake, onder handen.
Winnaars verkiezing Beste Bossche Gebouw 2020–2025 bekend
Gisteren, 14:16
De vakjury en het publiek wezen elk in drie categorieën een winnaar aan. Daarnaast kende vakjury nog een wildcard toe aan een project.
Appartementengebouwen door MIX architectuur vormen sluitstuk Noorderhaven Zutphen
Gisteren, 12:29
In de nieuwe buurt Noorderhaven in Zutphen zijn drie appartementengebouwen naar ontwerp van MIX architectuur opgeleverd. De gebouwen met in totaal tachtig woningen vormen het sluitstuk van de gebiedsontwikkeling.
EUmies Award naar renovatie congrescentrum in Charleroi en tijdelijke ruimtes Sloveens theater
Gisteren, 10:54
Donderdag zijn de winnaars van de EUmies Award 2026 bekendgemaakt. De renovatie van het congrescentrum Charleroi Palais des Expositions won in de belangrijkste categorie architectuur.
Woningbouwzaken krijgen langer voorrang bij Raad van State
Gisteren, 16:49
Om het huizentekort tegen te gaan, blijft de Raad van State woningbouwzaken met voorrang behandelen.
Inspectie positief over verbetering sociale veiligheid TU Delft
Gisteren, 11:36
De TU Delft heeft aanzienlijke stappen gezet om de sociale veiligheid voor medewerkers te verbeteren.
NVM vreest minder nieuwbouw door veranderende voorrang stroomnet
Gisteren, 09:23
Bouwers kunnen, door onzekerheid over welke projecten straks nog maatschappelijke prioriteit krijgen in een bepaalde regio, besluiten om minder nieuwe huizen te bouwen.
Architecten voor restauratie en herbestemming Rivièrahal gekozen
16 april, 12:00
Voor de grootscheepse restauratie en herbestemming van de Rivièrahal in de Rotterdamse Diergaarde Blijdorp zijn Mecanoo en BiermanHenket geselecteerd.
Bewoners aardbevingsgebied Groningen blijven kritisch op herstel
16 april, 10:34
Door de complexiteit en onzekerheid van het jarenlange proces ervaren mensen stress en frustratie.
ING: optoppen en splitsen van woningen steeds minder haalbaar
15 april, 1:22
Het kabinet-Jetten gaat naar verwachting het doel van 15.000 extra woningen per jaar uit verbouwingen niet halen, stelt ING.
Ga naar het nieuws-archief
Ronnie Weessies
Redacteur
0
0
0
0
Voor een optimale gebruikservaring plaatst Architectenweb functionele cookies. Wat de verschillende cookies precies doen leggen we uit in een
overzicht
. Cookies van social media kun je optioneel
aanzetten
.
Akkoord
Instellingen
Annuleren
OK
Sluiten
Doorgaan
Inloggen
Maak een gratis persoonlijk account aan
Feedback
Feedback
Wij horen graag jouw feedback. Laat je reactie achter en eventueel jouw e-mail adres.
Reactie
Verstuur