Projecten
Producten
Bedrijven
Vacatures
Agenda
Awards
Podcasts
more_horiz
Videos
Magazine
Favorieten
Profiel
Uitloggen
Abonneer je nu op onze nieuwsbrieven!
Abonneren
Nee, bedankt
Ja, denk met me mee rond de
materialisering van mijn project
Copyright: Norbert van Onna
Copyright: Norbert van Onna
Copyright: Norbert van Onna
Copyright: Norbert van Onna
Copyright: Norbert van Onna
Copyright: Norbert van Onna
Copyright: Norbert van Onna
Copyright: Norbert van Onna
Copyright: Norbert van Onna
Copyright: Norbert van Onna
Copyright: Norbert van Onna
Copyright: Norbert van Onna
Copyright: De Bever Architecten
Copyright: De Bever Architecten
Copyright: De Bever Architecten
Copyright: De Bever Architecten
Copyright: De Bever Architecten
Copyright: De Bever Architecten
Copyright: De Bever Architecten
Copyright: De Bever Architecten
Copyright: De Bever Architecten
Woon- en werkgebouw met open karakter op Strijp-S
22 augustus 2025, 11:00
Op Strijp-S in Eindhoven is afgelopen jaar woon- en werkgebouw Donna opgeleverd. Het pand, dat is ontworpen door
De Bever Architecten
, bied plek aan zestig woon- en werklofts en 12.500 vierkante meter kantoorruimte. Net als veel andere gebouwen op het voormalige Philips-terrein heeft het bureau het industriële en rauwe karakter van het gebied weerspiegeld in het ontwerp.
Dona is gebouwd op de plek van een tijdelijke parkeergarage naast het Klokgebouw. De dubbelhoge entree met daarboven een publieke buitenruimte moeten het pand een uitnodigend karakter geven, terwijl de grote raampartijen van het gebouw voor transparantie en uitzicht voor de bewoners naar het Ketelplein zorgen. Door het open karakter wijkt het gebouw af van de links en rechts gelegen relatief gesloten gebouwen.
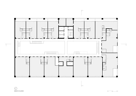
Mede door de grote vloeroverspanningen hebben de gebruikers veel vrijheid om de ruimte naar hun behoefte in te richten. Een groot gedeelte van de binnenruimte, midden in het gebouw is flexibel in te richten en heeft een semi-privaat, -publiek karakter. Op deze verdiepingen, van de begane grond tot en met de verdieping zijn grote open ruimtes met vides en trappen gecreëerd die een wisselend uitzicht op de stad bieden.
Het betonskelet en grote delen van de installatietechniek zijn zichtbaar gelaten, wat het ‘robuuste’ karakter van het gebouw versterkt. De bovenste vier verdiepingen (de achtste tot en met elfde verdieping) zijn bestemd voor werkstudio’s en appartementen, waarvan de plattegrond een open karakter heeft. De appartementen op de zesde tot en met negende verdieping zijn bereikbaar via speciale entrees op de begane grond. Op de zesde verdieping bevindt zich daarnaast een centraal gelegen, als tuin ingerichte gezamenlijk buitenruimte.
Het totale programma omvat 20.000 vierkante meter. Het woonprogramma is opgedeeld in 36 woonlofts en 24 werklofts.
Trefwoorden
strjp-s
de bever architecten
strijp s
woningbouw
eindhoven
Locatie
Best gelezen
1
44 woningen op bosrijke locatie in Driebergen
vrijdag, 15 mei
2
Parkeerplein naast Tilburgse schouwburg maakt plaats voor multifunctionele gebouwen
woensdag, 13 mei
3
Neprom-prijs 2026 toegekend aan De Groene Loper Maastricht
maandag, 11 mei
4
Vandersalm Architecten herinterpreteert historisch erf bij Zwolse stadsboerderij
maandag, 11 mei
5
Woningbouwproject Switi trekt 'verloren strook' alsnog bij de omgeving
maandag, 11 mei
Gerelateerde nieuwsberichten
Glasgebouw op Strijp-S in Eindhoven krijgt nieuw leven als woongebouw
5 september 2025
Fase 4 herontwikkeling Strijp-S start met getrapt woonblok
22 januari 2025
Met Lighthouse is voorlopig hoogste toren van Eindhoven opgeleverd
4 december 2025
Amvest ontvangt Van Abbepenning 2024 voor herontwikkeling Strijp R
4 november 2024
Strijp-S krijgt woonbuurtje met karakteristieken voormalig Philips-terrein
2 maart
Realisatie woningbouwproject INCK in Eindhoven aanstaande
31 oktober 2025
Tribunevormig gebouw van MVRDV met zicht op het hart van Strijp-S
10 mei 2024
Eindhovens architectenbureau betrekt kantoor in optopping Veemgebouw
7 augustus 2023
PSV presenteert plannen voor uitbreiding Philips Stadion
20 maart
Woontoren van Binst Architects op Strijp-S opgeleverd
12 april 2023
Eek en Dekkers ontwerpt ruimtelijke 'schuurwoning' op Strijp R in Eindhoven
11 november 2022
Station Eindhoven krijgt ondergronds busstation en nieuwe hal aan de noordzijde
14 januari
M+R toont 'flagship office' BDO Zuid-Nederland in kantoorgebouw Strijp S
27 juli 2022
Gebouwenensemble S-West in Eindhoven opgeleverd
22 april 2022
'Verticaal bos' door Stefano Boeri op Strijp S opgeleverd
4 oktober 2021
Woningen op de locatie van de voormalige beeldbuizenfabriek in Eindhoven
23 augustus 2021
Flexibele werkomgeving voor scale-ups in oude Philips-kantine
22 april 2021
VMX Architects presenteert opgeleverd woongebouw Haasje Over
26 maart 2021
Villa Fifty-Fifty heeft gelijkwaardige binnen- en buitenruimtes
30 november 2020
Woongebouw met getrapte gevel van diederendirrix in spoorzone Strijp S klaar
11 november 2020
Bouw Chinees paviljoen op Strijp S Eindhoven van start
30 oktober 2020
Nieuw kantoorgebouw als schakel tussen stad en Strijp-S
1 juli 2020
Strijp-S Eindhoven wint NEPROM-prijs
17 mei 2019
Glasgebouw op Strijp-S in Eindhoven krijgt nieuw leven als woongebouw
5 september 2025
Fase 4 herontwikkeling Strijp-S start met getrapt woonblok
22 januari 2025
Met Lighthouse is voorlopig hoogste toren van Eindhoven opgeleverd
4 december 2025
Amvest ontvangt Van Abbepenning 2024 voor herontwikkeling Strijp R
4 november 2024
Strijp-S krijgt woonbuurtje met karakteristieken voormalig Philips-terrein
2 maart
Realisatie woningbouwproject INCK in Eindhoven aanstaande
31 oktober 2025
Tribunevormig gebouw van MVRDV met zicht op het hart van Strijp-S
10 mei 2024
Eindhovens architectenbureau betrekt kantoor in optopping Veemgebouw
7 augustus 2023
PSV presenteert plannen voor uitbreiding Philips Stadion
20 maart
Woontoren van Binst Architects op Strijp-S opgeleverd
12 april 2023
Eek en Dekkers ontwerpt ruimtelijke 'schuurwoning' op Strijp R in Eindhoven
11 november 2022
Station Eindhoven krijgt ondergronds busstation en nieuwe hal aan de noordzijde
14 januari
M+R toont 'flagship office' BDO Zuid-Nederland in kantoorgebouw Strijp S
27 juli 2022
Gebouwenensemble S-West in Eindhoven opgeleverd
22 april 2022
'Verticaal bos' door Stefano Boeri op Strijp S opgeleverd
4 oktober 2021
Woningen op de locatie van de voormalige beeldbuizenfabriek in Eindhoven
23 augustus 2021
Flexibele werkomgeving voor scale-ups in oude Philips-kantine
22 april 2021
VMX Architects presenteert opgeleverd woongebouw Haasje Over
26 maart 2021
Villa Fifty-Fifty heeft gelijkwaardige binnen- en buitenruimtes
30 november 2020
Woongebouw met getrapte gevel van diederendirrix in spoorzone Strijp S klaar
11 november 2020
Bouw Chinees paviljoen op Strijp S Eindhoven van start
30 oktober 2020
Nieuw kantoorgebouw als schakel tussen stad en Strijp-S
1 juli 2020
Strijp-S Eindhoven wint NEPROM-prijs
17 mei 2019
Toon alles
Gerelateerde podcasts
Toren van Babel
Gesprek met Fieke van den Beuken over sociale woningen in hoogbouw
14 oktober 2022
Gesprek met Annemariken Hilberink en Geert Bosch over gewortelde architectuur
3 februari 2022
Andere nieuwsberichten
Tien nominaties voor NRP Gulden Feniks 2026
15 mei, 2:20
In november wijst de jury een aantal winnaars aan uit deze selectie voor de nationale prijs voor renovatie en transformatie van de gebouwde omgeving.
Nieuwe Instituut brengt rijkscollectie architectuur en stedenbouw tot leven in Collection Gallery
15 mei, 1:17
Op donderdag 18 juni opent het Nieuwe Instituut de zogeheten Collection Gallery. In deze nieuwe interactieve ruimte wil de instelling in Rotterdam de Rijkscollectie voor Nederlandse Architectuur en Stedenbouw tot leven brengen.
44 woningen op bosrijke locatie in Driebergen
15 mei, 9:26
De gemeente Utrechtse Heuvelrug selecteerde het plan Bosrand Heidestein. Het team dat het ontwerp en de realisatie verzorgt, bestaat uit KRKTR Projectontwikkeling, Reuvers Ontwik-keling en Bouw, MIX architectuur, MAAK space, Merosch en Kwirkey.
Vijf finalisten voor Heuvelinkprijs 2026
13 mei, 3:06
De finalisten voor de Heuvelinkprijs 2026 zijn bekend. Vijf projecten komen in aanmerking voor deze editie van de tweejaarlijkse Arnhemse nieuwbouwprijs.
ITA Ensemble speelt 'De Architect' van sterregisseur Rebecca Frecknall
15 mei, 3:11
De voorstelling is een hedendaagse bewerking van Henirik Ibsens 'Bouwmeester Solness'.
Commissie: milieustudie Schiphol schiet tekort voor omwonenden
15 mei, 12:08
De Commissie voor de milieueffectrapportage stelt zelfs dat het rapport herzien zou moeten worden.
Koen Pörtzgen benoemd tot partner bij Zecc Architecten
15 mei, 10:15
Samen met Marnix van der Meer (54) en Bart Kellerhuis (47) vormt de 39-jarige Pörtzgen vanaf dit jaar de directie van het Utrechtse bureau.
Consortium met RxDomi en TU/e ontwikkelt netbewuste woning
13 mei, 2:56
In het project CoLiBRIE ontwikkelt een consortium, met onder meer RxDomi en TU/e, een nieuw type woning die comfortabel, duurzaam en betaalbaar is, zonder het energienet extra te belasten.
Minimaal half miljard extra nodig voor verbreding A27
13 mei, 1:38
Op het traject van 47 kilometer moeten extra rijbanen komen om de dagelijkse files te verlichten. Ook worden bruggen vervangen.
RVO constateert laagste groei windenergie op land in jaren
13 mei, 10:02
De uitbreiding van windenergie op land in Nederland is op een historisch laag niveau.
Ga naar het nieuws-archief
1
0
0
0
Voor een optimale gebruikservaring plaatst Architectenweb functionele cookies. Wat de verschillende cookies precies doen leggen we uit in een
overzicht
. Cookies van social media kun je optioneel
aanzetten
.
Akkoord
Instellingen
Annuleren
OK
Sluiten
Doorgaan
Inloggen
Maak een gratis persoonlijk account aan
Feedback
Feedback
Wij horen graag jouw feedback. Laat je reactie achter en eventueel jouw e-mail adres.
Reactie
Verstuur