Projecten
Producten
Bedrijven
Vacatures
Agenda
Awards
Podcasts
more_horiz
Videos
Magazine
Favorieten
Profiel
Uitloggen
Abonneer je nu op onze nieuwsbrieven!
Abonneren
Nee, bedankt
Ja, denk met me mee rond de
materialisering van mijn project
Producten
Copyright: Concrete Architectural Associates
Copyright: Concrete Architectural Associates
Copyright: Concrete Architectural Associates
Copyright: Concrete Architectural Associates
Copyright: Concrete Architectural Associates
Copyright: Concrete Architectural Associates
Copyright: Concrete Architectural Associates
Copyright: Concrete Architectural Associates
Copyright: Concrete Architectural Associates
Copyright: Concrete Architectural Associates
Copyright: Concrete Architectural Associates
Copyright: Concrete Architectural Associates
Copyright: Concrete Architectural Associates
Copyright: Concrete Architectural Associates
Copyright: Concrete Architectural Associates
Copyright: Concrete Architectural Associates
Copyright: Concrete Architectural Associates
Copyright: Concrete Architectural Associates
Copyright: Concrete Architectural Associates
Producttags
AAN
UIT
Jeroen Pit Huis
14 juni 2022
1
0
0
0
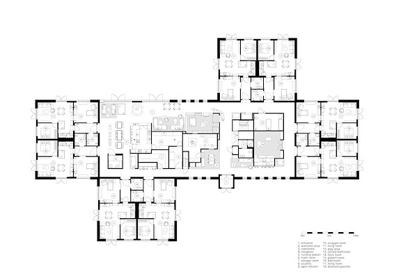
Jeroen Pit Huis is a healthcare home for chronically, seriously ill children and their families, that serves as a transition home between intensive care units and their family homes.
Located in the Southeast of Amsterdam on the ground of Amsterdam Academic Medical Centre, the 1700 m2 space of Jeroen Pit Huis has 8 apartments connected by a communal living room with a communal kitchen, playroom, physio area, nursing station, snug room, central bathroom, and meeting spaces. The transition home is a pioneering concept in healthcare and provides all the necessary medical help for the children, who are dependent on high-quality medical and nursing care and their families while offering the comfort of home. 24/7 care support is available and parents get trained on how to use medical tools to take care of their children in a home situation.
Concrete team started by programmatically cleaning the whole floor plan and they rebuilt it from the perspective of the Jeroen Pit Huis purpose, facilitating all medical equipment of a hospital in a home environment. This perspective helped the Concrete team place a heart in the middle of the floor plan. The heart represents home, life, connection, and living together. The most relevant social spaces were located in connection with the biggest windows and orientated towards the terrace. Surrounded by the 8 apartments, the heart of the Jeroen Pit Huis became the connector, conversation starter, and the place to live, share and support each other for families going through a difficult time.
The more functional areas such as a back of house kitchen, storage spaces and trash room are positioned in the less attractive resting spaces within the building. The technical spaces and offices of the doctors and nurses are located close to the entrance/ arrival with the smart opening and windows for emergencies. The more intimate spaces with lower ceilings like the kitchen and the playroom are in contrast to more open double-height spaces where visitors can experience the whole house-shaped building…
Functions created the volume of the inner house, with no corridors without a purpose or dead ends… Contributing to the corridor experience, the wheelchair parking units are lined and marked with graphic stickers on the floor to make them part of the design and everyday life. There are several points where windows are located to keep the sight connection between the medical staff and the patients without making them feel watched or followed.
Healthcare spaces have rules and regulations that require a different design approach. Creating a healthcare space that feels like home required using a different type of fabric (anti-bacterial), enlarging the elevator to a hospital-sized elevator, or even using a vinyl floor to follow the hygiene requirements. Concrete played with the visibility of hospital-like elements and hid them while making them easily accessible.
Stel jezelf kort voor! Dan weet het betreffende bedrijf wie hun model gedownload heeft.
Wil je niet bij elke download jouw gegevens in hoeven voeren?
Klik dan hier om in te loggen
.
Heb je nog geen account?
Maak dan hier een gratis account aan
.
Voornaam
Achternaam
E-mailadres
Downloaden
Wanneer je modellen downloadt op Architectenweb.nl worden relevante gegevens van jou – zoals jouw naam en e-mailadres – met het betreffende bedrijf gedeeld. Meer hierover lees je in ons
privacybeleid
.
Locatie
Trefwoorden
transition home
healthcare space
interior design
family home
jeroen pit huis
concrete
Architectenweb Awards 2022
Zorggebouw van het Jaar
Winnaar
Bekijk alle genomineerden
Concrete Architectural Associates
Neem contact op
Projectdata
Staat van realisatie
Voltooid
Start ontwerpproces
2019
Start bouw
2021
Oplevering
2022
Ingebruikname
2022
Plaats
Amsterdam
Meewerkende partijen
Architect
ontwerp door Brique architecten, uitwerking door TPAGH architecten bv
Interieurarchitect
Concrete Architects
Ontwerpteam
Rob Wagemans, Melanie Knu¨wer, Jolijn Vonk, Jorien Wiltenburg, Minouk Balster, Sofie Ruytenberg, Sylvie Meuffels, Laudi Holster, Jana Bickert
Opdrachtgever
jeroen pit huis
Projectmanagement
Cresenta
Beeldend kunstenaar
Peim van der Sloot, Thomas Trum
Interieurbouwer
Inris bv
Leveranciers
Overig
execution by 3D Creation Lab, De Mandemakers Groep, Royal Mosa
Vloeren
Tarkett BV
Neem contact op met
Concrete Architectural Associates
Je bent momenteel niet ingelogd. Hierdoor is het alleen mogelijk om meer informatie per e-mail op te vragen. Wil je liever gebeld worden of documentatie per post ontvangen?
Klik dan hier om in te loggen
.
Heb je nog geen account?
Maak dan hier een gratis account aan
.
Voornaam
Achternaam
E-mailadres
Opmerkingen
Bij iedere aanvraag worden relevante gegevens van jou gedeeld met het betreffende bedrijf. Meer hierover lees je in ons
privacybeleid
.
Ja, denk met me mee rond de
materialisering van mijn project
Meer projecten van Concrete Architectural Associates
Oikoa Massage Boutique
Concrete Architectural Associates
Interieur Loetje
Concrete Architectural Associates
Citizen M-Hotel
Concrete Architectural Associates
van Beuningenplein
Concrete Architectural Associates
pearls & caviar
Concrete Architectural Associates
van Beuningenplein
Concrete Architectural Associates
Oikoa Massage Boutique
Concrete Architectural Associates
Interieur Loetje
Concrete Architectural Associates
Citizen M-Hotel
Concrete Architectural Associates
van Beuningenplein
Concrete Architectural Associates
pearls & caviar
Concrete Architectural Associates
van Beuningenplein
Concrete Architectural Associates
Toon alles
Gerelateerde nieuwsberichten
Concrete ontwerpt woongebouw in Philadelphia met gevelkunst door tattoo-artist Henk Schiffmacher
23 december 2025
Moos Appelweg wint Built by Nature Prize 2025
21 oktober 2025
Geschiedenis van kleurrijke wijk in Dublin inspireert concrete voor interieurontwerp Liberties House
9 oktober 2025
Concrete creëert een houten landschap in het atrium van Tripolis-Park
10 oktober 2024
Brasa Village krijgt modulair houten woongebouw van acht lagen
11 juni 2024
Eerste project met modulaire MOOS-woningen van Concrete opgeleverd
21 december 2023
Concrete ontwerpt nieuwe vakantiewoning voor Center Parcs
10 november 2023
Nieuw interieur van sterrenrestaurant voor optimale eetervaring
4 april 2023
Jeroen Pit Huis uitgeroepen tot Zorggebouw van het Jaar 2022
12 oktober 2022
Eerste woningbouwproject van concrete op Manhattan opgeleverd
8 juli 2022
Nederlandse hotelketen CitizenM haalt miljard op voor uitbreiding
10 november 2021
Restaurant en evenementenzaal Depot Boijmans gepresenteerd
1 oktober 2021
Circulair en betaalbaar concept voor modulaire woningbouw MOOS wint competitie
13 juli 2021
Zoku opent vestiging in Kopenhagen
26 april 2021
Shoji-schermen en neonlicht in W Hotel Osaka
24 maart 2021
CitizenM opent eerste hotel aan de westkust van de VS
18 augustus 2020
Flexibel café-restaurant voor Depot Boijmans van Beuningen
9 juli 2020
Aziatisch streetfood onder rode neon en parasols
17 maart 2020
Concrete schept Nederlands landschap in KLM Crown Lounge
29 november 2019
Concrete spreekt bij evenement van Jung
2 oktober 2019
US-CH Junior Architect
Oost-mediterraan restaurant in voormalige Citroëngarage
30 augustus 2019
citizenM-hotel in oud bankgebouw Amsterdam geopend
31 juli 2019
Hotel bij Kauwgomballenfabriek officieel geopend
10 januari 2019
Catharinabrug Leiden wint European Concrete Award
5 november 2018
Concrete transformeert voormalige tabaksfabriek in Florence
27 juni 2018
AIT Award voor bezoekerscentrum Park Vijversburg
27 maart 2018
Eten aan open keuken in nieuw restaurant concrete
8 februari 2018
Woontoren Urby Jersey City opgeleverd
24 mei 2017
Daklandschap als 'clubhuis' bewoners toren
15 mei 2017
Uitbreiding voor KLM Crown Lounge Schiphol
24 januari 2017
2016: belangrijkste projecten
23 december 2016
Tweede Londense hotel CitizenM gerealiseerd
8 augustus 2016
Stadsschouwburg: ruimte voor Dudok en gebruiker
27 januari 2016
INK Hotel in Amsterdam geopend
5 juni 2015
Hotelconcept gaat uit van woon-werkruimte
26 mei 2015
Derde URL-project concrete in VS van start
16 februari 2015
Congres: voorbij de traditionele woontoren en de pure CPO
30 januari 2015
Architectenweb houdt dubbelcongres over woningbouw
20 januari 2015
Nieuw Bijenkorf-restaurant van concrete
12 januari 2015
Winnaars Concrete Design Competition bekend
17 juni 2014
Interieur van concrete voor Zwitsers W-hotel
22 januari 2014
Bouw van Concretes Harborside Plaza gestart
15 januari 2014
Supperclub Dubai ontworpen door Concrete
23 juli 2013
Shortlist WAF Awards 2013 bekend
9 juli 2013
Concrete ontwerpt KauwgomBallenFabriek-hotel
4 juli 2013
Bouwstart URL-project Concrete in New York
3 juli 2013
Concrete geselecteerd voor ontwerp WTC
20 juni 2013
Concrete gekozen tot Architect van het Jaar 2012
14 december 2012
Concrete ontwerpt Spaans restaurant in China
1 november 2012
Vierde citizenM hotel staat in Londen
29 juni 2012
Winnaars Concrete Design Awards bekend
12 juni 2012
Concrete ontwerpt woontorens Jersey City
24 april 2012
Beste restaurantontwerp 2011 door concrete
5 april 2012
Verplaatsbaar interieur voor school Amsterdam
20 maart 2012
Van Beuningenplein Amsterdam-West geopend
13 mei 2011
Designhotel Canal House geopend
6 mei 2011
Noordwestzes claimt plan REM-eiland
30 maart 2011
REM-eiland arriveert in Amsterdam
29 maart 2011
REM-eiland vertrekt naar Amsterdam
23 maart 2011
Twee winnaars AM NAi Prijs
13 december 2010
Werkplek op Wallen in een nieuw jasje
28 april 2010
Nieuwe bibliotheek Almere officieel geopend
24 maart 2010
Nieuwe toekomst voor REM-eiland
14 augustus 2009
Europese Betonprijs voor tunnel Rodenrijs
28 november 2008
Winnaars Concrete Design 2007/08 bekend
11 juli 2008
Concrete ontwerpt woongebouw in Philadelphia met gevelkunst door tattoo-artist Henk Schiffmacher
23 december 2025
Moos Appelweg wint Built by Nature Prize 2025
21 oktober 2025
Geschiedenis van kleurrijke wijk in Dublin inspireert concrete voor interieurontwerp Liberties House
9 oktober 2025
Concrete creëert een houten landschap in het atrium van Tripolis-Park
10 oktober 2024
Brasa Village krijgt modulair houten woongebouw van acht lagen
11 juni 2024
Eerste project met modulaire MOOS-woningen van Concrete opgeleverd
21 december 2023
Concrete ontwerpt nieuwe vakantiewoning voor Center Parcs
10 november 2023
Nieuw interieur van sterrenrestaurant voor optimale eetervaring
4 april 2023
Jeroen Pit Huis uitgeroepen tot Zorggebouw van het Jaar 2022
12 oktober 2022
Eerste woningbouwproject van concrete op Manhattan opgeleverd
8 juli 2022
Nederlandse hotelketen CitizenM haalt miljard op voor uitbreiding
10 november 2021
Restaurant en evenementenzaal Depot Boijmans gepresenteerd
1 oktober 2021
Circulair en betaalbaar concept voor modulaire woningbouw MOOS wint competitie
13 juli 2021
Zoku opent vestiging in Kopenhagen
26 april 2021
Shoji-schermen en neonlicht in W Hotel Osaka
24 maart 2021
CitizenM opent eerste hotel aan de westkust van de VS
18 augustus 2020
Flexibel café-restaurant voor Depot Boijmans van Beuningen
9 juli 2020
Aziatisch streetfood onder rode neon en parasols
17 maart 2020
Concrete schept Nederlands landschap in KLM Crown Lounge
29 november 2019
Concrete spreekt bij evenement van Jung
2 oktober 2019
US-CH Junior Architect
Oost-mediterraan restaurant in voormalige Citroëngarage
30 augustus 2019
citizenM-hotel in oud bankgebouw Amsterdam geopend
31 juli 2019
Hotel bij Kauwgomballenfabriek officieel geopend
10 januari 2019
Catharinabrug Leiden wint European Concrete Award
5 november 2018
Concrete transformeert voormalige tabaksfabriek in Florence
27 juni 2018
AIT Award voor bezoekerscentrum Park Vijversburg
27 maart 2018
Eten aan open keuken in nieuw restaurant concrete
8 februari 2018
Woontoren Urby Jersey City opgeleverd
24 mei 2017
Daklandschap als 'clubhuis' bewoners toren
15 mei 2017
Uitbreiding voor KLM Crown Lounge Schiphol
24 januari 2017
2016: belangrijkste projecten
23 december 2016
Tweede Londense hotel CitizenM gerealiseerd
8 augustus 2016
Stadsschouwburg: ruimte voor Dudok en gebruiker
27 januari 2016
INK Hotel in Amsterdam geopend
5 juni 2015
Hotelconcept gaat uit van woon-werkruimte
26 mei 2015
Derde URL-project concrete in VS van start
16 februari 2015
Congres: voorbij de traditionele woontoren en de pure CPO
30 januari 2015
Architectenweb houdt dubbelcongres over woningbouw
20 januari 2015
Nieuw Bijenkorf-restaurant van concrete
12 januari 2015
Winnaars Concrete Design Competition bekend
17 juni 2014
Interieur van concrete voor Zwitsers W-hotel
22 januari 2014
Bouw van Concretes Harborside Plaza gestart
15 januari 2014
Supperclub Dubai ontworpen door Concrete
23 juli 2013
Shortlist WAF Awards 2013 bekend
9 juli 2013
Concrete ontwerpt KauwgomBallenFabriek-hotel
4 juli 2013
Bouwstart URL-project Concrete in New York
3 juli 2013
Concrete geselecteerd voor ontwerp WTC
20 juni 2013
Concrete gekozen tot Architect van het Jaar 2012
14 december 2012
Concrete ontwerpt Spaans restaurant in China
1 november 2012
Vierde citizenM hotel staat in Londen
29 juni 2012
Winnaars Concrete Design Awards bekend
12 juni 2012
Concrete ontwerpt woontorens Jersey City
24 april 2012
Beste restaurantontwerp 2011 door concrete
5 april 2012
Verplaatsbaar interieur voor school Amsterdam
20 maart 2012
Van Beuningenplein Amsterdam-West geopend
13 mei 2011
Designhotel Canal House geopend
6 mei 2011
Noordwestzes claimt plan REM-eiland
30 maart 2011
REM-eiland arriveert in Amsterdam
29 maart 2011
REM-eiland vertrekt naar Amsterdam
23 maart 2011
Twee winnaars AM NAi Prijs
13 december 2010
Werkplek op Wallen in een nieuw jasje
28 april 2010
Nieuwe bibliotheek Almere officieel geopend
24 maart 2010
Nieuwe toekomst voor REM-eiland
14 augustus 2009
Europese Betonprijs voor tunnel Rodenrijs
28 november 2008
Winnaars Concrete Design 2007/08 bekend
11 juli 2008
Toon alles
Gerelateerde producten
iD Inspiration 55
Flexibele, duurzame en realistische PVC-vloer
Tarkett BV
Vloer- en wandbekleding voor natte ruimtes
Tarkett BV
Andere Projecten
De stad van Aedes: waar werken wonen wordt
Tétris Design & Build
The Family Delft
Houthandel van Dam
Fraké Noir gevelbekleding op sanitairgebouw
Houthandel van Dam
Houtlook lamellen voor aantrekkelijke nieuwbouw
Renson
De Toerist in Breda
DUCO Ventilation & Sun Control
Solarlux vouwwanden - Zuidkade Scheveningen
Solarlux Nederland B.V.
Multifunctioneel gebouw met aluminium vliesgevel
Aliplast Aluminium Systems
Van gesloten gevel naar transparant visitekaartje
Rockpanel
Den Hartogh Basecamp (Video)
Schüco Nederland
Architectuur met een speels karakter
Caparol
Brandvertragende houten gevelbekleding Hortus Ludi
Foreco Houtproducten
Brouwerij Duvel Moortgat, Breendonk
Jansen
Ga naar het projecten-overzicht
Voor een optimale gebruikservaring plaatst Architectenweb functionele cookies. Wat de verschillende cookies precies doen leggen we uit in een
overzicht
. Cookies van social media kun je optioneel
aanzetten
.
Akkoord
Instellingen
Annuleren
OK
Sluiten
Doorgaan
Inloggen
Maak een gratis persoonlijk account aan
Feedback
Feedback
Wij horen graag jouw feedback. Laat je reactie achter en eventueel jouw e-mail adres.
Reactie
Verstuur