Projecten
Producten
Bedrijven
Vacatures
Agenda
Awards
Podcasts
more_horiz
Videos
Magazine
Thema's
Favorieten
Profiel
Uitloggen
Nieuw
Populair
Toon alles
Architectenweb magazine #14
Architectenweb magazine #13
Publieke gebouwen
Architectenweb magazine #12
Kantoren
Architectenweb magazine #11
Scholen
Architectenweb magazine #10
Zorg
Architectenweb magazine #14
Architectenweb magazine #10
Zorg
Architectenweb magazine #12
Kantoren
Architectenweb magazine #13
Publieke gebouwen
Architectenweb magazine #6
Transformatie en Renovatie
Om direct naar je favorieten te kunnen gaan is het nodig om eerst in te loggen.
Nieuw
Architectenweb Awards 2025
Architectenweb Awards 2024
Architectenweb Awards 2023
Architectenweb Awards 2022
Architectenweb Awards 2021
Architectenweb Awards 2020
Architectenweb Awards 2019
Architectenweb Awards 2018
Om direct naar je favorieten te kunnen gaan is het nodig om eerst in te loggen.
Nieuw
Populair
Favorieten
Toon alles
Vakwerk Architecten
Nominatie voor de prijs voor Architect van het Jaar 2025
Sanne van Manen
Nominatie voor de prijs voor Architect van het Jaar 2025
KSA
Nominatie voor de prijs voor Architect van het Jaar 2025
KRFT
Nominatie voor de prijs voor Architect van het Jaar 2025
Joost Ector
Nominatie voor de prijs voor Architect van het Jaar 2025
Prijsuitreiking Architectenweb Awards 2024
Impressie van een feestelijke avond
Martens, Willems & Humblé Architecten
Nominatie voor de prijs voor Architect van het Jaar 2024
Uitreiking van Architectenweb Awards 2020
Impressie van de prijsuitreiking via Zoom
De Zwarte Hond
Nominatie voor de prijs voor Architect van het Jaar 2024
Avond met De Zwarte Hond
Symposium
Om direct naar je favorieten te kunnen gaan is het nodig om eerst in te loggen.
Nieuw
Populair
Categorieën
Favorieten
Toon alles
ST1centrum
Dé specialist op het gebied van gevelstenen en dakpannen met showrooms in Amsterdam en Meppel
Studio Massimo
Architecture & Nature
Brandpreventie Academy BV
HoutPro+
Cay Circulaire Keukens
Circulaire keukens en pantry's
Studio Kirsten Reith
Interieurontwerp
Interior & Co
Studio175
Interieuradvies in regio Utrecht
Orange Automatic Doors
Cay Circulaire Keukens
Circulaire keukens en pantry's
Studio Kirsten Reith
Interieurontwerp
Brandpreventie Academy BV
Architecten
Architectuur
Mobiliteit en infrastructuur
Stedenbouw en landschapsarchitectuur
Leveranciers
Gevels
Daken
Ramen en deuren
Trappen, liften en balustrades
Binnenwanden
Vloeren
Plafonds
Verlichting
Sanitair
Projectinrichting
Installaties
Constructies
Buitenruimte
Software
Adviseurs
Bestekschrijvers
Bouwmanagement
Installatie adviseurs E
Bouwfysica
Calculators
Installatie adviseurs G/W
Bouwkundig tekenwerk
Constructeurs
Lichtadviseurs
Adviseur beveiliging
Juristen
Intermediairs, Payrolling
Aannemers
Overig
Presentatie
Instellingen / onderwijs
Overig
Om direct naar je favorieten te kunnen gaan is het nodig om eerst in te loggen.
Nieuw
Populair
Favorieten
Toon alles
Gesprek met Stephan Sliepenbeek over hoogbouw in Amstel III
Gesprek met Ellen van Bueren over gebiedsontwikkeling en hoogbouw
Gesprek met Ma Yansong over ontwerpen die emotie oproepen
Gesprek met Paul de Ruiter over innovatieve en duurzame hoogbouw
Gesprek met Pi de Bruijn over zijn ontwerpen voor de Tweede Kamer toen en nu
Gesprek met Ellen van Bueren over gebiedsontwikkeling en hoogbouw
Gesprek met Oresti Sarafopoulos over het ontwerpen van een kantoorgebouw met bijna geen installaties
Gesprek met Stijn Steenbakkers over verdichting en hoogbouw in Eindhoven
Gesprek met Pi de Bruijn over zijn ontwerpen voor de Tweede Kamer toen en nu
Gesprek met Paul de Ruiter over innovatieve en duurzame hoogbouw
Om direct naar je favorieten te kunnen gaan is het nodig om eerst in te loggen.
Nieuw
Populair
Categorieën
Favorieten
Toon alles
Smart Lighting voor kantoorcampus Tripolis Park
700 modulaire lichtstraten gebruikt Icône kantoor
Buitenzonwering Cartesius Solo
RVS Staalkabelnetten voor Parel in de Polder
Duurzame modernisering met EcoBrick gevelstenen
Boekweitkamp, Den Haag
Villa van Hout
Exclusieve wooneenheden
CPO Heuvelrug
De Grote Zwaan, Nijmegen
Architectuur
Woningbouw
Zorg
Hotels
Restaurants en café’s
Winkels
Sportgebouwen
Culturele gebouwen
Overheidsgebouwen
Scholen
Kantoren
Bedrijfsgebouwen
Paviljoens en kunst
Overig
Mobiliteit en infrastructuur
Trein- en metrostations
Luchthavens
Busstations
Parkeergarages
Fietsparkeren
Wegen
Bruggen
Water
Energie
Tankstations en laadstations
Waterzuivering en afvalverwerking
Overig
Stedenbouw en landschapsarchitectuur
Regionale visies
Gebiedsvisies
Plannen stedelijk weefsel
Amusementsparken en dierentuinen
Lichtontwerpen
Openbare ruimte
Pleinen
Parken
Tuinen
Speelplaatsen
Uitkijktorens
Overige (bijv. begraafplaatsen)
Om direct naar je favorieten te kunnen gaan is het nodig om eerst in te loggen.
Nieuw
Populair
Categorieën
Favorieten
Toon alles
DINrail Zigbee dimmer
Centrale dimoplossing voor slimme verlichting
De nieuwe Gira G1.
Sneller. Groter. Sterker.
HomeComfort
Create your ambiance in a touch
Next Generation USB C opladers
De Next Generation USB C opladers: snel, compact and efficiënt
D31TDV- en D31TDH IP-video deurintercom systemen
Innovatie voor appartementencomplexen en grote gebouwen
StoTherm Wood: cementvrij gevelsysteem met houtvezelisolatie
Biobased gevelisolatie met natuurlijke prestaties
Akoestisch kussen.
Ervaar de ultime natuurlijke oplossing voor akoestiek problemen.
Lumiglaze – Het vlakglas van VELUX Commercial
Een nieuw tijdperk in daglichtontwerp – minimalistisch, functioneel en klaar voor de toekomst.
Knauf MaxSpace
Minder wand, méér ruimte. Het ideale profiel voor meer winst per m²
Veelzijdig straatmeubilair
Van openbare ruimte naar (be)leefomgeving
Gevels
Gevelbekleding
Vliesgevels
Zonwering buiten
Isolatie
Gevelconstructies
Signing
Overig
Daken
Dakafwerkingen
Dakisolatie
Dakconstructies
Dakranden, dakgoten en HWA's
Dakramen
Lichtkoepels
Lichtstraten
Schoorstenen
Overig
Dakluiken
Ramen en deuren
Raam- en deursystemen / kozijnen
Vliesgevels
Hang- en sluitwerk
Beveiliging en luiken
Dorpels en vensterbanken
Lateien
Roosters
Glas
Dakramen
Dakkoepels
Lichtstraten
Zonwering buiten
Zonwering binnen
Buitendeuren
Binnendeuren
Postvakken en brievenbussen
Overig
Dakluiken
Trappen, liften en balustrades
Trappen
Roltrappen
Liften
Balustrades en hekwerken
Galerijen
Binnenwanden
Binnenwanden
Wandafwerking
Vloeren
Constructieve vloeren
Verhoogde vloeren
Vloerafwerkingen
Overig
Plafonds
Tegels
Lineair
Grill
Open en roosters
Naadloos
Eilanden en baffles
Plafondafwerkingen
Ophangsystemen
Overig
Klimaatplafonds
Verlichting
Binnenverlichting
Buitenverlichting
Sanitair
Kranen en douchesets
Wastafels
Douchewanden en douchebakken
Baden
Waterclosets
Accessoires
Overig
Projectinrichting
Stoelen
Banken
Tafels
Kasten
Balies
Vrijstaande wanden
Keukens
Accessoires
Overig
Cabines
Interieurbeplanting
Stoffering
Installaties
Verwarming, koeling en ventilatie
Elektrotechnische installaties
Schakelmateriaal
Domotica
Deurcommunicatie
Beveiliging
Liften
Onderhoudsinstallaties
Overig
Brandbeveiliging
Constructies
Draagconstructies
Funderingen en kelders
Overig
Brandbeveiliging
Buitenruimte
Bestratingen en verhardingen
Afwateringen
Terreinafscheidingen en geluidsschermen
Buitenmeubilair
Fietsparkeren
Terrassen
Terrasoverkappingen
Bruggen
Accessoires
Overig
Beplanting
Sport- en speeltoestellen
Software
Tekenen 2D
Modelleren 3D / BIM
Visualisatie / rendering
Parametrisch ontwerpen
Bouwfysica
Draagconstructie
Overig
Virtual Reality
Cloudoplossingen
Om direct naar je favorieten te kunnen gaan is het nodig om eerst in te loggen.
Nieuw
Populair
Favorieten
Toon alles
Boekpresentatie en panelgesprek met Floor Milikowsky
Prins Hendrikkade 600, 1011 VX Amsterdam
Architects Table ’25: Lunch & Inspiratie in HAUT Amsterdam
ATAG LIVE – HAUT gebouw, Spaklerweg 10F, 1096 BA Amsterdam (tegenover metrostation Spaklerweg)
'Iwan Baan – Momentum of Light' Fotografie in Burkina Faso
Hoflaan 26, 1861 CR, Bergen
Ontdek Archicad 29!
Online
Inspiratiedag @ Sempergreen – Gevelgroen
Defensieweg 1, 3984 LR Odijk
Ontdek de unieke features van Architect@Work Amsterdam
De Kromhouthal, Gedempt Hamerkanaal 231, Amsterdam
Prefab beurs - 7 t/m 9 oktober 2025
Brabanthallen 's-Hertogenbosch
Architects Table ’25: Lunch & Inspiratie in HAUT Amsterdam
ATAG LIVE – HAUT gebouw, Spaklerweg 10F, 1096 BA Amsterdam (tegenover metrostation Spaklerweg)
DigiBouw 2025 – hét event voor digitalisering in de bouwsector
Expozaal van het Beatrixgebouw in Utrecht
Boekpresentatie en panelgesprek met Floor Milikowsky
Prins Hendrikkade 600, 1011 VX Amsterdam
Om direct naar je favorieten te kunnen gaan is het nodig om eerst in te loggen.
Nieuw
Toon alles
Design
Duurzaamheid
Gevel
Infrastructuur
Interieur
Kantoren
Leisure
Openbare ruimte
Publieke gebouwen
Scholen
Transformatie en Renovatie
Woningbouw
Zorg
Om direct naar je favorieten te kunnen gaan is het nodig om eerst in te loggen.
Nieuw
Populair
Toon alles
Gezocht: technisch tekenaar
Medior Architect
Assistent Ontwerper (Junior Architect)
Ervaren Bouwkundig Tekenaar
9graden architectuur Amersfoort zoekt een bouwkundig modelleur
SVP zoekt bureauondersteuner
Junior Architect (NL/EN)
De Academie van Bouwkunst Amsterdam zoekt twee onderzoekers voor lectoraat
Site Practice zoekt medior architect met 4-6 jaar ervaring (Amsterdam)
Architect
Junior Ontwerper
Studio Nauta zoekt projectleider
Om direct naar je favorieten te kunnen gaan is het nodig om eerst in te loggen.
Copyright: Roger O'Sullivan
Copyright: Roger O'Sullivan
Copyright: Roger O'Sullivan
Copyright: Roger O'Sullivan
Copyright: Roger O'Sullivan
Copyright: Roger O'Sullivan
Copyright: Roger O'Sullivan
Copyright: Roger O'Sullivan
Copyright: Roger O'Sullivan
Copyright: Roger O'Sullivan
Copyright: Roger O'Sullivan
Copyright: Roger O'Sullivan
Copyright: Roger O'Sullivan
Copyright: Roger O'Sullivan
Copyright: Roger O'Sullivan
Copyright: Roger O'Sullivan
Copyright: Roger O'Sullivan
Copyright: Roger O'Sullivan
Copyright: concrete
Copyright: concrete
Copyright: concrete
Copyright: concrete
Geschiedenis van kleurrijke wijk in Dublin inspireert concrete voor interieurontwerp Liberties House
Vandaag, 14:49
In Dublin is het door
concrete
ontworpen interieur van co-livingproject The Liberties opgeleverd. Het project bestaat uit 371 kleine appartementen en open ontmoetingsruimtes voor de bewoners. Het interieurontwerp is geïnspireerd op de geschiedenis van The Liberties, een wijk die al eeuwen bekendstaat om zijn onafhankelijkheid, creatieve industrie en levendige karakter.
In het interieur zijn referenties aan karakteristieke elementen van The Liberties terug te vinden, een wijk die wordt gekenmerkt door muurschilderingen, weefscholen, pubs en brouwerijen. In Liberties House zijn onder meer muurschilderingen en grafische wandtapijten van de in Dublin gevestigde kunstenaars Sean Atmos en Rachel Tuffy te vinden, die de ruimtes identiteit geven en visueel met elkaar verbinden.
De gemeenschappelijke ruimtes zijn niet van elkaar gescheiden, maar vormen een open landschap met meerdere niveaus, waarin bewoners zich vrij kunnen bewegen, elkaar ontmoeten en samen activiteiten ontplooien. De hoogteverschillen en de genoemde muurschilderingen en grafische wandtapijten bakenen elke functie op subtiele wijze af. Open ruimtes die aan te passen zijn voor verschillende activiteiten, worden afgewisseld met knusse zithoeken.
De gemeenschappelijke ruimtes voor bewoners bieden plek om te ontspannen, werken, sporten en socializen, meldt concrete. Er zijn een lobby,
club living
, bibliotheek, centrale keuken, gameroom, bioscoop, fitnessruimte, yogastudio en een podium voor evenementen. De ruimtes maken zowel intieme bijeenkomsten als grotere gemeenschappelijke evenementen mogelijk.
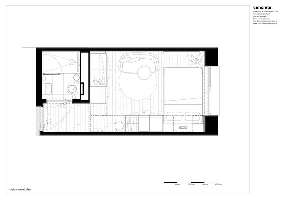
De woningen variëren in omvang van 17 tot 35 vierkante meter. Het centrale element van elke woning is een doorlopende inbouwkast die de ruimte structureert en alle essentiële functies herbergt. Keuken, bed, kasten, opbergruimte en ook de ingang van de slaapkamer zijn hierin verwerkt en met elkaar verbonden. De hal van de slaapkamer is gescheiden voor extra privacy.
Het gebouw waarin Liberties House is gevestigd, is ontworpen door het Ierse
C+W O'Brien Architects
.
Trefwoorden
dublin
gedeelde voorzieningen
co-living
ierland
concrete
kleine woningen
woningbouw
Best gelezen
1
Plan Spot belooft Lelystad bruisend centrumgebied
vrijdag, 3 oktober
2
‘NDSM-werf en Buiksloterham zijn júÃst inspirerende voorbeelden voor de stad van morgen’
vrijdag, 3 oktober
3
Nominaties Publiek gebouw van het Jaar 2025 bekend
woensdag, 8 oktober
4
Realisatieovereenkomst voor hoogbouwcomplex De Sax op Wilhelminapier getekend
maandag, 6 oktober
5
We verdienen betere pers
dinsdag, 7 oktober
Gerelateerde nieuwsberichten
Architectenweb symposium: klein maar fijn wonen?
2 oktober
Arcam houdt expositie over wonen op veertig vierkante meter
29 september
Twee Nederlandse kanshebbers voor Built by Nature Prize 2025
23 september
Beeldkwaliteitsplan voor grootschalige Flora Campus Westland vastgesteld
27 mei
Twee woontorens Urby door Concrete in Dallas voltooid
25 april
Concrete ontwerpt Steve Madden-flagshipstore met New York als referentie
7 april
Concrete creëert een houten landschap in het atrium van Tripolis-Park
10 oktober 2024
Brasa Village krijgt modulair houten woongebouw van acht lagen
11 juni 2024
Eerste project met modulaire MOOS-woningen van Concrete opgeleverd
21 december 2023
Concrete ontwerpt nieuwe vakantiewoning voor Center Parcs
10 november 2023
Concrete ontwerpt flexibel en speels interieur voor THNK
17 april 2023
Architectenweb symposium: klein maar fijn wonen?
2 oktober
Arcam houdt expositie over wonen op veertig vierkante meter
29 september
Twee Nederlandse kanshebbers voor Built by Nature Prize 2025
23 september
Beeldkwaliteitsplan voor grootschalige Flora Campus Westland vastgesteld
27 mei
Twee woontorens Urby door Concrete in Dallas voltooid
25 april
Concrete ontwerpt Steve Madden-flagshipstore met New York als referentie
7 april
Concrete creëert een houten landschap in het atrium van Tripolis-Park
10 oktober 2024
Brasa Village krijgt modulair houten woongebouw van acht lagen
11 juni 2024
Eerste project met modulaire MOOS-woningen van Concrete opgeleverd
21 december 2023
Concrete ontwerpt nieuwe vakantiewoning voor Center Parcs
10 november 2023
Concrete ontwerpt flexibel en speels interieur voor THNK
17 april 2023
Toon alles
Andere nieuwsberichten
ECHO Urban Design en Studio RAP maken winnend ontwerp voor herontwikkeling in Vlissingen
4 uur geleden
Met de aanbesteding voor een nieuw wooncomplex krijgt de herontwikkeling van het historische Touwslagerij-terrein verder vorm.
Flat Amsterdam-Noord 'aangekopt' met 53 seniorenwoningen
Vandaag, 11:36
In Amsterdam-Noord is afgelopen jaar een bestaande flat uitgebreid met 53 woningen. Naar ontwerp van Vanschagen Architecten is de naoorlogse portiekflat ‘aangekopt’ in de hoeken, zodat daar nieuwe woningen konden worden gerealiseerd.
Nog twee dagen om jouw stem uit te brengen voor de Architect van het Jaar 2025!
Vandaag, 09:00
De nominaties voor de prijs voor Architect van het Jaar 2025 zijn: Joost Ector, KSA, KRFT, Sanne van Manen en Vakwerk Architecten. Bekijk nu de video’s waarin de genomineerden zich voorstellen en breng jouw stem uit!
bureau SLA ontdekt, transformeert en gebruikt rijksmonumentale werkplaats
Vandaag, 08:00
Woon-werkruimte op Hembrugterrein in Zaandam toont radicale vernieuwing in erfgoedbeheer en duurzame bouw
Noord-Holland moet afronding natuurnetwerk weer jaren opschuiven
Vandaag, 12:19
Volgens Noord-Holland is ‘de grootste en meest complexe opgave’ om grond beschikbaar te krijgen.
Onderzoek: over tien jaar zijn veel bestaande middenhuurwoningen verkocht
Vandaag, 10:22
Tegelijkertijd komen er weer nieuwgebouwde middenhuurwoningen bij, staat in een rapport dat in opdracht van het kabinet is uitgevoerd.
Do Janne Vermeulen verzorgt Rietveldlezing 2025
Gisteren, 11:28
De medeoprichter en directeur van Team V Architectuur spreekt op 13 november over de (houten) stad van morgen.
Eneco onderzoekt verkoop warmtenetten om nieuwe wet
Gisteren, 10:41
Door een eerder dit jaar aangenomen wet is het voor het bedrijf onzeker of investeringen zich nog terugverdienen.
Uitwerking van plannen voor Nedersaksenlijn kan beginnen
7 oktober, 12:17
Maandag is het startsein gegeven voor de eerste onderzoeken die uiteindelijk moeten leiden tot de spoorlijn die Groningen en Twente met elkaar verbindt.
Mona Keijzer lonkt naar investeerders op vastgoedbeurs in München
7 oktober, 10:02
"We moeten 1,6 miljoen woningen bouwen. Daarvoor hebben we buitenlandse investeerders nodig", stelt de demissionair minister.
Ga naar het nieuws-archief
Ronnie Weessies
Redacteur
0
0
0
0
Voor een optimale gebruikservaring plaatst Architectenweb functionele cookies. Wat de verschillende cookies precies doen leggen we uit in een
overzicht
. Cookies van social media kun je optioneel
aanzetten
.
Akkoord
Instellingen
Annuleren
OK
Sluiten
Doorgaan
Inloggen
Maak een gratis persoonlijk account aan
Feedback
Feedback
Wij horen graag jouw feedback. Laat je reactie achter en eventueel jouw e-mail adres.
Reactie
Verstuur