Projecten
Producten
Bedrijven
Vacatures
Agenda
Awards
Podcasts
more_horiz
Videos
Magazine
Thema's
Favorieten
Profiel
Uitloggen
Abonneer je nu op onze nieuwsbrieven!
Abonneren
Nee, bedankt
Ja, denk met me mee rond de
materialisering van mijn project
Copyright: Robert Tsai for Urby and Concrete
Copyright: Robert Tsai for Urby and Concrete
Copyright: Robert Tsai for Urby and Concrete
Copyright: Robert Tsai for Urby and Concrete
Copyright: Robert Tsai for Urby and Concrete
Copyright: Robert Tsai for Urby and Concrete
Copyright: Robert Tsai for Urby and Concrete
Copyright: Robert Tsai for Urby and Concrete
Copyright: Robert Tsai for Urby and Concrete
Copyright: Robert Tsai for Urby and Concrete
Copyright: Robert Tsai for Urby and Concrete
Copyright: Robert Tsai for Urby and Concrete
Copyright: Robert Tsai for Urby and Concrete
Copyright: Robert Tsai for Urby and Concrete
Copyright: Robert Tsai for Urby and Concrete
Copyright: Robert Tsai for Urby and Concrete
Copyright: Robert Tsai for Urby and Concrete
Copyright: Concrete
Copyright: Concrete
Copyright: Concrete
Twee woontorens Urby door Concrete in Dallas voltooid
25 april 2025, 14:26
In de stad Dallas, in het noordoosten van Texas, is de afgelopen jaren gebouwd aan een wooncomplex met bijna 750 compacte woningen en talloze gemeenschappelijke voorzieningen. De oplevering van de tweede toren markeert de voltooiing van het wooncomplex, dat is ontworpen door architectenbureau
Concrete
uit Amsterdam.
Het wooncomplex in Dallas is het vijfde dat Concrete met woonconcept
Urby
heeft ontworpen. Kern van het woonconcept is dat bewoners kleinere woningen krijgen in ruil voor meer gemeenschappelijke voorzieningen, zoals een koffiebar, een fitnessruimte en een bibliotheek waar ‘thuis maar niet vanuit huis’ gewerkt kan worden. In het geval van Urby Dallas behoort een door landschapsarchitect Bas Smets ontworpen zwembad ook tot de voorzieningen.
De woningen zelf zijn voor Amerikaanse begrippen wat kleiner, maar zijn slim ingedeeld en helemaal afgewerkt met verdiepingshoge inbouwkasten, een keuken, verlichting… zelfs de gordijnen hangen al. Je hoeft eigenlijk alleen een bed en stoel mee te nemen, vertelde architect Erikjan Vermeulen eerder in de
Architectenweb Podcast
. Ten opzichte van de wooncomplexen van Urby in steden aan de oostkust van de Verenigde Staten zijn de woningen in Dallas iets groter, met ruimere inloopkasten, omdat de woningmarkt in de stad daarom vraagt.
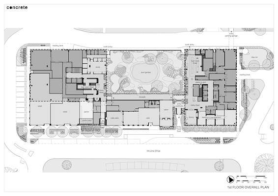
Het wooncomplex in Dallas is gelegen in een buurt met veel pakhuizen die nu galeries, interieurwinkels, restaurants en bars huisvesten. In dit zogeheten Design District ligt het complex in een binnenbocht van een groen omzoomde beek, de Turtle Creek. Het project bestaat uit twee woontorens van 27 verdiepingen die zijn verbonden door een omsloten tuin met een zwembad. Aan de belangrijkste straat, Hi-Line West, is het complex voorzien van een publieke laagbouw met winkels en een café. De private voorzieningen voor de bewoners liggen in de tweede lijn erachter. De fitnessruimte ligt op de eerste verdieping.
De oostelijke toren is voltooid in 2022 en bevat 383 appartementen. De westelijke toren is eind 2024 voltooid en bevat 364 appartementen. Reagerend op de structuur van de buurt, die gekenmerkt wordt door veel laagbouw, heeft Concrete de westelijke toren iets teruggelegd van de straat en de oostelijke toren gedraaid, om zo de impact ervan op de straat te verminderen. De laagbouw aan de straat is ook weer opgedeeld in verschillende ‘panden’ met elk een eigen materialisering, ook weer om zo de structuur van de buurt te weerspiegelen.
De gevels van de woontorens zijn opgebouwd uit verdiepingshoge, geprefabriceerde elementen die afgewerkt zijn met een stuclaag die de gladde textuur van beton nabootst. Zo hebben de woontorens ondanks hun lichtgewicht gevelafwerking toch een robuuste uitstraling gekregen.
Trefwoorden
concrete
woningbouw
gemeenschappelijke voorzieningen
dallas
appartementen
urby
Locatie
Best gelezen
1
MVSA Architects en Powerhouse Company ontwerpen dubbele woontoren bij Den Haag Centraal
maandag, 30 maart
2
Bouw van twee woontorens De Havenmeesters in Den Haag gestart
vrijdag, 3 april
3
Jan Knikker vertrekt bij MVRDV
maandag, 30 maart
4
Een goede parkeerhub is een gebouw dat opgaat in het straatbeeld
dinsdag, 31 maart
5
Voormalige verffabriek in Overschie omgevormd tot buurt met 125 woningen
woensdag, 1 april
Gerelateerde nieuwsberichten
Concrete ontwerpt woongebouw in Philadelphia met gevelkunst door tattoo-artist Henk Schiffmacher
23 december 2025
Derde Urby van concrete gerealiseerd in Harrison
10 oktober 2017
Eerste woningbouwproject van concrete op Manhattan opgeleverd
8 juli 2022
Woontoren Urby Jersey City opgeleverd
24 mei 2017
Concrete vertaalt ideeën van culinaire chefs naar interieur
31 maart
Drie 'Nederlandse' winnaars op Inside World Festival
3 december 2018
Geschiedenis van kleurrijke wijk in Dublin inspireert concrete voor interieurontwerp Liberties House
9 oktober 2025
Concrete ontwerpt Steve Madden-flagshipstore met New York als referentie
7 april 2025
Concrete creëert een houten landschap in het atrium van Tripolis-Park
10 oktober 2024
Brasa Village krijgt modulair houten woongebouw van acht lagen
11 juni 2024
Eerste project met modulaire MOOS-woningen van Concrete opgeleverd
21 december 2023
Concrete ontwerpt nieuwe vakantiewoning voor Center Parcs
10 november 2023
Concrete ontwerpt flexibel en speels interieur voor THNK
17 april 2023
Nieuw interieur van sterrenrestaurant voor optimale eetervaring
4 april 2023
Jeroen Pit Huis uitgeroepen tot Zorggebouw van het Jaar 2022
12 oktober 2022
Vloeiend en natuurlijk interieur voor massageboetiek
21 december 2021
Nederlandse hotelketen CitizenM haalt miljard op voor uitbreiding
10 november 2021
Restaurant en evenementenzaal Depot Boijmans gepresenteerd
1 oktober 2021
Circulair en betaalbaar concept voor modulaire woningbouw MOOS wint competitie
13 juli 2021
Zoku opent vestiging in Kopenhagen
26 april 2021
Shoji-schermen en neonlicht in W Hotel Osaka
24 maart 2021
CitizenM opent eerste hotel aan de westkust van de VS
18 augustus 2020
Flexibel café-restaurant voor Depot Boijmans van Beuningen
9 juli 2020
Aziatisch streetfood onder rode neon en parasols
17 maart 2020
Concrete schept Nederlands landschap in KLM Crown Lounge
29 november 2019
Oost-mediterraan restaurant in voormalige Citroëngarage
30 augustus 2019
citizenM-hotel in oud bankgebouw Amsterdam geopend
31 juli 2019
Hotel bij Kauwgomballenfabriek officieel geopend
10 januari 2019
Concrete transformeert voormalige tabaksfabriek in Florence
27 juni 2018
Eten aan open keuken in nieuw restaurant concrete
8 februari 2018
Concrete breidt wetenschapsmuseum VS uit
2 maart 2017
Tweede Londense hotel CitizenM gerealiseerd
8 augustus 2016
Video: bedenker geeft rondleiding door Zoku
3 juni 2016
INK Hotel in Amsterdam geopend
5 juni 2015
Derde URL-project concrete in VS van start
16 februari 2015
Bouw van Concretes Harborside Plaza gestart
15 januari 2014
Mecanoo en Concrete winnen ieder WAF Award
7 oktober 2013
Supperclub Dubai ontworpen door Concrete
23 juli 2013
Concrete ontwerpt KauwgomBallenFabriek-hotel
4 juli 2013
Bouwstart URL-project Concrete in New York
3 juli 2013
Concrete gekozen tot Architect van het Jaar 2012
14 december 2012
Bouwstart twee nieuwe Urby-projecten aanstaande
22 juni 2020
AIT Award voor bezoekerscentrum Park Vijversburg
27 maart 2018
Concrete ontwerpt woongebouw in Philadelphia met gevelkunst door tattoo-artist Henk Schiffmacher
23 december 2025
Derde Urby van concrete gerealiseerd in Harrison
10 oktober 2017
Eerste woningbouwproject van concrete op Manhattan opgeleverd
8 juli 2022
Woontoren Urby Jersey City opgeleverd
24 mei 2017
Concrete vertaalt ideeën van culinaire chefs naar interieur
31 maart
Drie 'Nederlandse' winnaars op Inside World Festival
3 december 2018
Geschiedenis van kleurrijke wijk in Dublin inspireert concrete voor interieurontwerp Liberties House
9 oktober 2025
Concrete ontwerpt Steve Madden-flagshipstore met New York als referentie
7 april 2025
Concrete creëert een houten landschap in het atrium van Tripolis-Park
10 oktober 2024
Brasa Village krijgt modulair houten woongebouw van acht lagen
11 juni 2024
Eerste project met modulaire MOOS-woningen van Concrete opgeleverd
21 december 2023
Concrete ontwerpt nieuwe vakantiewoning voor Center Parcs
10 november 2023
Concrete ontwerpt flexibel en speels interieur voor THNK
17 april 2023
Nieuw interieur van sterrenrestaurant voor optimale eetervaring
4 april 2023
Jeroen Pit Huis uitgeroepen tot Zorggebouw van het Jaar 2022
12 oktober 2022
Vloeiend en natuurlijk interieur voor massageboetiek
21 december 2021
Nederlandse hotelketen CitizenM haalt miljard op voor uitbreiding
10 november 2021
Restaurant en evenementenzaal Depot Boijmans gepresenteerd
1 oktober 2021
Circulair en betaalbaar concept voor modulaire woningbouw MOOS wint competitie
13 juli 2021
Zoku opent vestiging in Kopenhagen
26 april 2021
Shoji-schermen en neonlicht in W Hotel Osaka
24 maart 2021
CitizenM opent eerste hotel aan de westkust van de VS
18 augustus 2020
Flexibel café-restaurant voor Depot Boijmans van Beuningen
9 juli 2020
Aziatisch streetfood onder rode neon en parasols
17 maart 2020
Concrete schept Nederlands landschap in KLM Crown Lounge
29 november 2019
Oost-mediterraan restaurant in voormalige Citroëngarage
30 augustus 2019
citizenM-hotel in oud bankgebouw Amsterdam geopend
31 juli 2019
Hotel bij Kauwgomballenfabriek officieel geopend
10 januari 2019
Concrete transformeert voormalige tabaksfabriek in Florence
27 juni 2018
Eten aan open keuken in nieuw restaurant concrete
8 februari 2018
Concrete breidt wetenschapsmuseum VS uit
2 maart 2017
Tweede Londense hotel CitizenM gerealiseerd
8 augustus 2016
Video: bedenker geeft rondleiding door Zoku
3 juni 2016
INK Hotel in Amsterdam geopend
5 juni 2015
Derde URL-project concrete in VS van start
16 februari 2015
Bouw van Concretes Harborside Plaza gestart
15 januari 2014
Mecanoo en Concrete winnen ieder WAF Award
7 oktober 2013
Supperclub Dubai ontworpen door Concrete
23 juli 2013
Concrete ontwerpt KauwgomBallenFabriek-hotel
4 juli 2013
Bouwstart URL-project Concrete in New York
3 juli 2013
Concrete gekozen tot Architect van het Jaar 2012
14 december 2012
Bouwstart twee nieuwe Urby-projecten aanstaande
22 juni 2020
AIT Award voor bezoekerscentrum Park Vijversburg
27 maart 2018
Toon alles
Gerelateerde podcasts
Gesprek met Erikjan Vermeulen over kleiner wonen in ruil voor meer gemeenschappelijke voorzieningen
22 december 2022
Andere nieuwsberichten
Bouw van twee woontorens De Havenmeesters in Den Haag gestart
3 april, 4:35
De bouw van het Haagse project De Havenmeesters is gestart. In de twee woontorens, ontworpen door Kampman Architecten zullen 242 betaalbare woningen gerealiseerd worden.
Studio AAAN zoekt met Hillehuis aansluiting bij architectuur Beijerlandselaan
3 april, 3:52
Naar verwachting wordt na de bouwvak gestart met de bouw van het Hillehuis in Rotterdam-Zuid. Het gebouw aan de Beijerlandselaan in de wijk Hillesluis bestaat uit vijftien appartementen boven een commerciële plint.
Máxima heropent vernieuwde boulevard van Scheveningen
3 april, 1:51
Donderdag heeft koningin Máxima de vernieuwde boulevard van Scheveningen officieel geopend. In de afgelopen twee jaar is het laatste deel van de vernieuwing, die van de Middenboulevard, uitgevoerd.
Dag van de Ontwerpkracht geïnspireerd op pioniersgeest jubilerend Almere
3 april, 12:17
De Dag van de Ontwerpkracht vindt dit jaar plaats in Almere. Het thema van deze dag voor ruimtelijke professionals is ‘Pionieren 2.0 – ontwerpen aan een houdbare toekomst’.
Aurélie Hachez en Job Floris in gesprek over verschil maken door details
3 april, 2:46
Kunnen details het verschil maken in een steeds eenvormige architectuur in Europa?
Organisaties bepleiten kortere procedures aanpak vol stroomnet
3 april, 11:22
Onder meer Aedes en Neprom omarmen de wens van de coalitie om met een crisiswet de problemen met het overvolle stroomnet aan te pakken.
Investeerders verschaffen Vesteda lucht met pakket maatregelen
3 april, 9:27
De grootste commerciële woningbelegger van Nederland staat onder grote financiële druk
Overijsselse politiek steunt opzetten warmtebedrijf met Drenthe
2 april, 1:40
Volgens het concept-businessplan is daar tot 2050 bijna zes miljard euro voor nodig.
TNO maakt eerste dakpannen met zonnecellen van perovskiet
2 april, 10:24
Perovskiet is niet alleen licht en flexibel, maar ook op veel plekken te winnen.
Amsterdam krijgt dertig meter hoge Self Storage Tower naar ontwerp dedato
1 april, 2:42
Minerva Development heeft de onherroepelijke bouwvergunning voor een dertig meter hoge ‘Self Storage Tower’ in het Amsterdamse Westpoortgebied.
Ga naar het nieuws-archief
0
0
0
0
Voor een optimale gebruikservaring plaatst Architectenweb functionele cookies. Wat de verschillende cookies precies doen leggen we uit in een
overzicht
. Cookies van social media kun je optioneel
aanzetten
.
Akkoord
Instellingen
Annuleren
OK
Sluiten
Doorgaan
Inloggen
Maak een gratis persoonlijk account aan
Feedback
Feedback
Wij horen graag jouw feedback. Laat je reactie achter en eventueel jouw e-mail adres.
Reactie
Verstuur