Projecten
Producten
Bedrijven
Vacatures
Agenda
Awards
Podcasts
more_horiz
Videos
Magazine
Favorieten
Profiel
Uitloggen
Abonneer je nu op onze nieuwsbrieven!
Abonneren
Nee, bedankt
Ja, denk met me mee rond de
materialisering van mijn project
Copyright: Wouter van der Sar
Copyright: Wouter van der Sar
Copyright: Wouter van der Sar
Copyright: Wouter van der Sar
Copyright: Chantal Arnts
Copyright: Chantal Arnts
Copyright: Chantal Arnts
Copyright: Chantal Arnts
Copyright: Wouter van der Sar
Copyright: Wouter van der Sar
Copyright: Chantal Arnts
Copyright: Wouter van der Sar
Copyright: Chantal Arnts
Concept
Copyright: concrete
begane grond
Copyright: concrete
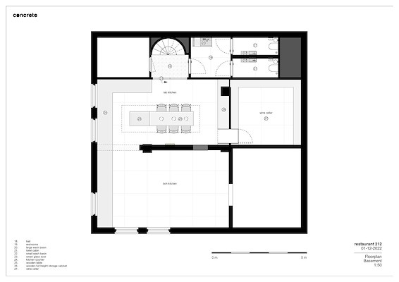
souterrain
Copyright: concrete
Nieuw interieur van sterrenrestaurant voor optimale eetervaring
4 april 2023, 13:00
De chef-koks Richard van Oostenbrugge en Thomas Groot van restaurant 212 in Amsterdam willen de gasten een nog luxueuzere en intiemere eetervaring bieden. Het interieur dat
concrete
oorspronkelijk in 2018 voor het restaurant ontwierp, evolueert mee, waarbij nieuwe tafelmeubels bijna een samenvatting van het concept vormen.
Het
oorspronkelijke ontwerp
voor 212, een restaurant dat met twee Michelinsterren is bekroond, was er al geheel op gericht om eten en het bereiden ervan centraal te stellen. Letterlijk ook: de gasten zaten aan hoge tafels rond de open keuken. Gasten konden de bereiding van gerechten zien en kregen die direct vanuit de keuken geserveerd. Om de aandacht geheel op het eten te richten, was het interieur heel sober gehouden.
In 2022 raakte een deel van het restaurant beschadigd door brand. Concrete werd gevraagd om de ruimte opnieuw in te richten, wat het architectenbureau als aanleiding nam om het eerdere ontwerp te heroverwegen en op te waarderen. De focus van het restaurant blijft de kunst van het koken, zonder opsmuk of afleiding; dit streven naar essentie kenmerkt wederom het interieur, aldus concrete.
Intiemer
De roestvrijstalen keuken staat opnieuw in het midden van de ruimte, met daarom omheen aan drie zijden de zitplaatsen voor de gasten. De hoge gemeenschappelijke tafels zijn vervangen door intiemere tafels: vier tweepersoons- en twee vierpersoonstafels. “De interactieve eetervaring is behouden, maar met extra luxe en intimiteit”, zegt concrete. Het aantal zitplaatsen is daarmee teruggebracht van 30 naar 16, wat het restaurant nog exclusiever maakt.
De tafels staan opgesteld in intieme hoekjes, die worden gecreëerd door een lange zigzaggende bank langs twee zijden van de ruimte. De hoeken in de bank en de opstelling van de tafels zorgen ervoor dat elke gast probleemloos zowel de tafelgenoot als de keuken kan zien. Om de chef-koks te kunnen observeren bij het bereiden van de gerechten, bevinden de tafelbladen zich op dezelfde hoogte als het werkblad in de keuken.
Tafel en kast
De tafel is een bijzonder vormgegeven meubelstuk, dat bijna doet denken aan een dressoir. Het meubel is voorzien van lades en andere bergruimte. Elke gast heeft een eigen lade met een volledige set bestek, geschikt voor zeven gangen. Verder bevatten de meubels planken voor wijnglazen en keukengerei waarmee de chef aan tafel de finishing touch aan het gerecht kan geven.
De volledig uitgeruste kast vermindert bovendien het rondlopen van personeel, waardoor de restaurantervaring voor de gasten meer ontspannen en gefocust is, legt concrete uit. De zachte, afgeronde vormen van de gestoffeerde bank dragen bij aan een lounge-achtige sfeer, als tegenwicht voor de verder strakke en minimalistische uitstraling van het restaurant.
Pure materialen
Concrete heeft gekozen voor overwegend pure materialen. Het roestvrijstaal voor de keuken en het eikenhout voor de tafels zorgen voor een interessant contrast tussen koud en warm. Verder is het interieur uitgevoerd in neutrale grijstinten voor vloeren, wanden en plafonds. Ook dit grijs moet ervoor zorgen dat de aandacht als vanzelf naar de keuken in het midden van de ruimte gaat.
De ruimte wordt op indirecte manier zacht verlicht. Strijklicht accentueert de vloer en het plafond met houten piramidestructuur. Elke tafel wordt afzonderlijk verlicht door een sober maar uitgesproken betonnen pendelarmatuur, zoals dat ook in het eerste ontwerp van 212 is toegepast. Daarnaast dragen vloerlampen bij aan een ingetogen sfeer.
Privé
Een houten wenteltrap voert de gasten naar het souterrain, waar zich een private dining-ruimte, een wijnkelder en de opgewaardeerde toiletten bevinden. De vernieuwde toiletten zijn uitgevoerd in een combinatie van hout en steen, met verfijnde details zoals de op maat gemaakte wastafels van grijs marmer.
In de hoofdruimte bevindt zich hier beneden het ‘lab’, een ruimte waar de chef-koks experimenteren en nieuwe culinaire ideeën kunnen delen met de gasten. Zes gasten kunnen plaatsnemen aan de privé-eettafel, die in het verlengde ligt van het keukenwerkblad. Nog sterker hebben de gasten hier de ervaring deelgenoot te zijn van het werk van de koks, wat het gevoel geeft van dineren in de keuken.
Trefwoorden
interieur
leisure
meubel
amsterdam
concrete architectural associates
restaurant
concrete
Locatie
Best gelezen
1
44 woningen op bosrijke locatie in Driebergen
vrijdag, 15 mei
2
AM en Amvest zoeken architecten voor herontwikkeling Draka-terrein
dinsdag, 19 mei
3
Woningbouwproject KAAP langs het IJ in Amsterdam voltooid
dinsdag, 19 mei
4
Renovatie station Leeuwarden door Movares afgerond
woensdag, 20 mei
5
Dam & Partners ontwerpt multifunctioneel gebouw in Schinkelhaven
dinsdag, 19 mei
Gerelateerde nieuwsberichten
Concrete vertaalt ideeën van culinaire chefs naar interieur
31 maart
Restaurant als blikvanger en schakel tussen dorp en rivier
20 juni 2023
Concrete ontwerpt flexibel en speels interieur voor THNK
17 april 2023
Eerste project met modulaire MOOS-woningen van Concrete opgeleverd
21 december 2023
Concrete ontwerpt nieuwe vakantiewoning voor Center Parcs
10 november 2023
Brasa Village krijgt modulair houten woongebouw van acht lagen
11 juni 2024
Concrete creëert een houten landschap in het atrium van Tripolis-Park
10 oktober 2024
Twee woontorens Urby door Concrete in Dallas voltooid
25 april 2025
Een nieuwe strandtent met restaurant en bar aan de Geffense Plas
13 augustus 2024
Jeroen Pit Huis uitgeroepen tot Zorggebouw van het Jaar 2022
12 oktober 2022
Eerste woningbouwproject van concrete op Manhattan opgeleverd
8 juli 2022
Vloeiend en natuurlijk interieur voor massageboetiek
21 december 2021
Restaurant en evenementenzaal Depot Boijmans gepresenteerd
1 oktober 2021
Circulair en betaalbaar concept voor modulaire woningbouw MOOS wint competitie
13 juli 2021
Zoku opent vestiging in Kopenhagen
26 april 2021
Shoji-schermen en neonlicht in W Hotel Osaka
24 maart 2021
CitizenM opent eerste hotel aan de westkust van de VS
18 augustus 2020
Bouwstart twee nieuwe Urby-projecten aanstaande
22 juni 2020
Aziatisch streetfood onder rode neon en parasols
17 maart 2020
Concrete schept Nederlands landschap in KLM Crown Lounge
29 november 2019
Eten aan open keuken in nieuw restaurant concrete
8 februari 2018
Congres: voorbij de traditionele woontoren en de pure CPO
30 januari 2015
Architectenweb houdt dubbelcongres over woningbouw
20 januari 2015
Bouw van Concretes Harborside Plaza gestart
15 januari 2014
Concrete geselecteerd voor ontwerp WTC
20 juni 2013
Concrete gekozen tot Architect van het Jaar 2012
14 december 2012
Van Beuningenplein Amsterdam-West geopend
13 mei 2011
Noordwestzes claimt plan REM-eiland
30 maart 2011
REM-eiland arriveert in Amsterdam
29 maart 2011
REM-eiland vertrekt naar Amsterdam
23 maart 2011
Twee winnaars AM NAi Prijs
13 december 2010
Werkplek op Wallen in een nieuw jasje
28 april 2010
Nieuwe toekomst voor REM-eiland
14 augustus 2009
Concrete vertaalt ideeën van culinaire chefs naar interieur
31 maart
Restaurant als blikvanger en schakel tussen dorp en rivier
20 juni 2023
Concrete ontwerpt flexibel en speels interieur voor THNK
17 april 2023
Eerste project met modulaire MOOS-woningen van Concrete opgeleverd
21 december 2023
Concrete ontwerpt nieuwe vakantiewoning voor Center Parcs
10 november 2023
Brasa Village krijgt modulair houten woongebouw van acht lagen
11 juni 2024
Concrete creëert een houten landschap in het atrium van Tripolis-Park
10 oktober 2024
Twee woontorens Urby door Concrete in Dallas voltooid
25 april 2025
Een nieuwe strandtent met restaurant en bar aan de Geffense Plas
13 augustus 2024
Jeroen Pit Huis uitgeroepen tot Zorggebouw van het Jaar 2022
12 oktober 2022
Eerste woningbouwproject van concrete op Manhattan opgeleverd
8 juli 2022
Vloeiend en natuurlijk interieur voor massageboetiek
21 december 2021
Restaurant en evenementenzaal Depot Boijmans gepresenteerd
1 oktober 2021
Circulair en betaalbaar concept voor modulaire woningbouw MOOS wint competitie
13 juli 2021
Zoku opent vestiging in Kopenhagen
26 april 2021
Shoji-schermen en neonlicht in W Hotel Osaka
24 maart 2021
CitizenM opent eerste hotel aan de westkust van de VS
18 augustus 2020
Bouwstart twee nieuwe Urby-projecten aanstaande
22 juni 2020
Aziatisch streetfood onder rode neon en parasols
17 maart 2020
Concrete schept Nederlands landschap in KLM Crown Lounge
29 november 2019
Eten aan open keuken in nieuw restaurant concrete
8 februari 2018
Congres: voorbij de traditionele woontoren en de pure CPO
30 januari 2015
Architectenweb houdt dubbelcongres over woningbouw
20 januari 2015
Bouw van Concretes Harborside Plaza gestart
15 januari 2014
Concrete geselecteerd voor ontwerp WTC
20 juni 2013
Concrete gekozen tot Architect van het Jaar 2012
14 december 2012
Van Beuningenplein Amsterdam-West geopend
13 mei 2011
Noordwestzes claimt plan REM-eiland
30 maart 2011
REM-eiland arriveert in Amsterdam
29 maart 2011
REM-eiland vertrekt naar Amsterdam
23 maart 2011
Twee winnaars AM NAi Prijs
13 december 2010
Werkplek op Wallen in een nieuw jasje
28 april 2010
Nieuwe toekomst voor REM-eiland
14 augustus 2009
Toon alles
Andere nieuwsberichten
Bouw gestart van Sluisbuurt 1b ontworpen door Powerhouse Company en Beyond Space
Gisteren, 16:39
Aan het toekomstige Waterplein in de Amsterdamse Sluisbuurt, op kavel 1b, verrijst momenteel een woongebouw met 182 sociale huurwoningen en 45 middeldure huurwoningen. In het ontwerp is sterk ingezet om het stimuleren van onderlinge ontmoeting.
WRK Architecten gebruikt boom als centraal thema in interieurontwerp
Gisteren, 16:15
Voor het interieur van ICTRecht in Amsterdam heeft WRK Architecten modulaire meubels ontworpen die in de toekomst eenvoudig op een andere plek of zelfs in een ander gebouw opnieuw gebruikt kunnen worden.
Rotterdam Architectuur Maand maakt programma bekend
Gisteren, 14:36
De organisatie van de RA Maand heeft het programma van het evenement bekendgemaakt. De Test Site Materialenwerf fungeert dit jeer als festvalhart van het evenement.
Utrechtse flats gerenoveerd volgens 'chassis-carrosseriemethode'
Gisteren, 12:25
In de Utrechtse wijk Overvecht zijn in de flat Stroys de laatste 374 van in totaal 1800 woningen gerenoveerd. Vijf gebouwen werden onder handen genomen door DOOR architecten.
Museum Rotterdam ontvangt sleutels van Citykerk Het Steiger
Gisteren, 15:01
Citykerk Het Steiger, een wederopbouwmonument in de Rotterdamse binnenstad, ondergaat in de komende jaren een transformatie naar onderkomen voor Museum Rotterdam, alsook naar woon- en kantoorruimte.
Naturalis: Nederlandse natuur verbetert, maar niet snel genoeg
Gisteren, 13:50
Het gaat beter met de natuur in Nederland, maar niet snel genoeg om aan afspraken te voldoen.
Bouw van flexwoningen valt tegen, ziet Rekenkamer
Gisteren, 09:50
De 948 miljoen euro die sinds 2021 opzij is gezet om meer flexwoningen te bouwen, is pas deels uitgegeven.
Binnenhof al bij voorbaat te klein voor alle organisaties
20 mei, 2:47
Nog voordat de verbouwing van het Binnenhof klaar is, is het complex te klein voor alle organisaties die erin moeten.
Inschrijving Stadsbouwprijs Amersfoort 2026 gestart
20 mei, 1:29
Tot en met dinsdag 30 juni 18.00 uur kunnen projecten worden aangeleverd die in de afgelopen twee jaar binnen de gemeentegrenzen van de Keistad zijn gerealiseerd.
Drents stikstofplan om vergunningverlening vlot te trekken
20 mei, 10:43
Drenthe denkt in het najaar van 2027 weer te kunnen beginnen met het verlenen van vergunningen voor zaken als woningbouw.
Ga naar het nieuws-archief
Robert Muis
Redacteur
0
0
0
0
Voor een optimale gebruikservaring plaatst Architectenweb functionele cookies. Wat de verschillende cookies precies doen leggen we uit in een
overzicht
. Cookies van social media kun je optioneel
aanzetten
.
Akkoord
Instellingen
Annuleren
OK
Sluiten
Doorgaan
Inloggen
Maak een gratis persoonlijk account aan
Feedback
Feedback
Wij horen graag jouw feedback. Laat je reactie achter en eventueel jouw e-mail adres.
Reactie
Verstuur