Projecten
Producten
Bedrijven
Vacatures
Agenda
Awards
Podcasts
more_horiz
Videos
Magazine
Thema's
Favorieten
Profiel
Uitloggen
Copyright: Richard Powers for concrete
Copyright: Richard Powers for concrete
Copyright: Richard Powers for concrete
Copyright: Richard Powers for concrete
Copyright: Richard Powers for concrete
Copyright: Richard Powers for concrete
Copyright: Richard Powers for concrete
Copyright: Richard Powers for concrete
Copyright: Richard Powers for concrete
Copyright: Richard Powers for concrete
Copyright: Richard Powers for concrete
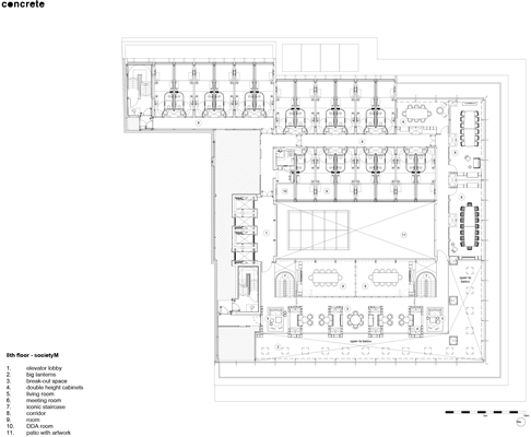
Copyright: Begane grond. concrete
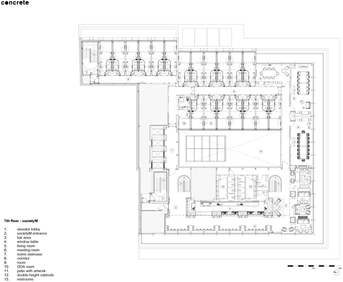
Copyright: Zevende verdieping. concrete
Copyright: Achtste verdieping. concrete
Tweede Londense hotel CitizenM gerealiseerd
8 augustus 2016, 15:45
Vlakbij de Tower of London is een nieuwe vestiging van CitizenM gebouwd. Ontwerp van de plattegronden en het interieur zijn verzorgd door
concrete
; de gevel heeft het bureau samen met
Sheppard Robson Architects
ontworpen.
CitizenM bij Tower Hill is de tweede Londense vestiging van de hotelketen. Dit nieuwe gebouw biedt, naast 370 hotelkamers, een ruime lobby op de begane grond en een twee verdiepingen hoog zakencentrum met bar in de top. Deze faciliteiten zijn publiek toegankelijk.
Concrete en Sheppard Robson hebben het ontwerp afgestemd op de historische omgeving. Het gebouw is ontworpen met een duidelijk onderscheiden basis, midden en top. De entree tot metrostation Tower Hill Station is in het ontwerp geĆÆntegreerd.
Open begane grond
De begane grond is open en transparant en verbindt Trinity Square met een voetgangersroute aan de andere zijde van het gebouw. Door de openheid en de geĆÆntegreerde metro-ingang ontstaat een sterke verbinding van het hotel met de publieke ruimte rondom.
De lobby is een grote open ruimte, waarbij kasten en metalen netten als gordijnen zijn gebruikt om kleinere ruimten te creƫren. Een centraal gesitueerd atrium draagt bij aan daglicht in de lobby, alsook in de kamers op de hogere verdiepingen. De begane grond en de binnenplaats zijn verlevendigd met een lichtkunstwerk, dat Studio Drift speciaal voor citizenM heeft ontworpen.
Nieuw onderdeel
Op de begane grond vindt de bezoeker de checkin-kiosken, de hotelwinkel collectionM, een ruime bar en de open keuken. Verder biedt de āwoonkamerā zowel comfortabele zithoeken als werktafels en kunst voor een inspirerende omgeving. Een nieuw concept is coffeeM, gesitueerd nabij de hotelentree en de metro-ingang. Hier kunnen zowel hotelgasten als voorbijkomende forensen koffie en een croissant kopen.
Op de traditioneel gebouwde eerste laag zijn de geprefabriceerde modules voor de hotelkamers gestapeld. In de gevel zijn de kenmerkende citizenM-ramen, die de afzonderlijke kamers aanduiden, herkenbaar; tegelijkertijd zijn ze samengetrokken om grotere afmetingen te creƫren, die aansluiten bij de aangrenzende bebouwing.
Glazen top
De iets teruggeplaatste, dubbelhoge glazen top van het gebouw biedt plaats aan SocietyM. Dit zakencentrum op de zevende en achtste verdieping omvat acht vergaderruimtes, een bar en een dakterras. De dubbelhoge ruimte is voor iedereen toegankelijk en biedt een fraai uitzicht over de stad.
CitizenM Tower of London is de achtste vestiging van de Nederlandse hotelgroep. Eerder opende de groep hotels in onder meer Amsterdam, Rotterdam, Glasgow, Parijs en New York. CitizenM, waarvan het concept mede-geconcipieerd is door concrete, wil de komende jaren daar nog minimaal twintig hotels aan toevoegen, zo laat ze weten.
Trefwoorden
londen
interieur
groot brittannië
sheppard robson
concrete
citizenm
concrete architects
hotel
leisure
Best gelezen
1
Singelbloktoren Amsterdam-Noord biedt ook bewoners tussenwoningen overhoeks zicht
maandag, 16 februari
2
Leren van Santos
dinsdag, 17 februari
3
Bouwstart voor zestig seniorenwoningen in groen landschap Hoorn
vrijdag, 13 februari
4
Gerestaureerd Tramhuis op Eendrachtsplein fungeert nu als kiosk voor stadswandelingen
maandag, 16 februari
5
Woongemeenschap van Woonwerk Architecten in Winkelsteeg speelt in op maatschappelijke opgaven
vrijdag, 13 februari
Gerelateerde nieuwsberichten
Concrete ontwerpt nieuwe vakantiewoning voor Center Parcs
10 november 2023
Twee woontorens Urby door Concrete in Dallas voltooid
25 april 2025
Hotelconcept gaat uit van woon-werkruimte
26 mei 2015
Vierde citizenM hotel staat in Londen
29 juni 2012
Eerste fase URBY Staten Island opgeleverd
2 augustus 2016
Vier Nederlandse winnaars bij Duitse interieurprijzen
11 november 2015
Eigentijdse versie van Nederlands-Indonesisch Grand Café
3 mei 2017
citizenM-hotel in oud bankgebouw Amsterdam geopend
31 juli 2019
CitizenM opent eerste hotel aan de westkust van de VS
18 augustus 2020
Nederlandse hotelketen CitizenM haalt miljard op voor uitbreiding
10 november 2021
Concrete ontwerpt nieuwe vakantiewoning voor Center Parcs
10 november 2023
Twee woontorens Urby door Concrete in Dallas voltooid
25 april 2025
Hotelconcept gaat uit van woon-werkruimte
26 mei 2015
Vierde citizenM hotel staat in Londen
29 juni 2012
Eerste fase URBY Staten Island opgeleverd
2 augustus 2016
Vier Nederlandse winnaars bij Duitse interieurprijzen
11 november 2015
Eigentijdse versie van Nederlands-Indonesisch Grand Café
3 mei 2017
citizenM-hotel in oud bankgebouw Amsterdam geopend
31 juli 2019
CitizenM opent eerste hotel aan de westkust van de VS
18 augustus 2020
Nederlandse hotelketen CitizenM haalt miljard op voor uitbreiding
10 november 2021
Toon alles
Gerelateerde podcasts
Gesprek met Erikjan Vermeulen over kleiner wonen in ruil voor meer gemeenschappelijke voorzieningen
22 december 2022
Andere nieuwsberichten
Purmerend kiest ontwerp Vendrig Leegwater en Hans van der Heijden voor Schapenmarkt
Gisteren, 11:04
Inwoners van Purmerend hebben het ontwerp van Vendrig Leegwater Architecten en Hans van der Heijden Architecten gekozen voor de herontwikkeling van de Schapenmarkt.
AG NOVA ontwerpt woon-zorggebouw voor kwetsbare ouderen op Centrumeiland
18 februari, 3:15
Het pand is bestemd voor bewoners die complexe zorg nodig hebben en met ondersteuning in de stad kunnen blijven wonen.
Team van Nederlandse en Oekraïense architecten ontwikkelt open-source bouwsysteem voor publieke voorzieningen in Oekraïne
18 februari, 1:57
Een team van Orange Architects, NOVA en ReThink heeft samen met een verschillende vastgoed en productontwikkelaars op het gebied van modulair bouwen een schaalbaar, open-source bouwsysteem voor publieke voorzieningen in Oekraïne ontwikkeld.
Expositie toont mogelijkheden voor nieuwe woonruimte in bestaande Rotterdamse wijken
18 februari, 11:05
Hoe kun je in Rotterdam honderdduizend nieuwe woningen realiseren zonder nieuwe wijken te hoeven aanleggen? In een tentoonstelling bij OMI laten Platform Woonopgave en Recht op de Stad zien op welke manieren dat kan.
Noord-Holland geeft ontheffing voor bouw datacenter in Aalsmeer
Gisteren, 14:09
De voorbereidingen op de bouw van een datacenter op het terrein van een voormalige bloemenveiling in Aalsmeer kunnen doorgaan.
Nederland en België onderzoeken treinverbinding Eindhoven-Brussel
Gisteren, 12:02
Het kan gaan om nieuw spoor, maar ook om een nieuwe treindienst over bestaand spoor.
Nieuwe minister VRO: nieuwe steden bouwen zal moeten
Gisteren, 10:03
De vraag waar die nieuwe steden zouden moeten komen, wilde Elanor Boekholt-O'Sullivan nog niet beantwoorden.
Ridderkerk hoeft voorlopig niet samen te werken bij verdeling huurwoningen
18 februari, 4:29
De provincie Zuid-Holland mag Ridderkerk voorlopig niet dringen om hierbij samen te werken met elf andere gemeenten.
Zichtbaar verduurzaamde huizen leveren meer op bij verkoop
18 februari, 11:59
Cijfers wijzen uit dat in het derde kwartaal van vorig jaar bijna 4700 euro per vierkante meter werd betaald voor woningen met een energielabel A of beter.
Noord-Brabant verdeelt vijftig miljoen euro over regio-Moerdijk
18 februari, 9:09
Het geld dient om de leefbaarheid op peil te houden in het gebied waar de komende jaren diverse energieprojecten worden uitgevoerd.
Ga naar het nieuws-archief
0
0
0
0
Voor een optimale gebruikservaring plaatst Architectenweb functionele cookies. Wat de verschillende cookies precies doen leggen we uit in een
overzicht
. Cookies van social media kun je optioneel
aanzetten
.
Akkoord
Instellingen
Annuleren
OK
Sluiten
Doorgaan
Inloggen
Maak een gratis persoonlijk account aan
Feedback
Feedback
Wij horen graag jouw feedback. Laat je reactie achter en eventueel jouw e-mail adres.
Reactie
Verstuur