Projecten
Producten
Bedrijven
Vacatures
Agenda
Awards
Podcasts
more_horiz
Videos
Magazine
Thema's
Favorieten
Profiel
Uitloggen
Copyright: Wouter van der Sar / concrete
Copyright: Wouter van der Sar / concrete
Copyright: Wouter van der Sar / concrete
Copyright: Wouter van der Sar / concrete
Copyright: Wouter van der Sar / concrete
Copyright: Wouter van der Sar / concrete
Copyright: Wouter van der Sar / concrete
Copyright: Wouter van der Sar / concrete
Copyright: Wouter van der Sar / concrete
Copyright: Wouter van der Sar / concrete
Copyright: Wouter van der Sar / concrete
Copyright: concrete
Copyright: concrete
Oost-mediterraan restaurant in voormalige Citroëngarage
30 augustus 2019, 15:32
In een van de voormalige Citroëngarages bij het Olympisch Stadion in Amsterdam is restaurant NENI Amsterdam geopend. Voor het interieurontwerp heeft
concrete
zich laten inspirerend door de architectuur van het uit 1962 stammend gebouw en de Oost-Mediterrane keuken van NENI. Voor het restaurantdeel op de verdieping probeerde het bureau de sfeer van een buitenterras naar binnen te halen.
NENI Amsterdam is gehuisvest in de noordelijke Citroëngarage, die is getransformeerd
naar ontwerp van Rijnboutt
. Behalve het restaurant bevinden zich kantoorruimtes in het pand, dat oorspronkelijk is ontworpen door architect Jan WIls (tevens de architect van het Olympisch Stadion en de zuidelijke Citroëngarage uit 1931, die momenteel wordt
getransformeerd door BiermanHenket architecten
).
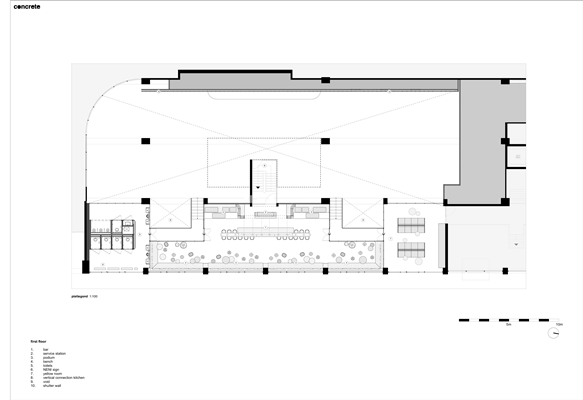
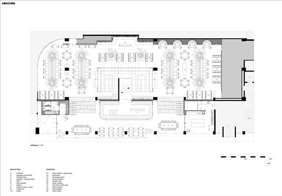
NENI Amsterdam bestaat feitelijk uit drie onderdelen; het eetcafé NENI Deli, het restaurant en The Lemonman Bar. Het eetcafé bevindt zich op de begane grond, met als meest in het oog springende element de keuken die is ondergebracht in een gele oude Citroën-foodtruck. Aan weerszijden van de keuken liggen trappen die bezoekers naar het restaurant op de verdieping leiden.
Kas
Het restaurant is ontworpen als een mediterrane patio, met verschillende ‘outdoor’-elementen als een kas (met daarin de keuken), lantaarnachtige lampen en vijgenbomen. Een wand is van vloer tot plafond bekleed met houten louvrepanelen, die het mediterrane karakter van de ruimte moeten versterken. Ook zijn in de wand nissen opgenomen waarin bezoekers intiemer kunnen dineren.
Een halve verdieping hoger ligt The Lemonman Bar, die is vernoemd naar de Amsterdamse groente- en fruithandelaar Roelof Limoenman. Hij was tevens de grootvader van André Citroën, de stichter en naamgever van het automerk waaraan de voormalige garage zijn naam te danken heeft. De banken langs de gevel zijn vormgegeven als een knipoog naar de achterbank van een klassieke Citroën.
Trefwoorden
amsterdam
olympisch stadion
jan wils
restaurant
concrete
rijnboutt
citroëngarage
biermanhenket architecten
Locatie
Best gelezen
1
David Chipperfield landt in Antwerps Nieuw Zuid
woensdag, 15 oktober
2
Woongebouwen door VdpArchitecten vormen nieuwe 'voorkant' Groningse Oosterparkwijk
vrijdag, 17 oktober
3
Gedetailleerde 3D-geprinte maquette toont ruimtelijke ontwikkeling Amsterdam
vrijdag, 17 oktober
4
Kantoorgebouw door Arthur Staal aan de Schinkel gerenoveerd en uitgebreid
woensdag, 15 oktober
5
Gezicht van de tijd
woensdag, 15 oktober
Gerelateerde nieuwsberichten
Hernieuwde glorie voor herbestemd Citroëngebouw Zuid
9 januari 2020
Woongebouw als 'bergdorp' op parkeergarage Amstelveen
25 november 2020
Concrete ontwerpt flexibel en speels interieur voor THNK
17 april 2023
Concrete ontwerpt nieuwe vakantiewoning voor Center Parcs
10 november 2023
Twee woontorens Urby door Concrete in Dallas voltooid
25 april
Rijnboutt biedt zijn BIM-expertise nu ook apart aan via Boltt
16 oktober 2023
Combinatie noA-EM2N-Sergison Bates wint prijsvraag cultuurpool Citroën
23 maart 2018
Plannen Citroëngebouwen Amsterdam bekend
19 april 2016
Architecten transformatie Citroëngarages bekend
31 augustus 2015
Olympisch stadion tachtig jaar oud
15 mei 2008
Sporthotel naast Olympisch Stadion Amsterdam
22 november 2016
Winnaars Zuiderkerkprijs en Geurt Brinkgreve Bokaal 2018
14 december 2018
Wessel de Jonge: ‘Met het Burgerweeshuis is een cirkel rond’
2 februari 2018
Renovatie Burgerweeshuis: terug naar de essentie van het gebouw
2 februari 2018
Een restaurantinterieur als een veldboeket van Dark&Stormy
22 oktober 2019
Gevelrenovatie markeert zichtbare verbouwing WTC Rotterdam
28 oktober 2019
Concrete schept Nederlands landschap in KLM Crown Lounge
29 november 2019
Uitbreiding restaurant Azura mixt mystiek met zakelijkheid
7 januari 2020
Hellingbaan verbindend element in getransformeerde Citroëngarage Noord
22 januari 2020
Aziatisch streetfood onder rode neon en parasols
17 maart 2020
Bouwstart twee nieuwe Urby-projecten aanstaande
22 juni 2020
CitizenM opent eerste hotel aan de westkust van de VS
18 augustus 2020
Shoji-schermen en neonlicht in W Hotel Osaka
24 maart 2021
Zoku opent vestiging in Kopenhagen
26 april 2021
Vloeiend en natuurlijk interieur voor massageboetiek
21 december 2021
Eerste woningbouwproject van concrete op Manhattan opgeleverd
8 juli 2022
Restaurant Capital Kitchen prikkelt alle zintuigen
17 augustus 2022
Hernieuwde glorie voor herbestemd Citroëngebouw Zuid
9 januari 2020
Woongebouw als 'bergdorp' op parkeergarage Amstelveen
25 november 2020
Concrete ontwerpt flexibel en speels interieur voor THNK
17 april 2023
Concrete ontwerpt nieuwe vakantiewoning voor Center Parcs
10 november 2023
Twee woontorens Urby door Concrete in Dallas voltooid
25 april
Rijnboutt biedt zijn BIM-expertise nu ook apart aan via Boltt
16 oktober 2023
Combinatie noA-EM2N-Sergison Bates wint prijsvraag cultuurpool Citroën
23 maart 2018
Plannen Citroëngebouwen Amsterdam bekend
19 april 2016
Architecten transformatie Citroëngarages bekend
31 augustus 2015
Olympisch stadion tachtig jaar oud
15 mei 2008
Sporthotel naast Olympisch Stadion Amsterdam
22 november 2016
Winnaars Zuiderkerkprijs en Geurt Brinkgreve Bokaal 2018
14 december 2018
Wessel de Jonge: ‘Met het Burgerweeshuis is een cirkel rond’
2 februari 2018
Renovatie Burgerweeshuis: terug naar de essentie van het gebouw
2 februari 2018
Een restaurantinterieur als een veldboeket van Dark&Stormy
22 oktober 2019
Gevelrenovatie markeert zichtbare verbouwing WTC Rotterdam
28 oktober 2019
Concrete schept Nederlands landschap in KLM Crown Lounge
29 november 2019
Uitbreiding restaurant Azura mixt mystiek met zakelijkheid
7 januari 2020
Hellingbaan verbindend element in getransformeerde Citroëngarage Noord
22 januari 2020
Aziatisch streetfood onder rode neon en parasols
17 maart 2020
Bouwstart twee nieuwe Urby-projecten aanstaande
22 juni 2020
CitizenM opent eerste hotel aan de westkust van de VS
18 augustus 2020
Shoji-schermen en neonlicht in W Hotel Osaka
24 maart 2021
Zoku opent vestiging in Kopenhagen
26 april 2021
Vloeiend en natuurlijk interieur voor massageboetiek
21 december 2021
Eerste woningbouwproject van concrete op Manhattan opgeleverd
8 juli 2022
Restaurant Capital Kitchen prikkelt alle zintuigen
17 augustus 2022
Toon alles
Gerelateerde podcasts
Gesprek met Frederik Vermeesch over ontwerpen vanuit de context
3 september 2021
Gerelateerde video's
The Garage
Rijnboutt
Andere nieuwsberichten
Timpaan en VenhoevenCS winnen tender woonzorgproject in Vlaardingen
Gisteren, 17:10
Het team van vastgoed- en gebiedsontwikkelaar Timpaan met VenhoevenCS is met het plan WEST// als winnaar uit de bus gekomen bij een tender voor een nieuw woon-zorgproject aan het Erasmusplein in Vlaardingen.
Expositie over leven en werk van onbekende 'architect van de hadj'
Gisteren, 14:50
Op 8 november start in Design Museum Den Bosch een tentoonstelling over architect Mahmoud Bodo Rasch. Deze zoon en neef van Bauhaus-pioniers maakte wereldberoemde ontwerpen voor de islamitische pelgrimstocht, maar bleef zeker in het westen onbekend.
Moos Appelweg wint Built by Nature Prize 2025
Gisteren, 13:13
Het project dat is ontworpen door concrete, was ingezonden voor de categorie Housing. Het langgerekte houten gebouw in Amsterdam-Noord biedt plek aan 63 appartementen.
VORM en KOW winnen tender Amstelveen met houten woongebouwen
Gisteren, 11:32
Bouwend ontwikkelaar VORM heeft samen met architectenbureau KOW een tender voor vier houten appartementengebouwen in Amstelveen gewonnen. De gebouwen bieden plek aan 72 middeldure huurwoningen en 88 koopappartementen.
Oproep aan nieuw kabinet: maak topprioriteit van schoon water
Gisteren, 12:26
De Unie van Waterschappen vindt dat het volgende kabinet hiervoor moet zorgen om de Europese doelen voor schoon en gezond water te halen.
Zuid-Holland draagt elf locaties Groene Hart aan voor windturbines
Gisteren, 10:45
Uit een verkennend onderzoek bleek al dat in het open polderlandschap ruimte is voor maximaal 67 turbines van 240 meter.
Advocaten waarschuwen voor beperken bezwaar bij bouw
20 oktober, 11:54
Het inperken van de mogelijkheden om in bezwaar te gaan tegen bouwplannen is een risico voor de rechtsstaat, stelt de Nederlandse orde van advocaten.
Controle na asbestsanering schiet in derde van gevallen tekort
20 oktober, 9:31
Daardoor worden gebouwen schoon verklaard terwijl er nog asbestresten aanwezig zijn, waarschuwt de Arbeidsinspectie.
Sweco neemt groot Belgisch architectenbureau over
17 oktober, 4:23
Het 150 medewerkers tellende assar architects ontwierp onder meer het nieuwe hoofdkantoor van de NAVO in Brussel.
IMF: geen forse huizenprijsdaling bij einde hypotheekrenteaftrek
17 oktober, 12:14
Een mogelijke afschaffing van de hypotheekrenteaftrek in Nederland heeft waarschijnlijk een prijsremmende werking, stelt de Nederlandse bestuurder van het IMF Marnix van Rij
Ga naar het nieuws-archief
Ronnie Weessies
Redacteur
1
0
0
0
Voor een optimale gebruikservaring plaatst Architectenweb functionele cookies. Wat de verschillende cookies precies doen leggen we uit in een
overzicht
. Cookies van social media kun je optioneel
aanzetten
.
Akkoord
Instellingen
Annuleren
OK
Sluiten
Doorgaan
Inloggen
Maak een gratis persoonlijk account aan
Feedback
Feedback
Wij horen graag jouw feedback. Laat je reactie achter en eventueel jouw e-mail adres.
Reactie
Verstuur