Projecten
Producten
Bedrijven
Vacatures
Agenda
Awards
Podcasts
more_horiz
Videos
Magazine
Favorieten
Profiel
Uitloggen
Abonneer je nu op onze nieuwsbrieven!
Abonneren
Nee, bedankt
Ja, denk met me mee rond de
materialisering van mijn project
Copyright: Rijnboutt
Copyright: Rijnboutt
Copyright: Rijnboutt
Copyright: Rijnboutt
Copyright: Rijnboutt
Copyright: Rijnboutt
Filips van Almondestraat,-Amsterdam, situatie 2018
Copyright: Rijnboutt
Filips van Almondestraat,-Amsterdam, situatie 2024
Copyright: Rijnboutt
Gif van axonometrie
Copyright: Rijnboutt
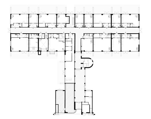
Begane grond
Copyright: Rijnboutt
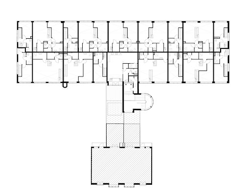
Eerste verdieping
Copyright: Rijnboutt
Doorsnede
Copyright: Rijnboutt
Doorsnede
Copyright: Rijnboutt
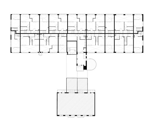
Omgeving en dak
Copyright: Rijnboutt
Tweede verdieping
Copyright: Rijnboutt
Een monumentale telefooncentrale herbestemd als verborgen woongebouw
11 december 2024, 17:01
Een voormalige PTT-telefooncentrale, gelegen binnen een gesloten bouwblok in De Baarsjes, Amsterdam-West, heeft een nieuwe bestemming gekregen als woongebouw. Het ontwerp van
Rijnboutt
combineert zorgvuldig het inspelen op hedendaagse eisen en behoeften met herstel en behoud van de oorspronkelijke architectuur uit 1926.
Verscholen binnen een gesloten bouwblok, op een verlaten parkeerterrein staat een voormalige PTT-telefooncentrale. Het tweelaagse gebouw, ontworpen door architect Alfred Boeken, is gebouwd in 1926. In die periode was er grote behoefte aan telefoonverbindingen, maar weinig ruimte. De centrale werd als onderdeel van de uitbreiding van Plan West midden in een woonblok gepland.
De begane grond bood de opslag en de technische ruimte. Op de eerste verdieping bevond zich de daadwerkelijke centrale waar medewerkers handmatig de telefoonverbindingen maakten. Het gebouw is in de jaren 1960 meermaals verbouwd en uitgebreid. Het interieur is grotendeels intact gebleven, maar de buitenkant van het pand heeft aanzienlijke veranderingen ondergaan.
Woonfunctie met groene tuin
Rijnboutt kreeg in 2017 van GPS Vastgoed de opdracht om voor het gebouw – dat sinds 2009 gemeentelijk monument is – een herbestemming tot woon- of kantoorgebouw te onderzoeken. Na intensieve samenwerking met gemeente en omwonenden, zo meldt het architectenbureau, is gekozen voor een woonfunctie.
De transformatie is dit jaar afgerond en de voormalige telefooncentrale biedt nu ruimte aan achttien stadswoningen en twee appartementen. De woonfunctie sluit aan bij de verdichtingsopgave van stadsdeel De Baarsjes.
Op advies van Rijnboutt is bovendien het parkeerterrein omgevormd tot een collectieve binnentuin. Daarmee biedt het project tegenwicht aan de klimaatproblematiek waarmee De Baarsjes kampt; door het hoge percentage verharde buitenruimte ervaart het stadsdeel hittestress en – afhankelijk van het seizoen – wateroverlast dan wel -tekort.
Passend maar hedendaags
De ontwerpaanpak voor het woongebouw omschrijft Rijnboutt als “een vorm van doelgerichte terughoudendheid”. De logica van de oorspronkelijke architectuur is als uitgangspunt genomen en het bureau heeft ingezet op het leesbaar houden van ‘het gebouw als geheel’. Alle ontwerpbeslissingen zoeken aansluiting bij het bestaande gebouw, wat ook de verbinding met de buurt verstevigt.
Zo zijn kunststof panelen op de tweede verdieping vervangen door houten kozijnen, passend bij de oorspronkelijke ontwerpbenadering. Tegelijkertijd voldoen ze technische en energetische aan hedendaagse eisen. Op de begane grond zijn terrasdeuren toegevoegd als toegang tot de binnentuin en als tweede vluchtweg. Het dak heeft zijn oude lichtstraat teruggekregen. De schoorsteen – het enige verticale element in een verder horizontale compositie – is behouden.
Van het interieur zijn de ruimtelijke kwaliteiten, alsook de trappenhuizen en hoofdentree met glas-in-loodramen behouden. Bij de indeling van de individuele woningen heeft Rijnboutt de betonnen hoofddraagstructuur als motief in het zicht gehouden. Oorspronkelijke materialen, ritmiek en repetitie waren maatgevend, legt het bureau uit.
Verschillende tijdslagen
In het algemeen heeft Rijnboutt in het ontwerp de niet-originele elementen verwijderd en gevels en interieur aangepast aan de nieuwe functie. Het architectenbureau heeft daarbij het gebouw niet willen terugbrengen in originele staat of willen historiseren. “De uitkomst is een gebouw met verschillende tijdslagen die alle verwijzen naar dezelfde bron.”
Het ontwerp is omkeerbaar, meldt het architectenbureau verder. Mocht in de toekomst een invulling met andere woningtypologieën of een geheel andere bestemming voor het gebouw gewenst zijn, dan kan het pand opnieuw worden ingedeeld binnen de ‘logica van de oorspronkelijke architectuur’, aldus Rijnboutt.
Binnentuin
Als onderdeel van het project is de parkeerplaats getransformeerd tot groene collectieve binnentuin. Deze voorziening voor de bewoners van de voormalige telefooncentrale bevordert niet alleen de sociale cohesie, maar zorgt ook voor vermindering van hittestress door groen en schaduw en een verbeterde waterretentie met een doorlaatbare bodem. Met nestkasten voor vogels en een verscheidenheid aan bloeiende planten voor insecten draagt de binnentuin tevens bij aan de versterking van de lokale biodiversiteit.
Trefwoorden
amsterdam
herbestemming
alfred boeken
woningbouw
woongebouw
rijnboutt
telefooncentrale
transformatie
Locatie
Best gelezen
1
Woontoren Front door Monadnock wint tiende Architectuurprijs Nijmegen
donderdag, 9 april
2
Spoorwegverleden inspireert ontwerp woonblok Wisselspoor 10 in Utrecht
woensdag, 8 april
3
Rotterdam mag woningen gaan bouwen aan de Parkhaven
woensdag, 8 april
4
KOW wint met Marker Woods tender voor nieuwe wijk Eschmarkerveld
woensdag, 8 april
5
RED Company vraagt vergunning aan voor productie- en onderzoeksfaciliteit Lilly
dinsdag, 7 april
Gerelateerde nieuwsberichten
Voormalig V&D-pand in Maastricht wordt woon- en winkelcomplex
9 december 2024
De Pershal: destijds ruimte voor drukpersen, nu kantoor voor techbedrijf
5 februari 2025
Twee woongebouwen op plek oude Renault-garage in Zwolle
6 december 2024
Rijnboutt presenteert masterplan derde fase vernieuwing Centrum Schalkwijk
14 november 2024
Rijnboutt benoemt Rowan Rijsdijk tot zakelijk directeur
8 september 2025
Uitbreiding voor winkelcentrum in Woerdense wijk Snellerpoort
10 september 2024
Kerk hervindt buurtfunctie als supermarkt
23 mei 2024
Transformatie voormalig warenhuis en bankgebouw in Dordrecht gereed
21 mei 2024
Mattijs Rijnboutt neemt afscheid van Rijnboutt
15 mei 2024
Cartooneske 'grachtenluchtbrug' verbindt Adyen-panden in Amsterdam
14 december 2023
AM, Rijnboutt en SVP winnen selectie voor transformatie oude rechtbank Amersfoort
12 december 2023
Rijnboutt biedt zijn BIM-expertise nu ook apart aan via Boltt
16 oktober 2023
Anterieure overeenkomst voor gebiedstransformatie Belcanto-terrein Haarlem
4 april 2023
Een golvende mijlpaal in Amsterdam Buitenveldert
20 december 2022
Redevco wil C&A-pand Groningen herontwikkelen tot woon- en winkelgebouw
16 september 2022
Zes gesloten bouwblokken naar ontwerp van Rijnboutt als sluitstuk van Holland Park
26 augustus 2022
Hudson's Bay-panden op Rokin nu onderkomen van betaalplatform
22 juli 2022
Voormalige telefooncentrale herbestemd tot woon-werkgebouw met optopping
18 juni 2025
Drakaterrein op noordoever IJ transformeert tot hoogstedelijk woon-werkgebied
1 april 2022
Video + extra foto's: Holocaust Namenmonument
20 september 2021
Bedrijventerrein aan spoor Hilversum wordt woon- en werkgebied
23 augustus 2021
Bouw woningbouwproject HAAVE in Haarlem van start gegaan
2 juli 2021
Nieuw directieteam en management voor Rijnboutt
28 mei 2021
Rijnboutt transformeert verborgen telefooncentrale naar woningen
27 januari 2021
Voormalig V&D-pand in Maastricht wordt woon- en winkelcomplex
9 december 2024
De Pershal: destijds ruimte voor drukpersen, nu kantoor voor techbedrijf
5 februari 2025
Twee woongebouwen op plek oude Renault-garage in Zwolle
6 december 2024
Rijnboutt presenteert masterplan derde fase vernieuwing Centrum Schalkwijk
14 november 2024
Rijnboutt benoemt Rowan Rijsdijk tot zakelijk directeur
8 september 2025
Uitbreiding voor winkelcentrum in Woerdense wijk Snellerpoort
10 september 2024
Kerk hervindt buurtfunctie als supermarkt
23 mei 2024
Transformatie voormalig warenhuis en bankgebouw in Dordrecht gereed
21 mei 2024
Mattijs Rijnboutt neemt afscheid van Rijnboutt
15 mei 2024
Cartooneske 'grachtenluchtbrug' verbindt Adyen-panden in Amsterdam
14 december 2023
AM, Rijnboutt en SVP winnen selectie voor transformatie oude rechtbank Amersfoort
12 december 2023
Rijnboutt biedt zijn BIM-expertise nu ook apart aan via Boltt
16 oktober 2023
Anterieure overeenkomst voor gebiedstransformatie Belcanto-terrein Haarlem
4 april 2023
Een golvende mijlpaal in Amsterdam Buitenveldert
20 december 2022
Redevco wil C&A-pand Groningen herontwikkelen tot woon- en winkelgebouw
16 september 2022
Zes gesloten bouwblokken naar ontwerp van Rijnboutt als sluitstuk van Holland Park
26 augustus 2022
Hudson's Bay-panden op Rokin nu onderkomen van betaalplatform
22 juli 2022
Voormalige telefooncentrale herbestemd tot woon-werkgebouw met optopping
18 juni 2025
Drakaterrein op noordoever IJ transformeert tot hoogstedelijk woon-werkgebied
1 april 2022
Video + extra foto's: Holocaust Namenmonument
20 september 2021
Bedrijventerrein aan spoor Hilversum wordt woon- en werkgebied
23 augustus 2021
Bouw woningbouwproject HAAVE in Haarlem van start gegaan
2 juli 2021
Nieuw directieteam en management voor Rijnboutt
28 mei 2021
Rijnboutt transformeert verborgen telefooncentrale naar woningen
27 januari 2021
Toon alles
Gerelateerde podcasts
Gesprek met Frederik Vermeesch over ontwerpen vanuit de context
3 september 2021
Andere nieuwsberichten
Restauratie Atlasbeeld op dak Koninklijk Paleis Amsterdam afgerond
10 april, 3:38
Het beeld op het fronton van het paleis was in juli van zijn plek gehaald voor een uitgebreide onderhoudsbeurt in Antwerpen.
Nieuw zitgebied Lounge 2 Schiphol geïnspireerd door overgangsfase in oeuvre Mondriaan
10 april, 2:16
Op luchthaven Schiphol is de derde en laatste fase van door Beyond Space ontworpen zitgebieden opgeleverd. Net als de eerste twee fases van het project is dit gedeelte geïnspireerd door het werk van Mondriaan, maar dan uit een eerdere periode.
SeARCH en Heutink Groep winnen tender voor woongebouw Sluisbuurt
10 april, 11:15
Gebouw Radius biedt plek aan zo’n honderd appartementen, een stadskamer, een binnentuin, daktuinen en andere gemeenschappelijke ruimtes. Het gebouw wordt gerealiseerd van natuurlijke materialen als hout, stampleem en leemsteen.
Woontoren Front door Monadnock wint tiende Architectuurprijs Nijmegen
9 april, 10:00
“Front is een optimistisch icoon, gemaakt met lef, dat ambachtelijkheid en vakmanschap uitstraalt”, stelt de jury in zijn rapport.
Grote en kleine gemeenten balen van bouwregels Zuid-Holland
10 april, 4:31
Grote en kleine gemeenten in Zuid-Holland hebben hun zorgen geuit over nieuwe regels van de provincie, die volgens hen de woningbouw belemmeren.
Twijfels in Zuid-Holland over halen van doelen landelijk gebied
10 april, 12:18
De meeste partijen in de Zuid-Hollandse politiek hebben twijfels over de plannen die in zestien deelgebieden zijn gemaakt voor de aanpak van het landelijk gebied.
Huurprijzen stijgen harder dan koopwoningprijzen
10 april, 9:31
Volgens Huurwoningen.nl en Pararius moesten nieuwe huurders in het eerste kwartaal gemiddeld 21,12 euro per vierkante meter per maand neerleggen.
ABN AMRO: investeringen defensie vergroten druk op bouwcapaciteit
9 april, 12:29
Kazernes, opslagplaatsen en oefenterreinen dingen om dezelfde aannemers, ingenieurs en installateurs die ook nodig zijn voor bijvoorbeeld woningbouw.
Europa kent 831 miljoen euro subsidie toe aan Utrechtse projecten
9 april, 9:27
Het gaat onder meer om projecten tegen oververhitting van gebouwen, slimmer gebruik van energie en het hergebruik van materialen en grondstoffen.
Rotterdam mag woningen gaan bouwen aan de Parkhaven
8 april, 3:38
De Raad van State maakte woensdag bekend dat alle bezwaren tegen het bestemmingsplan zijn verworpen.
Ga naar het nieuws-archief
Robert Muis
Redacteur
0
0
0
0
Voor een optimale gebruikservaring plaatst Architectenweb functionele cookies. Wat de verschillende cookies precies doen leggen we uit in een
overzicht
. Cookies van social media kun je optioneel
aanzetten
.
Akkoord
Instellingen
Annuleren
OK
Sluiten
Doorgaan
Inloggen
Maak een gratis persoonlijk account aan
Feedback
Feedback
Wij horen graag jouw feedback. Laat je reactie achter en eventueel jouw e-mail adres.
Reactie
Verstuur