Projecten
Producten
Bedrijven
Vacatures
Agenda
Awards
Podcasts
more_horiz
Videos
Magazine
Thema's
Favorieten
Profiel
Uitloggen
Abonneer je nu op onze nieuwsbrieven!
Abonneren
Nee, bedankt
Ja, denk met me mee rond de
materialisering van mijn project
Lindershof met links het Lindershuis en rechts het voormalige bankgebouw
Copyright: Copyright: Kees Hummel en Rijnboutt
Zicht op Lindershuis en langsgevel aan Raamstraat
Copyright: Copyright: Kees Hummel en Rijnboutt
Lindershuis
Copyright: Copyright: Kees Hummel en Rijnboutt
Bankgebouw
Copyright: Copyright: Kees Hummel en Rijnboutt
Lindershof, plint met vier woningen en entree naar bovenliggende appartementen
Copyright: Copyright: Kees Hummel en Rijnboutt
Lindershof, detail van plint
Copyright: Copyright: Kees Hummel en Rijnboutt
Lindershof, patio
Copyright: Copyright: Kees Hummel en Rijnboutt
Lindershof, patio en achterzijde appartementen
Copyright: Copyright: Kees Hummel en Rijnboutt
Entree appartementen
Copyright: Copyright: Kees Hummel en Rijnboutt
Copyright: Copyright: Rijnboutt
Copyright: Copyright: Rijnboutt
Copyright: Copyright: Rijnboutt
Copyright: Copyright: Rijnboutt
Copyright: Copyright: Rijnboutt
Copyright: Copyright: Rijnboutt
Copyright: Copyright: Rijnboutt
Copyright: Copyright: Rijnboutt
Transformatie voormalig warenhuis en bankgebouw in Dordrecht gereed
21 mei 2024, 14:18
In de binnenstad van Dordrecht zijn het Lindershuis en het naastgelegen, voormalige bankgebouw aan de Bagijnhof naar ontwerp van
Rijnboutt
getransformeerd tot winkels en woningen.
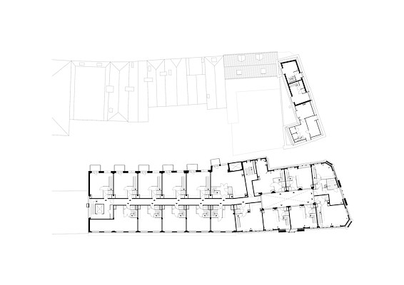
Zowel het Lindershuis als het bankgebouw zijn gemeentelijke monumenten. In het transformatieproces is de niet-monumentale bebouwing op het binnenterrein gesloopt voor de aanleg van een collectief binnenhof met daaromheen privé buitenruimten. De naam voor het gehele project, Lindershof, sluit goed bij de historische context.
Impuls
Het Lindershuis aan de Raamstraat was oorspronkelijk een iconisch warenhuis dat in 1920 werd opgericht door de Gebroeders Linders. Het bankgebouw aan de Bagijnhof dateert uit 1938. Aan de Lange Breestraat, in het verlengde van het bankgebouw, staat nog een reeks historische panden die gedurende een langere periode, tussen de zestiende- tot de laat negentiende eeuw, zijn gebouwd. Deze reeks is overigens geen onderdeel van dit project. Het college van burgemeester en wethouders hoopte bij de start van deze binnenstedelijke ontwikkeling ook op de verwachte impuls van het project voor de binnenstad van Dordrecht.
Tweede leven
In het ontwerp worden de identiteit van het Lindershuis en het bankgebouw benadrukt door elk deel een eigen architectonische expressie te geven. Zo krijgen deze bijzondere panden, die al langere tijd (gedeeltelijk) leeg stonden, een kans op een tweede leven.
Op de plek van de oude lichthof van het Lindershuis is een patio gemaakt. Door het verwijderen van het dakbeschot van de voormalige lichthof van het warenhuis, zijn de monumentale kapspanten zichtbaar geworden. De spanten zijn een herinnering aan de lichthof. Deze spanten in de patio zijn ingepakt met zink, de gevels gestuukt en er zijn nieuwe, hoge raamkozijnen toegevoegd. Het levert de bewoners een aangename en intieme woonomgeving in het centrum van de oude stad op.
Plint
Een opvallend element van het ontwerp is de toevoeging van Krensheimer muschelkalksteen in de plint aan de Raamstraat. Deze plint omvat vier grondgebonden woningen en dient tevens als de hoofdentree naar de 28 appartementen op de bovenverdiepingen van het Lindershuis. Deze stijlvolle en robuuste plintgevel moet de Dordtse binnenstad nog eens extra cachet gaan geven. In de plinten van beide gebouwen aan de Bagijnhof zijn winkels gerealiseerd. Boven in het bankgebouw zijn verder enkele woningen toegevoegd.
Bestemming
De transformatie van voormalig warenhuis en bankgebouw naar retail en woningen vond plaats in opdracht van de
Kroonenberg Groep
. Lesley Bamberger, algemeen directeur Kroonenberg Groep: "Wij kijken voortdurend naar mogelijkheden om ons vastgoed te ontwikkelen, waardoor nieuwe kansen voor exploitatie worden gecreëerd. Uitgangspunt is daarbij altijd dat we iets willen toevoegen aan een gebied."
Volgens Frederik Vermeesch, architect bij Rijnboutt, heeft het bureau met veel liefde aan dit bijzondere project ontworpen. Door dit soort waardevolle monumenten een nieuw leven te kunnen geven, door restauratie, transformatie en nieuwe toevoegingen, worden het echt weer nieuwe bestemmingen, aldus Vermeersch.
Trefwoorden
dordrecht
rijnboutt
tranformatie
kroonenberg groep
Locatie
Best gelezen
1
Finalisten presenteren ontwerp voor Shift Landmark in Rotterdam
woensdag, 4 maart
2
Architect Oliver Thill op 55-jarige leeftijd overleden
donderdag, 5 maart
3
Nieuwe Hittekaart Woningmarkt 2026 van BPD toont aanhoudende woningdruk
dinsdag, 3 maart
4
Strijp-S krijgt woonbuurtje met karakteristieken voormalig Philips-terrein
maandag, 2 maart
5
Haagse gemeenteraad stemt in met bouw van 11.400 woningen in nieuw stadscentrum
maandag, 2 maart
Gerelateerde nieuwsberichten
Mattijs Rijnboutt neemt afscheid van Rijnboutt
15 mei 2024
Kerk hervindt buurtfunctie als supermarkt
23 mei 2024
AM, Rijnboutt en SVP winnen selectie voor transformatie oude rechtbank Amersfoort
12 december 2023
Transformatorstation in Dordrecht wordt wooncomplex Stroom
7 oktober 2024
Hudson's Bay-panden op Rokin nu onderkomen van betaalplatform
22 juli 2022
Zuidelijke stationsentree met fietsenstalling Dordrecht geopend
17 december 2024
Voormalig V&D-pand in Maastricht wordt woon- en winkelcomplex
9 december 2024
Een monumentale telefooncentrale herbestemd als verborgen woongebouw
11 december 2024
FARO, BureauVanEig en Juli Ontwerp winnen tender Helingenlocatie Dordrecht
25 september 2025
De Pershal: destijds ruimte voor drukpersen, nu kantoor voor techbedrijf
5 februari 2025
Rijnboutt benoemt Rowan Rijsdijk tot zakelijk directeur
8 september 2025
Mattijs Rijnboutt neemt afscheid van Rijnboutt
15 mei 2024
Kerk hervindt buurtfunctie als supermarkt
23 mei 2024
AM, Rijnboutt en SVP winnen selectie voor transformatie oude rechtbank Amersfoort
12 december 2023
Transformatorstation in Dordrecht wordt wooncomplex Stroom
7 oktober 2024
Hudson's Bay-panden op Rokin nu onderkomen van betaalplatform
22 juli 2022
Zuidelijke stationsentree met fietsenstalling Dordrecht geopend
17 december 2024
Voormalig V&D-pand in Maastricht wordt woon- en winkelcomplex
9 december 2024
Een monumentale telefooncentrale herbestemd als verborgen woongebouw
11 december 2024
FARO, BureauVanEig en Juli Ontwerp winnen tender Helingenlocatie Dordrecht
25 september 2025
De Pershal: destijds ruimte voor drukpersen, nu kantoor voor techbedrijf
5 februari 2025
Rijnboutt benoemt Rowan Rijsdijk tot zakelijk directeur
8 september 2025
Toon alles
Andere nieuwsberichten
André Kempe: ‘Het ging Oliver Thill om het geven van betekenis’
6 maart, 7:15
Agelopen maandag is architect Oliver Thill overleden. Zijn compagnon André Kempe gedenkt de man met wie hij al meer dan 35 jaar bevriend was en ruim een kwarteeuw geleden Atelier Kempe Thill oprichtte.
TconcepT transformeert voormalig warenhuis in Offenbach tot bibliotheek
6 maart, 3:54
Het 12.000 vierkante meter omvattende complex gaat in bredere zin fungeren als een cultuur- en educatiecentrum met vele functies. In 2027 moet Station Mitte, zoals het gebouw zijn volgende leven wordt genoemd, klaar zijn.
Werkstatt gaat verder zonder medeoprichter Niels Groeneveld
6 maart, 2:49
Medeoprichter van Werkstatt Niels Groeneveld stopt als partner bij het bureau, om zich te kunnen richten op zijn gezin en onderwijs. Floor Frings en Raoul Vleugels blijven het Eindhovense bureau leiden.
Binationaal ontwerpteam buigt zich over waterhuishouding Cartagena in Colombia
6 maart, 1:43
Een Colombiaans-Nederlands ontwerpteam met Felixx Landscape Architects & Planners en Witteveen+Bos moedigt Cartagena aan om haar relatie met water te heroverwegen en na te denken over een veerkrachtige toekomst
Kunstmuseum in Den Haag moet worden verbouwd
6 maart, 4:32
Daarvoor dient het museum in het Statenkwartier waarschijnlijk een tijd te sluiten.
Coen van Oostrom benoemd tot nieuwe voorzitter VNO-NCW
6 maart, 12:23
De oprichter van ontwikkelaar Edge volgt in die rol Ingrid Thijssen op, die deze week is begonnen als nieuwe bestuursvoorzitter van de TU Delft.
Rapport: lokaal klimaatbeleid schiet nog tekort
6 maart, 10:25
De makers van de zogeheten Toekomstmeter hebben het beleid van zeventig gemeenten doorgelicht.
Hardt Hyperloop failliet verklaard door rechtbank
5 maart, 11:37
Het Rotterdamse bedrijf was bezig met de ontwikkeling van technologie om mensen op hoge snelheid via capsules door een vacuümbuis te vervoeren.
Onderzoek: zeespiegel kustgebieden hoger dan in studies aangenomen
5 maart, 9:13
De zeespiegel aan de kust is in grote delen van de wereld waarschijnlijk hoger dan in veel wetenschappelijke studies wordt aangenomen.
Gelderland geeft voorrang aan vergunningen met minder stikstof
4 maart, 12:24
De plannen zijn onderdeel van het pakket maatregelen dat het Gelderse bestuur wil nemen om de vergunningverlening voor zaken als de woningbouw weer op gang te krijgen.
Ga naar het nieuws-archief
JaapJan Berg
Redacteur
0
0
0
0
Voor een optimale gebruikservaring plaatst Architectenweb functionele cookies. Wat de verschillende cookies precies doen leggen we uit in een
overzicht
. Cookies van social media kun je optioneel
aanzetten
.
Akkoord
Instellingen
Annuleren
OK
Sluiten
Doorgaan
Inloggen
Maak een gratis persoonlijk account aan
Feedback
Feedback
Wij horen graag jouw feedback. Laat je reactie achter en eventueel jouw e-mail adres.
Reactie
Verstuur