Projecten
Producten
Bedrijven
Vacatures
Agenda
Awards
Podcasts
more_horiz
Videos
Magazine
Thema's
Favorieten
Profiel
Uitloggen
Copyright: Koschuch Architects / WAX
Copyright: Koschuch Architects / WAX
Copyright: Koschuch Architects
Copyright: Koschuch Architects
Copyright: Koschuch Architects
Copyright: Koschuch Architects
Koschuch Architects ontwerpt woontoren in Haarlem Schalkwijk
6 december 2023, 9:48
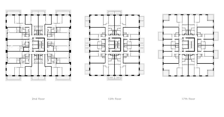
Het naar binnen gekeerde en verouderde winkelcentrum in Haarlem Schalkwijk wordt volgens een masterplan van Jo Coenen getransformeerd tot gemengd stedelijk gebied waarin de gebouwen weer klassieke pleinen en straten vormen. Binnen dit masterplan heeft Koschuch Architects voor Dalpha Real Estate een 75 meter hoge woontoren ontworpen met zo’n 220 woningen.
In antwoord op de vrijstaande positie van de woontoren in het stedelijk weefsel van het centrum van Schalkwijk heeft
Koschuch Architects
een alzijdige woontoren ontworpen die zich naar boven toe trapsgewijs iets verjongd. In de plint is ruimte voor commercieel programma, maar is ook een ruime entreehal ontworpen en kunnen inpandig fietsen geparkeerd worden. De grootte van de huurwoningen in toren varieert van 40 tot 80 m
2
.
“De woontoren is een voorbeeld voor wat wij rationele uitbundigheid noemen”, vertelt Koschuch Architects. “Door een slimme, rationele opzet ontstaat er (budgettaire) ruimte voor extra comfort, ruimtelijkheid of materialiteit. De woningplattegronden zijn onder andere door een heldere, spiegelsymmetrische opzet en een eenduidig maatsysteem uiterst efficiënt ontworpen. Dit vertaalt zich verder in een standaardisering en algehele directheid in het ontwerp, zonder dat het monumentaal wordt.”
“Op de begane grond maken constructieve slimmigheden grote raampartijen mogelijk, waardoor er geen sprake is van 'achterkanten' en er onderin de woontoren een levendig en uitnodigend programma gerealiseerd kan worden. Door buitenruimtes op te nemen in de trapsgewijze ordening zal het gebouw naar boven ranker worden en zich trapsgewijs geleden. In de buitenruimtes zelf wordt groen geïntegreerd.”
“De woontoren wordt gerealiseerd volgens een prefab bouwwijze die ervoor zorgt dat er snel gebouwd kan worden met een hoge kwaliteitsborging”, aldus Koschuch Architects. “Het resultaat zal een gebouw worden met een sterke eenvoud, helderheid en vanzelfsprekendheid met een doorgedreven materialisering en detaillering.”
Koschuch Architects werkt momenteel samen met bouwer Akor aan het Technisch Ontwerp (TO). Het is nog niet bekend wanneer de woontoren opgeleverd zal worden.
Trefwoorden
schalkwijk
koschuch architects
woontoren
hoogbouw
haarlem
Locatie
Best gelezen
1
Spectaculaire overkapping voor vernieuwd Arnhems busstation Kronenburg
maandag, 3 november
2
Groot Egyptisch Museum naar ontwerp van Heneghan Peng en West 8 officieel geopend
maandag, 3 november
3
Vakwerk Architecten uitgeroepen tot Architect van het Jaar 2025
woensdag, 5 november
4
NOAHH ontwerpt nieuw zwembad in Noordersportpark Haarlem
dinsdag, 4 november
5
Winnaars NRP Gulden Feniks 2025 bekend
woensdag, 5 november
Gerelateerde nieuwsberichten
Bouw woontoren Elements in Amstelkwartier van start
3 februari 2023
Rijkskantoor in Haarlem heeft transparanter karakter na verbouwing
3 januari 2024
Koschuch Architects ontwerpt woontoren aan de Waal in Nijmegen
4 januari 2024
Zes lessen rond ‘Gestapeld wonen voor gezinnen’
27 juni 2022
Akkoord in Haarlem over bouw 1.150 appartementen Centrum Schalkwijk
11 mei 2021
163 woningen op voormalig Sonnebornterrein in Haarlem
22 januari 2024
Stedelijk Gymnasium Haarlem verbouwd en uitgebreid door Brique architecten
29 februari 2024
Een van 's lands oudste houten scholen gerenoveerd en opgefrist
12 juni 2024
Mannoury – open bouwen en slim dak
7 juli 2022
Kavel 10b in het Amstelkwartier: de runner-up
12 januari 2024
Rijnboutt presenteert masterplan derde fase vernieuwing Centrum Schalkwijk
14 november 2024
Boek belicht bewogen (bouw)geschiedenis Musis Sacrum
1 november 2022
Woongebouwen met houten modules vervangen verouderde portiekflats Schalkwijk
6 december 2024
Verslag van symposium rond parametrisch ontwerpen
6 februari 2023
Haarlems Prinses Beatrixplein en omgeving gaan op de schop
7 mei 2024
NEXT en Koschuch ontwerpen nieuwbouw Vrijdag Groningen
27 mei 2021
Bouw High5 in Schalkwijk Centrum gestart
10 februari
Herontwikkeling Fluor-terrein tot Elements Haarlem van start gegaan
10 mei 2021
Woontorens Bossa Nova vormen sluitstuk woningbouw in Haarlems Aziëpark
6 december 2024
Nederlandse bureaus maken visie voor stadsdeel in Pforzheim
15 april 2021
Woonproject Tree House rijst letterlijk op tussen de bomen
11 juni
Koschuch Architects ontwerpt toren met dubbellaagse woningen in Amstelkwartier
5 maart 2020
Zorg en regulier wonen gecombineerd in Het Dorp
10 januari 2020
Bouw Huis voor de Amateurkunst Vrijdag in Groningen kan starten
1 juli 2024
Eerste paal Huis van Delft geslagen
8 november 2019
Architecten Musis Arnhem gaan ieder hun eigen weg
15 januari 2019
Boston en Seattle slanke woontorens op Kop van Zuid
21 november 2018
Proeftuin Cajanus van team met HBB groep en FARO wint tender in Haarlem
15 april
Het Speelhuis heropent als volwaardig theater in kerk
10 september 2018
Nijmegen kiest voor plan Stadgoed DUUX van ZUS en Koschuch Architects
28 mei
Van Dongen-Koschuch past Spinoza Hotel in omgeving in
4 oktober 2017
Glazen wanden bieden theater Den Helder zeldzame kwaliteit
22 oktober 2015
Zien–gezien worden bij poppodium Van Dongen–Koschuch
29 oktober 2014
Groen licht in Haarlem voor groot woningbouwproject Spaarnepoort
9 april
Bouw woontoren Elements in Amstelkwartier van start
3 februari 2023
Rijkskantoor in Haarlem heeft transparanter karakter na verbouwing
3 januari 2024
Koschuch Architects ontwerpt woontoren aan de Waal in Nijmegen
4 januari 2024
Zes lessen rond ‘Gestapeld wonen voor gezinnen’
27 juni 2022
Akkoord in Haarlem over bouw 1.150 appartementen Centrum Schalkwijk
11 mei 2021
163 woningen op voormalig Sonnebornterrein in Haarlem
22 januari 2024
Stedelijk Gymnasium Haarlem verbouwd en uitgebreid door Brique architecten
29 februari 2024
Een van 's lands oudste houten scholen gerenoveerd en opgefrist
12 juni 2024
Mannoury – open bouwen en slim dak
7 juli 2022
Kavel 10b in het Amstelkwartier: de runner-up
12 januari 2024
Rijnboutt presenteert masterplan derde fase vernieuwing Centrum Schalkwijk
14 november 2024
Boek belicht bewogen (bouw)geschiedenis Musis Sacrum
1 november 2022
Woongebouwen met houten modules vervangen verouderde portiekflats Schalkwijk
6 december 2024
Verslag van symposium rond parametrisch ontwerpen
6 februari 2023
Haarlems Prinses Beatrixplein en omgeving gaan op de schop
7 mei 2024
NEXT en Koschuch ontwerpen nieuwbouw Vrijdag Groningen
27 mei 2021
Bouw High5 in Schalkwijk Centrum gestart
10 februari
Herontwikkeling Fluor-terrein tot Elements Haarlem van start gegaan
10 mei 2021
Woontorens Bossa Nova vormen sluitstuk woningbouw in Haarlems Aziëpark
6 december 2024
Nederlandse bureaus maken visie voor stadsdeel in Pforzheim
15 april 2021
Woonproject Tree House rijst letterlijk op tussen de bomen
11 juni
Koschuch Architects ontwerpt toren met dubbellaagse woningen in Amstelkwartier
5 maart 2020
Zorg en regulier wonen gecombineerd in Het Dorp
10 januari 2020
Bouw Huis voor de Amateurkunst Vrijdag in Groningen kan starten
1 juli 2024
Eerste paal Huis van Delft geslagen
8 november 2019
Architecten Musis Arnhem gaan ieder hun eigen weg
15 januari 2019
Boston en Seattle slanke woontorens op Kop van Zuid
21 november 2018
Proeftuin Cajanus van team met HBB groep en FARO wint tender in Haarlem
15 april
Het Speelhuis heropent als volwaardig theater in kerk
10 september 2018
Nijmegen kiest voor plan Stadgoed DUUX van ZUS en Koschuch Architects
28 mei
Van Dongen-Koschuch past Spinoza Hotel in omgeving in
4 oktober 2017
Glazen wanden bieden theater Den Helder zeldzame kwaliteit
22 oktober 2015
Zien–gezien worden bij poppodium Van Dongen–Koschuch
29 oktober 2014
Groen licht in Haarlem voor groot woningbouwproject Spaarnepoort
9 april
Toon alles
Andere nieuwsberichten
Voorlopig ontwerp renovatie en verduurzaming provinciehuis Utrecht gepresenteerd
1 uur geleden
Behalve dat het energielabel van het dertig jaar oude gebouw fors wordt opgekrikt, krijgen de werkplekken, vergaderruimtes en openbare ruimtes een eigentijdse en volgens de provincie uitnodigende inrichting. INBO is verantwoordelijk voor het ontwerp.
Mix van oude en nieuwe werken plus wereldrecordpoging tijdens GLOW 2025
3 uur geleden
Zaterdag opent de Eindhovense burgemeester Jeroen Dijsselbloem de twintigste editie van GLOW. Tijdens deze jubileumeditie van het lichtkunstfestival zijn nieuwe creaties te zien en worden bekende werken uit het verleden nogmaals getoond.
Foto's uitreiking Architectenweb Awards 2025
Gisteren, 20:45
Op woensdagavond 5 november 2025 zijn in het Keilepand in Rotterdam de Architectenweb Awards 2025 uitgereikt. Architectuurfotograaf Jan Paul Mioulet / DAPh maakte een beeldverslag van deze feestelijke avond.
BDG en LAP ontwerpen plan met 24 woningen op plek oud zwembad Bilthoven
Gisteren, 14:03
Op de plek van het oude zwembad Brandenburg in Bilthoven worden 24 woningen gerealiseerd. De woningen worden in blokken verspreid over het terrein, georiënteerd op het omringende groen ingerichte landschap.
Provincie Zuid-Holland steekt ‘geen cent extra’ in warmtenetwerk
2 uur geleden
Het ministerie vroeg om een extra bijdrage voor een ondergronds leidingnetwerk waarmee tienduizenden woningen worden verwarmd met restwarmte uit de Rotterdamse haven.
Provincies focussen op agrarisch natuurbeheer tegen stikstof
Gisteren, 15:11
De betrokken partijen hebben daarover afspraken gemaakt, maar benadrukken dat steun van de rijksoverheid nodig blijft.
Corporatiewoning harder geraakt door klimaatverandering
Gisteren, 10:46
Bewoners van de onderzochte woningen hebben bijvoorbeeld vaker last van hittestress door warme nachten en krijgen vaker te maken met wateroverlast bij hevige buien.
Arons en Gelauff benoemt drie associates
4 november, 12:05
Eva Heldeweg, Gijs Beckman en Thom Zijlstra zijn benoemd tot associate partner bij Arons en Gelauff architecten.
DigiBouw 2025 – enkele tips
4 november, 11:14
Op 19 en 20 november 2025 vindt in het Beatrixgebouw van de Jaarbeurs in Utrecht de tweede editie van DigiBouw plaats. Enkele tips voor sessies die voor architecten van toegevoegde waarde zijn.
Limburg trekt vijftig miljoen uit voor woningbouw bij intercitystations
3 november, 5:13
De provincie Limburg trekt vijftig miljoen euro uit voor de plannen om tot 2040 ruim 30.000 woningen in de buurt van intercitystations te bouwen.
Ga naar het nieuws-archief
0
0
0
0
Voor een optimale gebruikservaring plaatst Architectenweb functionele cookies. Wat de verschillende cookies precies doen leggen we uit in een
overzicht
. Cookies van social media kun je optioneel
aanzetten
.
Akkoord
Instellingen
Annuleren
OK
Sluiten
Doorgaan
Inloggen
Maak een gratis persoonlijk account aan
Feedback
Feedback
Wij horen graag jouw feedback. Laat je reactie achter en eventueel jouw e-mail adres.
Reactie
Verstuur