Projecten
Producten
Bedrijven
Vacatures
Agenda
Awards
Podcasts
more_horiz
Videos
Magazine
Favorieten
Profiel
Uitloggen
Abonneer je nu op onze nieuwsbrieven!
Abonneren
Nee, bedankt
Ja, denk met me mee rond de
materialisering van mijn project
Copyright: Bart van Hoek
Copyright: Bart van Hoek
Copyright: Bart van Hoek
Copyright: Bart van Hoek
Copyright: Bart van Hoek
Copyright: Bart van Hoek
Copyright: Bart van Hoek
Copyright: Bart van Hoek
Copyright: Bart van Hoek
Copyright: Bart van Hoek
Copyright: Bart van Hoek
Copyright: Bart van Hoek
Copyright: Bart van Hoek
Copyright: Bart van Hoek
Copyright: Bart van Hoek
De al eerder door cepezed getransformeerde zaal
Copyright: Gerard van Hal
De al eerder door cepezed getransformeerde zaal
Copyright: Gerard van Hal
Copyright: Bart van Hoek
Copyright: van Dongen – Koschuch Architects and Planners
Copyright: van Dongen – Koschuch Architects and Planners
Copyright: van Dongen – Koschuch Architects and Planners
Copyright: van Dongen – Koschuch Architects and Planners
Copyright: van Dongen – Koschuch Architects and Planners
Copyright: van Dongen – Koschuch Architects and Planners
Copyright: van Dongen – Koschuch Architects and Planners
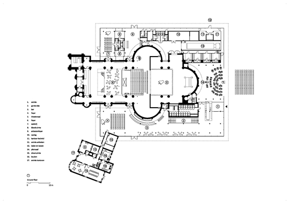
Het Speelhuis heropent als volwaardig theater in kerk
10 september 2018, 16:52
Op 28 september wordt theater Het Speelhuis in Helmond geopend. Zes jaar na de brand die het gelijknamige theater van architect Piet Blom in de as legde, is het tijdelijke onderkomen in de voormalige Onze Lieve Vrouwekerk voltooid tot een volwaardig theater.
Van Dongen – Koschuch Architects and Planners
ontwierp hiervoor een glazen ‘omarming’ als uitbreiding. Het interieurontwerp voor deze uitbreiding is gemaakt door
Heyligers design + projects
.
Door dit volume zo transparant en ingetogen mogelijk uit te voeren, blijft de historische bebouwing afleesbaar en vormt het exterieur van de kerk als decor voor het gehele theater. De nieuwbouw kent een open plattegrond, met daarin kleine volumes voor de functies die om privacy vragen.
De voormalige Onze Lieve Vrouwekerk werd begin 2013 in gebruik genomen als tijdelijk theater, nadat een jaar eerder het bekende theater Het Speelhuis van architect Piet Blom was afgebrand. Het theater, waarvoor cepezed het ontwerp had gemaakt, beviel zo goed dat in 2015 werd besloten om er een permanent theater van te maken. Van Dongen-Koschuch werd aangesteld om de hierbij noodzakelijke uitbreiding te ontwerpen.
In de uitbreiding zijn onder meer de foyer en functies voor publiek en artiesten opgenomen. Er is een duidelijke scheiding aangebracht tussen front- en backstage. Aan de zuidzijde van de kerk liggen de foyer en publieke functies, terwijl de aan de artiesten gerelateerde functies aan de andere kant in de luwte van het openbare gebied zijn gesitueerd.
Pleinzaal
Verbindend element is de Pleinzaal. Deze multifunctionele ruimte kan worden ingezet voor lezingen of kleine optredens. De gevel aan het Speelhuisplein kan geheel worden geopend, zodat de openbare ruimte en het gebouw een geheel worden. De houten balie met 135 gloeilampen erboven bij de entree van het theater fungeert als blikvanger.
Ten opzichte van de situatie toen het gebouw nog als kerk functioneerde is de hoofdentree naar de kant van het centrum verschoven, in plaats van de woonwijk. De entree ligt aan het Speelhuisplein en een wat meer gebruikte weg richting het centrum.
Om het contrast tussen de massieve, bestaande bebouwing en het transparante, open paviljoen te benadrukken is het dak zo dun mogelijk geconstrueerd en heeft het een tot een minimale maat aflopend overstek. Het dak lijkt hierbij een gewichtloos element, zwevend rondom de kerk.
Bij de ruimten waar een grote overspanning programmatisch een vereiste was is onder het plafond een vakwerk toegevoegd, waardoor de constructiehoogte van het dak is geminimaliseerd. Tegelijkertijd dient dit vakwerk als voorziening voor de theatertechniek, waarbij de afmetingen van de buisprofielen aangepast zijn op de standaard klemmen van de theaterverlichting.
Glas
De aansluiting van het dak op de kerk is grotendeels in glas uitgevoerd, waarbij geen constructieonderdelen of kozijnprofielen op de bestaande kerkgevel aansluiten. Het glasdak is in de bestaande kerkmuur opgelegd op een verborgen stalen hoeklijn en de glasdelen zijn onderling verbonden door slechts een kitvoeg.
Hierdoor kan het daglicht onbelemmerd het gebouw toetreden - met egaal strijklicht langs de bakstenen wand - en versterkt het daarmee de aanwezigheid van het oude exterieur in het nieuwe interieur.
Aan de theaterzaal lijkt ogenschijnlijk weinig veranderd, maar er is technisch veel geïnvesteerd, met name op het gebied van geluid. Daarnaast lichten de glas-in-loodramen vanaf nu op dankzij ledlampen, zodat van buitenaf te zien is dat er een voorstelling wordt gespeeld.
Trefwoorden
kerk
helmond
transformatie
theater
van dongen-koschuch
speelhuis
cepezed
van dongen - koschuch architects and planners
Locatie
Best gelezen
1
44 woningen op bosrijke locatie in Driebergen
vrijdag, 15 mei
2
Parkeerplein naast Tilburgse schouwburg maakt plaats voor multifunctionele gebouwen
woensdag, 13 mei
3
'Zwevend huis' naar ontwerp van Benthem Crouwel in Amersfoortse wijk
woensdag, 13 mei
4
Schoonhovens College van Geurst & Schulze architecten stimuleert vakmanschap, ontmoeting en leerprestaties
dinsdag, 12 mei
5
Zijn tenders in Duitsland beter geregeld dan in Nederland?
dinsdag, 12 mei
Gerelateerde nieuwsberichten
DAVL Studio oppert een woontoren in bestaande kerk
3 september 2019
Koschuch Architects ontwerpt toren met dubbellaagse woningen in Amstelkwartier
5 maart 2020
Digitaal ontworpen zaalwanden bieden optimaal geluid en visueel spektakel
18 mei 2020
Naoorlogse kerk in Rotterdam transformeert tot woongebouw
10 juni 2020
Nieuw gebouw voor Utrecht Science Park van cepezed
17 april 2019
Mannoury – open bouwen en slim dak
7 juli 2022
Koschuch Architects ontwerpt woontoren in Haarlem Schalkwijk
6 december 2023
Koschuch Architects ontwerpt woontoren aan de Waal in Nijmegen
4 januari 2024
Flexibel bedrijfsverzamelgebouw met laboratoria geopend op Utrecht Science Park
17 oktober 2023
Renovatie Stadsschouwburg Nijmegen dringend noodzakelijk
9 november 2021
Gemeenteraad Helmond akkoord met basisontwerp Huis voor de Stad
22 juli 2020
Kerk Gronings dorp verbouwd tot 'schoolkerk'
22 april 2020
Nieuwe invulling voor historisch theatergebouw in Brussel
3 maart 2020
Een op vijf kerken is geen kerk meer
25 juni 2019
Nieuw stadion Helmond Sport vormt geheel met landschap
12 juni 2019
Nieuw busstation Tilburg in gebruik genomen
29 april 2019
cepezed brengt eerste beelden ontwerp VU-onderzoeksgebouw naar buiten
15 april 2019
Architecten Musis Arnhem gaan ieder hun eigen weg
15 januari 2019
Boston en Seattle slanke woontorens op Kop van Zuid
21 november 2018
Beeldverslag uitreiking Architectenweb Awards 2018
9 november 2018
Grote verbouwing MECC Maastricht naar ontwerp cepezed
11 oktober 2018
Van Dongen–Koschuch ontwerpt Speelhuis
28 april 2015
Theater Helmond blijft in kerk
31 januari 2014
Tijdelijk theater Helmond in gebruik genomen
11 februari 2013
Architectuurjaar 2012 (7): 't Speelhuis gesloopt
18 december 2012
DAVL Studio oppert een woontoren in bestaande kerk
3 september 2019
Koschuch Architects ontwerpt toren met dubbellaagse woningen in Amstelkwartier
5 maart 2020
Digitaal ontworpen zaalwanden bieden optimaal geluid en visueel spektakel
18 mei 2020
Naoorlogse kerk in Rotterdam transformeert tot woongebouw
10 juni 2020
Nieuw gebouw voor Utrecht Science Park van cepezed
17 april 2019
Mannoury – open bouwen en slim dak
7 juli 2022
Koschuch Architects ontwerpt woontoren in Haarlem Schalkwijk
6 december 2023
Koschuch Architects ontwerpt woontoren aan de Waal in Nijmegen
4 januari 2024
Flexibel bedrijfsverzamelgebouw met laboratoria geopend op Utrecht Science Park
17 oktober 2023
Renovatie Stadsschouwburg Nijmegen dringend noodzakelijk
9 november 2021
Gemeenteraad Helmond akkoord met basisontwerp Huis voor de Stad
22 juli 2020
Kerk Gronings dorp verbouwd tot 'schoolkerk'
22 april 2020
Nieuwe invulling voor historisch theatergebouw in Brussel
3 maart 2020
Een op vijf kerken is geen kerk meer
25 juni 2019
Nieuw stadion Helmond Sport vormt geheel met landschap
12 juni 2019
Nieuw busstation Tilburg in gebruik genomen
29 april 2019
cepezed brengt eerste beelden ontwerp VU-onderzoeksgebouw naar buiten
15 april 2019
Architecten Musis Arnhem gaan ieder hun eigen weg
15 januari 2019
Boston en Seattle slanke woontorens op Kop van Zuid
21 november 2018
Beeldverslag uitreiking Architectenweb Awards 2018
9 november 2018
Grote verbouwing MECC Maastricht naar ontwerp cepezed
11 oktober 2018
Van Dongen–Koschuch ontwerpt Speelhuis
28 april 2015
Theater Helmond blijft in kerk
31 januari 2014
Tijdelijk theater Helmond in gebruik genomen
11 februari 2013
Architectuurjaar 2012 (7): 't Speelhuis gesloopt
18 december 2012
Toon alles
Andere nieuwsberichten
KAAN Architecten en TU Delft presenteren boek Building Narratives
2 uur geleden
Hoe kunnen verhalen het ontwerp kunnen sturen en vormgeven, in plaats van slechts als vertelmiddel te dienen? Die vraag staat centraal in het boek 'Building Narratives. Instances from the Architecture of Dialogue'.
Amsterdam start selectie voor circulair en gestapeld bedrijfsgebouw langs A5
4 uur geleden
De gemeente Amsterdam is een selectieprocedure gestart voor de bouw van een gestapeld en circulair bedrijfsgebouw in Sloterijk Poort Noord.
Noordbrabants Museum zoekt jonge architect voor herinrichting vaste collectiepresentatie
Vandaag, 10:41
Het Noordbrabants Museum in Den Bosch zoekt een jonge architect voor de herinrichting van diens vaste collectiepresentatie. Daartoe heeft het museum een open call uitgeschreven.
Stuur nu jullie project in voor de prijs voor Kantoorgebouw van het Jaar 2026
Vandaag, 09:00
Hebben jullie een kantoorgebouw in Nederland ontworpen dat in de periode van 1 september 2025 tot en met 31 augustus 2026 opgeleverd of voltooid is? Stuur dat dan nu in voor de Architectenweb Awards 2026! Deadline is 19 juni 2026.
Eneco pleit voor voldoende marktwerking in de energietransitie
1 uur geleden
Aanleiding voor de oproep van het energiebedrijf is de steeds grotere rol van de overheid in de productie van energie.
Nationaal Park Utrechtse Heuvelrug wordt twee keer zo groot
3 uur geleden
Minister Van Essen heeft besloten om na het zuidelijke deel ook het noorden van het gebied de officiële status van Nationaal Park te geven.
BPD en Rabobank stimuleren biobased woningbouw en drinkwaterbesparing
Vandaag, 11:47
BPD en Rabobank kondigen de bouwstart aan van 160 nieuwbouwwoningen met biobased materialen en drinkwaterbesparende technieken.
ITA Ensemble speelt 'De Architect' van sterregisseur Rebecca Frecknall
15 mei, 3:11
De voorstelling is een hedendaagse bewerking van Henirik Ibsens 'Bouwmeester Solness'.
Commissie: milieustudie Schiphol schiet tekort voor omwonenden
15 mei, 12:08
De Commissie voor de milieueffectrapportage stelt zelfs dat het rapport herzien zou moeten worden.
Koen Pörtzgen benoemd tot partner bij Zecc Architecten
15 mei, 10:15
Samen met Marnix van der Meer (54) en Bart Kellerhuis (47) vormt de 39-jarige Pörtzgen vanaf dit jaar de directie van het Utrechtse bureau.
Ga naar het nieuws-archief
Ronnie Weessies
Redacteur
0
0
0
0
Voor een optimale gebruikservaring plaatst Architectenweb functionele cookies. Wat de verschillende cookies precies doen leggen we uit in een
overzicht
. Cookies van social media kun je optioneel
aanzetten
.
Akkoord
Instellingen
Annuleren
OK
Sluiten
Doorgaan
Inloggen
Maak een gratis persoonlijk account aan
Feedback
Feedback
Wij horen graag jouw feedback. Laat je reactie achter en eventueel jouw e-mail adres.
Reactie
Verstuur