Projecten
Producten
Bedrijven
Vacatures
Agenda
Awards
Podcasts
more_horiz
Videos
Magazine
Thema's
Favorieten
Profiel
Uitloggen
Abonneer je nu op onze nieuwsbrieven!
Abonneren
Nee, bedankt
Ja, denk met me mee rond de
materialisering van mijn project
Exterieur, render
Copyright: Play-Time
Maquette Ancien Théâtre des Variétés
Copyright: Adrià Goula
Binnenstraat, render
Copyright: Play-Time
Toren, render
Copyright: Play-Time
Maquette Ancien Théâtre des Variétés
Copyright: Adrià Goula
Maquette Ancien Théâtre des Variétés
Copyright: Adrià Goula
Maquette Ancien Théâtre des Variétés
Copyright: Adrià Goula
Maquette Ancien Théâtre des Variétés
Copyright: Adrià Goula
Bestaande situatie Ancien Théâtre des Variétés
Copyright: Adrià Goula
Bestaande situatie Ancien Théâtre des Variétés
Copyright: Adrià Goula
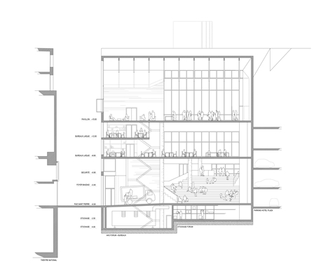
Axonometrie
Copyright: Flores & Prats Arquitectes
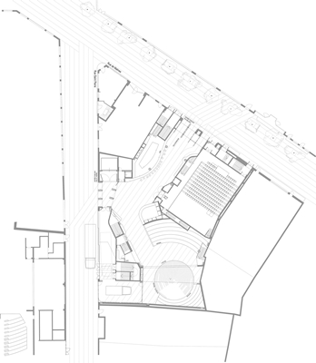
Situatie
Copyright: Flores & Prats Arquitectes
Copyright: Flores & Prats Arquitectes
Copyright: Flores & Prats Arquitectes
Copyright: Flores & Prats Arquitectes
Copyright: Flores & Prats Arquitectes
Copyright: Flores & Prats Arquitectes
Copyright: Flores & Prats Arquitectes
Copyright: Flores & Prats Arquitectes
Nieuwe invulling voor historisch theatergebouw in Brussel
3 maart 2020, 15:28
Na een lange periode van leegstand krijgt het Ancien Théâtre des Variétés in Brussel een nieuwe bestemming als ‘internationaal laboratorium voor artistieke creatie’. Het Spaanse bureau
Flores & Prats Arquitectes
en het bureau
Ouest Architecture
uit Brussel hebben gezamenlijk de competitie voor restauratie en herbestemming van het historische gebouw gewonnen.
Het project betekent een nieuw hoofdstuk voor een belangrijk onderdeel van de architectuur- en cultuurgeschiedenis in Brussel. Het Ancien Théâtre des Variétés is in 1937 geopend als vaudeville-theater en vormde destijds een van de modernste locaties in Brussel voor de entertainment-cultuur. Het gebouw was ontworpen door de modernistische architecten Victor Bourgeois en Maurice Gridaine.
Vrijzinnige bestemming
In de jaren 1960-1961 onderging het theater een verbouwing tot cinerama en in de jaren tachtig raakte het gebouw in onbruik. Nu ziet de nieuwe eigenaar, Bruxelles Laïque, mogelijkheden voor het gebouw die passen in de ambitieuze sociale agenda van deze vrijzinnige vereniging.
Het programma omvat twee theaterzalen, kantoren, kleedkamers, een horeca-gelegenheid en een open forumruimte. De vrijzinnige vereniging wil het historische gebouw omvormen tot een ‘internationaal laboratorium voor artistieke creatie’ en een ‘open, inclusieve publieke ruimte’ voor debatten, kunstpresentaties en muziekuitvoeringen.
Ruim en licht
Flores & Prats en Ouest Architecture gaan voor hun ontwerp van het nieuwe gebouw uit van het bestaande theater. Met zijn bijzondere afmetingen, grote hoogte en open ruimte die de schaal heeft van een stadsplein bezit het gebouw al de kenmerken die het nodig heeft voor zijn nieuwe invulling, legt Flores & Prats uit.
De jury noemt de ruimten, volumes en materialen in het winnende plan van hoge kwaliteit. Ook is de jury lovend over de grote hoeveelheid lichtinval in het interieur. De realisatie van een bijzonder hoog dakraam zorgt voor daglicht in het hart van het pand “tot op het niveau van het Forum”.
Verder waardeerde de jury in de plannen het werk aan de monumentale gevels en de opwaardering die de architecten daar voorstellen. Ook de realisatie van een binnenstraat die de Rue de Malines of Mechelsestraat en de Rue Saint Pierre of Sint-Pietrsstraat verbindt wordt door de juryleden verwelkomt. In totaal betreft het project circa 5.000 m
2
.
Zonder nostalgie
De benadering van de opdracht omschrijft Flores & Prats als “niet werken met de nostalgie naar, maar met de herinnering aan het gebouw.” Het architectenbureau uit Barcelona heeft een eerdere ervaring met het verbouwen van een historisch theatergebouw. In 2016 voltooide het bureau de Sala Beckett in Barcelona.
Trefwoorden
herbestemming
flores & prats arquitectes
ouest architecture
ancien théâtre des variétés
transformatie
restauratie
belgië
publiek gebouw
theater
brussel
renovatie
Locatie
Best gelezen
1
De Urbanisten schetst perspectief voor vitale en aantrekkelijke Rotterdamse binnenstad
vrijdag, 13 maart
2
Nominaties Amsterdamse Architectuurprijs 2026 bekend
vrijdag, 13 maart
3
Studio Vinke en Loos van Vliet ontwerpen blok met woningen in haven Lelystad
vrijdag, 13 maart
4
Houten Stelthuis van Woonpioniers is aardbevings- en klimaatbestendig
woensdag, 18 maart
5
BureauVanEig verbetert uitstraling Haagse rijtjeswoningen bij verduurzaming
dinsdag, 17 maart
Gerelateerde nieuwsberichten
Derde leven voor oud warenhuismagazijn als theater
16 januari 2020
Binst Architects en Snøhetta winnen transformatieproject in centrum Brussel
24 maart 2020
Krft ontwerpt gebouw voor podiumkunsten in Brighton
6 januari 2020
Brouwerij Eylenbosch krijgt herbestemming naar ontwerp OSK-AR
9 april 2020
B-architecten en VELD winnen competitie OCMW Brussel
11 november 2020
Bouwkundige restauratie Pieter Teylers Huis in Haarlem afgerond (met video)
8 maart 2021
Uitbreiding voor kunstencentrum in Mechelen door dmvA
8 maart 2021
Appartementengebouw in hsb frist hart van Marollenwijk op
30 maart 2021
Aarlen-Triergebouw in Brussel krijgt ingrijpende renovatie met behoud architectuur
15 juni 2021
Neutelings Riedijk ontwerpt theater en hotel UID Amsterdam
17 juli 2019
Sergison Bates wint ontwerpwedstrijd kunstenkwartier in Leuven
18 april 2019
NOAHH ontwerpt nieuw Theater aan de Parade
15 maart 2019
UNStudio ontwerpt theater- en danscomplex Hongkong
6 december 2018
Het Speelhuis heropent als volwaardig theater in kerk
10 september 2018
Restauratie monumentaal complex in centrum Haarlem gestart
18 mei 2020
Brussel schrijft aanbesteding uit voor cultureel centrum Molenbeek
5 oktober 2020
Art nouveau-herenhuis in Brussel transformeert naar museum
29 maart 2021
Winnend plan van Civic Architects, BC architects en AWB voor cultuurcentrum Brussel
14 september 2021
Derde leven voor oud warenhuismagazijn als theater
16 januari 2020
Binst Architects en Snøhetta winnen transformatieproject in centrum Brussel
24 maart 2020
Krft ontwerpt gebouw voor podiumkunsten in Brighton
6 januari 2020
Brouwerij Eylenbosch krijgt herbestemming naar ontwerp OSK-AR
9 april 2020
B-architecten en VELD winnen competitie OCMW Brussel
11 november 2020
Bouwkundige restauratie Pieter Teylers Huis in Haarlem afgerond (met video)
8 maart 2021
Uitbreiding voor kunstencentrum in Mechelen door dmvA
8 maart 2021
Appartementengebouw in hsb frist hart van Marollenwijk op
30 maart 2021
Aarlen-Triergebouw in Brussel krijgt ingrijpende renovatie met behoud architectuur
15 juni 2021
Neutelings Riedijk ontwerpt theater en hotel UID Amsterdam
17 juli 2019
Sergison Bates wint ontwerpwedstrijd kunstenkwartier in Leuven
18 april 2019
NOAHH ontwerpt nieuw Theater aan de Parade
15 maart 2019
UNStudio ontwerpt theater- en danscomplex Hongkong
6 december 2018
Het Speelhuis heropent als volwaardig theater in kerk
10 september 2018
Restauratie monumentaal complex in centrum Haarlem gestart
18 mei 2020
Brussel schrijft aanbesteding uit voor cultureel centrum Molenbeek
5 oktober 2020
Art nouveau-herenhuis in Brussel transformeert naar museum
29 maart 2021
Winnend plan van Civic Architects, BC architects en AWB voor cultuurcentrum Brussel
14 september 2021
Toon alles
Andere nieuwsberichten
Projecten gezocht voor vijfde Adriaan Dessingprijs
Gisteren, 14:42
De tweejaarlijkse architectuurprijs vestigt de aandacht op bijzondere, gerealiseerde plannen in de Zuid-Hollandse gemeenten Westland en Midden-Delfland. Het kan gaan om nieuwbouw, restauratie of landschappelijke projecten.
Nora Prins en Floor Marree versterken directie ECHO
Gisteren, 12:24
Met de uitbreiding verstevigt ECHO naar eigen zeggen de aansturing van zowel het ontwerpbureau als de adviespraktijk voor gebiedsontwikkeling.
Luxe appartementengebouw naast klooster Etten-Leur door Studio AAAN klaar
Gisteren, 10:50
Bij klooster ’t Withof in Etten-Leur is afgelopen jaar woongebouw De Hoogschout opgeleverd. Het door Studio AAAN ontworpen complex bestaat uit veertig ruime appartementen.
Hogeschool InHolland realiseert nieuw hoofdgebouw op campus Alkmaar
18 maart, 3:38
Het gebouw, dat is ontworpen door BRTArchitecten, moet een plek worden waar studenten, docenten en andere betrokkenen samenkomen om te leren, onderzoeken en samenwerken. Spil in het ontwerp vormt een doorlopende verbindende ruimte.
Provincie schrapt beoogde locaties windturbines in Groene Hart
Gisteren, 13:35
De provincie had twaalf plekken op het oog, maar dat leidde tot maatschappelijk en politiek verzet.
Staten Utrecht willen netcongestie versneld aanpakken
Gisteren, 09:44
De fracties wezen op de noodzaak van het zo snel mogelijk realiseren van een hoogspanningsstation dat essentieel is voor het opsplitsen van het elektriciteitsnetwerk tussen de Flevopolder, Gelderland en Utrecht.
Rotterdam wil woningbouw versnellen met pilot ‘Ontwikkelaar aan Zet’
18 maart, 4:33
De gemeente Rotterdam start een pilot waarbij projectontwikkelaars een grotere rol krijgen bij de voorbereiding van woningbouwprojecten.
Veel meer financieringsaanvragen Warmtefonds om hogere gasprijzen
18 maart, 2:31
De gestegen gasprijzen zorgen ervoor dat veel meer huiseigenaren financiering aanvragen voor het energiezuiniger maken van hun woning.
Grondprijs voor landbouwgrond loopt op tot bijna een ton
18 maart, 9:36
Ook overheden en andere partijen zoeken naar grond voor onder meer woningbouw, natuur en infrastructuur.
ANWB: betrek bewoners beter bij parkeerplannen in de wijk
17 maart, 2:00
Bewoners vinden naast parkeerruimte groen en leefbaarheid in hun wijk ook belangrijk, stelt de organisatie.
Ga naar het nieuws-archief
Robert Muis
Redacteur
0
0
0
0
Voor een optimale gebruikservaring plaatst Architectenweb functionele cookies. Wat de verschillende cookies precies doen leggen we uit in een
overzicht
. Cookies van social media kun je optioneel
aanzetten
.
Akkoord
Instellingen
Annuleren
OK
Sluiten
Doorgaan
Inloggen
Maak een gratis persoonlijk account aan
Feedback
Feedback
Wij horen graag jouw feedback. Laat je reactie achter en eventueel jouw e-mail adres.
Reactie
Verstuur