Copyright: Riccardo De Vecchi
Copyright: Riccardo De Vecchi
Copyright: Riccardo De Vecchi
Copyright: Riccardo De Vecchi
Copyright: Riccardo De Vecchi
Copyright: Riccardo De Vecchi
Copyright: Riccardo De Vecchi
Copyright: Riccardo De Vecchi
Copyright: Riccardo De Vecchi
Copyright: Riccardo De Vecchi
Copyright: Riccardo De Vecchi
Copyright: Riccardo De Vecchi
Woonhuis voor de verbouwing
Copyright: Riccardo De Vecchi
Woonhuis voor de verbouwing
Copyright: Riccardo De Vecchi
Woonhuis voor de verbouwing
Copyright: Riccardo De Vecchi
Woonhuis voor de verbouwing
Copyright: Riccardo De Vecchi
Woonhuis voor de verbouwing
Copyright: Riccardo De Vecchi
Woonhuis voor de verbouwing
Copyright: Riccardo De Vecchi
Woonhuis voor de verbouwing
Copyright: Riccardo De Vecchi
Woonhuis voor de verbouwing
Copyright: Riccardo De Vecchi
Woonhuis voor de verbouwing
Copyright: Riccardo De Vecchi
Woonhuis voor de verbouwing
Copyright: Riccardo De Vecchi
Schema oude situatie
Copyright: PLNLstudio
Schema ontwerp nieuwe situatie
Copyright: PLNLstudio
Schema oude situatie
Copyright: PLNLstudio
Schema ontwerp nieuwe situatie
Copyright: PLNLstudio
3D doorsnede
Copyright: PLNLstudio
Doorsnede
Copyright: PLNLstudio
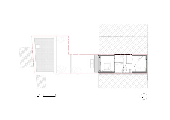
Begane grond
Copyright: PLNLstudio
Eerste verdieping
Copyright: PLNLstudio
Tweede verdieping
Copyright: PLNLstudio
Woonhuis voor de verbouwing
Copyright: Riccardo De Vecchi
Woonhuis voor de verbouwing
Copyright: Riccardo De Vecchi
Woonhuis voor de verbouwing
Copyright: Riccardo De Vecchi

Architect verbouwt eigen woning als continu werk in uitvoering

16 augustus 2023, 11:15
Architect Magda Sakowicz verbouwde een 19e-eeuws woonhuis in het Oude Noorden in Rotterdam; de bovenverdiepingen fungeren als woning voor haar gezin en op de begane grond is een ruimte voor de buurt gerealiseerd. NL.home is onlangs opgeleverd, of in elk geval deels opgeleverd: Sakowicz benadert het project bewust als een continu work-in-progress.

Het woonhuis stamt uit 1894 en ligt centraal in het Oude Noorden, omringd door gebouwen uit het begin van de 19e eeuw en tegelijkertijd dicht bij het stadscentrum. “Zodra we het huis zagen, wisten we dat het een verhaal te vertellen had”, zegt Sakowicz, architect en oprichter van het bureau PLNLstudio.

“Het verwijderen van alle lagen die zich in de loop der jaren hadden opgestapeld en het herstellen van de originele materialen geeft een knipoog naar het verleden van het huis en bepaalt het karakter van het interieur”, vertelt ze. Een van de belangrijkste opgaves was om daarbij de indeling van het interieur van het bijna 130 jaar oude huis aan te passen aan de hedendaagse behoeftes van het gezin.

Woning en buurtruimte
Het bouwwerk bood voorheen plaats aan een onverwarmde garage met een werkplaats op de begane grond en twee kleine appartementen op de bovengelegen verdiepingen. Sakowicz heeft de bovenverdiepingen samengevoegd tot één gezinswoning.

Op de eerste verdieping zijn een keuken, een eet- en een woonruimte gesitueerd, met de mogelijkheid functies van plaats te verwisselen. Op de tweede verdieping bevinden zich de kinderslaapkamer, de ouderslaapkamer, een centraal gelegen badkamer en een grote inloopkast.

De garage is omgebouwd tot een multifunctionele ruimte voor de buurt, waar evenementen, workshops, feestjes en dergelijke kunnen plaatsvinden. De begane grond is ontworpen als een aanpasbare open ruimte, met alle nodige installaties om verschillende interieurindelingen mogelijk te maken, legt de architect uit. Indien nodig kan de ruimte in de toekomst worden omgebouwd tot appartement.

Ingrepen
“Toen we het huis kochten, was de originele bakstenen voorgevel in zeer goede staat”, vertelt Sakowicz. “Er was geen andere ingreep nodig dan de muren van binnenuit te isoleren om de energieprestaties te verbeteren. De rest van het huis was echter in slechte staat.”

Aanzienlijke ingrepen waren nodig, zegt ze, zoals het repareren van lekkages, egaliseren van vloeren en verwijderen van vervallen onderdelen die op geen enkele manier nog bruikbaar waren. Alles dat wel bruikbaar was, is elders in het huis ingezet. Zo is bijvoorbeeld de vloer op de begane grond gemaakt van materialen die afkomstig zijn van de bovenverdiepingen.

Uitbreiding
Aan de achterzijde is een uitbouw toegevoegd, die zich strekt over de begane grond en eerste verdieping. Versterkingen van de bestaande structuur zijn herkenbaar als de kleurrijk geschilderde stalen balken en kolommen; zo vormen ze een tijdsmarkering tussen het oude en nieuwe deel van het huis.

Voor de vloer- en plafondconstructie van de uitbreiding zijn houten balken gebruikt. Met het oog op het budget en de bouwtijd en om te voldoen aan de hoogste eisen voor thermische isolatie, zijn de enkelwandige buitenmuren opgetrokken uit cellenbetonblokken. De achtergevel is gepleisterd in een roodtint en met subtiel korrelige structuur, passend bij de omliggende bebouwing.

Grote ramen in de noordelijke gevel en daklichten in de uitbouw zorgen voor ruim binnenvallend daglicht. Drievoudige glas in eiken kozijnen zorgt voor een optimale isolatie. Het dak is aan de buitenzijde geïsoleerd, waardoor de dakconstructie op de bovenste verdieping in het zicht kon worden gebracht.

Doorlopend project
NL.home, zoals het project is genoemd, blijft volgens Sakowicz nog lang een werk in uitvoering. “Vanwege het beperkte budget hebben we veel van het werk zelf gedaan, zoals het pleisterwerk, muurreparaties en nieuwe binnenmuren.” Met twee jonge kinderen in het gezin en zonder bouwervaring was het een ingewikkelde maar leerzame ervaring, vertelt ze.

“Na verloop van tijd ontdekten we dat dit doorlopende proces zo zijn voordelen heeft”, zegt de architect. “Onze kinderen hebben de kans om deel te nemen aan het project en we kunnen elementen van deze 3D-puzzel toevoegen en verbeteren, afhankelijk van onze behoeften en financiële mogelijkheden.” 

Gerelateerde nieuwsberichten

Andere nieuwsberichten

Kraaijvanger Architects aan de slag met renovatie Station Zuidplein

24 december, 9:00

Concrete ontwerpt woongebouw in Philadelphia met gevelkunst door tattoo-artist Henk Schiffmacher

23 december, 12:00

Rotterdamse Academie van Bouwkunst stelt twee curatoren aan om thematische lijnen te ontwikkelen

22 december, 11:20

Den Haag ziet ruimte voor meer woningen in gebied Laakhavens-Hollands Spoor

19 december, 3:15

Fijne feestdagen en een gelukkig, gezond en succesvol 2026!

24 december, 1:00

Provincie Zuid-Holland: stroom van zee via Hoek van Holland naar Rotterdamse haven

23 december, 5:00

DNR geactualiseerd naar hedendaagse praktijk

19 december, 4:03

Inschrijving voor tiende editie Architectuurprijs Nijmegen geopend

19 december, 1:17

Tweede Kamer schuift aanpassing huurwet door naar nieuw kabinet

19 december, 9:13

Faillissement V&D laat nog altijd sporen na in winkelgebieden

18 december, 12:03
Robert MuisRedacteur
ATAG Nederland
KUBUS | Specialist in BIM-software
SAPA
Reynaers Aluminium Nederland
Jansen
SAB-profiel bv
Aliplast Aluminium Systems
Kingspan Light & Air
Hagemeister GmbH & Co. KG
ALUCOBOND®
Tarkett BV
Kawneer
Grohe Nederland B.V.
Malaysian Timber Council
OCS | Office Cabling Systems
Swisspearl Nederland
Forster Nederland N.V.
VELUX Commercial Benelux B.V.
Sempergreen
Houthandel van Dam
Aluprof Nederland BV
QbiQ Wall Systems
Forbo Flooring
Schüco Nederland
Cedral
Sto Isoned bv
Triflex bv
Gorter Luiken BV
wienerberger
Knauf Insulation
DUCO Ventilation & Sun Control
BEWI IsoBouw
Mview+
Rockfon (ROCKWOOL B.V.)
Gira Nederland B.V.
Kingspan Geïsoleerde Panelen
GEZE Benelux  B.V.
Renson
Metaglas Groep
ABB | Busch-Jaeger
Jung | Hateha B.V.
Knauf B.V.
Saint-Gobain Glass Benelux
Faay Vianen B.V.
objectflor
Boon Edam Nederland B.V.
Hunter Douglas Architectural
VOLA Nederland BV
Forbo Eurocol Nederland B.V.
EQUITONE gevelpanelen
Holonite B.V.
AXOR + hansgrohe
Tata Steel Colorcoat®
Architectenweb
Over ons
Contact

© 2002 - 2025 Architectenweb BV / Voorwaarden / Privacy / Disclaimer / Sitemap
Annuleren
OK
Sluiten
Doorgaan
Inloggen
Maak een gratis persoonlijk account aan