Projecten
Producten
Bedrijven
Vacatures
Agenda
Awards
Podcasts
more_horiz
Videos
Magazine
Favorieten
Profiel
Uitloggen
Abonneer je nu op onze nieuwsbrieven!
Abonneren
Nee, bedankt
Ja, denk met me mee rond de
materialisering van mijn project
Copyright: Jordi Huisman
Copyright: Jordi Huisman
Copyright: Jordi Huisman
Copyright: Jordi Huisman
Copyright: Jordi Huisman
Copyright: Jordi Huisman
Copyright: Jordi Huisman
Copyright: Jordi Huisman
Copyright: Jordi Huisman
Copyright: Jordi Huisman
Copyright: Jordi Huisman
Copyright: Jordi Huisman
Copyright: Jordi Huisman
Copyright: Jordi Huisman
Copyright: Jordi Huisman
Impressie ingreep
Copyright: Lagado Architects
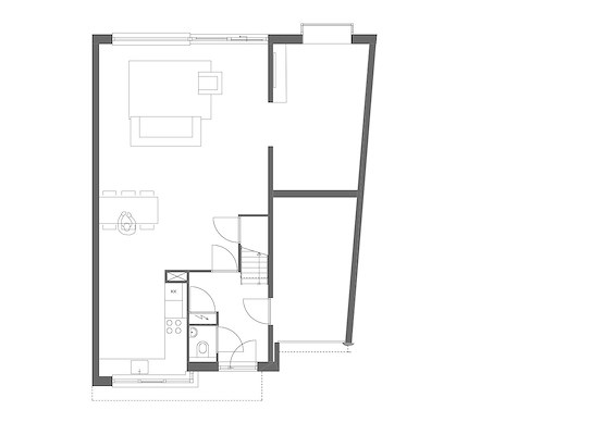
Plattegrond bestaand
Copyright: Lagado Architects
Plattegrond nieuw
Copyright: Lagado Architects
Gekromde lijnen en opvallende kleuren voor een doorzonwoning
13 april 2023, 11:02
Een alledaagse doorzonwoning uit de jaren 1990 in Rotterdam heeft naar ontwerp van
Lagado Architects
een kleurrijk en gelaagd interieur gekregen. Een verbindend volume met een vloeiende beweging, doorzichten tussen ruimten en uitgesproken kleuren staan centraal in het ontwerp ‘Curves, colours and cutouts’.
De bestaande woning had een vrij lage verdiepingshoogte en een hoekige plattegrond, vertelt Lagado Architects. Voor de particuliere opdrachtgever zocht het architectenbureau naar een ruimtelijke ingreep die de verhoudingen van de ruimte visueel zou verbeteren. Rond de entree tot de woonkamer is een sculpturaal object geïntroduceerd, terwijl openingen zorgen voor verbinding.
Rond de overgang van hal naar woonkamer lag een klein knelpunt. Hier bevinden zich belangrijke indelingselementen zoals de meterkast, leidingschacht, toilet en trap. Deze heeft Lagado Architects alle op dezelfde plek behouden, maar middels het sculpturale object tot een ruimtelijk geheel gemaakt. De gekromde lijnen verbinden de elementen op vloeiende wijze.
De keuken is van de voorzijde van de woning naar de tuinzijde verplaatst. De ruimte die daarmee aan de voorkant vrijkwam en nu dient als ‘speelkamer’, die visueel verbonden is met de hal via een raam. Tevens verbinden nu glazen deuren de hal met de woonkamer, zodat er bij het betreden van de woning een zichtlijn naar de tuin is. Met deze openingen dringt daglicht ook dieper in de woning.
De garage is verkleind ten gunste van extra (berg)ruimte. Ook steekt een compacte garderobe als nis in de garage, waardoor de entreehal zo ruim en opgeruimd mogelijk kan blijven. Een palet van uitgesproken kleuren voor de nieuwe elementen maakt het spel met volumes en doorzichten af.
‘Curves, colours and cutouts’, zoals het architectenbureau zijn ontwerp noemt, is genomineerd voor de Rotterdam Architectuurprijs 2023.
Trefwoorden
interieur
lagado architects
rotterdam
doorzonwoning
Best gelezen
1
Architect Cees Dam op 93-jarige leeftijd overleden
dinsdag, 14 april
2
Powerhouse Company wint aanbesteding voor verbouwing Vista College Maastricht
dinsdag, 14 april
3
Tien bureaus geselecteerd voor tweede ronde nieuwbouw De Meervaart
woensdag, 15 april
4
Anterieure overeenkomst voor bouw woontoren The Four in Eindhoven
donderdag, 16 april
5
Voormalig hoofdkantoor Ferro in M4H verbouwd tot bedrijfsverzamelgebouw
woensdag, 15 april
Gerelateerde nieuwsberichten
Gekleurde 'poorten' en ramen zorgen voor ruimtelijke sequentie in verbouwde woning
6 augustus 2024
Nominaties Rotterdam Architectuurprijs 2023 bekend
3 april 2023
Architecten herontwerpen hun eigen rijtjeshuis
30 april 2020
Eigentijds waterfront voor Oud-Beijerland door team van RoosRos
19 januari 2021
De Witte Panden in Rotterdam Noord – een tweede leven voor jaren 80-architectuur
24 maart 2025
Rotterdams initiatief voor aanleg skatepool
3 mei 2012
Monumentale woning in hartje Amsterdam met geduld verbouwd en verduurzaamd
15 augustus 2024
Herindeling van een vooroorlogse woning creëert een eigentijdse loft
30 april 2024
Architect verbouwt eigen woning als continu werk in uitvoering
16 augustus 2023
Wonen in het oog van de walvis
12 februari 2024
Grachtenpand verbouwd met Japans minimalisme als inspiratie
4 april 2023
Renovatie en transformatie van Gentse patriciërswoning door Volt Architecten
27 maart 2023
Nederlandse architect ontwerpt Italiaans appartement met kalm karakter
2 maart 2023
Ingetogen renovatie en uitbreiding van woonhuis door NEAR studio
27 februari 2023
Lichte en ruimtelijke gezinswoning achter terughoudende gevel
20 februari 2023
Bijzonder hoge woonkeuken als centrale leefruimte
13 februari 2023
Ingetogen woning als rustpunt aan de bosrand
29 november 2022
Canal House bekroond als Interieur van het Jaar 2022
12 oktober 2022
Nominaties Interieur van het Jaar 2022 bekend
26 september 2022
Studio Modijefsky geeft traditioneel dijkhuis eigentijdse accenten
31 mei 2022
Gekleurde 'poorten' en ramen zorgen voor ruimtelijke sequentie in verbouwde woning
6 augustus 2024
Nominaties Rotterdam Architectuurprijs 2023 bekend
3 april 2023
Architecten herontwerpen hun eigen rijtjeshuis
30 april 2020
Eigentijds waterfront voor Oud-Beijerland door team van RoosRos
19 januari 2021
De Witte Panden in Rotterdam Noord – een tweede leven voor jaren 80-architectuur
24 maart 2025
Rotterdams initiatief voor aanleg skatepool
3 mei 2012
Monumentale woning in hartje Amsterdam met geduld verbouwd en verduurzaamd
15 augustus 2024
Herindeling van een vooroorlogse woning creëert een eigentijdse loft
30 april 2024
Architect verbouwt eigen woning als continu werk in uitvoering
16 augustus 2023
Wonen in het oog van de walvis
12 februari 2024
Grachtenpand verbouwd met Japans minimalisme als inspiratie
4 april 2023
Renovatie en transformatie van Gentse patriciërswoning door Volt Architecten
27 maart 2023
Nederlandse architect ontwerpt Italiaans appartement met kalm karakter
2 maart 2023
Ingetogen renovatie en uitbreiding van woonhuis door NEAR studio
27 februari 2023
Lichte en ruimtelijke gezinswoning achter terughoudende gevel
20 februari 2023
Bijzonder hoge woonkeuken als centrale leefruimte
13 februari 2023
Ingetogen woning als rustpunt aan de bosrand
29 november 2022
Canal House bekroond als Interieur van het Jaar 2022
12 oktober 2022
Nominaties Interieur van het Jaar 2022 bekend
26 september 2022
Studio Modijefsky geeft traditioneel dijkhuis eigentijdse accenten
31 mei 2022
Toon alles
Andere nieuwsberichten
LEVS publiceert duurzaamheidsanalyse eigen projecten
Gisteren, 14:45
Met de Rapportage Duurzaamheid 2021–2025 heeft het bureau 43 projecten uit de afgelopen vijf jaar getoetst aan de Paris Proof normen.
Nominaties Rotterdam Architectuurprijs 2026 bekend
Gisteren, 09:00
Zowel de jury als het publiek heeft de keuze uit tien projecten, die zijn geselecteerd uit 36 inzendingen. De winnaars worden op 12 juni bekendgemaakt in het Nhow Hotel in Rotterdam.
Wie verdient dit jaar de prijs voor Architect van het Jaar?
Gisteren, 09:00
Welke architect, of collectief van architecten, heeft dit jaar de grootste bijdrage geleverd aan de ontwikkeling van de architectuur in Nederland? Stuur jouw suggestie, met een beknopte motivatie, uiterlijk 15 mei 2026 op naar Architectenweb.
OMA gebruikt bestaand gebouw als canvas bij renovatie Edo-Tokyo Museum
17 april, 3:55
Na een renovatie van bijna vier jaar is het Edo-Tokyo Museum in de Japanse hoofdstad Tokio heropend. OMA nam het uit 1993 stammende gebouw, dat is ontworpen door de Metabolist Kiyonori Kikutake, onder handen.
Minister wil Lelystad Airport openen in oktober 2027
Gisteren, 12:24
Het vliegveld heeft nog geen natuurvergunning, maar Vincent Karremans werkt ‘parallel’ aan de andere zaken die nog moeten worden geregeld voordat vakantievluchten vanuit Flevoland kunnen beginnen.
Boekholt wil minder strenge huurwet, hogere huren mogelijk
Gisteren, 10:15
Verhuurders moeten meer kunnen vragen voor dure huurhuizen, nieuwbouw en huizen zonder tuin of balkon.
Woningbouwzaken krijgen langer voorrang bij Raad van State
17 april, 4:49
Om het huizentekort tegen te gaan, blijft de Raad van State woningbouwzaken met voorrang behandelen.
Inspectie positief over verbetering sociale veiligheid TU Delft
17 april, 11:36
De TU Delft heeft aanzienlijke stappen gezet om de sociale veiligheid voor medewerkers te verbeteren.
NVM vreest minder nieuwbouw door veranderende voorrang stroomnet
17 april, 9:23
Bouwers kunnen, door onzekerheid over welke projecten straks nog maatschappelijke prioriteit krijgen in een bepaalde regio, besluiten om minder nieuwe huizen te bouwen.
Architecten voor restauratie en herbestemming Rivièrahal gekozen
16 april, 12:00
Voor de grootscheepse restauratie en herbestemming van de Rivièrahal in de Rotterdamse Diergaarde Blijdorp zijn Mecanoo en BiermanHenket geselecteerd.
Ga naar het nieuws-archief
Robert Muis
Redacteur
3
0
0
0
Voor een optimale gebruikservaring plaatst Architectenweb functionele cookies. Wat de verschillende cookies precies doen leggen we uit in een
overzicht
. Cookies van social media kun je optioneel
aanzetten
.
Akkoord
Instellingen
Annuleren
OK
Sluiten
Doorgaan
Inloggen
Maak een gratis persoonlijk account aan
Feedback
Feedback
Wij horen graag jouw feedback. Laat je reactie achter en eventueel jouw e-mail adres.
Reactie
Verstuur