Projecten
Producten
Bedrijven
Vacatures
Agenda
Awards
Podcasts
more_horiz
Videos
Magazine
Favorieten
Profiel
Uitloggen
Abonneer je nu op onze nieuwsbrieven!
Abonneren
Nee, bedankt
Ja, denk met me mee rond de
materialisering van mijn project
Copyright: Max Hart Nibbrig
Copyright: Max Hart Nibbrig
Copyright: Max Hart Nibbrig
Copyright: Max Hart Nibbrig
Copyright: Max Hart Nibbrig
Copyright: Max Hart Nibbrig
Copyright: Max Hart Nibbrig
Copyright: Max Hart Nibbrig
Copyright: Max Hart Nibbrig
Copyright: Max Hart Nibbrig
Copyright: Max Hart Nibbrig
Copyright: Max Hart Nibbrig
Copyright: Max Hart Nibbrig
Copyright: Max Hart Nibbrig
Copyright: Beyond Space, i29
Copyright: Beyond Space, i29
Copyright: Beyond Space, i29
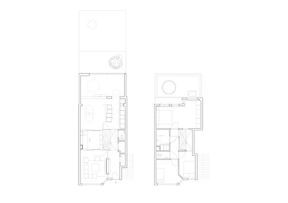
Appartementen samengevoegd tot een naadloos geheel
28 november 2024, 15:13
In het hart van Amsterdam-West, in de wijk Bos en Lommer, zijn naar ontwerp van
Beyond Space
en
i29
twee appartementen samengevoegd tot een royale en eigentijdse gezinswoning. De architecten hebben gestreefd naar een harmonieuze samenhang tussen de leefruimten, een sterke verbinding met de buitenruimte en een combinatie van esthetiek en gebruiksgemak.
Het ontwerpconcept voor de samengestelde woning is: openheid en gelaagdheid. De leefgebieden op de begane grond – waaronder de entree, woonkamer, werkplek, keuken en eetkamer – vloeien soepel in elkaar over. Vanuit deze leefruimten leidt een tuinkamer naar de buitenruimte achter de woning.
De tuinkamer – een nieuwe uitbreiding – is iets verdiept gelegen ten opzichte van de andere binnenruimten. Dit niveauverschil zorgt voor een interessant diepte-effect op de begane grond en in een krachtige visuele en functionele relatie met de tuin. De grote schuifpui en de doorlopende bakstenen vloerafwerking van tuinkamer en terras zorgen voor een naadloze overgang tussen binnen en buiten.
De uitbreiding is voorzien van een groendak en een rond daklicht. Dit laatste zorgt voor een overvloed aan daglicht in het interieur en draagt bij aan de ruimtelijke beleving van de woning.
Bamboe volumes
Een opvallend element in de woning vormen de drie multifunctionele bamboe volumes. Met hun natuurlijke uitstraling dragen ze bij aan een warme sfeer in het interieur. De volumes fungeren als subtiele room dividers tussen de woonkamer en eetkamer; daarnaast herbergen ze een royale bergkast, een toiletruimte en een studieruimte.
De studieruimte vormt een ‘en-suite’ met de aangrenzende ruimte en is afsluitbaar door middel van verborgen schuifdeuren. Het middelste bamboe volume steekt door naar de eerste verdieping en bevat een sculpturale trap.
De keuken is ontworpen met oog voor zowel esthetiek als functionaliteit, vertellen de architecten. De ruimte wordt bepaald door een groot kookeiland met een werkblad dat rust op een betonstenen voet. Een lange kastenwand biedt, naast bergruimte, extra werkruimte. De roestvrijstalen werkbladen en gelakte fineerpanelen geven de keuken een eigentijdse, robuuste uitstraling.
Tijdloos
De architecten hebben gekozen voor de toepassing van hoogwaardige materialen met het oog op een strakke en tijdloze uitstraling. De vloeren in het oorspronkelijke deel van de woning zijn afgewerkt met een beton-look gietvloer, die zorgt voor een rustige, moderne uitstraling. Zowel de toiletruimte als de badkamer zijn afgewerkt met op maat gemaakte natuurstenen wand- en vloerbekleding, wat een gevoel van luxe en tactiliteit creëert.
Trefwoorden
woninguitbreiding
amsterdam
beyond space
i29
woning
interieur
appartement
Best gelezen
1
Rotterdam zoekt ontwerper voor permanente Luchtsingel
woensdag, 22 april
2
Nominaties Rotterdam Architectuurprijs 2026 bekend
maandag, 20 april
3
Twaalf lessen rond het ontwerpen van autovrije buurten
dinsdag, 21 april
4
De Kuil bouwt voort op karakter Afrikaanderwijk en voegt iets nieuws toe
woensdag, 22 april
5
Vijfde 'icoon' voor Roombeek mengt continuïteit met verstoring
donderdag, 23 april
Gerelateerde nieuwsberichten
Een villa verweven met het groen
5 maart 2025
Minimalistische details voor een gerenoveerde en uitgebreide woning
11 november 2024
Uitbreiding geeft rijtjeswoning ruimte en kleur
15 oktober 2024
Beyond Space voorziet hoofdkantoor cementfabrikant Holcim van nieuwe inrichting
22 januari
Wachten in een compositie als van Mondriaan
22 mei 2025
Gekleurde 'poorten' en ramen zorgen voor ruimtelijke sequentie in verbouwde woning
6 augustus 2024
i29 realiseert seniorenwoning op de kavel bij de kinderen
25 juni 2025
i29 realiseert eerste Câpsula tiny houses op Twents landgoed
29 april 2025
Architect verbouwt eigen woning als continu werk in uitvoering
16 augustus 2023
Chris Collaris benoemd tot partner bij i29 architects
27 augustus 2025
Beyond Space neemt Boring Collection onder zijn hoede
30 januari 2025
Herindeling van een vooroorlogse woning creëert een eigentijdse loft
30 april 2024
Sereen toevluchtsoord hoog boven de stedelijke drukte
20 november 2024
Nieuw zitgebied Lounge 2 Schiphol geïnspireerd door overgangsfase in oeuvre Mondriaan
10 april
The Pulse of Amsterdam op de Zuidas officieel opgeleverd
15 november 2024
Uitbreiding voor winkelcentrum in Woerdense wijk Snellerpoort
10 september 2024
Woongebouw naar ontwerp van Beyond Space in Bern gerealiseerd
24 juni 2024
Beyond Space brengt Mondriaans Boogie Woogie naar Schiphol
18 juni 2024
Een verblijf tussen de boomkruinen
15 februari 2024
Rijkskantoor in Haarlem heeft transparanter karakter na verbouwing
3 januari 2024
Paul de Ruiter Architects ontwerpt nieuw gerechtsgebouw Almelo
17 januari 2024
i29 introduceert met designlabel Câpsula nieuwe typologie van premium tiny houses
19 oktober 2023
Een open parkvilla met een veelheid aan belevingen
19 december 2023
Ontwerpstudio i29 introduceert nieuw meubelmerk Elements Amsterdam
25 mei 2023
Nieuw Leolux Experience Center met interieur van i29
2 maart 2023
Nominaties Interieur van het Jaar 2022 bekend
26 september 2022
Canal House bekroond als Interieur van het Jaar 2022
12 oktober 2022
Flexibel en kleurrijk interieurontwerp voor hotelkamers Casa
1 juni 2022
DP6 en i29 presenteren ontwerp transformatie Bouwdeel H van Gerechtsgebouw Utrecht.
2 juni 2022
Nieuw Certosa Initiative neemt bezit van industriële hal tijdens Milan Design Week
25 mei 2022
Beyond Space realiseert een ruimtelijk interieur in oude Puntloodsen
12 mei 2022
Woninginterieur i29 biedt nieuw perspectief op monument
27 januari 2022
i29 ontwerpt interieur en identiteit voor tandheelkundige kliniek
4 januari 2022
Nominaties Interieur van het Jaar 2021 bekend
27 september 2021
Op maat gemaakt interieur voor schrijver en kunstverzamelaar
19 februari 2021
Zachte en halftransparante golven maken van kantoor ook showroom
10 augustus 2021
Een interieur met vrijheid tussen de regels
3 maart 2021
Team met MVSA en Beyond Space renoveert oud rijkskantoor Haarlem
15 januari 2021
Een villa verweven met het groen
5 maart 2025
Minimalistische details voor een gerenoveerde en uitgebreide woning
11 november 2024
Uitbreiding geeft rijtjeswoning ruimte en kleur
15 oktober 2024
Beyond Space voorziet hoofdkantoor cementfabrikant Holcim van nieuwe inrichting
22 januari
Wachten in een compositie als van Mondriaan
22 mei 2025
Gekleurde 'poorten' en ramen zorgen voor ruimtelijke sequentie in verbouwde woning
6 augustus 2024
i29 realiseert seniorenwoning op de kavel bij de kinderen
25 juni 2025
i29 realiseert eerste Câpsula tiny houses op Twents landgoed
29 april 2025
Architect verbouwt eigen woning als continu werk in uitvoering
16 augustus 2023
Chris Collaris benoemd tot partner bij i29 architects
27 augustus 2025
Beyond Space neemt Boring Collection onder zijn hoede
30 januari 2025
Herindeling van een vooroorlogse woning creëert een eigentijdse loft
30 april 2024
Sereen toevluchtsoord hoog boven de stedelijke drukte
20 november 2024
Nieuw zitgebied Lounge 2 Schiphol geïnspireerd door overgangsfase in oeuvre Mondriaan
10 april
The Pulse of Amsterdam op de Zuidas officieel opgeleverd
15 november 2024
Uitbreiding voor winkelcentrum in Woerdense wijk Snellerpoort
10 september 2024
Woongebouw naar ontwerp van Beyond Space in Bern gerealiseerd
24 juni 2024
Beyond Space brengt Mondriaans Boogie Woogie naar Schiphol
18 juni 2024
Een verblijf tussen de boomkruinen
15 februari 2024
Rijkskantoor in Haarlem heeft transparanter karakter na verbouwing
3 januari 2024
Paul de Ruiter Architects ontwerpt nieuw gerechtsgebouw Almelo
17 januari 2024
i29 introduceert met designlabel Câpsula nieuwe typologie van premium tiny houses
19 oktober 2023
Een open parkvilla met een veelheid aan belevingen
19 december 2023
Ontwerpstudio i29 introduceert nieuw meubelmerk Elements Amsterdam
25 mei 2023
Nieuw Leolux Experience Center met interieur van i29
2 maart 2023
Nominaties Interieur van het Jaar 2022 bekend
26 september 2022
Canal House bekroond als Interieur van het Jaar 2022
12 oktober 2022
Flexibel en kleurrijk interieurontwerp voor hotelkamers Casa
1 juni 2022
DP6 en i29 presenteren ontwerp transformatie Bouwdeel H van Gerechtsgebouw Utrecht.
2 juni 2022
Nieuw Certosa Initiative neemt bezit van industriële hal tijdens Milan Design Week
25 mei 2022
Beyond Space realiseert een ruimtelijk interieur in oude Puntloodsen
12 mei 2022
Woninginterieur i29 biedt nieuw perspectief op monument
27 januari 2022
i29 ontwerpt interieur en identiteit voor tandheelkundige kliniek
4 januari 2022
Nominaties Interieur van het Jaar 2021 bekend
27 september 2021
Op maat gemaakt interieur voor schrijver en kunstverzamelaar
19 februari 2021
Zachte en halftransparante golven maken van kantoor ook showroom
10 augustus 2021
Een interieur met vrijheid tussen de regels
3 maart 2021
Team met MVSA en Beyond Space renoveert oud rijkskantoor Haarlem
15 januari 2021
Toon alles
Andere nieuwsberichten
Mecanoo ontwerpt filmtheater Fraterhuis in binnenstad Zwolle
Gisteren, 15:08
Het nieuwe Fraterhuis zal vijf bioscoopzalen huisvesten, drie meer dan het nu heeft, naast horecagelegenheden en een multimediaruimte voor educatieve en culturele programma's.
Rotterdamse Dakendagen lanceert programma voor editie 2026
Gisteren, 13:10
De organisatie van de Rotterdamse Dakendagen heeft het programma voor de nieuwe editie in 2026 bekend gemaakt.
Maas Lawrence presenteert architectuurjaarboek NL25
23 april, 7:31
In het boek heeft uitgeverij Maas Lawrence een alomvattend beeld van de Nederlandse architectuur proberen te schetsen, door liefst 143 opgeleverde projecten op een rij te zetten.
Maarten Baas en Powerhouse Company werken samen bij cultureel cluster in Den Bosch
23 april, 3:34
Op de Tramkade in Den Bosch zal voor kavel 9 een nieuw mixed-use cultureel cluster ontwikkeld worden.
Betonvereniging houdt symposium 'Omdenken' op Pier van Scheveningen
Gisteren, 16:00
Een van de sprekers op het symposium is architect Arjan Dingste, die vanuit UNS verantwoordelijk is voor het ontwerp van de op hande zijnde vernieuwing van de pier.
Warmtefonds wil 140 miljoen extra voor behoud gunstige leningen
23 april, 4:23
Als het extra geld uitblijft, kan dat over een aantal jaren mogelijk niet meer, zegt bestuursvoorzitter Ernst-Jan Boers.
BINX Smartility gekozen als aannemer voor Centrale Bibliotheek Rotterdam
23 april, 3:32
De vernieuwing van de iconische Centrale Bibliotheek Rotterdam kan starten. Na een aanbestedingsprocedure koos de gemeente Rotterdam BINX Smartility.
Woningcorporaties vrezen financieel vast te lopen
23 april, 11:45
Om jaarlijks tienduizenden sociale huurwoningen te kunnen bouwen, steken ze zich in de schulden.
Ontwerpwedstrijd voor nieuwe 'jas' Utrechtse elektriciteitshuisjes
22 april, 3:18
In Utrecht worden de komende vijftien jaar zo’n achthonderd elektriciteitshuisjes geplaatst.
Provincies willen snel crisisaanpak voor overvol stroomnet
22 april, 12:01
Het Interprovinciaal Overleg (IPO) roept de regering onder meer op meer geld uit te trekken voor warmtenetten en waterstof om de gevolgen van netcongestie beter op te vangen.
Ga naar het nieuws-archief
Robert Muis
Redacteur
3
0
0
0
Voor een optimale gebruikservaring plaatst Architectenweb functionele cookies. Wat de verschillende cookies precies doen leggen we uit in een
overzicht
. Cookies van social media kun je optioneel
aanzetten
.
Akkoord
Instellingen
Annuleren
OK
Sluiten
Doorgaan
Inloggen
Maak een gratis persoonlijk account aan
Feedback
Feedback
Wij horen graag jouw feedback. Laat je reactie achter en eventueel jouw e-mail adres.
Reactie
Verstuur