Projecten
Producten
Bedrijven
Vacatures
Agenda
Awards
Podcasts
more_horiz
Videos
Magazine
Thema's
Favorieten
Profiel
Uitloggen
Copyright: Christian van der Kooy
Copyright: Christian van der Kooy
Copyright: Christian van der Kooy
Copyright: Christian van der Kooy
Copyright: Christian van der Kooy
Copyright: Christian van der Kooy
Copyright: Christian van der Kooy
Copyright: Christian van der Kooy
Copyright: Christian van der Kooy
Copyright: Christian van der Kooy
Copyright: Christian van der Kooy
Copyright: Christian van der Kooy
Copyright: Christian van der Kooy
Copyright: Christian van der Kooy
Copyright: Christian van der Kooy
Situatie
Copyright: Bloot Architecture
Vooraanzicht
Copyright: Bloot Architecture
Doorsnede
Copyright: Bloot Architecture
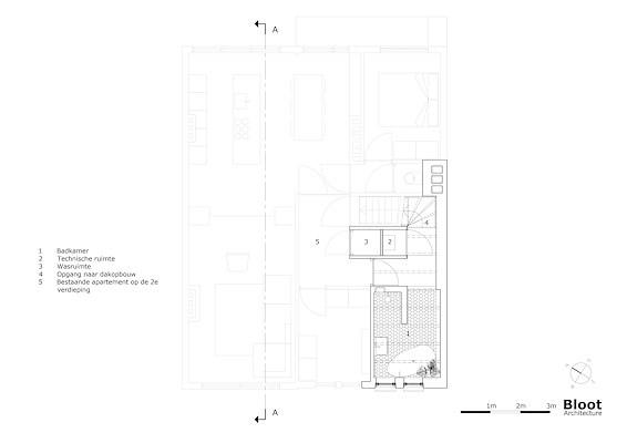
Tweede verdieping
Copyright: Bloot Architecture
Derde verdieping
Copyright: Bloot Architecture
Copyright: Bloot Architecture / Christian van der Kooy
Architect Tjeerd Bloothoofd neemt intrek in zelf ontworpen dakopbouw
18 november 2022, 15:04
In de Haagse Bomenbuurt hebben architect Tjeerd Bloothoofd en zijn gezin hun intrek genomen in een dakopbouw boven een blok jarendertigwoningen. Het volume ligt iets terug ten opzichte van de bestaande bebouwing en is anders gematerialiseerd. In contrast met het platte dak van het blok heeft de dakopbouw juist een archetypische dakvorm gekregen.
Het project House on a House is door de oprichter van
Bloot Architecture
zelf ontworpen en behelst behalve de dakopbouw de bovenste verdieping van de ondergelegen bestaande woning. Het nieuwe volume huisvest drie slaapkamers, een zithoek, een pantry en een toilet, op de bestaande verdieping is een badkamer gerealiseerd. Aan de staatzijde ligt een terras voor de bewoners.
Het nieuwe volume is opgebouwd uit een minimale stalen skelet, ingevuld met houtskeletbouw met vlasisolatie. De dakopbouw heeft een stalen huid met felsnaden, die dankzij zijn licht reflecterende eigenschappen ‘mee kleurt’ met het verloop van de dag. De gehele constructie is inclusief de vloer bovenop de bestaande bebouwing geplaatst.
Constructief element
In de architectuur zijn een aantal elementen van de stalen constructie in het zicht gelaten. Zo heeft elke ruimte zijn eigen constructief element, dat is uitgevoerd in telkens een andere kleur. Voor de kinderen zijn twee kleine slaapkamers gemaakt, langs de straatgevel ligt een grotere slaapkamer voor het hele gezin, gelegen naast de ruimte met zithoek en pantry.
De gehele lange zijde van de hoofdslaapkamer bestaat uit een glazen schuifpui. Doordat de opbouw bovenop de bestaande bouw ligt, is er ruimte om de kozijnen
flush
weg te werken. Hierdoor lopen binnen en buiten naadloos in elkaar over. Het stalen hekwerk dat in verticale zin doorloopt achter de houten vlonders langs, versterkt dit gevoel van oneindigheid, aldus Bloothoofd.
Om de opwarming van de grote slaapkamer door de zon tegen te gaan, zijn er zes schuifschermen in het ontwerp geïntegreerd. Deze kunnen links en rechts per drie in pockets in de wand worden geschoven, zodat de bewoners de mate van privacy en/of uitzicht kunnen bepalen. Zij kunnen zelf wel door de schermen naar buiten kijken, maar andersom is er geen zicht naar binnen.
De schuifschermen zijn vervaardigd uit een stalen frame en ingevuld met onbehandeld Western Red Cedar-hout. De warmte van het hout en de speelsheid van de positie van de schuifschermen geven het ontwerp een extra laag, stelt Bloot Architecture.
Schoorstenen
Bij deze jarendertigbouw is het noodzakelijk om de bestaande schoorstenen door te zetten naar het nieuwe dak, meldt het bureau. De verspringingen die de schoorstenen geven in de plattegrond zijn in dit ontwerp benut om de wanden te programmeren met kastruimte en bij de kleinste slaapkamer deelt de schoorsteen de kamer speels op in een slaap- en leefgedeelte.
De gemeente Den Haag stimuleert het optoppen van de bestaande bouwmassa, om op deze manier gezinnen in de wijk te houden die anders hadden moeten verhuizen om meer ruimte te vinden. Een van de uitganspunten van de gemeente is om de eerste dakopbouw voor een bouwblok leidend te laten zijn voor de rest van het bouwblok. In het voorstel aan de gemeente heeft Bloot Architecture om die reden ook een voorstel voor het gehele blok aangereikt.
Trefwoorden
optopping
den haag
woonhuis
dakopbouw
bloot architecture
woning
tjeerd bloothoofd
optoppen
Locatie
Best gelezen
1
Finalisten presenteren ontwerp voor Shift Landmark in Rotterdam
woensdag, 4 maart
2
Nieuwe Hittekaart Woningmarkt 2026 van BPD toont aanhoudende woningdruk
dinsdag, 3 maart
3
Strijp-S krijgt woonbuurtje met karakteristieken voormalig Philips-terrein
maandag, 2 maart
4
Architect Oliver Thill op 55-jarige leeftijd overleden
donderdag, 5 maart
5
Melkmeisje staat model voor woontoren De Catharina in Zaandam
vrijdag, 27 februari
Gerelateerde nieuwsberichten
Snitker/Borst benoemt zeven uitdagingen bij optoppen
16 november 2023
VvE’s zeggen steeds vaker ‘nee’ tegen dakterrassen
18 juli 2023
Architect verbouwt eigen woning als continu werk in uitvoering
16 augustus 2023
Oost en west komen samen in verbouwd en uitgebreid Haags woonhuis
14 november 2023
Renovatie met optopping van woongebouw in Amstelveen afgerond
24 januari 2024
Subtiele uitbouw versterkt relatie villa met de tuin
31 januari 2024
Lichte en ruimtelijke gezinswoning achter terughoudende gevel
20 februari 2023
Experts in brief aan Kamerleden: maak optoppen juridisch makkelijker
14 maart 2024
Transformatie kantoor naar woongebouw Het Veem in Hengelo voltooid
19 juni 2025
Noord-Holland komt met subsidie voor extra woonlaag
27 mei 2024
Dura Vermeer gestart met eigen ‘optopconcept’
3 september 2024
Praktische handreiking optoppen beschikbaar
4 juni 2024
Multifunctioneel podium voor parkje Haagse Molenwijk
30 mei 2022
Uitbreiding met zitkuil voor Haagse woning
11 november 2021
Renovatieontwerp Bloot Architecture versterkt karakter wederopbouwarchitectuur
14 december 2020
Glazen vloer voor herenhuis in Overveen
8 december 2017
Meer licht en ruimte in verbouwde jarenvijftigvilla
27 september 2017
Demontabel sportpaviljoen voor Beach Stadium
25 juli 2016
Vriendelijk interieur voor Kinderbescherming
18 augustus 2015
Duurzame opbouw voor vakantiehuis
14 juli 2015
domainarchitecture wint prijsvraag glazen hotelkamer
1 juni 2015
Bloot Architecture ontwerpt beweegbare kas
26 juni 2012
Tjeerd Bloothoofd wint Jonge Architectenprijs
19 december 2014
Drie jonge architecten werken plan Oirschot uit
1 februari 2013
Jonge Architectenprijs 2012 voor Bokkers van der Veen
14 december 2012
Haagse Woonprijs 2022 toegekend aan Leyhof
29 november 2022
Eigentijdse uitstraling voor woonblok Kanaleneiland na renovatie Bloot Architecture
30 januari 2023
Expressieve houten dakopbouw voor Utrechtse hoekwoning
5 april 2023
Groen licht voor transformatie UWV-kantoor Hengelo naar woongebouw
5 mei 2023
Snitker/Borst benoemt zeven uitdagingen bij optoppen
16 november 2023
VvE’s zeggen steeds vaker ‘nee’ tegen dakterrassen
18 juli 2023
Architect verbouwt eigen woning als continu werk in uitvoering
16 augustus 2023
Oost en west komen samen in verbouwd en uitgebreid Haags woonhuis
14 november 2023
Renovatie met optopping van woongebouw in Amstelveen afgerond
24 januari 2024
Subtiele uitbouw versterkt relatie villa met de tuin
31 januari 2024
Lichte en ruimtelijke gezinswoning achter terughoudende gevel
20 februari 2023
Experts in brief aan Kamerleden: maak optoppen juridisch makkelijker
14 maart 2024
Transformatie kantoor naar woongebouw Het Veem in Hengelo voltooid
19 juni 2025
Noord-Holland komt met subsidie voor extra woonlaag
27 mei 2024
Dura Vermeer gestart met eigen ‘optopconcept’
3 september 2024
Praktische handreiking optoppen beschikbaar
4 juni 2024
Multifunctioneel podium voor parkje Haagse Molenwijk
30 mei 2022
Uitbreiding met zitkuil voor Haagse woning
11 november 2021
Renovatieontwerp Bloot Architecture versterkt karakter wederopbouwarchitectuur
14 december 2020
Glazen vloer voor herenhuis in Overveen
8 december 2017
Meer licht en ruimte in verbouwde jarenvijftigvilla
27 september 2017
Demontabel sportpaviljoen voor Beach Stadium
25 juli 2016
Vriendelijk interieur voor Kinderbescherming
18 augustus 2015
Duurzame opbouw voor vakantiehuis
14 juli 2015
domainarchitecture wint prijsvraag glazen hotelkamer
1 juni 2015
Bloot Architecture ontwerpt beweegbare kas
26 juni 2012
Tjeerd Bloothoofd wint Jonge Architectenprijs
19 december 2014
Drie jonge architecten werken plan Oirschot uit
1 februari 2013
Jonge Architectenprijs 2012 voor Bokkers van der Veen
14 december 2012
Haagse Woonprijs 2022 toegekend aan Leyhof
29 november 2022
Eigentijdse uitstraling voor woonblok Kanaleneiland na renovatie Bloot Architecture
30 januari 2023
Expressieve houten dakopbouw voor Utrechtse hoekwoning
5 april 2023
Groen licht voor transformatie UWV-kantoor Hengelo naar woongebouw
5 mei 2023
Toon alles
Andere nieuwsberichten
Architect Oliver Thill op 55-jarige leeftijd overleden
Vandaag, 14:27
Afgelopen maandag is op 55-jarige leeftijd architect Oliver Thill overleden. Het door hem en André Kempe opgerichte Atelier Kempe Thill behoort tot de meest gewaardeerde Nederlandse architectenbureaus van de afgelopen 25 jaar.
HvdHA ontwerpt twee woonblokken in Utrecht Terwijde volgens typologie van woonpalazzo
Vandaag, 10:49
In Utrecht Terwijde worden twee woonblokken met 161 sociale huurwoningen naar ontwerp van Hans van der Heijden Architecten gerealiseerd. De gebouwen worden ontworpen volgens de typologie van een ‘woonpalazzo’.
Sweco neemt Belgische activiteiten Conix RDBM Architects over
Gisteren, 16:31
Sweco voegt opnieuw een grote vis toe aan zijn vijver van overgenomen architectenbureaus. Vanaf 30 april zet Conix RDBM Architects zijn Belgische activiteiten voort onder de naam Sweco Architects.
VAi schijnt licht op feministische vrouwenwerkgroep uit de jaren tachtig
Gisteren, 15:47
In de jaren 1980 ging de Vlaamse Werkgroep Vrouwen en Wonen de strijd aan met het heersende patriarchale woon- en maatschappijmodel. Het Vlaams Architectuurinstituut organiseert een tentoonstelling over deze wegbereiders en hun boodschap.
Hardt Hyperloop failliet verklaard door rechtbank
Vandaag, 11:37
Het Rotterdamse bedrijf was bezig met de ontwikkeling van technologie om mensen op hoge snelheid via capsules door een vacuümbuis te vervoeren.
Onderzoek: zeespiegel kustgebieden hoger dan in studies aangenomen
Vandaag, 09:13
De zeespiegel aan de kust is in grote delen van de wereld waarschijnlijk hoger dan in veel wetenschappelijke studies wordt aangenomen.
Gelderland geeft voorrang aan vergunningen met minder stikstof
Gisteren, 12:24
De plannen zijn onderdeel van het pakket maatregelen dat het Gelderse bestuur wil nemen om de vergunningverlening voor zaken als de woningbouw weer op gang te krijgen.
Amsterdam bouwde opnieuw minder woningen dan de bedoeling is
Gisteren, 10:56
Wethouder Steven van Weyenberg spreekt van een ‘sprong in de aantallen’, omdat er in 2025 beduidend meer huizen bijkwamen dan de jaren daarvoor.
Rijksvastgoedbedrijf zet eerste deelgebied nieuwe wijk Valkenhorst in Katwijk te koop
3 maart, 3:26
Op deze locatie mogen de eerste 450 van de in totaal 5.600 woningen worden gebouwd.
Verkoopgolf van woningen door investeerders zet door
2 maart, 2:57
Investeerders hebben in het vierde kwartaal van vorig jaar de meeste woningen verkocht sinds 2021, meldt het Kadaster.
Ga naar het nieuws-archief
Ronnie Weessies
Redacteur
4
0
0
0
Voor een optimale gebruikservaring plaatst Architectenweb functionele cookies. Wat de verschillende cookies precies doen leggen we uit in een
overzicht
. Cookies van social media kun je optioneel
aanzetten
.
Akkoord
Instellingen
Annuleren
OK
Sluiten
Doorgaan
Inloggen
Maak een gratis persoonlijk account aan
Feedback
Feedback
Wij horen graag jouw feedback. Laat je reactie achter en eventueel jouw e-mail adres.
Reactie
Verstuur