Projecten
Producten
Bedrijven
Vacatures
Agenda
Awards
Podcasts
more_horiz
Videos
Magazine
Thema's
Favorieten
Profiel
Uitloggen
Abonneer je nu op onze nieuwsbrieven!
Abonneren
Nee, bedankt
Ja, denk met me mee rond de
materialisering van mijn project
Copyright: Myrthe Slootjes
Copyright: Myrthe Slootjes
Copyright: Myrthe Slootjes
Copyright: Myrthe Slootjes
Copyright: Myrthe Slootjes
Copyright: Myrthe Slootjes
Copyright: Myrthe Slootjes
Copyright: Myrthe Slootjes
Copyright: Myrthe Slootjes
Copyright: Myrthe Slootjes
Copyright: Myrthe Slootjes
Copyright: Myrthe Slootjes
Copyright: Myrthe Slootjes
Copyright: Myrthe Slootjes
Copyright: Kasper Jongbloed
Copyright: Kasper Jongbloed
Bestaande situatie
Copyright: Bloot Architecture
Situatie
Copyright: Bloot Architecture
Analyse identiteit
Copyright: Bloot Architecture
Gevelaanzichten
Copyright: Bloot Architecture
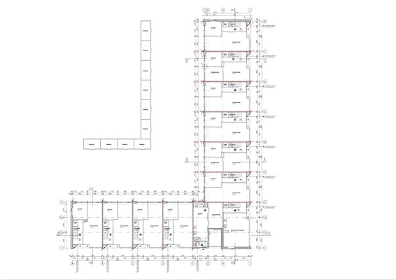
Begane grond
Copyright: Bloot Architecture
Eerste verdieping
Copyright: Bloot Architecture
Detail dakrand
Copyright: Bloot Architecture
Eigentijdse uitstraling voor woonblok Kanaleneiland na renovatie Bloot Architecture
30 januari 2023, 14:17
In de Utrechtse wijk Kanaleneiland is een blok met woningen gerenoveerd naar ontwerp van
Bloot Architecture
. Het L-vormige bouwlok op de hoek van de Bernadottelaan en Monnetlaan is grondig verduurzaamd en voorzien van een nieuwe uitstaling die op hedendaagse wijze de oorspronkelijke uitstraling van het naoorlogse blok respecteert. De gevel is bekleed met hout.
Bij de renovatie van het blok, die deel uitmaakt van een grootschalige vernieuwing van de wijk, zijn in plaats van de elf bestaande woningen twaalf gezinswoningen gerealiseerd. Het blok is in de jaren tachtig al eens gerenoveerd, maar toen is veel van de originele uitstraling verloren gegaan. Zo waren de lijnen van de verdiepingsvloer niet meer zichtbaar in de gevel, in plaats daarvan is een dicht vlak van schrootjes gerealiseerd.
Het blok is bekleed met een onbehandelde houten lattenstructuur, die hetzelfde ritme kent als de bestaande bakstenen gevels. De grens tussen de verschillende verdiepingen is bij de woningen weer zichtbaar gemaakt met zetwerk van aluminium. Daarboven is een geïsoleerde borstwering geplaatst, bekleed met translucente beglazing, die het blok samen met het aluminium zijn lichte, moderne en geïndustrialiseerde karakter teruggeeft.
De grote hoekwoning is opgesplitst in twee nieuwe woningen, die qua oppervlakte en buitenruimte beter aansluiten bij de doelgroep, stelt Bloot Architecture. De eerste woning bevindt zich op de plek waar het blok is opengewerkt. Deze woning heeft geen achtertuin, maar wel een aaneenschakeling van gevarieerde buitenruimtes; een dakterras, een patio en een voortuin. Bij de naastgelegen woning op de hoek is de dichte baksteen gevel opengewerkt en voorzien van een loggia. Deze woning heeft daarnaast aan beide straten een ruime voortuin.
Het bouwblok is rondom hoogwaardig geïsoleerd. Naast de isolatie van de gevels en het dak zijn er nog een aantal duurzame maatregelen getroffen. Elke woning is voorzien van een warmtepomp met lage warmteradiatoren. Overal zijn nieuwe kozijnen geplaatst. In de dakrand zijn tussen de houten latten twintig vogelkasten geïntegreerd voor gierzwaluwen.
Bloot Architecture werkte bij de renovatie samen met FiMek estate. De twee partijen waren voor de opdracht via een openbare selectieprocedure van de gemeente Utrecht. Bij het betrekken van hun woningen hebben de bewoners afgelopen jaar niet stil gezeten. Zo hebben collectief zonnepanelen op het dak geplaatst en zijn de daken van de bergingen voorzien van een groen dak.
Trefwoorden
kanaleneiland
renovatie
fimek estate
woningbouw
bloot architecture
utrecht
Locatie
Best gelezen
1
MVSA Architects en Powerhouse Company ontwerpen dubbele woontoren bij Den Haag Centraal
maandag, 30 maart
2
Architectenweb symposium: ontwerpen van autovrije buurten
woensdag, 25 maart
3
Schiphol maakt nieuwe 'huisarchitecten' bekend
donderdag, 26 maart
4
Amsterdam wil hiphopcentrum realiseren in stadsdeel Zuidoost
vrijdag, 27 maart
5
Studioninedots ontwerpt zelfbouwwoning als landschap van gestapelde doosjes
woensdag, 25 maart
Gerelateerde nieuwsberichten
Oost en west komen samen in verbouwd en uitgebreid Haags woonhuis
14 november 2023
Subtiele uitbouw versterkt relatie villa met de tuin
31 januari 2024
Transformatie kantoor naar woongebouw Het Veem in Hengelo voltooid
19 juni 2025
Groen licht voor transformatie UWV-kantoor Hengelo naar woongebouw
5 mei 2023
Architect Tjeerd Bloothoofd neemt intrek in zelf ontworpen dakopbouw
18 november 2022
Multifunctioneel podium voor parkje Haagse Molenwijk
30 mei 2022
Uitbreiding met zitkuil voor Haagse woning
11 november 2021
Renovatieontwerp Bloot Architecture versterkt karakter wederopbouwarchitectuur
14 december 2020
Studentenwoontoren op oud ziekenhuisterrein Oudenrijn klaar
1 oktober 2020
Kanaleneiland en Hoog Catharijne: droomprojecten ingehaald door de werkelijkheid
27 september 2019
Glazen vloer voor herenhuis in Overveen
8 december 2017
Meer licht en ruimte in verbouwde jarenvijftigvilla
27 september 2017
Oost en west komen samen in verbouwd en uitgebreid Haags woonhuis
14 november 2023
Subtiele uitbouw versterkt relatie villa met de tuin
31 januari 2024
Transformatie kantoor naar woongebouw Het Veem in Hengelo voltooid
19 juni 2025
Groen licht voor transformatie UWV-kantoor Hengelo naar woongebouw
5 mei 2023
Architect Tjeerd Bloothoofd neemt intrek in zelf ontworpen dakopbouw
18 november 2022
Multifunctioneel podium voor parkje Haagse Molenwijk
30 mei 2022
Uitbreiding met zitkuil voor Haagse woning
11 november 2021
Renovatieontwerp Bloot Architecture versterkt karakter wederopbouwarchitectuur
14 december 2020
Studentenwoontoren op oud ziekenhuisterrein Oudenrijn klaar
1 oktober 2020
Kanaleneiland en Hoog Catharijne: droomprojecten ingehaald door de werkelijkheid
27 september 2019
Glazen vloer voor herenhuis in Overveen
8 december 2017
Meer licht en ruimte in verbouwde jarenvijftigvilla
27 september 2017
Toon alles
Andere nieuwsberichten
'Materialenwerf' in M4H vormt festivalhart Rotterdam Architectuur Maand
Gisteren, 14:05
Op 3 juni opent het flexibel opgezette bouwwerk in M4H, waar gebruikte bouwmaterialen worden verzameld, bewerkt en opnieuw ingezet. Gedurende de hele maand juni wordt er getest hoe een circulaire stad eruit kan zien, meldt AIR Rotterdam.
Concrete vertaalt ideeën van culinaire chefs naar interieur
Gisteren, 12:15
In de Amsterdamse Noorderstraat heeft Concrete het interieur van het nieuwe restaurant Amice ontworpen.
Gebouw wooncoöperatie krijgt gevel van hergebruikte ventilatiekanalen
30 maart, 4:04
Naar verwachting wordt begin volgend jaar gestart met de bouw van een woongebouw voor wooncoöperatie De Bonte Hulst in Amsterdam-Noord. Het gebouw in Buiksloterham is ontworpen door bureau SLA.
Jan Knikker vertrekt bij MVRDV
30 maart, 2:46
Knikker, die sinds 2016 partner was bij MVRDV, heeft een belangrijke rol gespeeld bij de professionalisering van de pr- en acquisitieactiviteiten van MVRDV en de mede daaruit volgende groei van het bureau.
Michael Braungart luistert vijftienjarig jubileum Cradle to Cradle Café op
Gisteren, 11:27
Op dinsdag 14 april organiseert het Cradle to Cradle Café een speciaal jubileumfestival in Utrecht ter gelegenheid van zijn vijftienjarig bestaan.
PBL: politieke keuzes nodig voor aanpassing klimaatverandering
Gisteren, 10:23
Een verstandige keuze is alvast om alles klimaatadaptief aan te pakken, aldus het Planbureau voor de Leefomgeving.
OM vervolgt oud-werknemers Strukton na Saudische omkopingskwestie
30 maart, 4:52
Eerder werd al bekend dat het bouwbedrijf voor tien miljoen euro heeft geschikt in de corruptiezaak.
Duitsland trekt acht miljard uit voor extra klimaatmaatregelen
30 maart, 10:59
Het geld is onder andere bedoeld voor de bouw van extra windmolens en subsidies voor de aanschaf van elektrische auto's.
‘Transformatie en optoppen levert tienduizenden woningen en klimaatwinst op’
27 maart, 11:53
Woningbouw vergt veel grondstoffen, maar de Wetenschappelijke Klimaatraad ziet veel mogelijkheden om het anders aan te pakken.
Zeeuwse Staten willen inspraak inwoners op groeiplan provincie
27 maart, 9:30
Meerdere Statenfracties in de provincie Zeeland hebben opgeroepen de inwoners op een goede wijze te betrekken bij het uitwerken van de strategische agenda 2050.
Ga naar het nieuws-archief
Ronnie Weessies
Redacteur
2
0
0
0
Voor een optimale gebruikservaring plaatst Architectenweb functionele cookies. Wat de verschillende cookies precies doen leggen we uit in een
overzicht
. Cookies van social media kun je optioneel
aanzetten
.
Akkoord
Instellingen
Annuleren
OK
Sluiten
Doorgaan
Inloggen
Maak een gratis persoonlijk account aan
Feedback
Feedback
Wij horen graag jouw feedback. Laat je reactie achter en eventueel jouw e-mail adres.
Reactie
Verstuur