Projecten
Producten
Bedrijven
Vacatures
Agenda
Awards
Podcasts
more_horiz
Videos
Magazine
Thema's
Favorieten
Profiel
Uitloggen
Nieuw
Populair
Toon alles
Architectenweb magazine #14
Architectenweb magazine #13
Publieke gebouwen
Architectenweb magazine #12
Kantoren
Architectenweb magazine #11
Scholen
Architectenweb magazine #10
Zorg
Architectenweb magazine #14
Architectenweb magazine #10
Zorg
Architectenweb magazine #12
Kantoren
Architectenweb magazine #13
Publieke gebouwen
Architectenweb magazine #6
Transformatie en Renovatie
Om direct naar je favorieten te kunnen gaan is het nodig om eerst in te loggen.
Nieuw
Architectenweb Awards 2025
Architectenweb Awards 2024
Architectenweb Awards 2023
Architectenweb Awards 2022
Architectenweb Awards 2021
Architectenweb Awards 2020
Architectenweb Awards 2019
Architectenweb Awards 2018
Om direct naar je favorieten te kunnen gaan is het nodig om eerst in te loggen.
Nieuw
Populair
Favorieten
Toon alles
Vakwerk Architecten
Nominatie voor de prijs voor Architect van het Jaar 2025
Sanne van Manen
Nominatie voor de prijs voor Architect van het Jaar 2025
KSA
Nominatie voor de prijs voor Architect van het Jaar 2025
KRFT
Nominatie voor de prijs voor Architect van het Jaar 2025
Joost Ector
Nominatie voor de prijs voor Architect van het Jaar 2025
Prijsuitreiking Architectenweb Awards 2024
Impressie van een feestelijke avond
Martens, Willems & Humblé Architecten
Nominatie voor de prijs voor Architect van het Jaar 2024
Uitreiking van Architectenweb Awards 2020
Impressie van de prijsuitreiking via Zoom
De Zwarte Hond
Nominatie voor de prijs voor Architect van het Jaar 2024
Avond met De Zwarte Hond
Symposium
Om direct naar je favorieten te kunnen gaan is het nodig om eerst in te loggen.
Nieuw
Populair
Categorieën
Favorieten
Toon alles
Brandpreventie Academy BV
Cay Circulaire Keukens
Circulaire keukens en pantry's
Studio Kirsten Reith
Interieurontwerp
Studio175
Interieuradvies in regio Utrecht
Orange Automatic Doors
Indoorwrap
De specialist in Keukenwrappen
Cay Circulaire Keukens
Circulaire keukens en pantry's
Studio Kirsten Reith
Interieurontwerp
Studio175
Interieuradvies in regio Utrecht
Interior & Co
Indoorwrap
De specialist in Keukenwrappen
Orange Automatic Doors
Architecten
Architectuur
Mobiliteit en infrastructuur
Stedenbouw en landschapsarchitectuur
Leveranciers
Gevels
Daken
Ramen en deuren
Trappen, liften en balustrades
Binnenwanden
Vloeren
Plafonds
Verlichting
Sanitair
Projectinrichting
Installaties
Constructies
Buitenruimte
Software
Adviseurs
Bestekschrijvers
Bouwmanagement
Installatie adviseurs E
Bouwfysica
Calculators
Installatie adviseurs G/W
Bouwkundig tekenwerk
Constructeurs
Lichtadviseurs
Adviseur beveiliging
Juristen
Intermediairs, Payrolling
Aannemers
Overig
Presentatie
Instellingen / onderwijs
Overig
Om direct naar je favorieten te kunnen gaan is het nodig om eerst in te loggen.
Nieuw
Populair
Favorieten
Toon alles
Gesprek met Stephan Sliepenbeek over hoogbouw in Amstel III
Gesprek met Ellen van Bueren over gebiedsontwikkeling en hoogbouw
Gesprek met Ma Yansong over ontwerpen die emotie oproepen
Gesprek met Paul de Ruiter over innovatieve en duurzame hoogbouw
Gesprek met Pi de Bruijn over zijn ontwerpen voor de Tweede Kamer toen en nu
Gesprek met Ellen van Bueren over gebiedsontwikkeling en hoogbouw
Gesprek met Oresti Sarafopoulos over het ontwerpen van een kantoorgebouw met bijna geen installaties
Gesprek met Stijn Steenbakkers over verdichting en hoogbouw in Eindhoven
Gesprek met Pi de Bruijn over zijn ontwerpen voor de Tweede Kamer toen en nu
Gesprek met Paul de Ruiter over innovatieve en duurzame hoogbouw
Om direct naar je favorieten te kunnen gaan is het nodig om eerst in te loggen.
Nieuw
Populair
Categorieën
Favorieten
Toon alles
De energiemarkt revolutionair vernieuwen
Festivalterrein als inspiratie van dit kantoor
De antieke Agora als inspiratie voor een kantoor
Renovatieproject Ockenburghstraat
Aluminium kozijnen: de isolerende oplossing
Prinsenpark, Rotterdam
ASML Gebouw 3
IVY, Amsterdam
IKC De Brug
Houthavens, Amsterdam
Architectuur
Woningbouw
Zorg
Hotels
Restaurants en café’s
Winkels
Sportgebouwen
Culturele gebouwen
Overheidsgebouwen
Scholen
Kantoren
Bedrijfsgebouwen
Paviljoens en kunst
Overig
Mobiliteit en infrastructuur
Trein- en metrostations
Luchthavens
Busstations
Parkeergarages
Fietsparkeren
Wegen
Bruggen
Water
Energie
Tankstations en laadstations
Waterzuivering en afvalverwerking
Overig
Stedenbouw en landschapsarchitectuur
Regionale visies
Gebiedsvisies
Plannen stedelijk weefsel
Amusementsparken en dierentuinen
Lichtontwerpen
Openbare ruimte
Pleinen
Parken
Tuinen
Speelplaatsen
Uitkijktorens
Overige (bijv. begraafplaatsen)
Om direct naar je favorieten te kunnen gaan is het nodig om eerst in te loggen.
Nieuw
Populair
Categorieën
Favorieten
Toon alles
Control Track Versa
Langdurige flexibiliteit voor kantoren van de toekomst
Toegankelijkheid in de stad: klanktegels als gids
Een nieuwe dimensie in stadsontwerp: integreren van klank voor een inclusieve ervaring.
Dreentegel
Terug van weggeweest
Flux-totaalaanbod vraaggestuurde Renson WTW-ventilatie
Compacte wand- en plafondmontage voor alle debieten
Wie denkt er aan slopen tijdens bouwen?
Kies voor de toekomst, kies voor circulair isoleren!
Digital Prints
Meer mogelijkheden in gekleurd staal
Element+ H-I
Hout - Aluminium Elementgevel
Vierkante vluchtroutearmaturen voor grote ruimtes
Zichtbare veiligheid van alle kanten
GROHE Cubeo: kranen voor elke badkamer
Stijlvol en duurzaam design voor jarenlang plezier
Schüco Zonweringsysteem Integralmaster in FWS
Bescherming tegen zon, verblinding en privacy – verborgen en volledig geïntegreerd
Gevels
Gevelbekleding
Vliesgevels
Zonwering buiten
Isolatie
Gevelconstructies
Signing
Overig
Daken
Dakafwerkingen
Dakisolatie
Dakconstructies
Dakranden, dakgoten en HWA's
Dakramen
Lichtkoepels
Lichtstraten
Schoorstenen
Overig
Dakluiken
Ramen en deuren
Raam- en deursystemen / kozijnen
Vliesgevels
Hang- en sluitwerk
Beveiliging en luiken
Dorpels en vensterbanken
Lateien
Roosters
Glas
Dakramen
Dakkoepels
Lichtstraten
Zonwering buiten
Zonwering binnen
Buitendeuren
Binnendeuren
Postvakken en brievenbussen
Overig
Dakluiken
Trappen, liften en balustrades
Trappen
Roltrappen
Liften
Balustrades en hekwerken
Galerijen
Binnenwanden
Binnenwanden
Wandafwerking
Vloeren
Constructieve vloeren
Verhoogde vloeren
Vloerafwerkingen
Overig
Plafonds
Tegels
Lineair
Grill
Open en roosters
Naadloos
Eilanden en baffles
Plafondafwerkingen
Ophangsystemen
Overig
Klimaatplafonds
Verlichting
Binnenverlichting
Buitenverlichting
Sanitair
Kranen en douchesets
Wastafels
Douchewanden en douchebakken
Baden
Waterclosets
Accessoires
Overig
Projectinrichting
Stoelen
Banken
Tafels
Kasten
Balies
Vrijstaande wanden
Keukens
Accessoires
Overig
Cabines
Interieurbeplanting
Stoffering
Installaties
Verwarming, koeling en ventilatie
Elektrotechnische installaties
Schakelmateriaal
Domotica
Deurcommunicatie
Beveiliging
Liften
Onderhoudsinstallaties
Overig
Brandbeveiliging
Constructies
Draagconstructies
Funderingen en kelders
Overig
Brandbeveiliging
Buitenruimte
Bestratingen en verhardingen
Afwateringen
Terreinafscheidingen en geluidsschermen
Buitenmeubilair
Fietsparkeren
Terrassen
Terrasoverkappingen
Bruggen
Accessoires
Overig
Beplanting
Sport- en speeltoestellen
Software
Tekenen 2D
Modelleren 3D / BIM
Visualisatie / rendering
Parametrisch ontwerpen
Bouwfysica
Draagconstructie
Overig
Virtual Reality
Cloudoplossingen
Om direct naar je favorieten te kunnen gaan is het nodig om eerst in te loggen.
Nieuw
Populair
Favorieten
Toon alles
Zomerwandelingen Nieuwe Stad op Zondag 2025
Amsterdam
Prefab beurs - 7 t/m 9 oktober 2025
Brabanthallen 's-Hertogenbosch
Boekpresentatie en panelgesprek met Floor Milikows
Prins Hendrikkade 600, 1011 VX Amsterdam
Architects Table ’25: Lunch & Inspiratie in HAUT Amsterdam
ATAG LIVE – HAUT gebouw, Spaklerweg 10F, 1096 BA Amsterdam (tegenover metrostation Spaklerweg)
Inspiratiedag @ Sempergreen – Gevelgroen
Defensieweg 1, 3984 LR Odijk
Architects Table ’25: Lunch & Inspiratie in HAUT Amsterdam
ATAG LIVE – HAUT gebouw, Spaklerweg 10F, 1096 BA Amsterdam (tegenover metrostation Spaklerweg)
Ontdek het seminarieprogramma van Architect@Work Amsterdam
De Kromhouthal, Gedempt Hamerkanaal 231, Amsterdam
LIAG over duurzaamheid centraal in project
Online
1.Lectures HouseEurope! Renovate, don’t speculate
Pakhuis de Zwijger
Zomerwandelingen Nieuwe Stad op Zondag 2025
Amsterdam
Om direct naar je favorieten te kunnen gaan is het nodig om eerst in te loggen.
Nieuw
Toon alles
Design
Duurzaamheid
Gevel
Infrastructuur
Interieur
Kantoren
Leisure
Openbare ruimte
Publieke gebouwen
Scholen
Transformatie en Renovatie
Woningbouw
Zorg
Om direct naar je favorieten te kunnen gaan is het nodig om eerst in te loggen.
Nieuw
Populair
Toon alles
Junior Architect (NL/EN)
De Academie van Bouwkunst Amsterdam zoekt twee onderzoekers voor lectoraat
Site Practice zoekt medior architect met 3-6 jaar ervaring (Amsterdam)
DAT zoekt een BIM Modelleur (Revit)
stagiair bouwkunde Heerenveen
Meewerkend Voorman
Architect
Junior Architect gezocht!
Junior Ontwerper
Studio Nauta zoekt projectleider
wUrck zoekt junior Architect
Project Architect
Om direct naar je favorieten te kunnen gaan is het nodig om eerst in te loggen.
Copyright: Lab-S
Copyright: Lab-S
Copyright: Lab-S
Copyright: Lab-S
Copyright: Lab-S
Copyright: Lab-S
Copyright: Lab-S
Copyright: Lab-S
Copyright: Lab-S
Copyright: Lab-S
Copyright: Lab-S
Copyright: Lab-S
Copyright: Lab-S
Copyright: Lab-S
Copyright: Lab-S
Oude situatie
Copyright: Lab-S
3d met tuin
Copyright: Lab-S
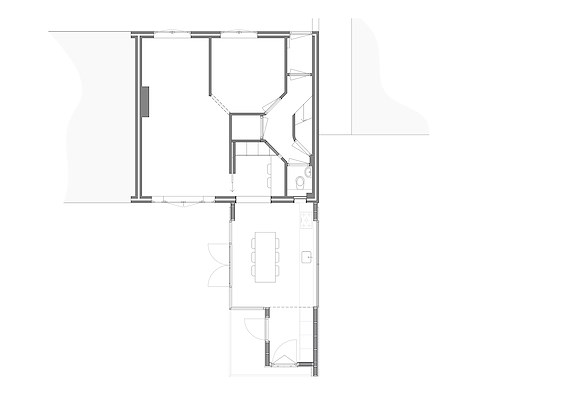
Begane grond
Copyright: Lab-S
Doorsnede
Copyright: Lab-S
Zijaanzicht vanuit brandgang
Copyright: Lab-S
Zijaanzicht vanuit tuin
Copyright: Lab-S
Achteraanzicht
Copyright: Lab-S
Historisch beeld Frisiawoningen
Copyright: Archief Eemland
Nieuwe woonkeuken verbindt woning met tuin
14 november 2022, 9:00
Architectenbureau Lab-S kreeg de opdracht een uitbreiding voor een bijzondere, monumentale rijwoning in Amersfoort te ontwerpen. De bewoners wilden een woonkeuken en meer contact met de achtertuin. De houten schuur moest als onderdeel van de architectuur worden meegenomen in het plan.
Aan de voet van het Bergkwartier in Amersfoort liggen de zogeheten Frisiawoningen, een bijzonder woningbouwproject uit 1921. De huizen zijn oorspronkelijk als huurwoningen gebouwd voor ‘den ontwikkelde en beschaafde middenklasse’ door woningcorporatie Frisia. De architectuur kenmerkt zich door een romantische uitstraling, vertelt architectenbureau Lab-S.
Het bureau beschrijft het ontwerp van de toenmalige architect A.H. van Wamelen als een mix van de Amsterdamse School en de Engelse Arts and Crafts-stijl. Met gewelfde, veelal riet gedekte daken, zware schoorsteenkanalen, en rustieke details in bijvoorbeeld goten en raampartijen doet het geheel ‘knus’ aan. Dat geldt ook voor de binnenkant van de woningen, die breed en ondiep zijn opgezet, veel kamers herbergen en bijna de sfeer van Engelse cottages oproepen.
Gewild monument
“Inmiddels zijn de woningen beschermd als rijksmonument, maar bij de oplevering waren er veel bouwkundige problemen en hoge onderhoudskosten”, vertelt Lab-S. “Daardoor werden de woningen snel verkocht aan particulieren. Tegenwoordig zijn de woningen in goede staat en zijn ze vanwege hun bijzondere uitstraling en fraaie ligging erg gewild.”
Lab-S werd door een particuliere opdrachtgever gevraagd om het ontwerp te maken voor een uitbreiding aan de achterzijde van zo’n monumentale rijwoning. De bewoners wensten daarbij een ruime woonkeuken en een plek van waaruit ze meer contact zouden hebben met de achtertuin.
Woonkeuken vebindt
Vanuit monumentenzorg golden regels voor een dergelijke uitbreiding. Eén daarvan was dat de uitbouw niet breder dan de helft van de achtergevel mocht zijn. Een ander belangrijk aandachtspunt was dat de oorspronkelijke houten tuinschuur in het plan betrokken moest worden, aangezien deze schuurtjes een wezenlijk onderdeel vormen van de architectuur.
In zijn ontwerp heeft Lab-S de opvallende vorm van het schuurtje als uitgangspunt genomen en de nieuwe keuken tussen schuur en woning geplaatst. Het open karakter en het materiaalgebruik zorgen voor een sterke relatie tussen de keuken en de tuin; dat de oorspronkelijke achtergevel zoveel mogelijk is behouden en onderdeel gemaakt van het keukeninterieur versterkt die relatie.
De grote glashoek met openslaande deuren grenst direct aan het terras. Verder heeft het architectenbureau voor diverse andere kleine doorkijkjes gezorgd.
Materiaal en detaillering
Lab-S heeft met zorg gewerkt aan de detaillering, zowel bij de bouwkundige details als in de uitwerking van het interieur. De keuken is uitgevoerd in bamboe met ingefreesde grepen. Voor de afwerking van de buitenzijde koos het bureau als hoofdmateriaal hout, dat in twee tinten is toegepast. De naturelle kleur weerspiegelt het voormalige schuurtje en het zwarte hout omkleedt als het ware het schuurtje en de woonkeuken.
Aan de kopse zijde van de aanbouw zijn houten vouwluiken geplaatst, die kunnen worden gesloten als er teveel zonlicht binnenvalt. Een deur die in de gevel onder het overstek is weggewerkt fungeert als ‘achterom’.
De dakpannen van het oorspronkelijke schuurtje zijn hergebruikt, inclusief de in cement gelegde nokvorsten. Op het platte dak is sedum aangebracht, wat bijdraagt aan een aangenaam binnenklimaat.
Trefwoorden
woninguitbreiding
woonkeuken
amersfoort
frisiawoningen
lab-s
rijksmonument
Locatie
Best gelezen
1
Rijk schrijft aanbesteding uit voor nieuwe marinierskazerne
woensdag, 1 oktober
2
Rapport: rijke Amsterdammers leven steeds vaker apart van rest
dinsdag, 30 september
3
Kabinet wil wijken erbij op 127 plekken in Nederland
maandag, 29 september
4
Architectenweb symposium: klein maar fijn wonen?
donderdag, 2 oktober
5
Leiden wil verhoogd busstation naast treinperrons centraal station
dinsdag, 30 september
Gerelateerde nieuwsberichten
Woninguitbreiding met contrast en harmonie
28 november 2016
Ingetogen woning als rustpunt aan de bosrand
29 november 2022
Kevin Veenhuizen Architects voorziet woonhuis van zigzaggende uitbreiding
20 januari 2022
Lab-S verbouwt jaren 30-villa in relatie met natuur
13 januari
Villa als modernistische uitbreiding van een historisch pachtershuis
25 november 2021
Uitbreiding met zitkuil voor Haagse woning
11 november 2021
Architect verbouwt eigen woning als continu werk in uitvoering
16 augustus 2023
Spoorwachterswoning in Utrecht uitgebreid met houten aanbouw
25 juni 2020
Woninguitbreiding onder een vlinderdak
28 oktober 2019
Nieuwe Architecten schept leefruimte op het dak
22 februari 2018
Koekoek brengt sfeer en daglicht in Amsterdamse benedenwoning
10 december 2018
Uitbreiding geeft rijtjeswoning ruimte en kleur
15 oktober 2024
Eigentijdse uitbreiding voor boerderijwoning
18 maart 2016
Derde editie Stadsbouwprijs Amersfoort van start
3 mei 2024
Winnaars Stadsbouwprijs Amersfoort 2024 bekend
21 oktober 2024
Een kantoorgevel die golft en spiegelt
5 december 2022
Woninguitbreiding met contrast en harmonie
28 november 2016
Ingetogen woning als rustpunt aan de bosrand
29 november 2022
Kevin Veenhuizen Architects voorziet woonhuis van zigzaggende uitbreiding
20 januari 2022
Lab-S verbouwt jaren 30-villa in relatie met natuur
13 januari
Villa als modernistische uitbreiding van een historisch pachtershuis
25 november 2021
Uitbreiding met zitkuil voor Haagse woning
11 november 2021
Architect verbouwt eigen woning als continu werk in uitvoering
16 augustus 2023
Spoorwachterswoning in Utrecht uitgebreid met houten aanbouw
25 juni 2020
Woninguitbreiding onder een vlinderdak
28 oktober 2019
Nieuwe Architecten schept leefruimte op het dak
22 februari 2018
Koekoek brengt sfeer en daglicht in Amsterdamse benedenwoning
10 december 2018
Uitbreiding geeft rijtjeswoning ruimte en kleur
15 oktober 2024
Eigentijdse uitbreiding voor boerderijwoning
18 maart 2016
Derde editie Stadsbouwprijs Amersfoort van start
3 mei 2024
Winnaars Stadsbouwprijs Amersfoort 2024 bekend
21 oktober 2024
Een kantoorgevel die golft en spiegelt
5 december 2022
Toon alles
Andere nieuwsberichten
Plan Spot belooft Lelystad bruisend centrumgebied
3 oktober, 4:30
Heutink Groep, Groosman en LOLA Landscape Architects winnen tender stadshart met nieuw horecaplein.
Hoogste punt van woontoren Blaak 333 bereikt
3 oktober, 3:11
De door Kraaijvanger Architects ontworpen woontoren in het centrum van Rotterdam verrijst op de plek waar voorheen een kantoortoren van de Rabobank stond.
‘NDSM-werf en Buiksloterham zijn júíst inspirerende voorbeelden voor de stad van morgen’
3 oktober, 2:40
Architect Alexander Straub reageert op de column van Alexander Pols, waarin de vraag centraal stond of we bij de bouw van nieuwe wijken als Buiksloterham en de NDSM-werf in Amsterdam kunnen leren van de traditionele Europese stad.
Zes nominaties voor Haagse architectuurprijs Berlagevlag 2025
3 oktober, 1:34
De nominaties voor de Haagse architectuurprijs, de Berlagevlag, zijn bekend. Uit 31 inzendingen koos de vakjury zes projecten.
Kamer wil dat Keijzer afziet van versoepelingen huurwet
3 oktober, 12:11
Sinds de huurwet - tegen de zin van Keijzer - van kracht werd, waarschuwen verhuurders dat daardoor het aanbod aan betaalbare huurwoningen afneemt.
Steden vrezen voor woningbouw door nieuwe regels netcongestie
2 oktober, 4:25
Amsterdam, Den Haag, Rotterdam en Utrecht vrezen dat de bouw van nieuwe woningen stil komt te liggen door netcongestie.
Dienst Toeslagen: plan voor wonen op vakantieparken onuitvoerbaar
2 oktober, 1:06
Het kabinetsplan om permanent wonen in vakantiehuisjes mogelijk te maken, is volgens de Dienst Toeslagen onuitvoerbaar.
Zuid-Holland wil in ‘oogstjaar’ 2026 plannen uitvoeren
1 oktober, 3:16
De provincie investeert onder meer in infrastructuur, woningbouw, natuur en versterking van kleine kernen.
Rijk schrijft aanbesteding uit voor nieuwe marinierskazerne
1 oktober, 2:27
Eind 2031 wil het Korps Mariniers vanuit zijn huidige kazerne in Doorn verhuizen naar een nieuw onderkomen op de bestaande Defensielocatie Kamp Nieuw-Milligen vlakbij Apeldoorn.
Landschapstriënnale 2026 strijkt neer in Arnhem
1 oktober, 11:57
Het thema van de komende editie van de manifestatie is ‘Op Waterbasis’.
Ga naar het nieuws-archief
Robert Muis
Redacteur
0
0
0
0
Voor een optimale gebruikservaring plaatst Architectenweb functionele cookies. Wat de verschillende cookies precies doen leggen we uit in een
overzicht
. Cookies van social media kun je optioneel
aanzetten
.
Akkoord
Instellingen
Annuleren
OK
Sluiten
Doorgaan
Inloggen
Maak een gratis persoonlijk account aan
Feedback
Feedback
Wij horen graag jouw feedback. Laat je reactie achter en eventueel jouw e-mail adres.
Reactie
Verstuur